Zevenbergen

Arkelhof  10

€ 375.000,- k.k.

Omschrijving

GELIJKVLOERS WONEN MET VEEL RUIMTE Aan de Arkelhof 10 in Zevenbergen vind je dit verrassend ruime huis dat geschikt is voor een brede doelgroep. Of je nu starter bent, doorstroomt of juist levensloopbestendig wilt wonen: hier kan het allemaal. De grootste plus? Een slaapkamer én badkamer op de begane grond. Dat maakt het huis niet alleen comfortabel voor nu, maar ook…

GELIJKVLOERS WONEN MET VEEL RUIMTE
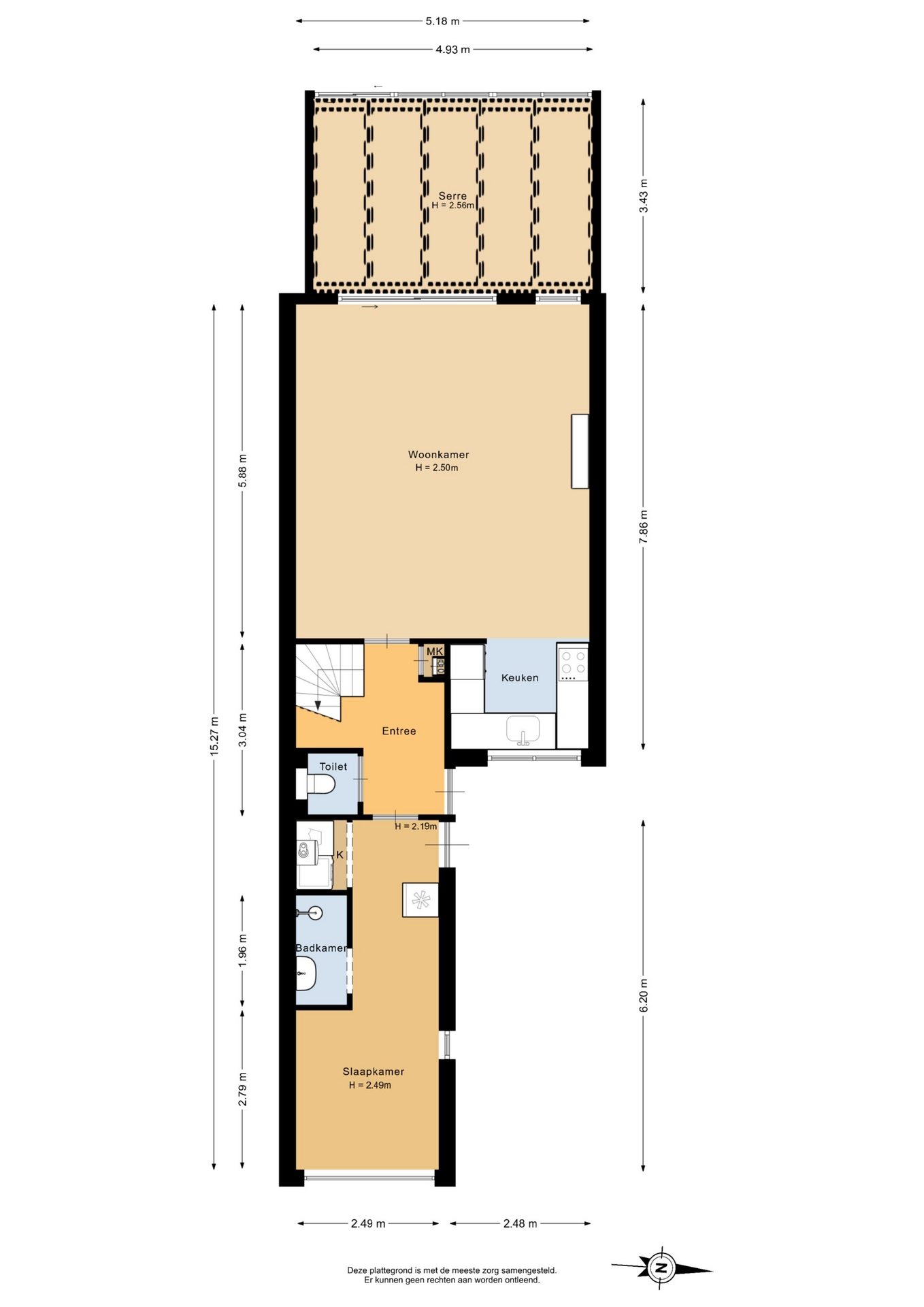
Aan de Arkelhof 10 in Zevenbergen vind je dit verrassend ruime huis dat geschikt is voor een brede doelgroep. Of je nu starter bent, doorstroomt of juist levensloopbestendig wilt wonen: hier kan het allemaal. De grootste plus? Een slaapkamer én badkamer op de begane grond. Dat maakt het huis niet alleen comfortabel voor nu, maar ook toekomstbestendig.

Bij binnenkomst valt direct de praktische indeling op. De entree geeft toegang tot het toilet, de trapopgang en de verschillende leefruimtes. Aan de voorzijde bevindt zich de keuken, die netjes is uitgevoerd en voorzien van voldoende werk- en opbergruimte. Vanuit hier kijk je vrij de straat in. Aan de achterzijde ligt de woonkamer, een fijne en lichte ruimte waar je met gemak een royale zithoek en eethoek kwijt kunt. De airco zorgt hier het hele jaar door voor een aangenaam binnenklimaat.

Wat dit huis extra aantrekkelijk maakt, is de slaapkamer op de begane grond met aangrenzende douche. Deze ruimte is bovendien voorzien van elektrische vloerverwarming, wat zorgt voor extra comfort. Ideaal als hoofdslaapkamer of juist als werk- of hobbyruimte. Hiermee is het huis flexibel in gebruik en geschikt voor verschillende levensfasen.

LICHTE WOONKAMER MET SERRE AAN TUIN
De woonkamer is echt het hart van het huis. Dankzij de grote raampartijen en de aansluiting op de serre voelt deze ruimte open en licht aan. De serre vormt een verlengstuk van de woonkamer, waardoor je hier bijna het hele jaar door van het buitenleven geniet. Een fijne plek voor een kop koffie in de ochtend of een lange avond met vrienden.

De tuin ligt op het westen, wat betekent dat je hier volop van de middag- en avondzon profiteert. De tuin is verzorgd aangelegd en biedt een goede balans tussen groen en bestrating. Achterin staat een praktische berging voor fietsen en tuingereedschap. Hier ervaar je echt rust en ruimte, met voldoende privacy om optimaal te ontspannen.

Daarnaast is er parkeergelegenheid op eigen terrein voor twee auto’s, wat het dagelijks gemak compleet maakt.

Met 14 zonnepanelen is er bovendien al een mooie stap gezet richting energiezuinig wonen. In combinatie met energielabel B zorgt dit voor lagere energielasten en een prettig wooncomfort.

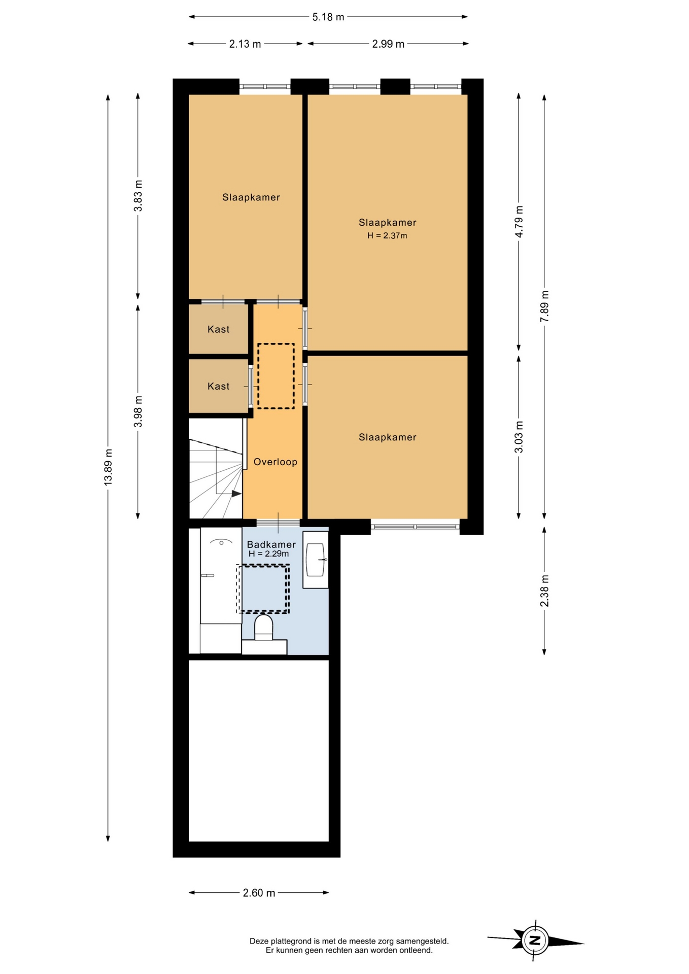
VIER SLAAPKAMERS EN EXTRA RUIMTE BOVEN
Op de eerste verdieping vind je nog eens drie slaapkamers, stuk voor stuk van goed formaat. De grootste slaapkamer biedt volop ruimte voor een tweepersoonsbed en een grote kast. De overige kamers zijn ideaal als kinder-, werk- of logeerkamer. Dankzij de rechte gevels zijn de kamers praktisch in te delen.

De badkamer op deze verdieping is compleet uitgevoerd en voorzien van een ligbad, douche, wastafel en toilet. Dit maakt de verdieping volledig geschikt voor gezinnen of gasten.

Via een vlizotrap bereik je de vliering. Deze ruimte is perfect voor het opbergen van spullen die je niet dagelijks nodig hebt. Daarnaast biedt het huis nog extra potentie: het plaatsen van een dakkapel behoort tot de mogelijkheden, waarbij de zonnepanelen eenvoudig verplaatst kunnen worden. Zo creëer je nog meer woonruimte.

RUSTIGE EN KINDVRIENDELIJKE WOONOMGEVING
Het huis ligt in een rustige en prettige woonwijk in Zevenbergen. Een omgeving waar je fijn woont met alle dagelijkse voorzieningen binnen handbereik. Denk aan supermarkten, scholen, sportverenigingen en het gezellige centrum van Zevenbergen. Ook voor forenzen is de ligging gunstig: uitvalswegen richting Breda, Rotterdam en Dordrecht zijn snel bereikbaar.

De wijk is ruim opgezet en ideaal voor gezinnen. Achter de tuin ligt een speeltuin, waardoor kinderen veilig en dichtbij kunnen spelen zonder overlast. In combinatie met de rustige straat en het groene karakter maakt dit het een plek waar je met plezier woont.

KENMERKEN:
- Woonoppervlakte: 107 m²
- Perceeloppervlakte: 175 m²
- Bouwjaar: 1974
- Ligging: in woonwijk
- Tuinligging: west
- Parkeergelegenheid: op eigen terrein (2 auto’s)
- Aantal verdiepingen: 2 + vliering
- Aantal kamers: 5
- Aantal slaapkamers: 4
- Energielabel: B
- 14 zonnepanelen
- Oplevering: in overleg

WoonSchuijt Makelaars behartigt de belangen van de verkopende partij. Neem uw eigen NVM aankoopmakelaar mee.

Alle verstrekte informatie moet beschouwd worden als een uitnodiging tot het doen van een bod of om in onderhandeling te treden.

Deze informatie is door ons met de nodige zorgvuldigheid samengesteld. Onzerzijds wordt echter geen enkele aansprakelijkheid aanvaard voor enige onvolledigheid, onjuistheid of anderszins, dan wel de gevolgen daarvan. Alle opgegeven maten en oppervlakten zijn indicatief. Van toepassing zijn de NVM voorwaarden.

Koopovereenkomst pas rechtsgeldig na ondertekening:
Een mondelinge overeenstemming tussen de particuliere verkoper en de particuliere koper is niet rechtsgeldig. Met andere woorden: er is geen koop. Er is pas sprake van een rechtsgeldige koop als de particuliere verkoper en de particuliere koper de koopovereenkomst hebben ondertekend. Dit vloeit voort uit artikel 7:2 Burgerlijk Wetboek. Een bevestiging van de mondelinge overeenstemming per e-mail of een toegestuurd concept van de koopovereenkomst wordt overigens niet gezien als een 'ondertekende koopovereenkomst'.

Kenmerken

Basiskenmerken

  • Status Verkocht onder voorbehoud
  • Koopsom € 375.000 k.k.
  • Woonoppervlakte ca. 107 m2
  • Aantal slaapkamers 4
  • Bouwjaar 1974

Overdracht

  • Aanvaarding In overleg

Bouwvorm & onderhoud

  • Soort object Tussenwoning
  • Soort woning Eengezinswoning
  • Bouwjaar 1974
  • Soort bouw woonhuis
  • Ligging In woonwijk

Oppervlakte & inhoud

  • Gebruiksoppervlakte 107m2
  • Perceeloppervlakte 175m2
  • Inhoud 408m3
  • Aantal kamers 5
  • Aantal slaapkamers 4
  • Aantal woonlagen 3 woonlagen
  • Overige inpandige ruimte 4m2

Energie & installatie

  • Energielabel B
  • Isolatie Muurisolatie
  • Verwarming Cv ketel
  • Warm water Elektrische boiler eigendom
  • C.v.-ketel type GAS
  • C.v.-ketel bouwjaar 2023
  • Energie einddatum 17-03-2036

Bergruimte

  • Schuur / berging Vrijstaand kunststof

Parkeergelegenheid

  • Parkeerfaciliteiten Openbaar parkeren, op eigen terrein
  • Garage Geen garage

Dak

  • Soort dak Zadeldak

Overig

  • Onderhoud binnen Goed
  • Onderhoud buiten Goed
  • Permanente bewoning Ja
  • Huidig gebruik Woonruimte
  • Huidige bestemming Woonruimte

Voorzieningen

  • Voorzieningen Tv kabel, airconditioning, zonnepanelen, natuurlijke ventilatie

Buitenruimte

  • Hoofdtuin ACHTERTUIN
  • Oppervlakte hoofdtuin 45m2
  • Ligging hoofdtuin WEST
  • Kwaliteit tuin Normaal

Kadastrale gegevens

  • Perceelnummer 5302
  • Perceeloppervlakte 175 m2
Meer kenmerken
Huis verkopen?

Maak een afspraak voor een gratis adviesgesprek met onze makelaars en ontdek jouw mogelijkheden.

Maak direct een afspraak

In de buurt