Rotterdam
Baljuwplein 28 01
€ 415.000,- k.k.
Omschrijving
Stijlvol en instapklaar wonen in hartje Rotterdam met optimaal licht en ruimte! In het centrum van Rotterdam ligt dit instapklare appartement van ca. 84 m², verdeeld over twee woonlagen. Met een moderne keuken en badkamer (2023), twee slaapkamers en een zonnig balkon op het zuiden biedt deze woning een ideale combinatie van comfort, licht en locatie. Perfect voor…
Stijlvol en instapklaar wonen in hartje Rotterdam met optimaal licht en ruimte!
In het centrum van Rotterdam ligt dit instapklare appartement van ca. 84 m², verdeeld over twee woonlagen. Met een moderne keuken en badkamer (2023), twee slaapkamers en een zonnig balkon op het zuiden biedt deze woning een ideale combinatie van comfort, licht en locatie. Perfect voor starters en doorstromers die centraal willen wonen met een moderne afwerking.
CENTRAAL WONEN MET LICHT, RUIMTE EN COMFORT
Gelegen aan het Baljuwplein woon je hier midden in het bruisende centrum van Rotterdam, met alle voorzieningen op loopafstand. Wat deze woning bijzonder maakt, is de combinatie van die centrale ligging met een verrassend ruim en licht woongevoel. De woonkamer op de eerste verdieping profiteert van een brede raampartij, waardoor het daglicht rijkelijk binnenvalt en een open, prettige sfeer ontstaat.
De indeling is praktisch en biedt volop ruimte voor zowel een comfortabele zithoek als een eettafel, ideaal voor dagelijks gebruik én het ontvangen van gasten. De vrije uitkijk en de positionering op de verdieping zorgen bovendien voor extra privacy en rust, waardoor je hier echt thuiskomt midden in de stad.
MODERNE AFWERKING MET KEUKEN, BADKAMER EN BUITENRUIMTE (2023)
De woning is de afgelopen jaren gemoderniseerd en dat zie je direct terug in de afwerking. De keuken (2023) is strak vormgegeven met lichte fronten en een modern werkblad, en praktisch ingericht zodat alles binnen handbereik ligt. Dankzij de open verbinding met de woonkamer ontstaat een gezellige en ruimtelijke leefomgeving.
De badkamer (2023) sluit naadloos aan bij de moderne uitstraling en is uitgevoerd met een inloopdouche, regendouche en een stijlvol wastafelmeubel.
PRAKTISCHE INDELING MET TWEE SLAAPKAMERS EN KARAKTER
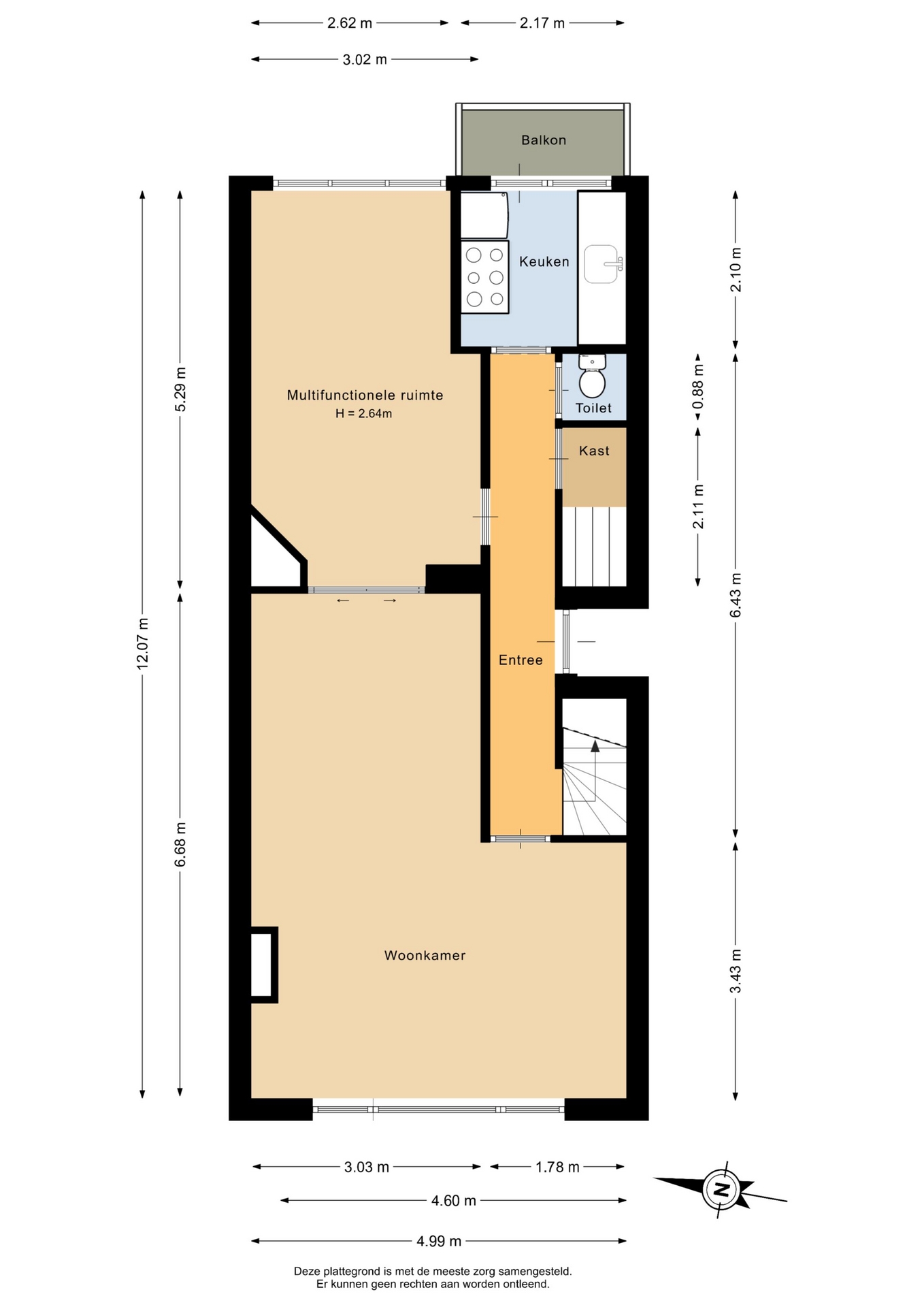
Met een woonoppervlakte van circa 84 m² en verdeeld over twee woonlagen biedt dit appartement een logische en efficiënte indeling. De twee slaapkamers zijn goed bemeten en flexibel te gebruiken als slaap-, werk- of logeerruimte, wat perfect aansluit op de woonwensen van deze tijd.
Het bouwjaar (1933) geeft de woning karakter, terwijl moderne installaties zoals de Cv-ketel (Intergas, 2018) zorgen voor hedendaags comfort. Deze combinatie maakt het een aantrekkelijke woning voor wie charmant wil wonen zonder in te leveren op gemak en kwaliteit.
TOPLOCATIE MET ALLES BINNEN HANDBEREIK
De ligging is zonder twijfel een van de grootste pluspunten. Op korte afstand van Rotterdam Centraal Station ben je uitstekend verbonden met de rest van de stad en daarbuiten. In de directe omgeving vind je winkels, supermarkten, horeca en diverse voorzieningen.
Daarnaast zijn ook culturele hotspots, sportscholen en ontspanningsmogelijkheden dichtbij. Ondanks de centrale ligging zijn er voldoende rustige plekken en groenvoorzieningen in de buurt, waardoor je profiteert van een prettige balans tussen levendigheid en ontspanning.
KENMERKEN
-Eigen grond
-Bouwjaar 1933
-Woonoppervlakte van ca. 84 m²
-2 slaapkamers
-Balkon op het zuiden
-Recent gerenoveerde badkamer en keuken
-Verwarming en warm water via Cv-ketel Intergas (2018)
-Actieve VvE met een bijdrage van €180,- per maand
-Ouderdomsclausule van toepassing
-Oplevering in overleg
INTERESSE? MAAK DAN SNEL EEN AFSPRAAK!
Ons advies is om bij het kopen van jouw nieuwe huis altijd jouw eigen NVM makelaar mee te nemen.
TOELICHTINGSCLAUSULE NEN2580
De Meetinstructie is gebaseerd op de NEN2580. De Meetinstructie is bedoeld om een meer eenduidige manier van meten toe te passen voor het geven van een indicatie van de gebruiksoppervlakte. De Meetinstructie sluit verschillen in meetuitkomsten niet volledig uit, door bijvoorbeeld interpretatieverschillen, afrondingen of beperkingen bij het uitvoeren van de meting.
KOOPOVEREENKOMST PAS RECHTSGELDIG NA ONDERTEKENING
Een mondelinge overeenstemming tussen de particuliere verkoper en de particuliere koper is niet rechtsgeldig. Met andere woorden: er is geen koop. Er is pas sprake van een rechtsgeldige koop als de particuliere verkoper en de particuliere koper de koopovereenkomst hebben ondertekend. Dit vloeit voort uit artikel 7:2 Burgerlijk Wetboek. Een bevestiging van de mondelinge overeenstemming per e-mail of een toegestuurd concept van de koopovereenkomst wordt overigens niet gezien als een 'ondertekende koopovereenkomst'
“Deze informatie is door ons met de nodige zorgvuldigheid samengesteld. Onzerzijds wordt echter geen enkele aansprakelijkheid aanvaard voor enige onvolledigheid, onjuistheid of anderszins, dan wel de gevolgen daarvan. Alle opgegeven maten en oppervlakten zijn indicatief.”
Kenmerken
Basiskenmerken
- Status Beschikbaar
- Koopsom € 415.000 k.k.
- Woonoppervlakte ca. 84 m2
- Aantal slaapkamers 2
- Bouwjaar 1933
Overdracht
- Aanvaarding In overleg
Bouwvorm & onderhoud
- Bouwjaar 1933
- Soort bouw woonhuis
- Ligging In centrum, in woonwijk
Oppervlakte & inhoud
- Gebruiksoppervlakte 84m2
- Inhoud 279m3
- Aantal kamers 4
- Aantal slaapkamers 2
- Aantal woonlagen 2 woonlagen
Energie & installatie
- Energielabel D
- Isolatie Dubbel glas
- Verwarming Cv ketel
- Warm water Cv ketel
- C.v.-ketel type GAS
- C.v.-ketel bouwjaar 2018
- Energie einddatum 31-12-2030
Parkeergelegenheid
- Parkeerfaciliteiten Betaald parkeren, parkeervergunningen
- Garage Geen garage
Dak
- Soort dak Plat dak
Overig
- Onderhoud binnen Goed
- Onderhoud buiten Redelijk tot goed
- Bijzonderheden Gedeeltelijk gestoffeerd
- Permanente bewoning Ja
- Huidig gebruik Woonruimte
- Huidige bestemming Woonruimte
Voorzieningen
- Voorzieningen Tv kabel, natuurlijke ventilatie
Kadastrale gegevens
- Perceelnummer 4057
Maak een afspraak voor een gratis adviesgesprek met onze makelaars en ontdek jouw mogelijkheden.
Maak direct een afspraak