Capelle Aan Den Ijssel

Bermweg  242

€ 335.000,- k.k.

Omschrijving

INSTAPKLARE STARTERSWONING MET TUIN AAN HET WATER Ben je op zoek naar een fijn eerste huis waar je zó in kunt? Dan is Bermweg 242 in Capelle aan den IJssel er eentje om serieus te bekijken. Dit fijne huis combineert karakter met comfort en ligt bovendien op een plek waar je elke dag geniet van rust en ruimte. Met een verzorgde afwerking, twee slaapkamers en een diepe tuin…

INSTAPKLARE STARTERSWONING MET TUIN AAN HET WATER
Ben je op zoek naar een fijn eerste huis waar je zó in kunt? Dan is Bermweg 242 in Capelle aan den IJssel er eentje om serieus te bekijken. Dit fijne huis combineert karakter met comfort en ligt bovendien op een plek waar je elke dag geniet van rust en ruimte. Met een verzorgde afwerking, twee slaapkamers en een diepe tuin aan het water is dit een ideale start voor wie een eigen plekje zoekt.

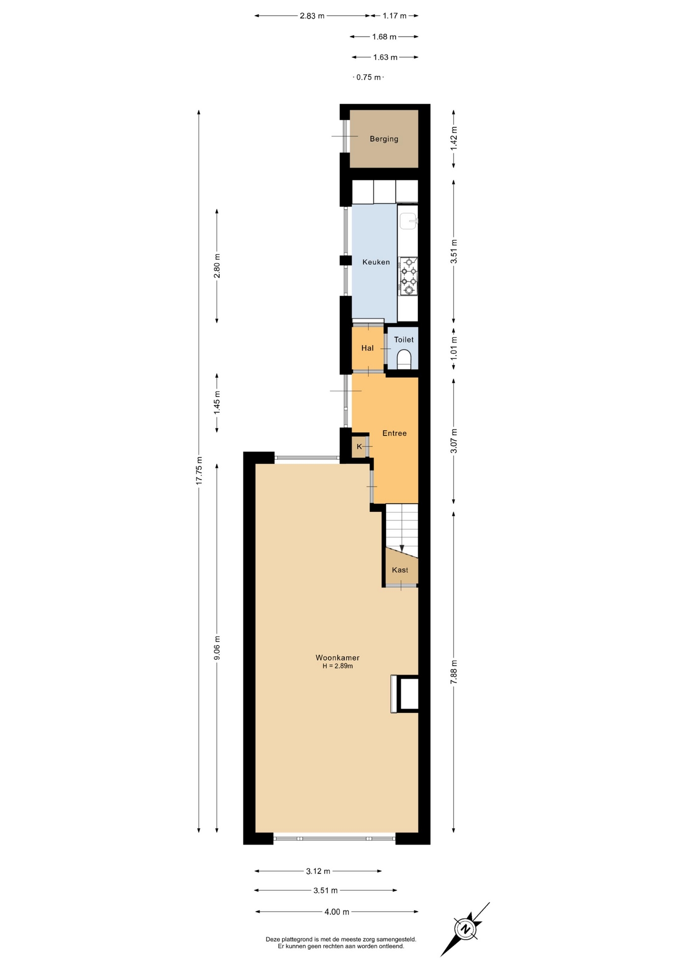
LICHTE WOONKAMER MET SFEER EN KARAKTER
Zodra je binnenkomt, valt direct de fijne lichtinval op. De woonkamer is strak afgewerkt en voelt warm en uitnodigend aan. De combinatie van de lichte wanden, houten vloer en het balkenplafond geeft het geheel een sfeervolle uitstraling met een knipoog naar het bouwjaar van het huis. Aan de voorzijde zorgt het grote raam voor veel daglicht en een prettig uitzicht naar buiten.

De zithoek is ruim genoeg voor een comfortabele bank en tv-opstelling, terwijl je aan de achterzijde plek hebt voor een gezellige eethoek. Hier zit je heerlijk met vrienden of familie aan tafel. De open indeling maakt het een fijne leefruimte waar alles logisch in elkaar overloopt.

NETTE KEUKEN EN VERZORGDE BADKAMER
De keuken sluit goed aan op de woonruimte en is praktisch ingericht. Alles wat je nodig hebt is aanwezig en de nette afwerking maakt dat je hier voorlopig niets aan hoeft te doen. Ideaal voor starters die graag direct willen wonen zonder eerst te moeten klussen.

De badkamer is modern en verzorgd uitgevoerd, zoals ook op de foto’s goed te zien is. De combinatie van lichte en donkere tegels zorgt voor een rustige uitstraling. Je beschikt hier over een ruime inloopdouche, wastafel en voldoende bewegingsruimte. Een plek waar je de dag fris begint of juist ontspannen afsluit.

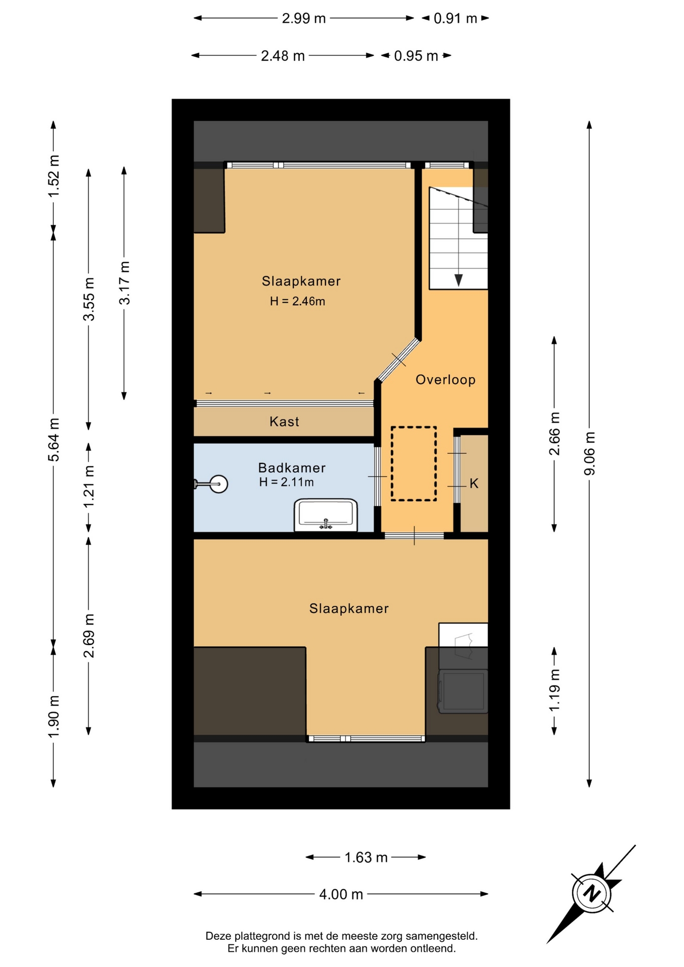
TWEE SLAAPKAMERS EN FIJNE INDELING
Op de verdieping vind je twee slaapkamers. De grootste slaapkamer biedt voldoende ruimte voor een tweepersoonsbed en een kast, en is daarmee een comfortabele hoofdslaapkamer. De tweede kamer is ideaal als werkplek, logeerkamer of eventueel kinderkamer.

De indeling is praktisch en efficiënt, waardoor iedere vierkante meter goed benut wordt. Precies wat je zoekt bij een eerste huis: overzichtelijk, functioneel en prettig in gebruik.

DIEPE TUIN AAN HET WATER MET PRIVACY
Een van de grootste pluspunten van dit huis is zonder twijfel de achtertuin. Deze ligt op het zuidoosten, waardoor je hier al vroeg op de dag van de zon kunt genieten. De tuin is verzorgd aangelegd en biedt meerdere plekken om te zitten, van een gezellige eethoek onder de pergola tot een loungeplek achterin.

Wat deze tuin extra bijzonder maakt, is de ligging aan het water. Dat zorgt niet alleen voor een vrij gevoel, maar ook voor extra rust en privacy. Hier zit je heerlijk buiten, of je nu rustig wilt ontbijten, borrelen met vrienden of gewoon even wilt ontspannen na een werkdag.

RUSTIG WONEN MET ALLES BINNEN BEREIK
De Bermweg ligt in een rustige en groene omgeving in Capelle aan den IJssel. Je woont hier prettig met een goede balans tussen rust en bereikbaarheid. In de directe omgeving vind je diverse winkels, supermarkten en voorzieningen voor de dagelijkse boodschappen.

Ook qua bereikbaarheid zit je hier goed. Openbaar vervoer is in de buurt en met de auto ben je snel onderweg richting Rotterdam en omliggende steden. Voor een wandeling of fietstocht hoef je niet ver: in de omgeving zijn volop groene plekken en waterpartijen te vinden.

Dit maakt het een fijne plek voor starters die rustig willen wonen, maar wel de stad dichtbij willen hebben.

BIJZONDERHEDEN:
- Goed afgewerkte starterswoning;
- Diepe achtertuin aan het water;
- Makkelijk te bereiken uitvalswegen waaronder de N219;
- Erfpachtrecht tot 30 december 2047;
- Jaarlijks erfpachtcanon van ca. € 280,-.

TOELICHTINGSCLAUSULE NEN2580
De Meetinstructie is gebaseerd op de NEN2580. De Meetinstructie is bedoeld om een meer eenduidige manier van meten toe te passen voor het geven van een indicatie van de gebruiksoppervlakte. De Meetinstructie sluit verschillen in meetuitkomsten niet volledig uit, door bijvoorbeeld interpretatieverschillen, afrondingen of beperkingen bij het uitvoeren van de meting.

“Deze informatie is door ons met de nodige zorgvuldigheid samengesteld. Onzerzijds wordt echter geen enkele aansprakelijkheid aanvaard voor enige onvolledigheid, onjuistheid of anderszins, dan wel de gevolgen daarvan. Alle opgegeven maten en oppervlakten zijn indicatief.”

Interesse in dit huis? Schakel direct jouw eigen NVM-aankoopmakelaar in. Jouw NVM-aankoopmakelaar komt op voor jouw belang en bespaart je tijd, geld en zorgen. Adressen van collega NVM-aankoopmakelaars vindt je op de website van NVM Haaglanden.

KOOPOVEREENKOMST PAS RECHTSGELDIG NA ONDERTEKENING
Een mondelinge overeenstemming tussen de particuliere verkoper en de particuliere koper is niet rechtsgeldig. Met andere woorden: er is geen koop. Er is pas sprake van een rechtsgeldige koop als de particuliere verkoper en de particuliere koper de koopovereenkomst hebben ondertekend. Dit vloeit voort uit artikel 7:2 Burgerlijk Wetboek. Een bevestiging van de mondelinge overeenstemming per e-mail of een toegestuurd concept van de koopovereenkomst wordt overigens niet gezien als een 'ondertekende koopovereenkomst' “Deze informatie is door ons met de nodige zorgvuldigheid samengesteld. Onzerzijds wordt echter geen enkele aansprakelijkheid aanvaard voor enige onvolledigheid, onjuistheid of anderszins, dan wel de gevolgen daarvan. Alle opgegeven maten en oppervlakten zijn indicatief.”

Kenmerken

Basiskenmerken

  • Status Beschikbaar
  • Koopsom € 335.000 k.k.
  • Woonoppervlakte ca. 76 m2
  • Aantal slaapkamers 2
  • Bouwjaar 1930

Overdracht

  • Aanvaarding In overleg

Bouwvorm & onderhoud

  • Soort object Tussenwoning
  • Soort woning Eengezinswoning
  • Bouwjaar 1930
  • Soort bouw woonhuis
  • Ligging Aan water, aan rustige weg

Oppervlakte & inhoud

  • Gebruiksoppervlakte 76m2
  • Perceeloppervlakte 109m2
  • Inhoud 292m3
  • Aantal kamers 3
  • Aantal slaapkamers 2
  • Aantal woonlagen 3 woonlagen
  • Overige inpandige ruimte 2m2

Energie & installatie

  • Energielabel F
  • Isolatie Gedeeltelijk dubbel glas
  • Verwarming Cv ketel
  • Warm water Cv ketel
  • C.v.-ketel bouwjaar 2023
  • Energie einddatum 27-03-2028

Bergruimte

  • Schuur / berging Aangebouwd hout

Parkeergelegenheid

  • Parkeerfaciliteiten Openbaar parkeren
  • Garage Geen garage

Dak

  • Soort dak Zadeldak

Overig

  • Onderhoud binnen Redelijk tot goed
  • Onderhoud buiten Matig tot redelijk
  • Permanente bewoning Ja
  • Huidig gebruik Woonruimte
  • Huidige bestemming Woonruimte

Voorzieningen

  • Voorzieningen Natuurlijke ventilatie

Buitenruimte

  • Hoofdtuin ACHTERTUIN
  • Oppervlakte hoofdtuin 52m2
  • Ligging hoofdtuin ZUIDOOST
  • Kwaliteit tuin Verzorgd

Kadastrale gegevens

  • Perceelnummer 4945
  • Perceeloppervlakte 109 m2
Meer kenmerken
Huis verkopen?

Maak een afspraak voor een gratis adviesgesprek met onze makelaars en ontdek jouw mogelijkheden.

Maak direct een afspraak

In de buurt

Geïnteresseerd?

Bel met Van Herk makelaars te Capelle aan den IJssel

shape

Stuur een bericht

* Maximaal 255 tekens
privacyverklaring