Rotterdam

Blaak  223

€ 375.000,- k.k.

Omschrijving

Stijlvol appartement en vernieuwde afwerking midden in het hart van Rotterdam! Wonen aan de Blaak betekent wonen op een plek waar de stad nooit stilstaat. Tussen de Markthal, de Oude Haven en de kubuswoningen ligt dit vernieuwde 3-kamerappartement van ca. 70 m². Gelegen op de vierde verdieping van een verzorgd complex met lift, een eigen berging in de onderbouw en de…

Stijlvol appartement en vernieuwde afwerking midden in het hart van Rotterdam!

Wonen aan de Blaak betekent wonen op een plek waar de stad nooit stilstaat. Tussen de Markthal, de Oude Haven en de kubuswoningen ligt dit vernieuwde 3-kamerappartement van ca. 70 m². Gelegen op de vierde verdieping van een verzorgd complex met lift, een eigen berging in de onderbouw en de mogelijkheid tot het aankopen van een parkeerplaats (€ 35.000,- k.k.). Een eigentijds appartement met alle gemakken, maar ook de rust en het comfort die je midden in de stad niet snel verwacht.

GROTENDEELS GERENOVEERD EN HELEMAAL KLAAR VOOR DE TOEKOMST
In de afgelopen jaren is veel gerenoveerd. De badkamer, het toilet, de keuken, het stuc- en schilderwerk, de plafonds, de elektra en de vloer – alles is vernieuwd met oog voor stijl en kwaliteit. De keuken is voorzien van moderne inbouwapparatuur, waaronder een combi-oven en inductiekookplaat, perfect geïntegreerd in een strakke opstelling. De nieuwe PVC-vloer loopt naadloos door het appartement en zorgt voor een rustige, moderne basis. In de hal zijn op maat gemaakte inbouwkasten geplaatst, wat zorgt voor extra bergruimte en een nette uitstraling.

LICHT, LUCHT EN LEEFRUIMTE
De woonkamer is ruim opgezet en heeft dankzij de grote raampartijen een prettige lichtinval. Vanuit hier stap je het balkon op dat op het westen ligt, een heerlijke plek om te ontspannen met uitzicht over de stad en de avondzon op je gezicht. De open verbinding met de keuken maakt het een ideale ruimte voor wie graag kookt én gezelschap houdt. De twee slaapkamers liggen rustig aan de galerijzijde en zijn uitstekend in te delen als hoofdslaapkamer, werkruimte of logeerkamer.

MIDDEN IN HET KLOPPEND HART VAN ROTTERDAM
De ligging is zonder twijfel één van de grootste troeven. Station Blaak (trein, metro en tram) ligt direct aan de overkant, waardoor je binnen enkele minuten de hele stad én daarbuiten bereikt. De Markthal, talloze restaurants, supermarkten, winkels en gezellige terrassen liggen letterlijk om de hoek. Wie houdt van de dynamiek van Rotterdam, maar thuis rust en comfort zoekt, vindt hier de perfecte balans.

KENMERKEN:
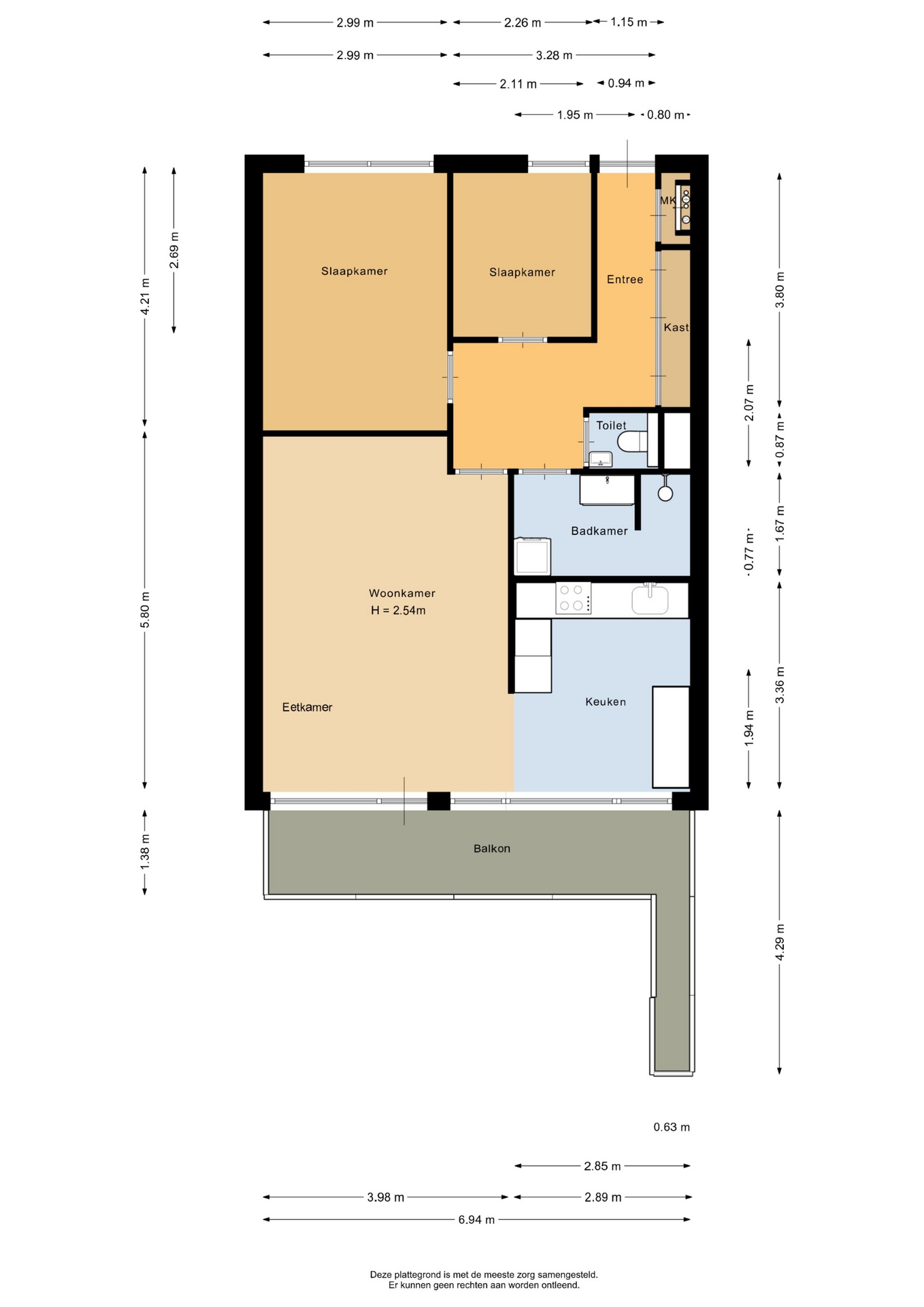
-Woonoppervlakte ca. 70 m²;
-Bouwjaar 1981;
-Eigen grond;
-Energielabel C;
-Actieve VvE met een maandelijkse bijdrage van circa € 398,- en voor de parkeerplaats €29,- (inclusief voorschot stookkosten)
-Verwarming en warm water middels stadsverwarming;
-Berging in de onderbouw;
-Meubels ter overname;
-Parkeerplaats separaat te koop voor € 35.000,- k.k.;
-Oplevering in overleg.

INTERESSE? MAAK DAN SNEL EEN AFSPRAAK!
Ons advies is om bij het kopen van jouw nieuwe woning jouw eigen NVM makelaar mee te nemen.

TOELICHTINGSCLAUSULE NEN2580
De Meetinstructie is gebaseerd op de NEN2580. De Meetinstructie is bedoeld om een meer eenduidige manier van meten toe te passen voor het geven van een indicatie van de gebruiksoppervlakte. De Meetinstructie sluit verschillen in meetuitkomsten niet volledig uit, door bijvoorbeeld interpretatieverschillen, afrondingen of beperkingen bij het uitvoeren van de meting.

KOOPOVEREENKOMST PAS RECHTSGELDIG NA ONDERTEKENING
Een mondelinge overeenstemming tussen de particuliere verkoper en de particuliere koper is niet rechtsgeldig. Met andere woorden: er is geen koop. Er is pas sprake van een rechtsgeldige koop als de particuliere verkoper en de particuliere koper de koopovereenkomst hebben ondertekend. Dit vloeit voort uit artikel 7:2 Burgerlijk Wetboek. Een bevestiging van de mondelinge overeenstemming per e-mail of een toegestuurd concept van de koopovereenkomst wordt overigens niet gezien als een 'ondertekende koopovereenkomst'

“Deze informatie is door ons met de nodige zorgvuldigheid samengesteld. Onzerzijds wordt echter geen enkele aansprakelijkheid aanvaard voor enige onvolledigheid, onjuistheid of anderszins, dan wel de gevolgen daarvan. Alle opgegeven maten en oppervlakten zijn indicatief.”

Kenmerken

Basiskenmerken

  • Status Verkocht onder voorbehoud
  • Koopsom € 375.000 k.k.
  • Woonoppervlakte ca. 70 m2
  • Aantal slaapkamers 2
  • Bouwjaar 1981

Overdracht

  • Aanvaarding In overleg

Bouwvorm & onderhoud

  • Bouwjaar 1981
  • Soort bouw woonhuis
  • Ligging Aan drukke weg, in centrum

Oppervlakte & inhoud

  • Gebruiksoppervlakte 70m2
  • Inhoud 219m3
  • Aantal kamers 3
  • Aantal slaapkamers 2
  • Aantal woonlagen 1 woonlagen

Energie & installatie

  • Energielabel C
  • Isolatie Dakisolatie, muurisolatie, vloerisolatie, dubbel glas
  • Verwarming Stadsverwarming
  • Warm water Centrale voorziening
  • Energie einddatum 17-06-2035

Bergruimte

  • Schuur / berging Box
  • Voorzieningen Voorzien van elektra

Parkeergelegenheid

  • Parkeerfaciliteiten Betaald parkeren, parkeervergunningen, op afgesloten terrein
  • Garage Parkeerkelder, parkeerplaats

Dak

  • Soort dak Plat dak

Overig

  • Onderhoud binnen Goed
  • Onderhoud buiten Goed
  • Bijzonderheden Gedeeltelijk gestoffeerd
  • Permanente bewoning Ja
  • Huidig gebruik Woonruimte
  • Huidige bestemming Woonruimte

Voorzieningen

  • Voorzieningen Mechanische ventilatie, tv kabel, lift

Kadastrale gegevens

  • Perceelnummer 1047
Meer kenmerken
Huis verkopen?

Maak een afspraak voor een gratis adviesgesprek met onze makelaars en ontdek jouw mogelijkheden.

Maak direct een afspraak

In de buurt