Spijkenisse

Blauwgras  9

€ 387.500,- k.k.

Omschrijving

INSTAPKLAAR HUIS MET COMFORT EN SFEER Ben je op zoek naar een instapklaar huis waar je direct kunt wonen zonder te klussen? Dan zit je hier goed. Deze keurig verzorgde tussenwoning combineert comfort met een sfeervolle afwerking. Denk aan een plavuizen vloer met vloerverwarming op de begane grond, een moderne elektrische haard als blikvanger en grotendeels kunststof…

INSTAPKLAAR HUIS MET COMFORT EN SFEER
Ben je op zoek naar een instapklaar huis waar je direct kunt wonen zonder te klussen? Dan zit je hier goed. Deze keurig verzorgde tussenwoning combineert comfort met een sfeervolle afwerking. Denk aan een plavuizen vloer met vloerverwarming op de begane grond, een moderne elektrische haard als blikvanger en grotendeels kunststof kozijnen met HR++ glas uit 2024.

Ook op het gebied van duurzaamheid zit je hier goed met energielabel A en 6 zonnepanelen. De tuin op het zuidoosten maakt het plaatje compleet: een fijne buitenruimte waar je al vroeg in het seizoen van de zon geniet. De moderne overkapping zorgt ervoor dat je hier vrijwel het hele jaar door comfortabel buiten zit. Tel daarbij de multifunctionele ruimte aan de voorzijde op en je hebt een huis dat perfect aansluit bij starters en jonge doorstromers.

LICHTE WOONKAMER EN PRAKTISCHE INDELING
Je komt binnen in de hal met toegang tot het toilet, de trapopgang en de woonkamer. Wat direct opvalt is de nette afwerking en het gevoel van ruimte. De woonkamer is tuingericht en heerlijk licht dankzij de grote raampartijen.

Er is voldoende plek voor een ruime zithoek en een gezellige eethoek. De elektrische haard zorgt voor extra sfeer en maakt deze ruimte echt af. De vloerverwarming in combinatie met de plavuizen vloer zorgt voor een aangenaam wooncomfort.

Aan de voorzijde van het huis ligt de keuken. Deze is praktisch ingericht en voorzien van de benodigde inbouwapparatuur. Door de ligging aan de straatzijde heb je hier prettig licht en contact met buiten.

Aan de voorzijde van het huis bevindt zich de voormalige berging, die momenteel in gebruik is als trimsalon. Deze ruimte is multifunctioneel en leent zich perfect voor werken aan huis, een praktijkruimte of extra opslag.

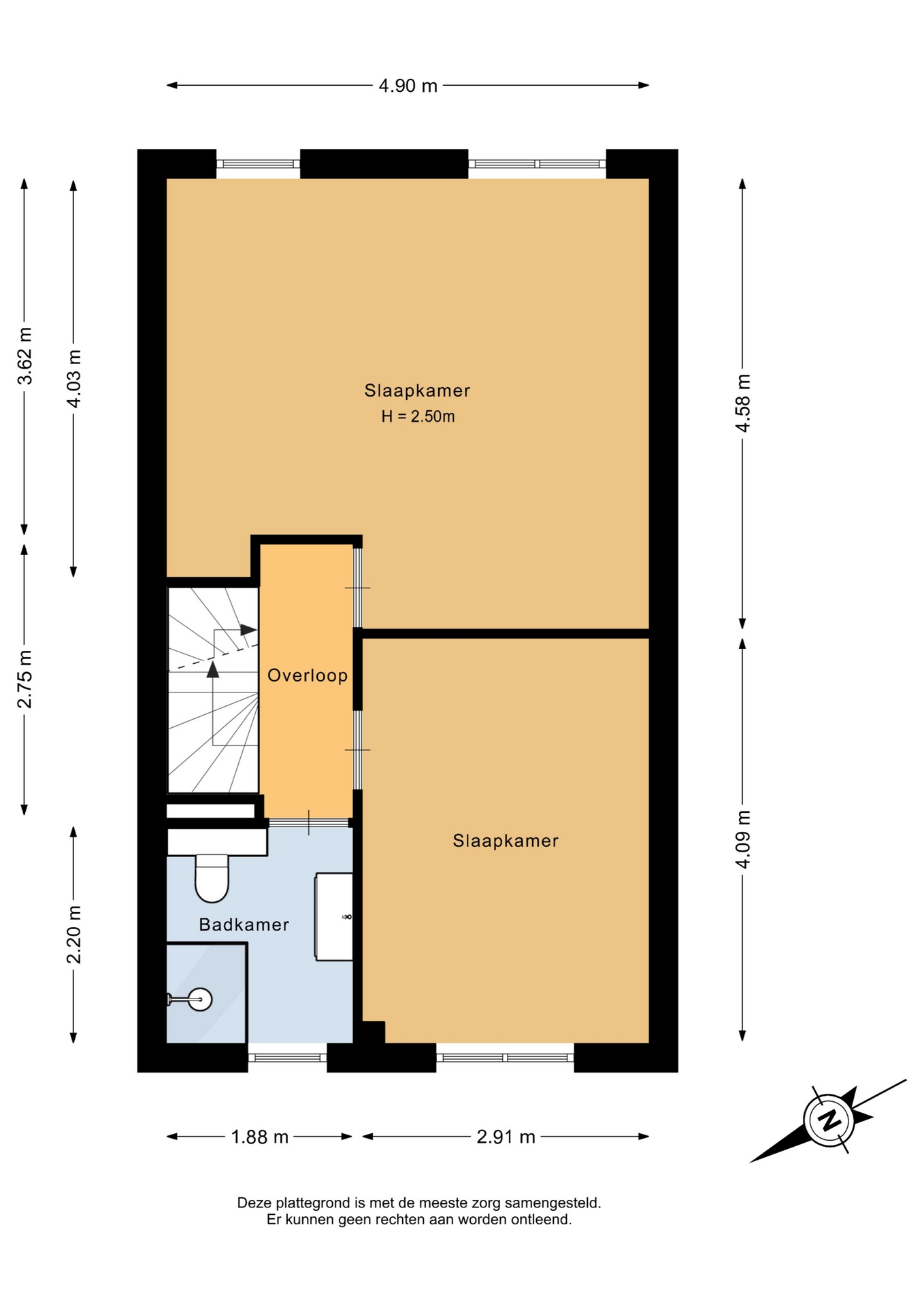
DRIE SLAAPKAMERS EN COMPLETE VERDIEPINGEN
Op de eerste verdieping bevinden zich twee ruime slaapkamers (voorheen 3). De grootste slaapkamer ligt aan de achterzijde en biedt volop ruimte voor een groot bed en kasten. De tweede slaapkamer is eveneens goed van formaat en flexibel in te richten.

De badkamer is netjes en compleet uitgevoerd met een douche, wastafelmeubel en toilet. Alles wat je nodig hebt is aanwezig en functioneert prima.

De tweede verdieping verrast met een ruime derde slaapkamer. Dankzij het dakraam is deze kamer lekker licht en daardoor ideaal als extra slaapkamer, werkruimte of hobbykamer. Op de overloop is ruimte voor de wasmachine en extra bergruimte. Daarnaast is er nog een vliering aanwezig voor het opbergen van spullen.

ZONNIGE TUIN MET LUXE OVERKAPPING
De achtertuin is gelegen op het zuidoosten en is verzorgd en onderhoudsvriendelijk aangelegd. Hier kun je al vroeg op de dag genieten van de zon. De moderne overkapping is echt een pluspunt en vormt een verlengstuk van je leefruimte.

Of je nu wilt loungen, dineren of gewoon even ontspannen: deze plek biedt het allemaal. Achterin de tuin staat een berging en er is een handige achterom aanwezig.

RUSTIGE EN FIJNE WOONOMGEVING
Het huis ligt aan een rustige straat in een prettige woonwijk in Spijkenisse. De omgeving is kindvriendelijk en voorzien van alle dagelijkse gemakken. Denk aan winkels, scholen en sportvoorzieningen op korte afstand.

Daarnaast is de bereikbaarheid goed, zowel met de auto als het openbaar vervoer. Binnen korte tijd ben je onderweg richting Rotterdam en omliggende plaatsen. Ook zijn er in de buurt voldoende groenvoorzieningen en wandelmogelijkheden.

DE BELANGRIJKSTE KENEMRKEN OP EEN RIJ
- Woonoppervlakte: 113 m²
- Perceeloppervlakte: 114 m²
- Bouwjaar: 1984
- Grotendeels kunststof kozijnen met HR++ glas (2024)
- Recent vernieuwde bitumen dakbedekkking
- 6 zonnepanelen
- Moderne tuin met overkapping
- Sfeervolle elektrische haard
- Keurig verzorgd en instapklaar
- Energielabel: A
- Aanvaarding: In overleg.

Toelichtingsclausule NEN2580:
De Meetinstructie is gebaseerd op de NEN2580. De Meetinstructie is bedoeld om een meer eenduidige manier van meten toe te passen voor het geven van een indicatie van de gebruiksoppervlakte. De Meetinstructie sluit verschillen in meetuitkomsten niet volledig uit, door bijvoorbeeld interpretatieverschillen, afrondingen of beperkingen bij het uitvoeren van de meting.

“Deze informatie is door ons met de nodige zorgvuldigheid samengesteld. Onzerzijds wordt echter geen enkele aansprakelijkheid aanvaard voor enige onvolledigheid, onjuistheid of anderszins, dan wel de gevolgen daarvan. Alle opgegeven maten en oppervlakten zijn indicatief.”

Koopovereenkomst pas rechtsgeldig na ondertekening:
Een mondelinge overeenstemming tussen de particuliere verkoper en de particuliere koper is niet rechtsgeldig. Met andere woorden: er is geen koop. Er is pas sprake van een rechtsgeldige koop als de particuliere verkoper en de particuliere koper de koopovereenkomst hebben ondertekend. Dit vloeit voort uit artikel 7:2 Burgerlijk Wetboek. Een bevestiging van de mondelinge overeenstemming per e-mail of een toegestuurd concept van de koopovereenkomst wordt overigens niet gezien als een 'ondertekende koopovereenkomst'.

Kenmerken

Basiskenmerken

  • Status Verkocht onder voorbehoud
  • Koopsom € 387.500 k.k.
  • Woonoppervlakte ca. 113 m2
  • Aantal slaapkamers 3
  • Bouwjaar 1984

Overdracht

  • Aanvaarding In overleg

Bouwvorm & onderhoud

  • Soort object Tussenwoning
  • Soort woning Eengezinswoning
  • Bouwjaar 1984
  • Soort bouw woonhuis
  • Ligging Aan rustige weg, in woonwijk, open ligging

Oppervlakte & inhoud

  • Gebruiksoppervlakte 113m2
  • Perceeloppervlakte 114m2
  • Inhoud 395m3
  • Aantal kamers 4
  • Aantal slaapkamers 3
  • Aantal woonlagen 3 woonlagen

Energie & installatie

  • Energielabel A
  • Isolatie Dakisolatie, muurisolatie, vloerisolatie, dubbel glas
  • Verwarming Cv ketel, vloerverwarming gedeeltelijk
  • Warm water Cv ketel
  • C.v.-ketel type GAS
  • C.v.-ketel bouwjaar 2012
  • Energie einddatum 26-03-2036

Bergruimte

  • Schuur / berging Vrijstaand hout
  • Voorzieningen Voorzien van elektra

Parkeergelegenheid

  • Parkeerfaciliteiten Openbaar parkeren
  • Garage Geen garage

Dak

  • Soort dak Samengesteld dak

Overig

  • Onderhoud binnen Goed tot uitstekend
  • Onderhoud buiten Goed tot uitstekend
  • Bijzonderheden Gedeeltelijk gestoffeerd
  • Permanente bewoning Ja
  • Huidig gebruik Woonruimte
  • Huidige bestemming Woonruimte

Voorzieningen

  • Voorzieningen Mechanische ventilatie, rolluiken, tv kabel, buitenzonwering, dakraam, glasvezel kabel, zonnepanelen, natuurlijke ventilatie

Buitenruimte

  • Hoofdtuin ACHTERTUIN
  • Oppervlakte hoofdtuin 48m2
  • Ligging hoofdtuin ZUIDOOST
  • Kwaliteit tuin Verzorgd

Kadastrale gegevens

  • Perceelnummer 3066
  • Perceeloppervlakte 114 m2
Meer kenmerken
Huis verkopen?

Maak een afspraak voor een gratis adviesgesprek met onze makelaars en ontdek jouw mogelijkheden.

Maak direct een afspraak

In de buurt