Rotterdam

Boomheide  1

€ 599.000,- k.k.

Omschrijving

*** NIEUW IN DE VERKOOP *** ONTDEK HET ROYALE HERENHUIS AAN DE BOOMHEIDE 1, WELKE IS GELEGEN OP EIGEN GROND, MET 6 SLAAPKAMERS, EEN WOONOPPERVLAKTE VAN 179 M² EN VRIJ UITZICHT. GELEGEN IN EEN GELIEFDE WIJK NABIJ RECREATIEGEBIED DE ZEVENHUIZERPLAS, BIEDT DEZE WONING RUIMTE, RUST EN COMFORT. MODERN WOONCOMFORT IN EEN GROENE EN RUSTIGE OMGEVING De begane grond ligt in een…

*** NIEUW IN DE VERKOOP ***
ONTDEK HET ROYALE HERENHUIS AAN DE BOOMHEIDE 1, WELKE IS GELEGEN OP EIGEN GROND, MET 6 SLAAPKAMERS, EEN WOONOPPERVLAKTE VAN 179 M² EN VRIJ UITZICHT. GELEGEN IN EEN GELIEFDE WIJK NABIJ RECREATIEGEBIED DE ZEVENHUIZERPLAS, BIEDT DEZE WONING RUIMTE, RUST EN COMFORT.

MODERN WOONCOMFORT IN EEN GROENE EN RUSTIGE OMGEVING
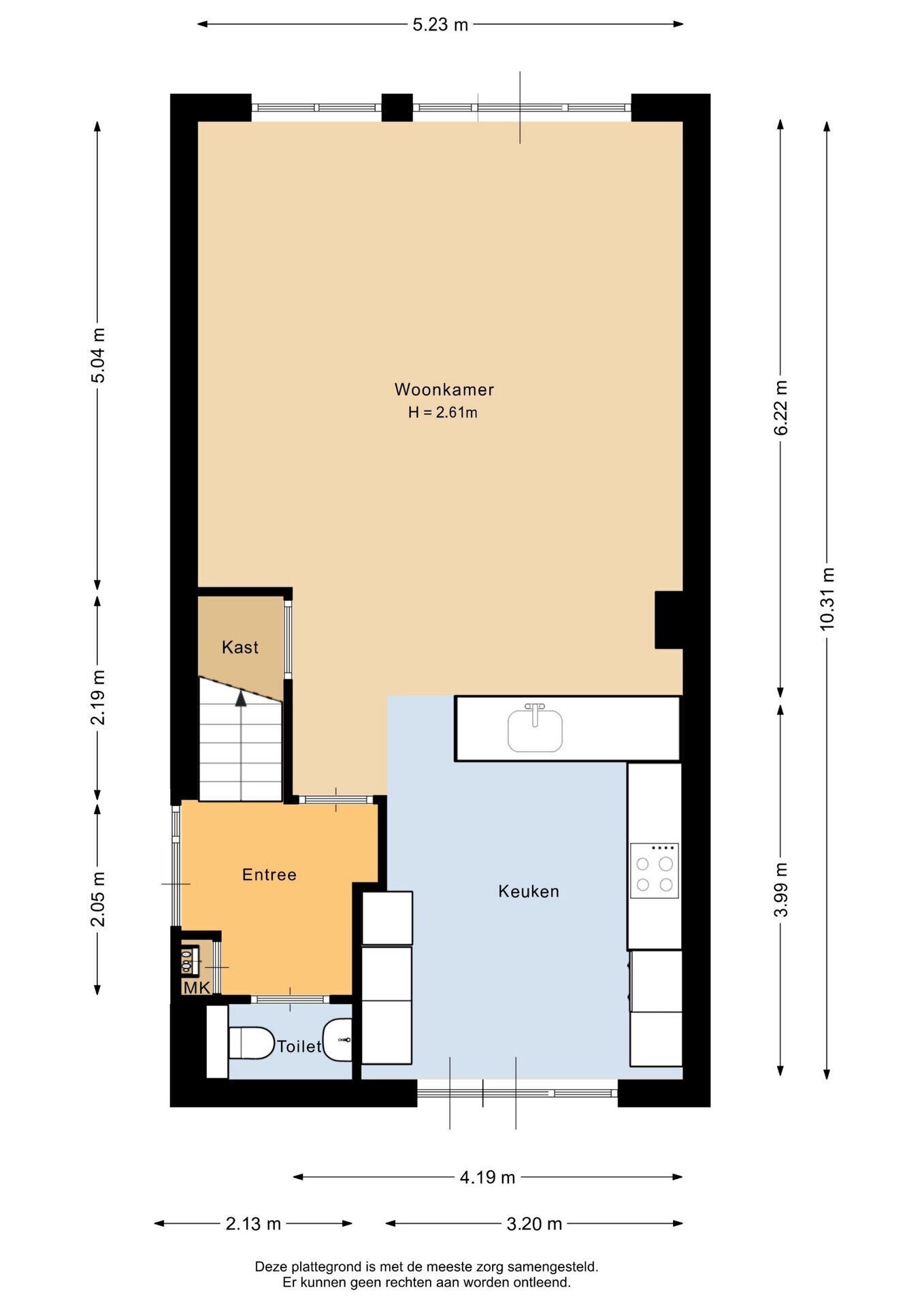
De begane grond ligt in een rustige, groene omgeving. Vanuit de woonkamer en keuken geniet je van het uitzicht op zowel de voor- als achtertuin. Beide tuinen zijn ruim en naar eigen smaak in te richten. Zin in de zon? Neem plaats in de voortuin, terwijl je in de achtertuin juist de verkoelende schaduw vindt. De lichte, royale woonkamer loopt naadloos over in de in 2023 vernieuwde keuken, die is uitgerust met diverse inbouwapparatuur, waaronder een vaatwasser, kookplaat met afzuigkap en een combi-oven. Bij de entree bevindt zich nog het toilet met fontein en de meterkast.

ZES SLAAPKAMERS VERDEELD OVER TWEE VERDIEPINGEN
Deze ruime woning is ideaal voor (grote) gezinnen en thuiswerkers. Op de eerste verdieping bevinden zich vier comfortabele, goed ingedeelde slaapkamers. De moderne badkamer is in 2018 vernieuwd en beschikt over een inloopdouche, wastafelmeubel en toilet. Op de tweede verdieping zijn nog twee volwaardige slaapkamers te vinden, evenals een praktische wasruimte met de opstelling van de cv-ketel (2013). Extra bergruimte nodig? De vliering boven de tweede verdieping biedt daarvoor een uitkomst.

GROEN WONEN IN EEN KINDVRIENDELIJKE BUURT
De ligging aan een rustige straat in een beschutte woonwijk maakt dit huis ideaal voor grote gezinnen. Kinderen spelen veilig in de buurt en scholen, speeltuinen en sportfaciliteiten zijn allemaal in de directe omgeving te vinden. Winkels, openbaar vervoer en uitvalswegen zijn goed bereikbaar, terwijl je toch kunt genieten van een rustige en groene leefomgeving.

Boonheide 1 ligt in de deelgemeente Hillegersberg, in de wijk Ommoord, een van de rustigere woonwijken aan de oostkant van Rotterdam. Deze wijk kenmerkt zich door brede lanen, veel groen en een overzichtelijke opzet, waardoor het geliefd is bij gezinnen en jonge doorstromers. Je woont hier dichtbij recreatiegebied Zevenhuizerplas, ideaal voor een wandeling, fietstocht of een dagje strand. Ook het Prins Alexanderplein, met zijn ruime winkelaanbod, ligt op korte afstand.
Met station Rotterdam Alexander, metrohaltes zoals Hesseplaats en goede busverbindingen in de buurt, ben je zo in het centrum van Rotterdam of onderweg richting Utrecht of Den Haag. Ook zit je zo op de A20 of A16. Voor de dagelijkse boodschappen kun je terecht in winkelcentrum Hesseplaats. Dankzij de vele scholen, speeltuinen en sportclubs is Ommoord een wijk waar je met plezier kunt wonen én opgroeien.

VERKOPERS AAN HET WOORD
Na hier 23 jaar met veel plezier met ons grote gezin te hebben gewoond is het nu helaas tijd om kleiner te gaan wonen. We hebben genoten van de ruimte in het huis, de mooie omgeving en de vele faciliteiten in Ommoord.

BIJZONDERHEDEN:
- Bouwjaar 1979;
- De woning is gelegen op EIGEN GROND;
- 179 m² woonoppervlakte;
- 164 m² perceeloppervlakte;
- Zowel een voor- als achtertuin verdeeld over 110 m²;
- 4 slaapkamers op de 1e verdieping en 2 slaapkamer op 2e verdieping;
- Moderne keuken en badkamer;
- De dakpannen zijn recent vervangen;
- Spouwmuurisolatie is toegebracht;
- Verwarming en warm water middels C.V.-ketel;
- Energielabel C, geldig tot 15-07-2035 ;
- Oplevering in overleg.

INTERESSE? MAAK DAN SNEL EEN AFSPRAAK!
Ons advies is om bij het kopen van je nieuwe huis je eigen NVM-makelaar mee te nemen.

TOELICHTINGSCLAUSULE NEN2580
De Meetinstructie is gebaseerd op de NEN2580. De Meetinstructie is bedoeld om een meer eenduidige manier van meten toe te passen voor het geven van een indicatie van de gebruiksoppervlakte. De Meetinstructie sluit verschillen in meetuitkomsten niet volledig uit, door bijvoorbeeld interpretatieverschillen, afrondingen of beperkingen bij het uitvoeren van de meting.

KOOPOVEREENKOMST PAS RECHTSGELDIG NA ONDERTEKENING
Een mondelinge overeenstemming tussen de particuliere verkoper en de particuliere koper is niet rechtsgeldig. Met andere woorden: er is geen koop. Er is pas sprake van een rechtsgeldige koop als de particuliere verkoper en de particuliere koper de koopovereenkomst hebben ondertekend. Dit vloeit voort uit artikel 7:2 Burgerlijk Wetboek. Een bevestiging van de mondelinge overeenstemming per e-mail of een toegestuurd concept van de koopovereenkomst wordt overigens niet gezien als een 'ondertekende koopovereenkomst'

“Deze informatie is door ons met de nodige zorgvuldigheid samengesteld. Onzerzijds wordt echter geen enkele aansprakelijkheid aanvaard voor enige onvolledigheid, onjuistheid of anderszins, dan wel de gevolgen daarvan. Alle opgegeven maten en oppervlakten zijn indicatief.”

Kenmerken

Basiskenmerken

  • Status Beschikbaar
  • Koopsom € 599.000 k.k.
  • Woonoppervlakte ca. 179 m2
  • Aantal slaapkamers 6
  • Bouwjaar 1979

Overdracht

  • Aanvaarding In overleg

Bouwvorm & onderhoud

  • Soort object Tussenwoning
  • Soort woning Eengezinswoning
  • Bouwjaar 1979
  • Soort bouw woonhuis
  • Ligging Aan rustige weg, in woonwijk

Oppervlakte & inhoud

  • Gebruiksoppervlakte 179m2
  • Perceeloppervlakte 164m2
  • Inhoud 622m3
  • Aantal kamers 7
  • Aantal slaapkamers 6
  • Aantal woonlagen 4 woonlagen
  • Overige inpandige ruimte 5m2

Energie & installatie

  • Energielabel C
  • Isolatie Muurisolatie, hr glas
  • Verwarming Cv ketel
  • Warm water Cv ketel
  • C.v.-ketel type GAS
  • C.v.-ketel bouwjaar 2013
  • Energie einddatum 19-12-2030

Bergruimte

  • Schuur / berging Vrijstaand steen

Parkeergelegenheid

  • Parkeerfaciliteiten Openbaar parkeren
  • Garage Geen garage

Dak

  • Soort dak Zadeldak

Overig

  • Onderhoud binnen Redelijk tot goed
  • Onderhoud buiten Redelijk tot goed
  • Bijzonderheden Gedeeltelijk gestoffeerd
  • Permanente bewoning Ja
  • Huidig gebruik Woonruimte
  • Huidige bestemming Woonruimte

Voorzieningen

  • Voorzieningen Mechanische ventilatie, tv kabel, dakraam

Buitenruimte

  • Hoofdtuin ACHTERTUIN
  • Oppervlakte hoofdtuin 68m2
  • Ligging hoofdtuin NOORD
  • Kwaliteit tuin Normaal

Kadastrale gegevens

  • Perceelnummer 3594
  • Perceeloppervlakte 164 m2
Meer kenmerken
Huis verkopen?

Maak een afspraak voor een gratis adviesgesprek met onze makelaars en ontdek jouw mogelijkheden.

Maak direct een afspraak

In de buurt

Geïnteresseerd?

Bel met Van Herk makelaars te Capelle aan den IJssel

shape

Stuur een bericht

* Maximaal 255 tekens
privacyverklaring