Rotterdam

Clazina Kouwenbergzoom  177

€ 575.000,- k.k.

Omschrijving

- NIEUW IN DE VERKOOP - OP EEN CENTRALE, DOCH RUSTIGE LOCATIE IN DE WIJK PRINSENLAND IS DEZE FAMILIEWONING GELEGEN. DE WONING, GELEGEN OP EIGEN GROND, HEEFT VRIJ UITZICHT EN IS AAN DE RINGVAARTPLAS GELEGEN. VERDER ZIJN ER 3 SLAAPKAMERS, EEN ZONNIGE TUIN EN EEN RUIME GARAGE. ZEKER EEN BEZICHTIGING WAARD! HEERLIJK FAMILIEHUIS: De woning beschikt over 109 m²…

- NIEUW IN DE VERKOOP -
OP EEN CENTRALE, DOCH RUSTIGE LOCATIE IN DE WIJK PRINSENLAND IS DEZE FAMILIEWONING GELEGEN. DE WONING, GELEGEN OP EIGEN GROND, HEEFT VRIJ UITZICHT EN IS AAN DE RINGVAARTPLAS GELEGEN. VERDER ZIJN ER 3 SLAAPKAMERS, EEN ZONNIGE TUIN EN EEN RUIME GARAGE. ZEKER EEN BEZICHTIGING WAARD!

HEERLIJK FAMILIEHUIS:
De woning beschikt over 109 m² woonoppervlakte wat verdeeld is over 3 woonlagen. Op de begane grond is een ruime entree/hal welke toegang verleent tot de woonkamer, een kast onder de trap, het toilet en de trapopgang naar de eerste verdieping. De tuingerichte woonkamer ligt aan de achterzijde van de woning en biedt middels de schuifpui een fraai zicht op de tuin. De keuken ligt aan de voorzijde en beschikt over diverse inbouwapparatuur.

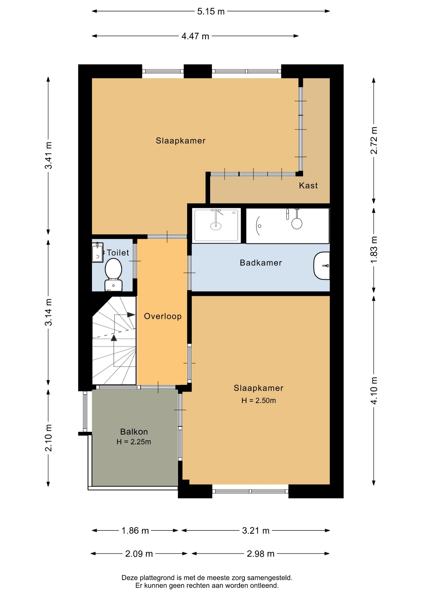
Op de eerste verdieping zijn 2 slaapkamers, een inpandige badkamer en separaat toilet. De slaapkamer aan de achterzijde is voorzien van een vaste kastenwand. De slaapkamer aan de voorzijde biedt weer toegang tot het balkon, welke gelegen is op het zuidoosten. Vanaf hier is er een fraai uitzicht over de Ringvaartplas. De volledig betegelde badkamer beschikt over een ligbad, douchecabine en een wastafel. Nog een verdieping hoger is een ruime voorzolder met een kast en opstelling voor de wasmachine, droger en CV-ketel (2014). Hier is een ruime 3e slaapkamer te vinden.

ZONNIGE TUIN MET GARAGE:
De tuin maakt het plaatje compleet. De woning beschikt over een ruime voor,- zij,- en achtertuin waardoor er altijd een plekje in de zon of schaduw te vinden is. De achtertuin is gelegen op het zuidwesten en is voorzien van een grote garage. De garage is zowel middels een loopdeur vanuit de tuin, als een elektrische deur vanaf de straatkant toegankelijk. Ideaal voor het parkeren of uitladen van de auto. Verder beschikt de tuin over een elektrisch zonnescherm en een buitenkraan ook beschikt de voortuin over een buitenkraan.

FIJNE EN RUSTIGE WOONOMGEVING:
De woning ligt in een rustige woonstraat in de geliefde wijk Prinsenland Rotterdam. Hier woon je in een prettige mix van stad en natuur. De woning is direct gelegen aan een groenstrook met de Ringvaartplas. Binnen enkele minuten sta je bij winkelcentrum Prinsenland en Het Lage Land, het Kralingse Bos en Kralingse plas of het Prinsenpark. Met de fiets of het OV ben je zo in het centrum van Rotterdam. Scholen, kinderopvang en sportvoorzieningen bevinden zich in de directe omgeving, evenals goede uitvalswegen naar de A16 en A20. Er is voldoende parkeergelegenheid en er is volop groen in de buurt, ideaal voor gezinnen en rustzoekers.

VERKOPER AAN HET WOORD:
Wat het wonen in ons huis zo uniek maakt is dat wij de voordelen van de stad Rotterdam hebben met alle faciliteiten die daarbij horen. We wonen echter in een rustige groene buitenwijk waardoor je geen last hebt van de hectiek van de stad. We leven echt met de seizoenen. Voorts hebben we een prettig contact met de buren. We overlopen elkaar niet maar staan in geval van nood voor elkaar klaar en hebben een buurtapp. Een paar minuten met de metro en je bent in het centrum van de stad, rij door en je staat op het strand van Hoek van Holland. De andere kant op met metro betekent in een paar minuten Winkelcentrum Alexandrium, rij door en je bent op het strand van Nesselande.

BIJZONDERHEDEN:
- Bouwjaar 1991;
- 109 m² woonoppervlakte;
- Gelegen op 180 m² perceeloppervlakte EIGEN GROND;
- 3 ruime slaapkamers op de bovenverdiepingen;
- Woonkamer voorzien van een Boley open haard die 80% van de warmte teruggeeft aan de kamer;
- Begane grond voorzien van vloerverwarming (behalve in het toilet);
- Zonnige achtertuin op het zuidwesten;
- Garage aanwezig in de achtertuin met een elektrische deur;
- Het buitenschilderwerk is recent uitgevoerd;
- Vrij uitzicht over de Ringvaartplas;
- Ideale woonomgeving met groen en winkels op loopafstand;
- Volledig geïsoleerd;
- Energielabel C, welke geldig is tot 10-07-2035;
- Oplevering in overleg

INTERESSE? MAAK DAN SNEL EEN AFSPRAAK!
Ons advies is om bij het kopen van je nieuwe huis je eigen NVM-makelaar mee te nemen.

TOELICHTINGSCLAUSULE NEN2580
De Meetinstructie is gebaseerd op de NEN2580. De Meetinstructie is bedoeld om een meer eenduidige manier van meten toe te passen voor het geven van een indicatie van de gebruiksoppervlakte. De Meetinstructie sluit verschillen in meetuitkomsten niet volledig uit, door bijvoorbeeld interpretatieverschillen, afrondingen of beperkingen bij het uitvoeren van de meting.

KOOPOVEREENKOMST PAS RECHTSGELDIG NA ONDERTEKENING
Een mondelinge overeenstemming tussen de particuliere verkoper en de particuliere koper is niet rechtsgeldig. Met andere woorden: er is geen koop. Er is pas sprake van een rechtsgeldige koop als de particuliere verkoper en de particuliere koper de koopovereenkomst hebben ondertekend. Dit vloeit voort uit artikel 7:2 Burgerlijk Wetboek. Een bevestiging van de mondelinge overeenstemming per e-mail of een toegestuurd concept van de koopovereenkomst wordt overigens niet gezien als een 'ondertekende koopovereenkomst'

“Deze informatie is door ons met de nodige zorgvuldigheid samengesteld. Onzerzijds wordt echter geen enkele aansprakelijkheid aanvaard voor enige onvolledigheid, onjuistheid of anderszins, dan wel de gevolgen daarvan. Alle opgegeven maten en oppervlakten zijn indicatief.”

Kenmerken

Basiskenmerken

  • Status Verkocht onder voorbehoud
  • Koopsom € 575.000 k.k.
  • Woonoppervlakte ca. 107 m2
  • Aantal slaapkamers 3
  • Bouwjaar 1991

Overdracht

  • Aanvaarding In overleg

Bouwvorm & onderhoud

  • Soort object Hoekwoning
  • Soort woning Eengezinswoning
  • Bouwjaar 1991
  • Soort bouw woonhuis
  • Ligging Aan rustige weg, in woonwijk, vrij uitzicht

Oppervlakte & inhoud

  • Gebruiksoppervlakte 107m2
  • Perceeloppervlakte 180m2
  • Inhoud 379m3
  • Aantal kamers 4
  • Aantal slaapkamers 3
  • Aantal woonlagen 3 woonlagen

Energie & installatie

  • Energielabel C
  • Isolatie Dakisolatie, muurisolatie, vloerisolatie, dubbel glas, volledig geisoleerd
  • Verwarming Cv ketel
  • Warm water Cv ketel
  • C.v.-ketel type GAS
  • C.v.-ketel bouwjaar 2014
  • Energie einddatum 10-07-2035

Parkeergelegenheid

  • Parkeerfaciliteiten Openbaar parkeren
  • Garage Vrijstaand steen

Dak

  • Soort dak Zadeldak

Overig

  • Onderhoud binnen Goed
  • Onderhoud buiten Goed
  • Bijzonderheden Gedeeltelijk gestoffeerd
  • Permanente bewoning Ja
  • Huidig gebruik Woonruimte
  • Huidige bestemming Woonruimte

Voorzieningen

  • Voorzieningen Mechanische ventilatie, tv kabel, buitenzonwering, dakraam, natuurlijke ventilatie

Buitenruimte

  • Hoofdtuin ACHTERTUIN
  • Oppervlakte hoofdtuin 65m2
  • Ligging hoofdtuin ZUIDWEST
  • Kwaliteit tuin Normaal

Kadastrale gegevens

  • Perceelnummer 4142
  • Perceeloppervlakte 180 m2
Meer kenmerken
Huis verkopen?

Maak een afspraak voor een gratis adviesgesprek met onze makelaars en ontdek jouw mogelijkheden.

Maak direct een afspraak

In de buurt