Capelle Aan Den Ijssel
Coen Botrede 6
€ 465.000,- k.k.
Omschrijving
FIJN WONEN IN EEN RUSTIGE EN GROENE WOONOMGEVING Aan de Coen Botrede 6 in Capelle aan den IJssel staat deze fijne eengezinswoning, gelegen in een rustige, ruim opgezette woonwijk met veel groen en voornamelijk bestemmingsverkeer. Het is zo’n plek waar je thuiskomt in alle rust, terwijl je tegelijkertijd profiteert van een centrale ligging met alle dagelijkse voorzieningen…
FIJN WONEN IN EEN RUSTIGE EN GROENE WOONOMGEVING
Aan de Coen Botrede 6 in Capelle aan den IJssel staat deze fijne eengezinswoning, gelegen in een rustige, ruim opgezette woonwijk met veel groen en voornamelijk bestemmingsverkeer. Het is zo’n plek waar je thuiskomt in alle rust, terwijl je tegelijkertijd profiteert van een centrale ligging met alle dagelijkse voorzieningen binnen handbereik.
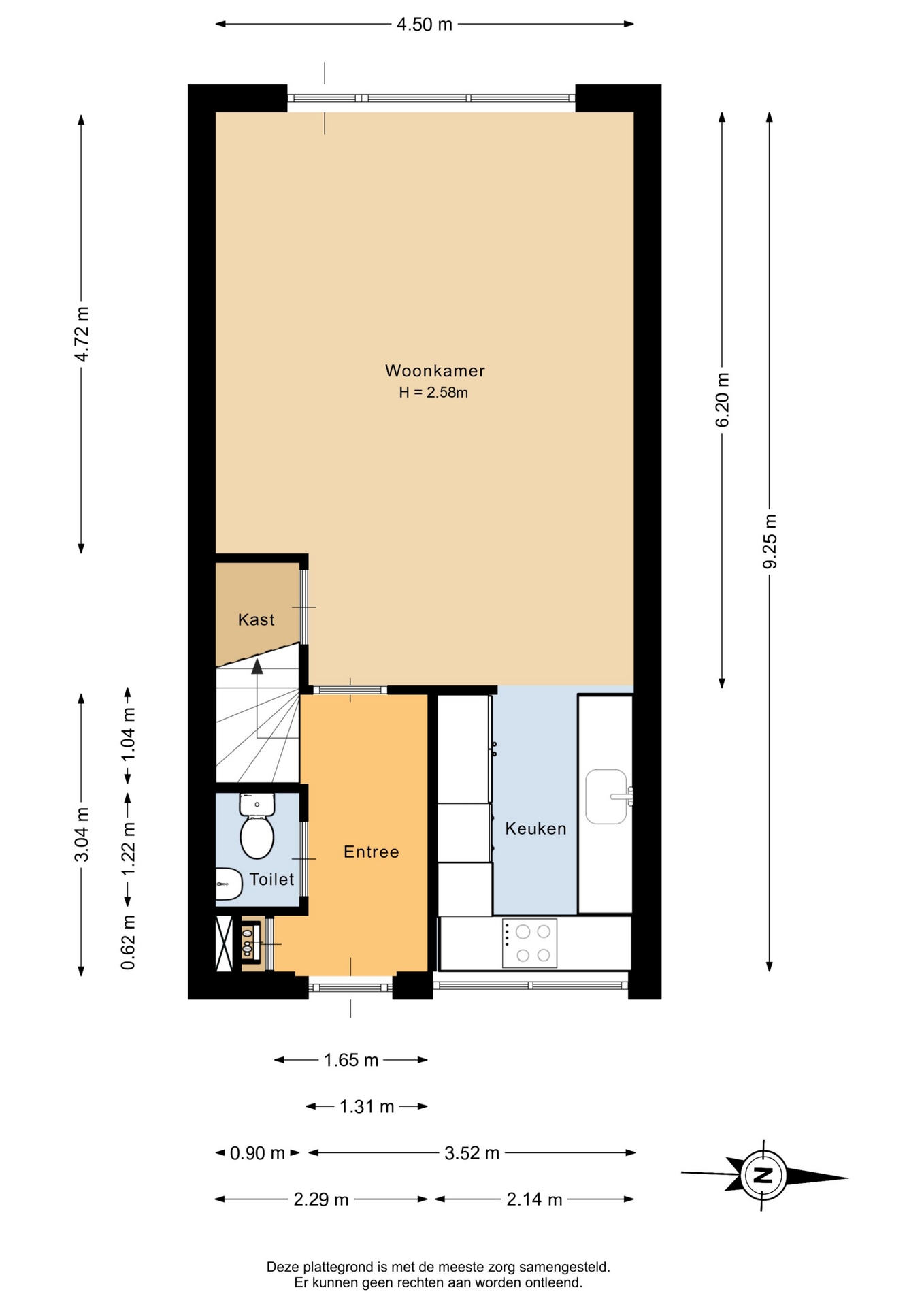
De woning biedt met een woonoppervlakte van circa 108 m² een prettige basis, een praktische indeling en volop mogelijkheden om het geheel naar eigen smaak te moderniseren. Met drie slaapkamers, een moderne keuken en een diepe achtertuin aan het water is dit een ideale woning voor starters, doorstromers of gezinnen die op zoek zijn naar ruimte én potentie.
De voortuin en de rustige straat geven direct een verzorgde en vriendelijke eerste indruk, met voldoende parkeergelegenheid in de directe omgeving.
LICHTE WOONKAMER MET DIRECT TUINCONTACT
De woonkamer is heerlijk licht dankzij de brede raampartij en de glazen achterdeur. Hierdoor valt er veel natuurlijk daglicht naar binnen en heb je een mooi zicht op de tuin en het groen daarachter. De ruimte heeft een rechte, praktische indeling waardoor je eenvoudig een comfortabele zithoek en een gezellige eethoek kunt creëren.
De huidige afwerking is netjes en vormt een goede basis, maar biedt ook ruimte om het geheel naar eigen smaak te vernieuwen. De directe verbinding met de tuin maakt het woongedeelte extra aantrekkelijk; op zonnige dagen zet je de deur open en loopt binnen moeiteloos over in buiten.
MODERNE KEUKEN MET UITZICHT OP GROEN
De keuken is in 2022 vernieuwd en uitgevoerd in een moderne, eigentijdse stijl. De strakke kastfronten, het werkblad en de inbouwapparatuur zorgen ervoor dat je hier direct comfortabel kunt koken zonder extra investeringen.
De praktische L-opstelling biedt voldoende werk- en opbergruimte. Tijdens het koken kijk je prettig naar buiten, wat zorgt voor een open en ruimtelijk gevoel. De keuken sluit mooi aan op de rest van de woning en vormt een fijne, functionele plek in huis.
DRIE SLAAPKAMERS EN COMPLETE BADKAMER
Op de verdiepingen bevinden zich drie slaapkamers van verschillende formaten. De hoofdslaapkamer is ruim opgezet en biedt voldoende plek voor een tweepersoonsbed en een grote kastenwand. Dankzij de grote ramen is ook hier veel lichtinval aanwezig.
De overige kamers zijn flexibel in te richten en ideaal als kinder-, werk- of hobbykamer. Daarmee is de woning geschikt voor verschillende levensfasen en woonwensen.
De badkamer is compact maar compleet, voorzien van een douche, toilet en wastafel. Dankzij het dakraam komt er prettig daglicht binnen, wat de ruimte licht en fris maakt.
DIEPE ACHTERTUIN AAN HET WATER MET VEEL POTENTIE
De achtertuin is een echte blikvanger en biedt volop mogelijkheden. Gelegen op het westen kun je hier in de middag en avond heerlijk van de zon genieten. De tuin is speels aangelegd met verschillende niveaus en beplanting, maar kan naar wens verder worden ingericht of gemoderniseerd.
Achterin de tuin grenst het perceel aan het water, wat zorgt voor een vrij uitzicht en een extra gevoel van rust en ruimte. Hier hoor je de vogels en ervaar je echt het buitenleven. Met meerdere zitplekken, een terras en ruimte voor groen is dit een ideale plek om te ontspannen, te tuinieren of gezellig met vrienden en familie buiten te zijn.
RUSTIGE LIGGING MET ALLES BINNEN HANDBEREIK
De woning ligt in een groene en kindvriendelijke woonwijk in Capelle aan den IJssel. De omgeving is ruim opgezet en kenmerkt zich door veel groen, water en rustige straten.
In de directe nabijheid vind je supermarkten, scholen, sportfaciliteiten en diverse winkelcentra. Ook het openbaar vervoer is goed bereikbaar en brengt je snel richting Rotterdam en omliggende steden. Met de auto zit je bovendien binnen korte tijd op de belangrijkste uitvalswegen.
Voor recreatie en ontspanning zijn er volop mogelijkheden in de buurt, zoals parken, wandelroutes en fietspaden langs het water en door het groen.
BIJZONDERHEDEN:
Vernieuwde groepenkast in 2022;
13 zonnepanelen (Belinius 410wp ultra black glass/glass);
Moderne keuken geplaatst in 2022;
Diepe achtertuin op het westen, gelegen aan het water;
Drie slaapkamers;
Rustige en groene woonomgeving;
Energielabel C;
Oplevering in overleg, kan snel.
INTERESSE? MAAK DAN SNEL EEN AFSPRAAK!
Ons advies is om bij het kopen van uw nieuwe woning uw eigen NVM makelaar mee te nemen.
TOELICHTINGSCLAUSULE NEN2580
De Meetinstructie is gebaseerd op de NEN2580. De Meetinstructie is bedoeld om een meer eenduidige manier van meten toe te passen voor het geven van een indicatie van de gebruiksoppervlakte. De Meetinstructie sluit verschillen in meetuitkomsten niet volledig uit, door bijvoorbeeld interpretatieverschillen, afrondingen of beperkingen bij het uitvoeren van de meting.
KOOPOVEREENKOMST PAS RECHTSGELDIG NA ONDERTEKENING
Een mondelinge overeenstemming tussen de particuliere verkoper en de particuliere koper is niet rechtsgeldig. Met andere woorden: er is geen koop. Er is pas sprake van een rechtsgeldige koop als de particuliere verkoper en de particuliere koper de koopovereenkomst hebben ondertekend. Dit vloeit voort uit artikel 7:2 Burgerlijk Wetboek. Een bevestiging van de mondelinge overeenstemming per e-mail of een toegestuurd concept van de koopovereenkomst wordt overigens niet gezien als een 'ondertekende koopovereenkomst'
“Deze informatie is door ons met de nodige zorgvuldigheid samengesteld. Onzerzijds wordt echter geen enkele aansprakelijkheid aanvaard voor enige onvolledigheid, onjuistheid of anderszins, dan wel de gevolgen daarvan. Alle opgegeven maten en oppervlakten zijn indicatief.”
Kenmerken
Basiskenmerken
- Status Beschikbaar
- Koopsom € 465.000 k.k.
- Woonoppervlakte ca. 108 m2
- Aantal slaapkamers 3
- Bouwjaar 1981
Overdracht
- Aanvaarding In overleg
Bouwvorm & onderhoud
- Soort object Tussenwoning
- Soort woning Eengezinswoning
- Bouwjaar 1981
- Soort bouw woonhuis
- Ligging In woonwijk
Oppervlakte & inhoud
- Gebruiksoppervlakte 108m2
- Perceeloppervlakte 125m2
- Inhoud 381m3
- Aantal kamers 4
- Aantal slaapkamers 3
- Aantal woonlagen 3 woonlagen
Energie & installatie
- Energielabel C
- Isolatie Dakisolatie, muurisolatie, vloerisolatie, dubbel glas, volledig geisoleerd
- Verwarming Cv ketel
- Warm water Cv ketel, elektrische boiler eigendom
- C.v.-ketel type GAS
- C.v.-ketel bouwjaar 2017
- Energie einddatum 09-10-2030
Bergruimte
- Schuur / berging Vrijstaand steen
- Voorzieningen Voorzien van elektra
Parkeergelegenheid
- Parkeerfaciliteiten Openbaar parkeren
- Garage Geen garage
Dak
- Soort dak Zadeldak
Overig
- Onderhoud binnen Redelijk tot goed
- Onderhoud buiten Goed
- Bijzonderheden Gedeeltelijk gestoffeerd
- Permanente bewoning Ja
- Huidig gebruik Woonruimte
- Huidige bestemming Woonruimte
Voorzieningen
- Voorzieningen Mechanische ventilatie
Buitenruimte
- Hoofdtuin ACHTERTUIN
- Oppervlakte hoofdtuin 55m2
- Ligging hoofdtuin WEST
- Kwaliteit tuin Normaal
Kadastrale gegevens
- Perceelnummer 8789
- Perceeloppervlakte 125 m2
Maak een afspraak voor een gratis adviesgesprek met onze makelaars en ontdek jouw mogelijkheden.
Maak direct een afspraakMedia
In de buurt
Geïnteresseerd?
Bel met Van Herk makelaars te Capelle aan den IJssel