Capelle Aan Den Ijssel
Couperinstraat 19
€ 525.000,- k.k.
Omschrijving
*** NIEUW IN DE VERKOOP *** DEZE RUIME EENGEZINSWONING MET EEN HEERLIJK DIEPE ACHTERTUIN BESCHIKT OVER DRIE SLAAPKAMERS, EEN RUIME WOONKAMER MET OPEN KEUKEN, EEN BADKAMER, EEN GROTE ZOLDER MET MOGELIJKHEID TOT EEN OF TWEE EXTRA SLAAPKAMERS EN ZOWEL EEN VOORTUIN ALS EEN ACHTERTUIN. IN DE STRAAT IS ER VOLDOENDE GRATIS PARKEERGELEGENHEID. LOCATIE: De Couperinstraat bevindt…
*** NIEUW IN DE VERKOOP ***
DEZE RUIME EENGEZINSWONING MET EEN HEERLIJK DIEPE ACHTERTUIN BESCHIKT OVER DRIE SLAAPKAMERS, EEN RUIME WOONKAMER MET OPEN KEUKEN, EEN BADKAMER, EEN GROTE ZOLDER MET MOGELIJKHEID TOT EEN OF TWEE EXTRA SLAAPKAMERS EN ZOWEL EEN VOORTUIN ALS EEN ACHTERTUIN. IN DE STRAAT IS ER VOLDOENDE GRATIS PARKEERGELEGENHEID.
LOCATIE:
De Couperinstraat bevindt zich in de ruim opgezette en gewilde wijk 's-Gravenland in Capelle aan den IJssel. Deze groene, kindvriendelijke wijk heeft alles binnen handbereik: een eigen overdekt winkelcentrum (Puccinipassage), diverse scholen, kinderopvang, medische voorzieningen, openbaar vervoer (bus & metro), sportfaciliteiten en recreatiemogelijkheden. Dankzij de centrale ligging nabij de A16, A20 en het centrum van Rotterdam is deze wijk bijzonder populair.
INDELING:
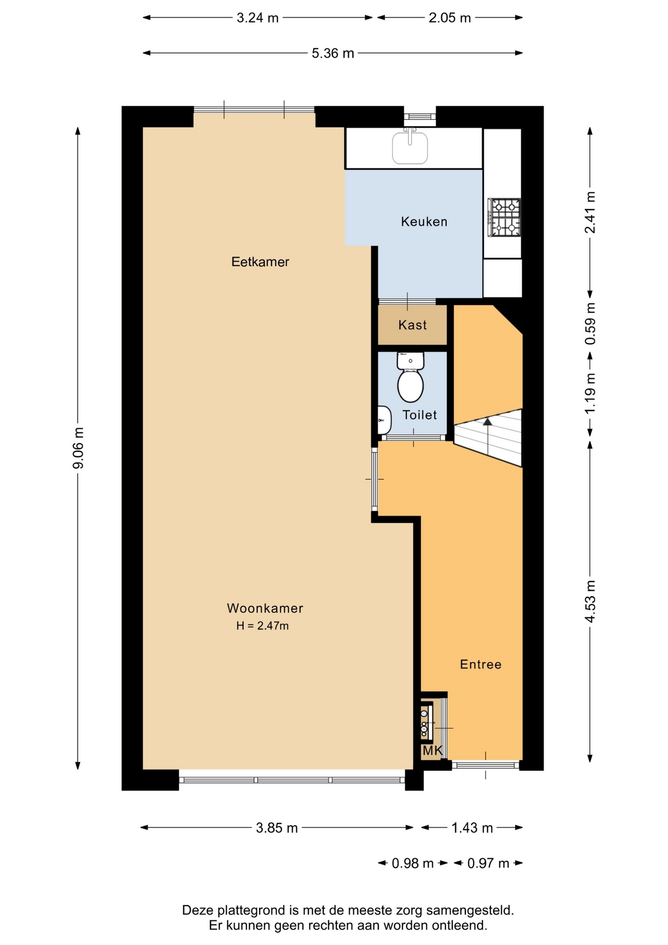
Vanuit de voortuin betreedt u de woning. De entree biedt toegang tot de meterkast, het toilet met fonteintje, de trapopgang en de doorzonkamer. De lichte doorzonkamer biedt volop mogelijkheden om een ruime woonkamer en eetkamer te creëren. De aangrenzende open keuken is uitgerust met diverse inbouwapparatuur, waaronder een vaatwasser, oven, keramische tweepits kookplaat met wokbrander, afzuigschouw en koel-vriescombinatie.
Via de openslaande deuren bereikt u de diepe achtertuin. De achtertuin is gelegen op het noorden en is voorzien van een houten berging en een achterom.
EERSTE ETAGE:
Vanuit de overloop op de eerste etage zijn alle vertrekken bereikbaar. Aan de voorzijde bevinden zich twee slaapkamers met een oppervlakte van circa 9 m² en 15 m². De slaapkamer aan de achterzijde heeft een oppervlakte van circa 10 m². De badkamer is uitgerust met een wastafel, ligbad, toilet en inloopdouche.
ZOLDER:
De zolderverdieping biedt volop mogelijkheden voor het opbergen van spullen. Daarnaast is het eenvoudig om hier één of twee slaapkamers te realiseren door het plaatsen van dakkapellen. In deze ruimte bevinden zich tevens de wasmachineaansluiting en de cv-ketel.
Bijzonderheden:
- Woonoppervlakte: circa 95 m2 exclusief de tweede verdieping van 23 m2. Dit mag thans niet als woonoppervlakte worden benoemd, maar na plaatsing van een iets groter dakraam of bijvoorbeeld dakkapel neemt het woonoppervlakte in 1x met 23 m2 toe!
- Perceeloppervlak: 149 m2 (volledig eigendom);
- Aantal slaapkamers: 3, maar 4 of 5 slaapkamers behoort tot de mogelijkheden;
- Houten kozijnen;
- CV-ketel uit circa 2016;
- Energielabel A;
- Oplevering in overleg.
INTERESSE? MAAK DAN SNEL EEN AFSPRAAK!
Ons advies is om bij het kopen van je nieuwe huis je eigen NVM-makelaar mee te nemen.
Toelichtingsclausule NEN2580:
De Meetinstructie is gebaseerd op de NEN2580. De Meetinstructie is bedoeld om een meer eenduidige manier van meten toe te passen voor het geven van een indicatie van de gebruiksoppervlakte. De Meetinstructie sluit verschillen in meetuitkomsten niet volledig uit, door bijvoorbeeld interpretatieverschillen, afrondingen of beperkingen bij het uitvoeren van de meting.
“Deze informatie is door ons met de nodige zorgvuldigheid samengesteld. Onzerzijds wordt echter geen enkele aansprakelijkheid aanvaard voor enige onvolledigheid, onjuistheid of anderszins, dan wel de gevolgen daarvan. Alle opgegeven maten en oppervlakten zijn indicatief.”
Koopovereenkomst pas rechtsgeldig na ondertekening:
Een mondelinge overeenstemming tussen de particuliere verkoper en de particuliere koper is niet rechtsgeldig. Met andere woorden: er is geen koop. Er is pas sprake van een rechtsgeldige koop als de particuliere verkoper en de particuliere koper de koopovereenkomst hebben ondertekend. Dit vloeit voort uit artikel 7:2 Burgerlijk Wetboek. Een bevestiging van de mondelinge overeenstemming per e-mail of een toegestuurd concept van de koopovereenkomst wordt overigens niet gezien als een 'ondertekende koopovereenkomst'.
Kenmerken
Basiskenmerken
- Status Beschikbaar
- Koopsom € 525.000 k.k.
- Woonoppervlakte ca. 95 m2
- Aantal slaapkamers 3
- Bouwjaar 1997
Overdracht
- Aanvaarding In overleg
Bouwvorm & onderhoud
- Soort object Tussenwoning
- Soort woning Eengezinswoning
- Bouwjaar 1997
- Soort bouw woonhuis
- Ligging In woonwijk
Oppervlakte & inhoud
- Gebruiksoppervlakte 95m2
- Perceeloppervlakte 149m2
- Inhoud 430m3
- Aantal kamers 5
- Aantal slaapkamers 3
- Aantal woonlagen 3 woonlagen
- Overige inpandige ruimte 23m2
Energie & installatie
- Energielabel A
- Isolatie Volledig geisoleerd
- Verwarming Cv ketel
- Warm water Cv ketel
- C.v.-ketel type GAS
- C.v.-ketel bouwjaar 2018
- Energie einddatum 05-12-2035
Bergruimte
- Schuur / berging Vrijstaand hout
Parkeergelegenheid
- Parkeerfaciliteiten Openbaar parkeren
- Garage Geen garage
Dak
- Soort dak Zadeldak
Overig
- Onderhoud binnen Redelijk
- Onderhoud buiten Redelijk
- Bijzonderheden Gedeeltelijk gestoffeerd
- Permanente bewoning Ja
- Huidig gebruik Woonruimte
- Huidige bestemming Woonruimte
Voorzieningen
- Voorzieningen Mechanische ventilatie, tv kabel, dakraam
Buitenruimte
- Hoofdtuin ACHTERTUIN
- Oppervlakte hoofdtuin 72m2
- Ligging hoofdtuin NOORD
- Kwaliteit tuin Normaal
Kadastrale gegevens
- Perceelnummer 2078
- Perceeloppervlakte 149 m2
Maak een afspraak voor een gratis adviesgesprek met onze makelaars en ontdek jouw mogelijkheden.
Maak direct een afspraakMedia
In de buurt
Geïnteresseerd?
Bel met Van Herk makelaars te Capelle aan den IJssel