Ridderkerk

Dokhof  16

€ 548.800,- k.k.

Omschrijving

Dokhof 16, Ridderkerk – Wonen aan de Nieuwe Maas met fenomenaal uitzicht Droom jij van wonen aan het water, met een vrij uitzicht dat nooit verveelt? Dan is deze prachtig gelegen en uitstekend onderhouden eengezinswoning aan de Dokhof 16 in Ridderkerk precies wat je zoekt. Direct aan de rivier de Nieuwe Maas geniet je hier dagelijks van rust, ruimte en een panoramisch…

Dokhof 16, Ridderkerk – Wonen aan de Nieuwe Maas met fenomenaal uitzicht

Droom jij van wonen aan het water, met een vrij uitzicht dat nooit verveelt? Dan is deze prachtig gelegen en uitstekend onderhouden eengezinswoning aan de Dokhof 16 in Ridderkerk precies wat je zoekt. Direct aan de rivier de Nieuwe Maas geniet je hier dagelijks van rust, ruimte en een panoramisch uitzicht.

Comfortabel wonen
Deze moderne tussenwoning, gebouwd in 1998. Een toekomstbestendige woning waar je direct van kunt genieten.

Buitenleven op niveau
Wat deze woning écht bijzonder maakt, is het royale dakterras van maar liefst 27 m². Hier geniet je in alle privacy van het indrukwekkende uitzicht over het water. Daarnaast beschikt de woning over een balkon op het noordoosten, direct bereikbaar vanuit de woonkamer – de perfecte plek voor een kop koffie in de ochtendzon terwijl de schepen voorbijvaren.

Parkeren
De afgesloten parkeergarage van 25m2 (incl berging) biedt genoeg ruimte voor het veilig parkeren van je voertuig en ook nog eens extra opslag van spullen. Zo heb je geen zorgen over parkeergelegenheid en kun je met een gerust hart thuis komen.

Ideaal voor doorstromers
Ben je toe aan een volgende stap? Deze woning biedt alles wat je zoekt: ruimte, energiezuinigheid, comfort én een unieke ligging aan het water. Tegelijkertijd bevinden voorzieningen, scholen en uitvalswegen zich op korte afstand. Rust en bereikbaarheid komen hier perfect samen.

Indeling

Begane grond
Via de ruime hal met trapopgang bereik je de moderne keuken, voorzien van diverse inbouwapparatuur. Vanuit de hal is tevens het separate toilet toegankelijk.
De woonkamer bevindt zich aan de achterzijde en biedt een fantastisch vrij uitzicht over de Nieuwe Maas. Dankzij de grote raampartijen geniet je hier van veel lichtinval. De woonkamer is voorzien van ITHO mechanische ventilatie en geeft toegang tot het balkon op het noordoosten.

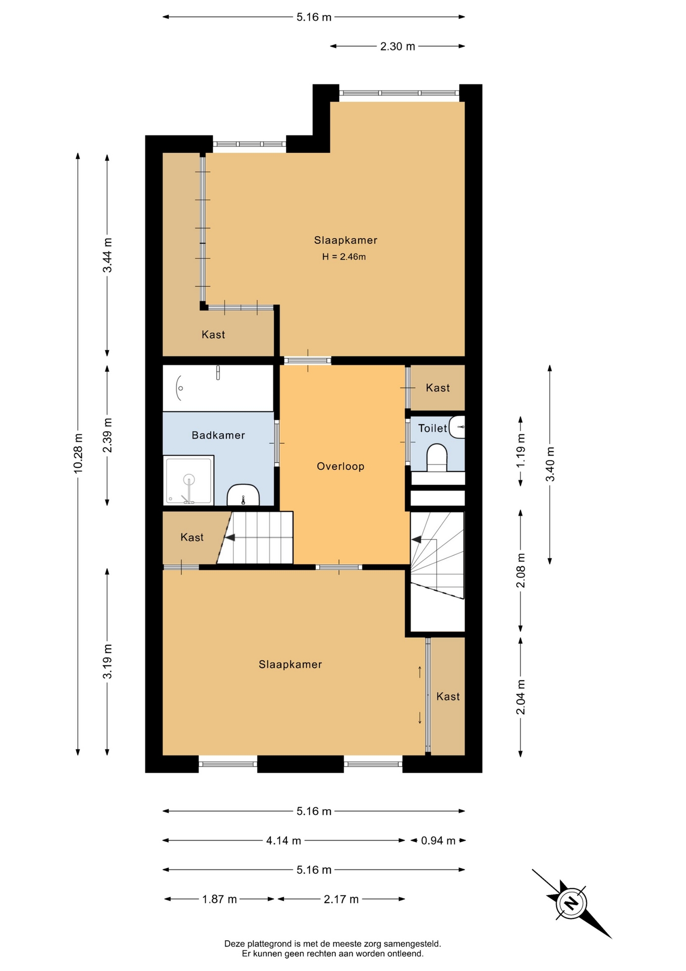
Eerste verdieping
Op de eerste verdieping bevinden zich:
• Een ruime slaapkamer aan de voorzijde met een inbouwkast
• Een royale tweede slaapkamer aan de achterzijde (voorheen twee kamers, eenvoudig terug te brengen)
• Een moderne badkamer met wastafel, ligbad en douche
• Een tweede separaat toilet

Tweede verdieping
Hier vind je:
• Een ruime onbestemde ruimte
• Toegang tot het royale dakterras met adembenemend uitzicht over het water

VVE
De buitenzijde, binnentuin en de garage worden onderhouden door een Vereniging van eigenaren.
Bijdrage € 257,-- per maand.
Er is een tuinman aanwezig en inclusief schoonmaak garage. Via de VvE ligt er een plan/voornemen in 2026 de gevel te voorzien van kunststof schroten en aluminium kozijnen aan te brengen.

Kortom: een unieke kans om te wonen op een absolute toplocatie aan de rivier, in een comfortabele woning met fraaie buitenruimtes en eigen parkeergelegenheid.

Bijzonderheden
- Bouwjaar 1998
- Woonoppervlakte 137 m2
- Garagebox met berging totaal 25 m2
- Dakterras 27 m2
- Oplevering conform roerende zaken lijst
- Oplevering in overleg kan snel

Maak snel een afspraak voor een bezichtiging en ervaar zelf wat écht thuiskomen betekent aan de Dokhof 16 in Ridderkerk.

Van der Giessen & Van Herk Makelaars behartigt de belangen van de verkopende partij. Neem uw eigen NVM aankoopmakelaar mee.

Alle verstrekte informatie moet beschouwd worden als een uitnodiging tot het doen van een bod of om in onderhandeling te treden.

Deze informatie is door ons met de nodige zorgvuldigheid samengesteld. Onzerzijds wordt echter geen enkele aansprakelijkheid aanvaard voor enige onvolledigheid, onjuistheid of anderszins, dan wel de gevolgen daarvan. Alle opgegeven maten en oppervlakten zijn indicatief. Van toepassing zijn de NVM voorwaarden.

Koopovereenkomst pas rechtsgeldig na ondertekening:
Een mondelinge overeenstemming tussen de particuliere verkoper en de particuliere koper is niet rechtsgeldig. Met andere woorden: er is geen koop. Er is pas sprake van een rechtsgeldige koop als de particuliere verkoper en de particuliere koper de koopovereenkomst hebben ondertekend. Dit vloeit voort uit artikel 7:2 Burgerlijk Wetboek. Een bevestiging van de mondelinge overeenstemming per e-mail of een toegestuurd concept van de koopovereenkomst wordt overigens niet gezien als een 'ondertekende koopovereenkomst'.

Toelichtingsclausule NEN2580:
De Meetinstructie is gebaseerd op de NEN2580. De meetinstructie is bedoeld om een meer eenduidige manier van meten toe te passen voor het geven van een indicatie van de gebruiksoppervlakte. De meetinstructie sluit verschillen in meetuitkomsten niet volledig uit, door bijvoorbeeld interpretatieverschillen, afrondingen of beperkingen bij het uitvoeren van de meting.

Kenmerken

Basiskenmerken

  • Status Beschikbaar
  • Koopsom € 548.800 k.k.
  • Woonoppervlakte ca. 137 m2
  • Aantal slaapkamers 3
  • Bouwjaar 1998

Overdracht

  • Aanvaarding In overleg

Bouwvorm & onderhoud

  • Soort object Tussenwoning
  • Soort woning Eengezinswoning
  • Bouwjaar 1998
  • Soort bouw woonhuis
  • Ligging In woonwijk, vrij uitzicht

Oppervlakte & inhoud

  • Gebruiksoppervlakte 137m2
  • Inhoud 456m3
  • Aantal kamers 4
  • Aantal slaapkamers 3
  • Aantal woonlagen 3 woonlagen

Energie & installatie

  • Energielabel A
  • Verwarming Cv ketel
  • Warm water Cv ketel
  • C.v.-ketel type GAS
  • C.v.-ketel bouwjaar 2013
  • Energie einddatum 04-02-2036

Bergruimte

  • Schuur / berging Box
  • Voorzieningen Voorzien van elektra

Parkeergelegenheid

  • Parkeerfaciliteiten Openbaar parkeren
  • Garage Garagebox, parkeerkelder

Dak

  • Soort dak Plat dak

Overig

  • Onderhoud binnen Goed
  • Onderhoud buiten Goed
  • Permanente bewoning Ja
  • Huidig gebruik Woonruimte
  • Huidige bestemming Woonruimte

Voorzieningen

  • Voorzieningen Mechanische ventilatie, tv kabel

Kadastrale gegevens

  • Perceelnummer 4523
Meer kenmerken
Huis verkopen?

Maak een afspraak voor een gratis adviesgesprek met onze makelaars en ontdek jouw mogelijkheden.

Maak direct een afspraak

In de buurt

Geïnteresseerd?

Bel met Van der Giessen en van Herk makelaars te Ridderkerk

shape

Stuur een bericht

* Maximaal 255 tekens
privacyverklaring