Standdaarbuiten

Dr. Poelsstraat  21

€ 428.800,- k.k.

Omschrijving

VRIJSTAAND WONEN MET RUIMTE EN MOGELIJKHEDEN Aan een rustige straat in het gemoedelijke Standdaarbuiten staat dit vrijstaande huis met verrassend veel ruimte, een diepe garage én een zonnige achtertuin op het zuidwesten. Hier woon je vrij, met volop mogelijkheden om het helemaal naar je eigen smaak te maken. Een ideale plek voor afbouwers of handige doorstromers die…

VRIJSTAAND WONEN MET RUIMTE EN MOGELIJKHEDEN
Aan een rustige straat in het gemoedelijke Standdaarbuiten staat dit vrijstaande huis met verrassend veel ruimte, een diepe garage én een zonnige achtertuin op het zuidwesten. Hier woon je vrij, met volop mogelijkheden om het helemaal naar je eigen smaak te maken. Een ideale plek voor afbouwers of handige doorstromers die ruimte zoeken én kansen zien.

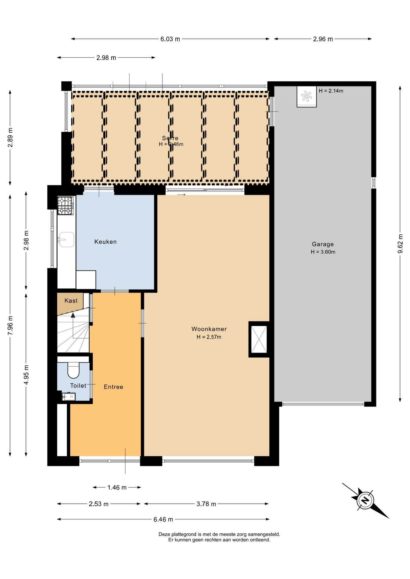
FIJNE LEEFRUIMTE MET SERRE EN LICHT
Bij binnenkomst valt direct op dat dit huis praktisch is ingedeeld en een prettige basis biedt. De woonkamer ligt aan de achterzijde en kijkt uit op de tuin. Dankzij de grote raampartijen komt er veel daglicht binnen, wat zorgt voor een lichte en aangename leefruimte.

Aansluitend vind je de serre: een heerlijke extra ruimte die volledig bij het huis betrokken is en bovendien verwarmd is. Dit is zo’n plek waar je al vroeg in het voorjaar zit en tot laat in het najaar nog geniet van het buitengevoel. De serre vormt een mooie overgang tussen binnen en buiten en vergroot de leefruimte aanzienlijk.

De keuken ligt ook aan de achterkant van het huis en is functioneel ingericht, met zicht op de tuin en directe verbinding met de serre. Hier ligt een goede basis, maar ook volop mogelijkheden om het geheel te moderniseren en naar eigen wens in te delen.

DRIE SLAAPKAMERS EN EXTRA MOGELIJKHEDEN
Op de eerste verdieping bevinden zich twee ruime slaapkamers en de badkamer. De grootste slaapkamer biedt voldoende ruimte voor een volwaardige indeling en eventueel kastruimte of splitsing naar twee slaapkamers. De tweede slaapkamer is ideaal als logeerkamer, werkkamer of hobbyruimte.

De tweede verdieping is een waardevolle toevoeging: hier is een derde slaapkamer aanwezig en daarnaast nog extra bergruimte. Door de indeling en het oppervlak is het goed denkbaar om hier extra kamer/ruimte te realiseren middels een dakkapel waardoor het totaal aantal slaapkamers kan worden uitgebreid. Dit maakt het huis flexibel en geschikt voor verschillende woonwensen, nu én in de toekomst.

DIEPE TUIN OP ZUIDWESTEN EN GARAGE
De achtertuin is een van de grote pluspunten van dit huis. Met een ligging op het zuidwesten geniet je hier volop van de zon, van de middag tot in de avond. De tuin is diep en biedt veel privacy, met voldoende ruimte voor meerdere terrassen, groen en eventueel een moestuin of overkapping.

Daarnaast beschikt het huis over een extra diepe garage van maar liefst ca. 9,62 meter. Ideaal voor de hobbyist, klusser of voor het stallen van meerdere voertuigen, fietsen en opslag. In combinatie met de oprit en de vrije ligging maakt dit het geheel extra praktisch.

RUSTIG WONEN IN GEMOEDELIJK STANDDAARBUITEN
De woning ligt in een rustige en kindvriendelijke buurt in Standdaarbuiten, een dorp met een gezellige dorpssfeer. Hier worden regelmatig activiteiten georganiseerd, zoals de jaarlijkse verlichte carnavalsoptocht. Ook de rivier de Mark ligt in de omgeving en draagt bij aan het groene en charmante karakter van het dorp.

Het dorp beschikt over basisvoorzieningen zoals een supermarkt, basisschool en sportverenigingen. Voor een uitgebreider aanbod ben je snel in omliggende plaatsen zoals Zevenbergen of Oudenbosch. Met de auto ben je bovendien snel onderweg via de uitvalswegen richting Breda, Roosendaal, Dordrecht en Rotterdam.

De omgeving kenmerkt zich door veel groen en open landschap. Perfect voor een wandeling, fietstocht of gewoon om even buiten te zijn. Dit maakt het wonen hier extra aantrekkelijk voor mensen die de drukte willen ontlopen en waarde hechten aan ruimte en een ontspannen woonomgeving.

KENMERKEN:
- Ligging: rustige straat in woonwijk in gemoedelijk dorp
- Tuin: diepe achtertuin op het zuidwesten
- Woonoppervlakte: ca. 122 m²
- Perceeloppervlakte: 312 m² (eigen grond)
- Bouwjaar: 1971
- Aantal verdiepingen: 3
- Aantal kamers: 4
- Aantal slaapkamers: 3 (meer mogelijk)
- Serre: verwarmd en bij de leefruimte betrokken
- Garage: extra diep ca. 9,62 meter
- Energielabel: C
- Oplevering: in overleg, kan snel

WoonSchuijt Makelaars behartigt de belangen van de verkopende partij. Neem uw eigen NVM aankoopmakelaar mee.

Alle verstrekte informatie moet beschouwd worden als een uitnodiging tot het doen van een bod of om in onderhandeling te treden.

Deze informatie is door ons met de nodige zorgvuldigheid samengesteld. Onzerzijds wordt echter geen enkele aansprakelijkheid aanvaard voor enige onvolledigheid, onjuistheid of anderszins, dan wel de gevolgen daarvan. Alle opgegeven maten en oppervlakten zijn indicatief. Van toepassing zijn de NVM voorwaarden.

Koopovereenkomst pas rechtsgeldig na ondertekening:
Een mondelinge overeenstemming tussen de particuliere verkoper en de particuliere koper is niet rechtsgeldig. Met andere woorden: er is geen koop. Er is pas sprake van een rechtsgeldige koop als de particuliere verkoper en de particuliere koper de koopovereenkomst hebben ondertekend. Dit vloeit voort uit artikel 7:2 Burgerlijk Wetboek. Een bevestiging van de mondelinge overeenstemming per e-mail of een toegestuurd concept van de koopovereenkomst wordt overigens niet gezien als een 'ondertekende koopovereenkomst'.

Kenmerken

Basiskenmerken

  • Status Onder bod
  • Koopsom € 428.800 k.k.
  • Woonoppervlakte ca. 122 m2
  • Aantal slaapkamers 3
  • Bouwjaar 1971

Overdracht

  • Aanvaarding In overleg

Bouwvorm & onderhoud

  • Soort object Vrijstaande woning
  • Soort woning Eengezinswoning
  • Bouwjaar 1971
  • Soort bouw woonhuis
  • Ligging Aan rustige weg, in woonwijk

Oppervlakte & inhoud

  • Gebruiksoppervlakte 122m2
  • Perceeloppervlakte 312m2
  • Inhoud 659m3
  • Aantal kamers 4
  • Aantal slaapkamers 3
  • Aantal woonlagen 3 woonlagen
  • Overige inpandige ruimte 48m2

Energie & installatie

  • Energielabel C
  • Isolatie Dakisolatie, dubbel glas
  • Verwarming Cv ketel
  • Warm water Cv ketel
  • C.v.-ketel type GAS
  • C.v.-ketel bouwjaar 2016
  • Energie einddatum 17-03-2036

Parkeergelegenheid

  • Parkeerfaciliteiten Op eigen terrein
  • Garage Aangebouwd steen

Dak

  • Soort dak Zadeldak

Overig

  • Onderhoud binnen Redelijk
  • Onderhoud buiten Redelijk tot goed
  • Permanente bewoning Ja
  • Huidig gebruik Woonruimte
  • Huidige bestemming Woonruimte

Voorzieningen

  • Voorzieningen Zonnepanelen

Buitenruimte

  • Hoofdtuin ACHTERTUIN
  • Oppervlakte hoofdtuin 105m2
  • Ligging hoofdtuin ZUIDWEST
  • Kwaliteit tuin Normaal

Kadastrale gegevens

  • Perceelnummer 2244
  • Perceeloppervlakte 312 m2
Meer kenmerken
Huis verkopen?

Maak een afspraak voor een gratis adviesgesprek met onze makelaars en ontdek jouw mogelijkheden.

Maak direct een afspraak

In de buurt

Geïnteresseerd?

Bel met Woonschuijt Makelaars te Zevenbergen

shape

Stuur een bericht

* Maximaal 255 tekens
privacyverklaring