Rotterdam

Engelsestraat  5 B

€ 350.000,- k.k.

Omschrijving

Prachtig gemoderniseerde dubbele bovenwoning waar oud en nieuw elkaar perfect ontmoeten Welkom in dit stijlvolle huis in het rustige en karaktervolle Oud-Mathenesse. Hier ervaar je het beste van twee werelden: de charme van de jaren ’30 én het comfort van nu. Alles is met oog voor detail vernieuwd, van de vloeren tot de leidingen en van de keuken tot het dak. Met drie…

Prachtig gemoderniseerde dubbele bovenwoning waar oud en nieuw elkaar perfect ontmoeten

Welkom in dit stijlvolle huis in het rustige en karaktervolle Oud-Mathenesse. Hier ervaar je het beste van twee werelden: de charme van de jaren ’30 én het comfort van nu. Alles is met oog voor detail vernieuwd, van de vloeren tot de leidingen en van de keuken tot het dak. Met drie ruime slaapkamers, een zolder met stahoogte, twee balkons en een stijlvolle afwerking is dit een woning waar je direct verliefd op wordt.

VERKOPER AAN HET WOORD
''Ik ga helaas deze heerlijk lichte en ruime woning verlaten, omdat ik een ander avontuur tegemoet ga. Wat zal ik het verrassend groene uitzicht tijdens mijn kopje koffie op het balkon en de etentjes met vrienden in de lange woonkamer missen. Iedereen kon blijven slapen in de logeerkamers! Ook moet ik afscheid nemen van de rustige buurt en de gezellige borrels met de buren. Ik hoop dat er leuke bewoners voor in plaats komen!''

MODERN WONEN MET KARAKTER
De woning straalt één en al rust, licht en klasse uit. De pvc-visgraatvloer, de strak gestucte wanden, vernieuwde deuren en de moderne afwerking zorgen voor een verfijnde uitstraling. Dankzij de grote ramen en kunststof kozijnen aan de voorzijde is de woonkamer heerlijk licht. De gezellige bio-ethanolhaard zorgt voor sfeer, maar er is ook nog een gasaansluiting aanwezig. In de zomer geniet je van het zonnescherm aan de voorzijde, ideaal tijdens warme dagen.
De open keuken is een echte eyecatcher. Voorzien van moderne inbouwapparatuur, veel opbergruimte en uitgevoerd in lichte tinten met een stijlvolle afwerking. Hier kook je niet alleen, je leeft er ook.
Op de overloop bevindt zich het vernieuwde toilet en via de openslaande deuren loop je zo naar het balkon, waar je heerlijk kunt ontbijten in de ochtendzon.

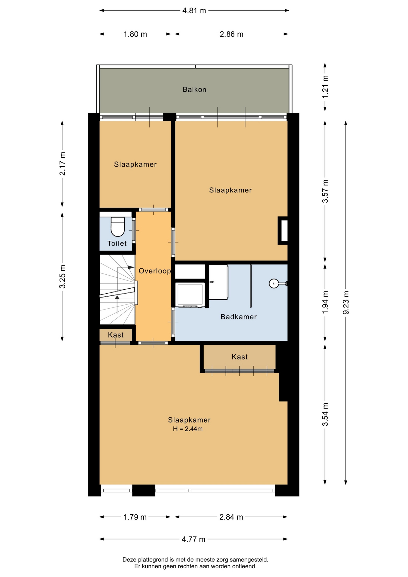
EEN COMFORTABELE SLAAPVERDIEPING
Op de tweede verdieping bevinden zich drie kamers, waaronder de ruime hoofdslaapkamer aan de voorzijde met kunststof kozijnen en veel lichtinval. De overige kamers zijn ideaal als extra slaapkamer, werkkamer, kinderkamer of inloopkast.
De badkamer (vernieuwd in 2023) is tot in de puntjes afgewerkt met moderne materialen en voorzien van een inloopdouche, wastafelmeubel en aansluitingen voor wasmachine en droger. Ook hier is gekozen voor een luxe uitstraling met betonciré en sfeervolle smartverlichting, die uiteraard achterblijft.
Aan de achterzijde bevindt zich het tweede balkon, waar je kunt ontspannen met uitzicht op de groene omgeving.

PRAKTISCHE EN STIJLVOLLE ZOLDER
De zolder is een heerlijke extra ruimte en goed bruikbaar als logeerkamer, werkkamer of atelier. Het dak is in 2022 geïsoleerd met een dubbele laag steenwol, waardoor de ruimte comfortabel blijft in elk seizoen.

DUURZAAM EN TOT IN DETAIL VERZORGD
Deze woning is niet alleen mooi, maar ook technisch tiptop in orde. In 2022 zijn het dak geïsoleerd, acht zonnepanelen geplaatst en zijn alle leidingen vernieuwd. De meterkast, schakelaars, stopcontacten en het leidingwerk zijn volledig vervangen en de woning is voorzien van moderne smartverlichting. In april is het buitenschilderwerk nog uitgevoerd.
Daarnaast heb je beschikking over een eigen helft van de schuur op de begane grond aan de achterzijde.

OUD-MATHENESSE, RUSTIG WONEN NABIJ ALLES
De wijk Oud-Mathenesse staat bekend om zijn karakter, rustige straten en gunstige ligging. Je woont hier vlak bij het ‘Witte Dorp’, de Van Nelle Fabriek en het bruisende M4H-gebied, vol creatieve ondernemers, horeca en stadsleven. Binnen enkele minuten wandel of fiets je naar het Dakpark, Schiedam of hartje Rotterdam. Ook de verbindingen met het openbaar vervoer en de uitvalswegen zijn uitstekend, en parkeren kan altijd in de straat.

BIJZONDERHEDEN
- Bouwjaar 1936
- Woonoppervlakte ca. 110 M²
- Dak geïsoleerd (2022)
- Sfeervolle smartverlichtging (blijft achter)
- Zonnepanelen (8 stuks, 2023)
- Energielabel C
- Volledig vernieuwde badkamer (2023) en moderne keuken
- Gerenoveerde toiletten
- Nieuwe pvc-visgraatvloer
- Buitenschilderwerk april 2025
- Kunststof kozijnen aan voorzijde en houten kozijnen met dubbele beglazing
- Eigen separate berging
- Twee balkons
- Actieve VvE, maandelijkse bijdrage € 67,- per maand
- Oplevering in overleg

INTERESSE? MAAK DAN SNEL EEN AFSPRAAK!
Ons advies is om bij het kopen van jouw nieuwe woning jouw eigen NVM makelaar mee te nemen.

TOELICHTINGSCLAUSULE NEN2580
De Meetinstructie is gebaseerd op de NEN2580. De Meetinstructie is bedoeld om een meer eenduidige manier van meten toe te passen voor het geven van een indicatie van de gebruiksoppervlakte. De Meetinstructie sluit verschillen in meetuitkomsten niet volledig uit, door bijvoorbeeld interpretatieverschillen, afrondingen of beperkingen bij het uitvoeren van de meting.

KOOPOVEREENKOMST PAS RECHTSGELDIG NA ONDERTEKENING
Een mondelinge overeenstemming tussen de particuliere verkoper en de particuliere koper is niet rechtsgeldig. Met andere woorden: er is geen koop. Er is pas sprake van een rechtsgeldige koop als de particuliere verkoper en de particuliere koper de koopovereenkomst hebben ondertekend. Dit vloeit voort uit artikel 7:2 Burgerlijk Wetboek. Een bevestiging van de mondelinge overeenstemming per e-mail of een toegestuurd concept van de koopovereenkomst wordt overigens niet gezien als een 'ondertekende koopovereenkomst'

“Deze informatie is door ons met de nodige zorgvuldigheid samengesteld. Onzerzijds wordt echter geen enkele aansprakelijkheid aanvaard voor enige onvolledigheid, onjuistheid of anderszins, dan wel de gevolgen daarvan. Alle opgegeven maten en oppervlakten zijn indicatief.”

Kenmerken

Basiskenmerken

  • Status Beschikbaar
  • Koopsom € 350.000 k.k.
  • Woonoppervlakte ca. 110 m2
  • Aantal slaapkamers 4
  • Bouwjaar 1936

Overdracht

  • Aanvaarding In overleg

Bouwvorm & onderhoud

  • Bouwjaar 1936
  • Soort bouw woonhuis
  • Ligging Aan rustige weg, in woonwijk, vrij uitzicht, open ligging

Oppervlakte & inhoud

  • Gebruiksoppervlakte 110m2
  • Inhoud 383m3
  • Aantal kamers 6
  • Aantal slaapkamers 4
  • Aantal woonlagen 3 woonlagen

Energie & installatie

  • Energielabel C
  • Isolatie Dakisolatie, muurisolatie, vloerisolatie, dubbel glas
  • Verwarming Cv ketel
  • Warm water Cv ketel
  • C.v.-ketel type GAS
  • Energie einddatum 05-09-2035

Bergruimte

  • Schuur / berging Box

Parkeergelegenheid

  • Parkeerfaciliteiten Openbaar parkeren, betaald parkeren, parkeervergunningen
  • Garage Geen garage

Dak

  • Soort dak Zadeldak

Overig

  • Onderhoud binnen Goed
  • Onderhoud buiten Goed
  • Bijzonderheden Gestoffeerd, gemeubileerd
  • Permanente bewoning Ja
  • Huidig gebruik Woonruimte
  • Huidige bestemming Woonruimte

Voorzieningen

  • Voorzieningen Tv kabel, domotica, natuurlijke ventilatie

Kadastrale gegevens

  • Perceelnummer 1857
Meer kenmerken
Huis verkopen?

Maak een afspraak voor een gratis adviesgesprek met onze makelaars en ontdek jouw mogelijkheden.

Maak direct een afspraak

In de buurt

Geïnteresseerd?

Bel met Van Herk Makelaars te Rotterdam

shape

Stuur een bericht

* Maximaal 255 tekens
privacyverklaring