Rotterdam

Francis Picabiastraat  85

€ 498.000,- k.k.

Omschrijving

- NIEUW IN DE VERKOOP - ZOEKERS OPGELET, DEZE RECENT GERENOVEERDE WONING KAN BINNENKORT VAN JOU ZIJN! DEZE GOED ONDERHOUDEN TUSSENWONING IS GELEGEN IN HET POPULAIRE NESSELANDE EN BESCHIKT OVER EEN VERNIEUWDE KEUKEN EN BADKAMER, 3 SLAAPKAMERS EN EEN ACHTERTUIN. NEEM SNEL CONTACT OP OM EEN AFSPRAAK IN TE PLANNEN. FAMILIEWONING: De woning beschikt over 104 m²…

- NIEUW IN DE VERKOOP -
ZOEKERS OPGELET, DEZE RECENT GERENOVEERDE WONING KAN BINNENKORT VAN JOU ZIJN! DEZE GOED ONDERHOUDEN TUSSENWONING IS GELEGEN IN HET POPULAIRE NESSELANDE EN BESCHIKT OVER EEN VERNIEUWDE KEUKEN EN BADKAMER, 3 SLAAPKAMERS EN EEN ACHTERTUIN. NEEM SNEL CONTACT OP OM EEN AFSPRAAK IN TE PLANNEN.

FAMILIEWONING:
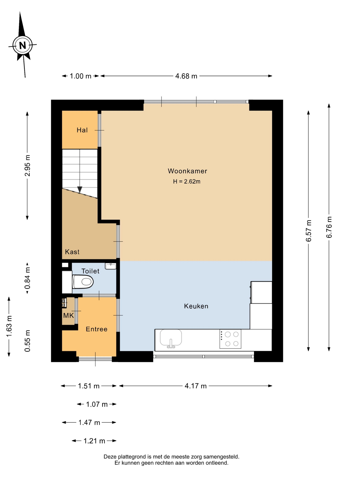
De woning beschikt over 104 m² woonoppervlakte, wat verdeeld is over 3 woonlagen. Op de begane grond is een lichte woonkamer met moderne open keuken te vinden. De recent geplaatste keuken is voorzien van alle benodigde inbouwapparatuur. Hier kom je dus niets tekort. Middels openslaande deuren is de achtertuin toegankelijk. Deze is gelegen op het noorden en beschikt over een houten berging en een achterom.

Op de eerste verdieping zijn 2 slaapkamers en de badkamer gelegen. De moderne badkamer is volledig betegeld en voorzien van een ruime inloopdouche, dubbele wastafel met meubel en een toilet. Nog een verdieping hoger is de 3e slaapkamer gelegen over de volledige diepte van de verdieping. Tevens is hier ook een ruime wasruimte met de opstelling voor de wasmachine, droger en mechanische ventilatie-unit.

ENERGIELABEL A:
De woning is door de verkopers goed onderhouden. In 2022 hebben zij de badkamer en de keuken compleet vernieuwd. Hier heb je dus geen omkijken meer naar! De woning is gebouwd in 2007, wat inhoudt dat deze volledig geïsoleerd is. Verwarming en warm water wordt geregeld middels stadsverwarming. Dit maakt de woning gasloos en voorbereid op de toekomst. Mede hierdoor beschikt de woning over een energielabel A.

CENTRAAL GELEGEN IN DE WIJK NESSELANDE
Nesselande is een moderne, kindvriendelijke woonwijk aan de rand van Rotterdam. Het middelpunt van de wijk is de Zevenhuizerplas met haar strand en boulevard: een unieke plek om te sporten, ontspannen of gewoon te genieten van het uitzicht. Het winkelcentrum voorziet in dagelijkse boodschappen en meer, terwijl scholen, sportverenigingen en zorgvoorzieningen uitstekend geregeld zijn. Dankzij de metroverbinding ben je bovendien in korte tijd in hartje Rotterdam. Kortom: Nesselande combineert water, groen en stadse voorzieningen tot een ideale woonomgeving.

VERKOPER AAN HET WOORD:
Met veel plezier hebben wij maar liefst 19 jaar in deze fijne wijk gewoond.
In die tijd hebben wij de buurt zien groeien en ontwikkelen tot de mooie levendige omgeving die het vandaag aan de dag is.
In 2022 hebben wij de oa de keuken, badkamer en ‘t toilet compleet vernieuwd.
Na lang wikken en wegen hebben wij er toch besloten deze bijzondere plek achter ons te laten en te kiezen voor een nieuw avontuur.
Wij hopen dat de nieuwe bewoners er met net zoveel plezier zullen wonen als wij hebben gedaan.

BIJZONDERHEDEN:
- Bouwjaar 2007;
- Goed onderhouden tussenwoning;
- 104 m² woonoppervlakte;
- Gelegen op 94 m² EIGEN GROND;
- De begane grond beschikt over vloerverwarming;
- Badkamer en keuken vernieuwd in 2022;
- 3 slaapkamers op de verdiepingen;
- Knusse achtertuin gelegen op het noorden;
- Verwarming en warm water middels stadsverwarming;
- Gelegen in de kindvriendelijke woonwijk Nesselande;
- Energielabel A, welke geldig is tot 29-09-2032;
- Let op, er wordt een niet-zelfbewoningsclausule opgenomen in de koopovereenkomst;
- Oplevering in overleg.

INTERESSE? MAAK DAN SNEL EEN AFSPRAAK!
Ons advies is om bij het kopen van je nieuwe huis je eigen NVM-makelaar mee te nemen.

TOELICHTINGSCLAUSULE NEN2580:
De Meetinstructie is gebaseerd op de NEN2580. De Meetinstructie is bedoeld om een meer eenduidige manier van meten toe te passen voor het geven van een indicatie van de gebruiksoppervlakte. De Meetinstructie sluit verschillen in meetuitkomsten niet volledig uit, door bijvoorbeeld interpretatieverschillen, afrondingen of beperkingen bij het uitvoeren van de meting.

“Deze informatie is door ons met de nodige zorgvuldigheid samengesteld. Onzerzijds wordt echter geen enkele aansprakelijkheid aanvaard voor enige onvolledigheid, onjuistheid of anderszins, dan wel de gevolgen daarvan. Alle opgegeven maten en oppervlakten zijn indicatief.”

KOOPOVEREENKOMST PAS RECHTSGELDIG NA ONDERTEKENING:
Een mondelinge overeenstemming tussen de particuliere verkoper en de particuliere koper is niet rechtsgeldig. Met andere woorden: er is geen koop. Er is pas sprake van een rechtsgeldige koop als de particuliere verkoper en de particuliere koper de koopovereenkomst hebben ondertekend. Dit vloeit voort uit artikel 7:2 Burgerlijk Wetboek. Een bevestiging van de mondelinge overeenstemming per e-mail of een toegestuurd concept van de koopovereenkomst wordt overigens niet gezien als een 'ondertekende koopovereenkomst'.

Kenmerken

Basiskenmerken

  • Status Beschikbaar
  • Koopsom € 498.000 k.k.
  • Woonoppervlakte ca. 104 m2
  • Aantal slaapkamers 3
  • Bouwjaar 2007

Overdracht

  • Aanvaarding In overleg

Bouwvorm & onderhoud

  • Soort object Tussenwoning
  • Soort woning Eengezinswoning
  • Bouwjaar 2007
  • Soort bouw woonhuis
  • Ligging Aan rustige weg, in woonwijk

Oppervlakte & inhoud

  • Gebruiksoppervlakte 104m2
  • Perceeloppervlakte 94m2
  • Inhoud 368m3
  • Aantal kamers 4
  • Aantal slaapkamers 3
  • Aantal woonlagen 3 woonlagen

Energie & installatie

  • Energielabel A
  • Isolatie Dakisolatie, muurisolatie, vloerisolatie, dubbel glas, volledig geisoleerd
  • Verwarming Stadsverwarming
  • Warm water Stadsverwarming
  • Energie einddatum 29-09-2032

Bergruimte

  • Schuur / berging Vrijstaand hout

Parkeergelegenheid

  • Parkeerfaciliteiten Openbaar parkeren
  • Garage Geen garage

Dak

  • Soort dak Samengesteld dak

Overig

  • Onderhoud binnen Goed
  • Onderhoud buiten Goed
  • Bijzonderheden Gedeeltelijk gestoffeerd
  • Permanente bewoning Ja
  • Huidig gebruik Woonruimte
  • Huidige bestemming Woonruimte

Voorzieningen

  • Voorzieningen Mechanische ventilatie, tv kabel, dakraam, natuurlijke ventilatie

Buitenruimte

  • Kwaliteit tuin Normaal

Kadastrale gegevens

  • Perceelnummer 2944
  • Perceeloppervlakte 94 m2
Meer kenmerken
Huis verkopen?

Maak een afspraak voor een gratis adviesgesprek met onze makelaars en ontdek jouw mogelijkheden.

Maak direct een afspraak

In de buurt

Geïnteresseerd?

Bel met Van Herk makelaars te Capelle aan den IJssel

shape

Stuur een bericht

* Maximaal 255 tekens
privacyverklaring