Capelle Aan Den Ijssel

Goudenregenstraat  106

€ 425.000,- k.k.

Omschrijving

- NIEUW IN DE VERKOOP - IN EEN KARAKTERISTIEKE STRAAT IS DEZE FRAAIE TUSSENWONING GELEGEN MET EIGEN OPRIT VOOR DE DEUR. DE WONING BESCHIKT OVER 3 SLAAPKAMERS EN EEN HEERLIJKE ACHTERTUIN. RECENT HEBBEN DE VERKOPERS DE WONING VERDUURZAAMD WAARDOOR ER MOMENTEEL EEN ENERGIELABEL B AANWEZIG IS. KORTOM, ZEKER EEN BEZICHTIGING WAARD. FAMILIEWONING: Ruime voortuin waar de auto…

- NIEUW IN DE VERKOOP -
IN EEN KARAKTERISTIEKE STRAAT IS DEZE FRAAIE TUSSENWONING GELEGEN MET EIGEN OPRIT VOOR DE DEUR. DE WONING BESCHIKT OVER 3 SLAAPKAMERS EN EEN HEERLIJKE ACHTERTUIN. RECENT HEBBEN DE VERKOPERS DE WONING VERDUURZAAMD WAARDOOR ER MOMENTEEL EEN ENERGIELABEL B AANWEZIG IS. KORTOM, ZEKER EEN BEZICHTIGING WAARD.

FAMILIEWONING:
Ruime voortuin waar de auto geparkeerd kan worden. Doordat er een extra stuk perceel aan de voorzijde is bijgekocht, is het ook mogelijk om een 2e auto te parkeren. Hierdoor wordt het zoeken naar een parkeerplaats verledentijd.

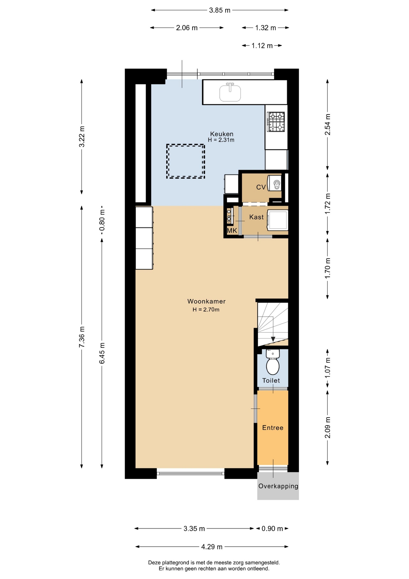
Entree van de woning met het toilet en toegang tot de woonkamer. Lichte woonkamer gesitueerd aan de voorzijde van de woning. Centraal op de begane grond is een ruime kast aanwezig waar zich de cv-ketel (2024), wasmachine en meterkast bevinden. Aan de achterzijde is de ruime keuken te vinden, welke zich in de uitbouw (2012) van de woning bevindt. Deze beschikt over diverse inbouwapparatuur. Door de aanwezige lichtkoepel is er veel daglichttoetreding aanwezig. Vanuit de keuken is er middels een loopdeur toegang tot de achtertuin. Deze is gesitueerd op het noordwesten. Door de diepte van de tuin is er de hele dag van de zon te genieten. Liever een plek in de schaduw? Dat kan middels de aanwezige overkapping. Verder is er nog een berging met vliering en een achterom aanwezig. Direct achter de tuin zijn er groenvoorzieningen aanwezig wat ook veel privacy biedt.

Middels een trap vanuit de woonkamer is de eerste verdieping toegankelijk. Hier zijn 3 slaapkamers, de badkamer en een vaste kast te vinden. Aan de voorzijde van de woning bevinden zich twee slaapkamers. Aan de achterzijde van de woning vindt u de master bedroom alsmede de badkamer. De badkamer is voorzien van een douche, toilet en een wastafel met meubel. Middels een vaste trap is er toegang tot de bergvliering. Hierdoor wordt het opbergen van de seizoensgebonden spullen wel heel eenvoudig!

RECENT VERDUURZAAMD:
De verkopers hebben de woning in 2020 in bezit gekregen en deze flink verduurzaamd, waardoor de woning momenteel over een energielabel B beschikt. Zo hebben zij in 2020 het dak met steenwol laten na-isoleren en is in 2023 vloer- en gevelisolatie aangebracht (m.u.v. de achterzijde 1e verdieping). In 2023 zijn tevens nog 8 zonnepanelen geplaatst aan de voorzijde van het dakdeel. Ook alle beglazing is vernieuwd naar HR++ glas en in 2024 is de cv-ketel aangepast en is deze vervangen voor een vernieuwde combiketel.

RUSTIGE WOONOMGEVING:
De woning is gelegen aan een rustige, karakteristieke straat met veel diversiteit aan woningen. De Goudenregenstraat ligt nabij alle dagelijks benodigde faciliteiten. Zo zijn in de directe omgeving diverse scholen, winkels, openbaar vervoer, sport, recreatie en het IJsselland ziekenhuis te vinden. Ook het winkelcentrum Alexandrium en de Koperwiek zijn op korte afstand gelegen. De kindvriendelijke wijk is ruim opgezet en beschikt over veel groen en speelgelegenheden voor de kinderen. Achter de tuin bevindt zich een wandelpad en de grote plas welke perfect is voor vissen of bootje varen in de zomer en schaatsen in de winter. Kortom, een ideale woonomgeving!

VERKOPER AAN HET WOORD:
Wij hebben met veel plezier gewoond in ons fijne huis in deze gezellige sfeervolle straat. In een kindvriendelijke buurt waar kinderen nog echt buitenspelen en waar iedereen elkaar nog gedag zegt. Het fijne aan dit huis is dat je de rust en de vrijheid door de plas achter het huis hebt en het bos op loopafstand, maar toch ook de gemakken zoals supermarkten/winkels en openbaar vervoer binnen handbereik en het gemak van altijd twee auto’s voor de deur. Kortom is het heerlijk wonen. Eén van de gaafste herinneringen… een grote schaatsbaan achter je tuin en op schaatsen je tuin uit kunnen lopen. Wie kan dat nou zeggen.

BIJZONDERHEDEN:
- Bouwjaar 1928;
- 78 m² woonoppervlakte;
- 200 m² perceeloppervlakte;
- Verduurzaamde tussenwoning;
- 3 slaapkamers op de eerste verdieping;
- Ruime bergvliering aanwezig;
- 8 zonnepanelen (2023) op het dak;
- Dak-, gevel- en vloerisolatie toegepast;
- De woning beschikt over HR++ beglazing;
- Cv-ketel uit 2024;
- Ruime achtertuin op het noordwesten;
- Berging achterin de tuin aanwezig met een vliering;
- Parkeren op eigen terrein, ruimte voor het parkeren van 2 auto's;
- Centrale ligging dichtbij alle voorzieningen;
- Direct achter de tuin is een wandelpad met grote plas aanwezig;
- Energielabel B, welke geldig is tot 05-01-2036;
- Oplevering in overleg.

INTERESSE? MAAK DAN SNEL EEN AFSPRAAK!
Ons advies is om bij het kopen van je nieuwe huis je eigen NVM-makelaar mee te nemen.

TOELICHTINGSCLAUSULE NEN2580
De Meetinstructie is gebaseerd op de NEN2580. De Meetinstructie is bedoeld om een meer eenduidige manier van meten toe te passen voor het geven van een indicatie van de gebruiksoppervlakte. De Meetinstructie sluit verschillen in meetuitkomsten niet volledig uit, door bijvoorbeeld interpretatieverschillen, afrondingen of beperkingen bij het uitvoeren van de meting.

KOOPOVEREENKOMST PAS RECHTSGELDIG NA ONDERTEKENING
Een mondelinge overeenstemming tussen de particuliere verkoper en de particuliere koper is niet rechtsgeldig. Met andere woorden: er is geen koop. Er is pas sprake van een rechtsgeldige koop als de particuliere verkoper en de particuliere koper de koopovereenkomst hebben ondertekend. Dit vloeit voort uit artikel 7:2 Burgerlijk Wetboek. Een bevestiging van de mondelinge overeenstemming per e-mail of een toegestuurd concept van de koopovereenkomst wordt overigens niet gezien als een 'ondertekende koopovereenkomst'

“Deze informatie is door ons met de nodige zorgvuldigheid samengesteld. Onzerzijds wordt echter geen enkele aansprakelijkheid aanvaard voor enige onvolledigheid, onjuistheid of anderszins, dan wel de gevolgen daarvan. Alle opgegeven maten en oppervlakten zijn indicatief.”

Kenmerken

Basiskenmerken

  • Status Beschikbaar
  • Koopsom € 425.000 k.k.
  • Woonoppervlakte ca. 78 m2
  • Aantal slaapkamers 3
  • Bouwjaar 1928

Overdracht

  • Aanvaarding In overleg

Bouwvorm & onderhoud

  • Soort object Tussenwoning
  • Soort woning Eengezinswoning
  • Bouwjaar 1928
  • Soort bouw woonhuis
  • Ligging Aan rustige weg, in woonwijk

Oppervlakte & inhoud

  • Gebruiksoppervlakte 78m2
  • Perceeloppervlakte 200m2
  • Inhoud 287m3
  • Aantal kamers 4
  • Aantal slaapkamers 3
  • Aantal woonlagen 3 woonlagen

Energie & installatie

  • Energielabel B
  • Isolatie Dakisolatie, vloerisolatie
  • Verwarming Cv ketel
  • Warm water Cv ketel
  • C.v.-ketel type GAS
  • C.v.-ketel bouwjaar 2024
  • Energie einddatum 05-01-2036

Bergruimte

  • Schuur / berging Vrijstaand hout
  • Voorzieningen Voorzien van elektra

Parkeergelegenheid

  • Parkeerfaciliteiten Openbaar parkeren, op eigen terrein
  • Garage Geen garage

Dak

  • Soort dak Zadeldak

Overig

  • Onderhoud binnen Goed
  • Onderhoud buiten Goed
  • Bijzonderheden Gedeeltelijk gestoffeerd
  • Permanente bewoning Ja
  • Huidig gebruik Woonruimte
  • Huidige bestemming Woonruimte

Voorzieningen

  • Voorzieningen Tv kabel, zonnepanelen

Buitenruimte

  • Hoofdtuin ACHTERTUIN
  • Oppervlakte hoofdtuin 78m2
  • Ligging hoofdtuin NOORDWEST
  • Kwaliteit tuin Normaal

Kadastrale gegevens

  • Perceelnummer 4376
  • Perceeloppervlakte 200 m2
Meer kenmerken
Huis verkopen?

Maak een afspraak voor een gratis adviesgesprek met onze makelaars en ontdek jouw mogelijkheden.

Maak direct een afspraak

In de buurt

Geïnteresseerd?

Bel met Van Herk makelaars te Capelle aan den IJssel

shape

Stuur een bericht

* Maximaal 255 tekens
privacyverklaring