Moerdijk

Grintweg  34

€ 655.000,- k.k.

Omschrijving

Ondernemen, werken aan huis, of een uit de hand gelopen hobby ! Nu te koop in moerdijk. De ruime vrijstaande woning geeft u de mogelijkheid om uw dromen uit te laten komen. Rust, ruimte en flexibiliteit kenmerken de woning met bedrijfsruimte. Het geheel is gebouwd op 1430 m2 eigen grond en meet een riant woonoppervlakte van circa 160 m2 en een bedrijfs /hobbyruimte van…

Ondernemen, werken aan huis, of een uit de hand gelopen hobby !

Nu te koop in moerdijk.

De ruime vrijstaande woning geeft u de mogelijkheid om uw dromen uit te laten komen. Rust, ruimte en flexibiliteit kenmerken de woning met bedrijfsruimte. Het geheel is gebouwd op 1430 m2 eigen grond en meet een riant woonoppervlakte van circa 160 m2 en een bedrijfs /hobbyruimte van circa 270 m2 kortom aan ruimte en mogelijkheden geen beperking.

Indeling
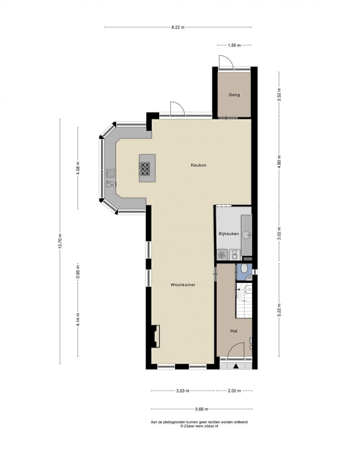
Imposante intreden met veel originele details zoals het “Melkmeisjes kozijn” met origineel glas in lood, het trappenhuis welk u toegang geeft nar de etage en tot de ruimtes op de begane grond. woning waaronder het toilet, de kelder en woonkamer.

De royale woonkamer is voorzien van een houten afwerkvloer en een sfeervolle gezellige houtkachel. De raampartijen zijn grotendeels voorzien van dubbel glas en glas- in lood facetten. De ruimte wordt verwarmd door middel van radiatoren en vloerverwarming.

De prettige woonkeuken is gemaakt in 2007 en daarmee id dit tevens het hart van de woning geworden.
De tuindeuren zorgen ervoor dat u binnen en buiten in de zomermaanden goed met met elkaar kunt verbinden.
De keuken is voorzien van verschillende inbouwapparatuur, keramieken gootsteen, koelkast en vaatwasser. Het kookeiland is voorzien van een Falcon oven, 5 pits gasfornuis en afzuigkap.

De oude keuken is omgebouwd naar een bijkeuken met de opstalplaats van de was- en droogvoorzieningen en CV- ketel (Viking HR 2008). Via de woonkeuken komt u in de berging/hal deze geeft doorgang naar de tuin.

Eerste verdieping
Op de eerste etage bevinden zich 2 grote slaapkamers welk heel eenvoudig op te splitsen zijn naar 4 slaapkamers.
De badkamer is zowel via de hoofdslaapkamer als via de overloop toegankelijk. Het in 2007 geplaatste dakkapel zorgt voor veel licht inval. De badkamer is geheel betegeld, heeft een grote inloopdouche, ruim ligbad, dubbele wasbak en wordt verwarmd door middel van vloerverwarming en een design radiator.
Op de overloop bevindt zich de tweede toiletruimte.

De hoofd slaapkamer is voorzien van een dakkapel, inbouwspotjes en een grote inbouwkast.

Tuin
Zodra u het erf oprijdt, door de elektrisch bedienbare poort, vallen de vele fruitbomen en winter harde planten meteen op! U kunt in het juiste seizoen genieten van uw eigen pruimen, appels, peren, kersen, bramen en druiven.
De tuin heeft een bewateringsinstallatie en is ingedeeld in aparte zit en sfeer terrassen.

Het achterste gedeelte van het erf is ingelegd met beton tegels en heeft nu enkel een opslag/parkeer functie.

De bedrijfsruimte en of hobby ruimte geeft u d mogelijkheid om uw eigen onderneming te starten of om uw uit de hand gelopen hobby verder uit te breiden. De loodsen dienen nu als opslag en geven plek aan de winkel voorraad. Tevens is aan het begin van de loods een productie keuken gesitueerd zo is er voldoende werkruimte, kookgelegenheid en is er een koelcel en vriescel geplaats. Kijk voor de mogelijkheden naar het bestemmingsplan van de locatie.

De ligging
Dit karakteristieke object is gelegen nabij de dorpskern van Moerdijk en op 10 minuten rijden van de uitvalswegen A16 (Breda- Rotterdam) en A17 (Roosendaal). Het wandelgebied “De Appelzak” aangrenzend aan het “Hollandsdiep” ligt op 6 minuten loopafstand waar u heerlijk kunt genieten van de natuur, een flinke wandeling kan maken en/of vertoevend op een bankje de bootjes voorbij ziet varen.
woon en gebruiksmogelijkheden

Bestemmingsplan(wijzigingen voorbehouden vraag het na bij de gemeente Moerdijk)
Het bestemmingsplan geeft vele mogelijkheden; aan- huis- gebonden beroepen, kleinschalige bedrijfsmatige beroepen en horeca- activiteiten categorie 1A.
Denk aan cateringbedrijf, lunchroom, theetuin, autohandel, taxibedrijf, koeriersdienst en persoonlijke dienstverlening. Veel is mogelijk mits ondergeschikt aan de woonfunctie.

Algemeen:
- Bouwjaar 1932
- Renovatie jaar 2007
- Woonoppervlakte circa 160 m2
- Perceel van 1430m2
- Bedrijfsruimte circa 270 m2
- Grotendeels dubbele beglazing
- Verwarming en warm water via eigen CV ketel 2008
- Centrale ligging met in de directe omgeving de A16 & A17
- De winkel en berging zijn in 2019 voorzien van een nieuw dak en dakconstructie.
- Op deze woning is de Moerdijk regeling van toepassing.
- de notaris is voorbehouden aan de verkoper signa Notarissen Zevenbergen
- Oplevering in overleg

MOERDIJKREGELING:
Op deze woning is de Moerdijkregeling van toepassing.
Moerdijkregeling 2025 De oorspronkelijke Moerdijkregeling is zoveel mogelijk hetzelfde gebleven. De gemeente koopt maximaal 25 woningen per jaar. Aanmelden kan jaarlijks tot 1 december. Wanneer het maximumaantal van 25 te kopen woningen niet is bereikt, is er een tweede aanmeldmoment: vóór 1 juli het jaar daarop, voor de resterende beschikbare plekken. De belangrijkste aanpassingen in de Moerdijkregeling 2025 zijn: • De indexering is hersteld. Dus ook waardestijging vanaf 1 januari 2023 wordt nu weer meegenomen in de aankoopwaarde. De indexatie is net zoals voorheen gebaseerd op de gemiddelde waardeontwikkeling van vergelijkbare woningtypen van de provincie Noord-Brabant. De Moerdijkregeling is een garantieregeling voor huizenbezitters in het dorp Moerdijk. Zij krijgen een verkoopgarantie. De Moerdijkregeling is bedoeld voor huidige én toekomstige huizenbezitters in het dorp Moerdijk. Zij kunnen te allen tijde hun huis verkopen aan de gemeente. Dat geeft financiële zekerheid en dat maakt de Moerdijkregeling vooral een 'blijfregeling'. Daarnaast is het door deze regeling extra aantrekkelijk om in het dorp een woning te kopen omdat ook nieuwe huiseigenaren gebruiken kunnen maken van de Moerdijkregeling.

Toelichtingsclausule NEN2580
De Meetinstructie is gebaseerd op de NEN2580. De Meetinstructie is bedoeld om een meer eenduidige manier van meten toe te passen voor het geven van een indicatie van de gebruiksoppervlakte. De Meetinstructie sluit verschillen in meetuitkomsten niet volledig uit, door bijvoorbeeld interpretatieverschillen, afrondingen of beperkingen bij het uitvoeren van de meting.
Alle informatie is niet meer dan een uitnodiging tot het doen van een bod, derhalve kunt u aan deze gegevens geen rechten ontlenen.

Van der Giessen & Van Herk makelaardij behartigt de belangen van de verkopende partij. Neem uw eigen NVM aankoopmakelaar mee.

Alle verstrekte informatie moet beschouwd worden als een uitnodiging tot het doen van een bod of om in onderhandeling te treden.

Deze informatie is door ons met de nodige zorgvuldigheid samengesteld. Onzerzijds wordt echter geen enkele aansprakelijkheid aanvaard voor enige onvolledigheid, onjuistheid of anderszins, dan wel de gevolgen daarvan. Alle opgegeven maten en oppervlakten zijn indicatief. Van toepassing zijn de NVM voorwaarden.

Kenmerken

Basiskenmerken

  • Status Beschikbaar
  • Koopsom € 655.000 k.k.
  • Woonoppervlakte ca. 160 m2
  • Aantal slaapkamers 2
  • Bouwjaar 1932

Overdracht

  • Aanvaarding In overleg

Bouwvorm & onderhoud

  • Soort object Vrijstaande woning
  • Soort woning Eengezinswoning
  • Bouwjaar 1932
  • Soort bouw woonhuis
  • Ligging In woonwijk, vrij uitzicht

Oppervlakte & inhoud

  • Gebruiksoppervlakte 160m2
  • Perceeloppervlakte 1430m2
  • Inhoud 650m3
  • Aantal kamers 3
  • Aantal slaapkamers 2
  • Aantal woonlagen 2 woonlagen
  • Overige inpandige ruimte 11m2

Energie & installatie

  • Energielabel C
  • Verwarming Cv ketel, vloerverwarming gedeeltelijk, houtkachel
  • Warm water Cv ketel
  • C.v.-ketel type GAS
  • C.v.-ketel bouwjaar 2008
  • Energie einddatum 11-10-2031

Bergruimte

  • Schuur / berging Vrijstaand hout
  • Voorzieningen Voorzien van verwarming, voorzien van elektra, voorzien van water, met vliering

Parkeergelegenheid

  • Parkeerfaciliteiten Openbaar parkeren, op eigen terrein
  • Garage Garage mogelijk, parkeerplaats

Dak

  • Soort dak Mansarde dak

Overig

  • Onderhoud binnen Goed
  • Onderhoud buiten Goed
  • Permanente bewoning Ja
  • Huidig gebruik Woonruimte
  • Huidige bestemming Woonruimte

Voorzieningen

  • Voorzieningen Tv kabel

Buitenruimte

  • Hoofdtuin ACHTERTUIN
  • Oppervlakte hoofdtuin 759m2
  • Ligging hoofdtuin ZUIDWEST
  • Kwaliteit tuin Normaal

Kadastrale gegevens

  • Perceelnummer 1838
  • Perceeloppervlakte 1430 m2
Meer kenmerken
Huis verkopen?

Maak een afspraak voor een gratis adviesgesprek met onze makelaars en ontdek jouw mogelijkheden.

Maak direct een afspraak

In de buurt

Geïnteresseerd?

Bel met Van der Giessen en van Herk makelaars te Ridderkerk

shape

Stuur een bericht

* Maximaal 255 tekens
privacyverklaring