Den Haag

Harderwijkstraat  232

€ 220.000,- k.k.

Omschrijving

4-KAMER APPARTEMENT MET ACHTERBALKON. DIT APPARTEMENT IS GESITUEERD IN DE KOM VAN DE HARDERWIJKSTRAAT, NABIJ DE WINKELS OP DE DIERENSELAAN EN VERBINDINGEN OPENBAAR VERVOER. Een kluswoning vol potentie op een goede locatie! Ben jij op zoek naar een appartement waar je écht jouw eigen droomwoning van kunt maken? Dan is Harderwijkstraat 232 precies wat je zoekt. Een…

4-KAMER APPARTEMENT MET ACHTERBALKON. DIT APPARTEMENT IS GESITUEERD IN DE KOM VAN DE HARDERWIJKSTRAAT, NABIJ DE WINKELS OP DE DIERENSELAAN EN VERBINDINGEN OPENBAAR VERVOER.

Een kluswoning vol potentie op een goede locatie!

Ben jij op zoek naar een appartement waar je écht jouw eigen droomwoning van kunt maken? Dan is Harderwijkstraat 232 precies wat je zoekt. Een karakteristiek portiek-appartement uit 1934, gelegen in een rustige woonstraat, met verrassend veel ruimte én volop mogelijkheden.

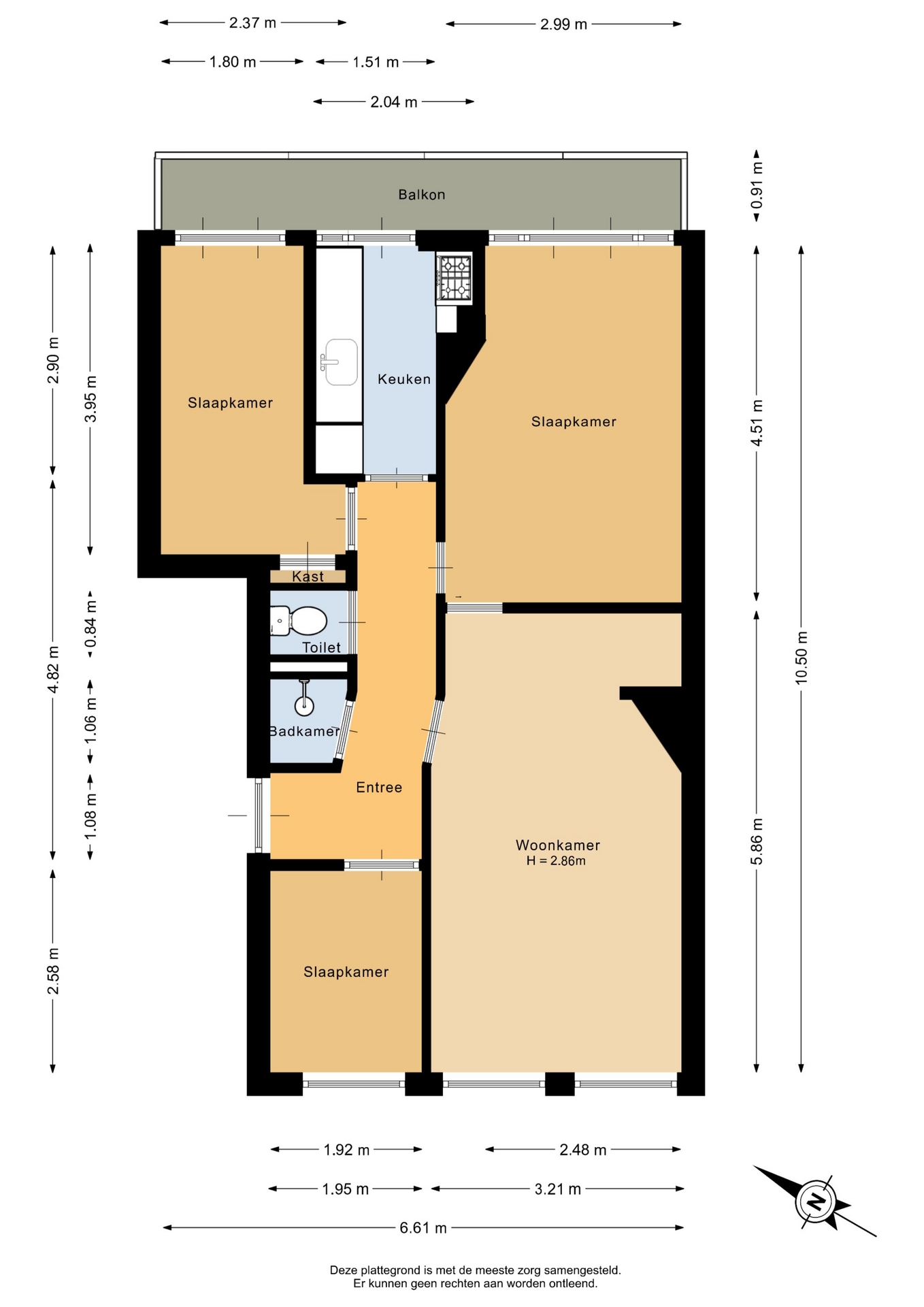
INDELING:
Open portiek naar de 1e etage; entree middels gang; douchruimte; toilet; slaapkamer aan de voorzijde; woonkamer aan de voorzijde; eetkamer aan de achterzijde met toegang tot het achterbalkon; keuken met opstelplaats c.v.-ketel en toegang tot het achterbalkon; 2e slaapkamer aan de achterzijde met toegang tot het achterbalkon.

Kortom: een woning met karakter, ruimte én mogelijkheden. Perfect voor kopers die niet bang zijn om de handen uit de mouwen te steken en hier iets bijzonders van willen maken.

BIJZONDERHEDEN:
- Ca. 60m² woonoppervlakte;
- Eigen grond;
- Bouwjaar 1934;
- Actieve VvE, bijdrage € 50,- per maand;
- Balkon aan de achterzijde op het Noordwesten;
- Kluswoning met enorm veel potentie;
- Centrale ligging nabij OV, winkels en gezellige eetgelegenheden;
- Projectnotaris: Van Dorst De Ruiter Notarissen te Dordrecht;
- Ouderdoms-, materialen- en "niet zelf bewonings"- en "as-is-where is" -clausules van toepassing.

INTERESSE? MAAK DAN SNEL EEN AFSPRAAK!
Ons advies is om bij het kopen van uw nieuwe woning uw eigen NVM makelaar mee te nemen.

TOELICHTINGSCLAUSULE NEN2580
De Meetinstructie is gebaseerd op de NEN2580. De Meetinstructie is bedoeld om een meer eenduidige manier van meten toe te passen voor het geven van een indicatie van de gebruiksoppervlakte. De Meetinstructie sluit verschillen in meetuitkomsten niet volledig uit, door bijvoorbeeld interpretatieverschillen, afrondingen of beperkingen bij het uitvoeren van de meting.

KOOPOVEREENKOMST PAS RECHTSGELDIG NA ONDERTEKENING
Een mondelinge overeenstemming tussen de particuliere verkoper en de particuliere koper is niet rechtsgeldig. Met andere woorden: er is geen koop. Er is pas sprake van een rechtsgeldige koop als de particuliere verkoper en de particuliere koper de koopovereenkomst hebben ondertekend. Dit vloeit voort uit artikel 7:2 Burgerlijk Wetboek. Een bevestiging van de mondelinge overeenstemming per e-mail of een toegestuurd concept van de koopovereenkomst wordt overigens niet gezien als een 'ondertekende koopovereenkomst'

“Deze informatie is door ons met de nodige zorgvuldigheid samengesteld. Onzerzijds wordt echter geen enkele aansprakelijkheid aanvaard voor enige onvolledigheid, onjuistheid of anderszins, dan wel de gevolgen daarvan. Alle opgegeven maten en oppervlakten zijn indicatief.”

Kenmerken

Basiskenmerken

  • Status Verkocht onder voorbehoud
  • Koopsom € 220.000 k.k.
  • Woonoppervlakte ca. 60 m2
  • Aantal slaapkamers 2
  • Bouwjaar 1934

Overdracht

  • Aanvaarding Direct

Bouwvorm & onderhoud

  • Bouwjaar 1934
  • Soort bouw woonhuis
  • Ligging Aan rustige weg, in woonwijk

Oppervlakte & inhoud

  • Gebruiksoppervlakte 60m2
  • Inhoud 209m3
  • Aantal kamers 4
  • Aantal slaapkamers 2
  • Aantal woonlagen 1 woonlagen

Energie & installatie

  • Energielabel C
  • Isolatie Gedeeltelijk dubbel glas
  • Verwarming Cv ketel
  • Warm water Cv ketel
  • C.v.-ketel type GAS
  • C.v.-ketel bouwjaar 2010
  • Energie einddatum 17-02-2036

Parkeergelegenheid

  • Parkeerfaciliteiten Openbaar parkeren, betaald parkeren, parkeervergunningen
  • Garage Geen garage

Dak

  • Soort dak Plat dak

Overig

  • Onderhoud binnen Matig
  • Onderhoud buiten Redelijk
  • Bijzonderheden Kluswoning
  • Permanente bewoning Ja
  • Huidig gebruik Woonruimte
  • Huidige bestemming Woonruimte

Kadastrale gegevens

  • Perceelnummer 5217
Meer kenmerken
Huis verkopen?

Maak een afspraak voor een gratis adviesgesprek met onze makelaars en ontdek jouw mogelijkheden.

Maak direct een afspraak

Media

In de buurt