Rotterdam

Johannes Meulsteestraat  28

€ 528.000,- k.k.

Omschrijving

In een rustige straat in de geliefde wijk Prinsenland ligt deze goed onderhouden en uitgebouwde eengezinswoning. Met een woonoppervlakte van circa 117 m², vier slaapkamers, een royale serre en een verzorgde achtertuin met berging is dit een huis waar ruimte en comfort centraal staan. Dankzij de rustige ligging én de centrale locatie nabij winkels, openbaar vervoer en…

In een rustige straat in de geliefde wijk Prinsenland ligt deze goed onderhouden en uitgebouwde eengezinswoning. Met een woonoppervlakte van circa 117 m², vier slaapkamers, een royale serre en een verzorgde achtertuin met berging is dit een huis waar ruimte en comfort centraal staan. Dankzij de rustige ligging én de centrale locatie nabij winkels, openbaar vervoer en uitvalswegen woon je hier bijzonder prettig.

VERKOPER AAN HET WOORD:
Na jaren heerlijk gewoond te hebben in ons gezinshuis aan de Johannes Meulsteestraat vertrekken wij nu naar een appartement. Wij hopen dat de nieuwe bewoners even veel zullen genieten van de ruimte in het huis en buiten, de rust, de lieve buren en alle voorzieningen dicht in de buurt.

LICHTE LIVING MET FRAAIE SERRE:
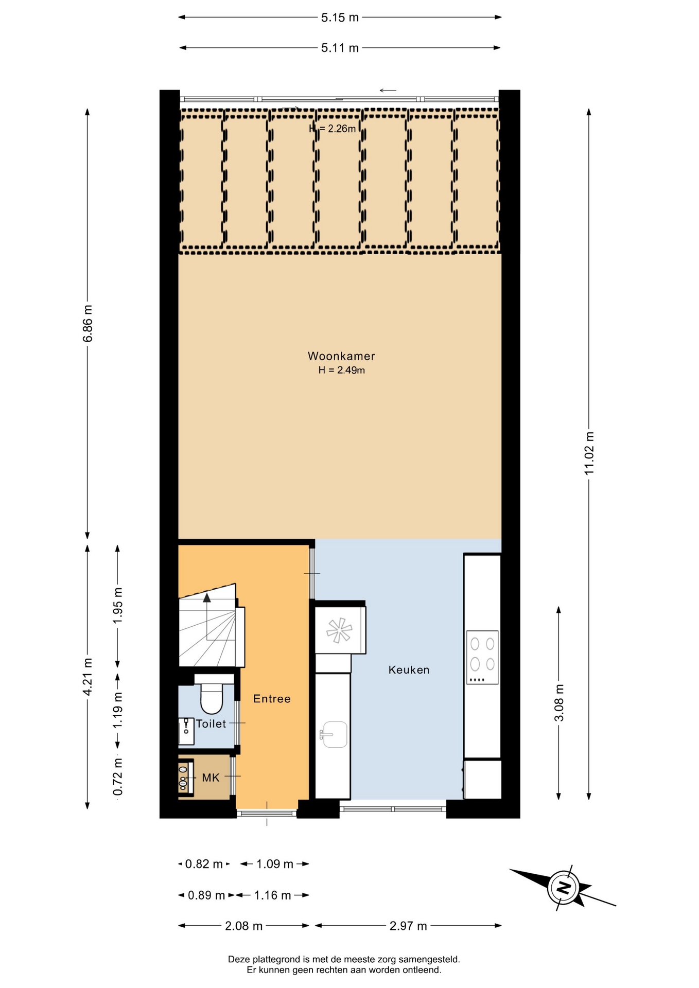
Bij binnenkomst ervaar je direct de fijne sfeer van deze woning. Via de voortuin bereik je de entree met hal, toiletruimte, meterkast en trapopgang naar de verdiepingen.

De woonkamer is ruim opgezet en vormt samen met de serre een heerlijke leefruimte. Aan de achterzijde is de woning uitgebouwd met een serre voorzien van warmtewerend glas. Hierdoor is de woonkamer vergroot tot circa 35 m² en ontstaat er een lichte en comfortabele ruimte met volop plek voor een royale zithoek en een gezellige eethoek.

Dankzij de brede schuifpui loopt de woonkamer mooi over in de achtertuin, waardoor binnen en buiten prettig met elkaar verbonden zijn. De grote raampartijen zorgen voor veel natuurlijk daglicht en geven de ruimte een open karakter.

MODERNE HALFOPEN KEUKEN:
Aan de voorzijde van de woning bevindt zich de moderne halfopen keuken in praktische parallelopstelling. De keuken beschikt over veel werk- en bergruimte en is voorzien van diverse inbouwapparatuur, waaronder een koel-vriescombinatie, vaatwasser, brede oven met grote inductiekookplaat, afzuigkap en een nieuwe combimagnetron.

De keuken is verzorgd afgewerkt en biedt alles wat je nodig hebt voor dagelijks gemak én uitgebreid koken.

VIER SLAAPKAMERS EN PRAKTISCHE VERDIEPINGEN:
Op de eerste verdieping bevinden zich drie slaapkamers en de badkamer. Aan de achterzijde ligt de masterbedroom van 14 m² (momenteel in gebruik als sportkamer) daarnaast de kamer van 8 m², beide voorzien van dakramen. Aan de voorzijde bevindt zich een derde slaapkamer van circa 9,2 m².

De badkamer is centraal gelegen en functioneel ingericht met een wastafel met spiegelkast, een toilet en een ligbad met douchegelegenheid.

De tweede verdieping biedt extra ruimte en flexibiliteit. Hier bevinden zich de aansluitingen voor wasapparatuur, de C.V.-ketel en de omvormer van de zonnepanelen. Daarnaast vind je hier nog een ruime slaapkamer momenteel in gebruik als master bedroom van circa 13,7 m². De dakkapel aan de voorzijde en het grote dakraam aan de achterzijde geeft de cross-ventilatie waardoor de kamer heerlijk koel blijft in de zomer.

FIJNE ACHTERTUIN MET BERGING:
De achtertuin is gelegen op het noordoosten en heeft een oppervlakte van circa 43 m². De tuin is grotendeels bestraat, netjes onderhouden en voorzien van een buitenkraan. Achterin de tuin bevindt zich een vrijstaande houten berging met ruimte voor fietsen en een praktische achterom.

Een fijne buitenruimte waar je rustig kunt zitten en volop mogelijkheden hebt om de tuin naar eigen wens in te richten.

RUSTIG EN CENTRAAL WONEN IN PRINSENLAND:
De Johannes Meulsteestraat ligt in de populaire wijk Prinsenland: een groene en ruim opgezette woonomgeving waar rust en bereikbaarheid perfect samenkomen. Winkelcentrum Prinsenland ligt op korte afstand en ook scholen, sportvoorzieningen, medische voorzieningen en horeca bevinden zich in de directe omgeving.

Daarnaast zijn metro- en busstations Capelsebrug en Kralingse Zoom snel bereikbaar en ben je via de A16 en A20 binnen korte tijd onderweg richting Rotterdam Centrum of de rest van de regio. Ook het Kralingse Bos ligt vlakbij voor ontspanning en recreatie.

De combinatie van ruimte, voorzieningen en bereikbaarheid maakt dit een bijzonder prettige plek om te wonen.

BIJZONDERHEDEN:
• Bouwjaar 1991;
• Gelegen op 132 m² erfpachtgrond, de canon is afgekocht t/m 24-06-2040. Aanvullende afkoop t/m 24-06-2089 is mogelijk de gemeente heeft een indicatie van de kosten afgegeven. Dit bedraagt circa € 8.000,- ;
• Woonoppervlakte circa 117 m²;
• Externe bergruimte circa 14 m²;
• Vier slaapkamers;
• Uitgebouwde woonkamer met serre;
• Serre voorzien van warmtewerend glas;
• Dakkapel geplaatst in 2018;
• 8 zonnepanelen geplaatst in 2023;
• Dak- en muurisolatie + dubbel HR++ glas;
• Energielabel A;
• Meterkast vernieuwd in 2022 met 3-fase aansluiting;
• Schilderwerk uitgevoerd in 2023 door erkende schilder;
• Verwarming en warm water via Vaillant C.V.-ketel uit 2013;
• Oplevering in overleg.

IN DEZE PRESENTATIE IS GEBRUIK GEMAAKT VAN IMPRESSIES. AAN DEZE IMPRESSIES KUNNEN GEEN RECHTEN WORDEN ONTLEEND.

INTERESSE? MAAK DAN SNEL EEN AFSPRAAK!
Ons advies is om bij het kopen van je nieuwe huis je eigen NVM-makelaar mee te nemen.

TOELICHTINGSCLAUSULE NEN2580:
De Meetinstructie is gebaseerd op de NEN2580. De Meetinstructie is bedoeld om een meer eenduidige manier van meten toe te passen voor het geven van een indicatie van de gebruiksoppervlakte. De Meetinstructie sluit verschillen in meetuitkomsten niet volledig uit, door bijvoorbeeld interpretatieverschillen, afrondingen of beperkingen bij het uitvoeren van de meting.

“Deze informatie is door ons met de nodige zorgvuldigheid samengesteld. Onzerzijds wordt echter geen enkele aansprakelijkheid aanvaard voor enige onvolledigheid, onjuistheid of anderszins, dan wel de gevolgen daarvan. Alle opgegeven maten en oppervlakten zijn indicatief.”

KOOPOVEREENKOMST PAS RECHTSGELDIG NA ONDERTEKENING:
Een mondelinge overeenstemming tussen de particuliere verkoper en de particuliere koper is niet rechtsgeldig. Met andere woorden: er is geen koop. Er is pas sprake van een rechtsgeldige koop als de particuliere verkoper en de particuliere koper de koopovereenkomst hebben ondertekend. Dit vloeit voort uit artikel 7:2 Burgerlijk Wetboek. Een bevestiging van de mondelinge overeenstemming per e-mail of een toegestuurd concept van de koopovereenkomst wordt overigens niet gezien als een 'ondertekende koopovereenkomst'.

Kenmerken

Basiskenmerken

  • Status Beschikbaar
  • Koopsom € 528.000 k.k.
  • Woonoppervlakte ca. 117 m2
  • Aantal slaapkamers 4
  • Bouwjaar 1991

Overdracht

  • Aanvaarding In overleg

Bouwvorm & onderhoud

  • Soort object Tussenwoning
  • Soort woning Eengezinswoning
  • Bouwjaar 1991
  • Soort bouw woonhuis
  • Ligging In woonwijk

Oppervlakte & inhoud

  • Gebruiksoppervlakte 117m2
  • Perceeloppervlakte 272m2
  • Inhoud 405m3
  • Aantal kamers 5
  • Aantal slaapkamers 4
  • Aantal woonlagen 3 woonlagen

Energie & installatie

  • Energielabel A
  • Isolatie Dakisolatie, muurisolatie, dubbel glas
  • Verwarming Cv ketel
  • Warm water Cv ketel
  • C.v.-ketel type GAS
  • C.v.-ketel bouwjaar 2013
  • Energie einddatum 30-03-2036

Bergruimte

  • Schuur / berging Vrijstaand hout

Parkeergelegenheid

  • Parkeerfaciliteiten Openbaar parkeren
  • Garage Geen garage

Dak

  • Soort dak Zadeldak

Overig

  • Onderhoud binnen Goed
  • Onderhoud buiten Goed
  • Bijzonderheden Gedeeltelijk gestoffeerd
  • Permanente bewoning Ja
  • Huidig gebruik Woonruimte
  • Huidige bestemming Woonruimte

Voorzieningen

  • Voorzieningen Mechanische ventilatie, schuifpui, dakraam, zonnepanelen

Buitenruimte

  • Hoofdtuin ACHTERTUIN
  • Oppervlakte hoofdtuin 43m2
  • Ligging hoofdtuin NOORDOOST
  • Kwaliteit tuin Normaal

Kadastrale gegevens

  • Perceelnummer 4262
  • Perceeloppervlakte 272 m2
Meer kenmerken
Huis verkopen?

Maak een afspraak voor een gratis adviesgesprek met onze makelaars en ontdek jouw mogelijkheden.

Maak direct een afspraak

In de buurt

Geïnteresseerd?

Bel met Van Herk makelaars te Capelle aan den IJssel

shape

Stuur een bericht

* Maximaal 255 tekens
privacyverklaring