Gouda
Karnemelksloot 39 a
€ 350.000,- k.k.
Omschrijving
LICHT EN RUIM 3-KAMERAPPARTEMENT MET EIGEN PARKEERPLAATS EN BALKON OP ZUIDEN Aan de Karnemelksloot in Gouda vind je dit verrassend ruime 3-kamerappartement van circa 93 m² in de "Panoramaflat". Het appartement ligt op de vierde verdieping van het complex en biedt een fijne combinatie van rust, uitzicht en een centrale ligging. Met een lichte woonkamer, twee slaapkamers,…
LICHT EN RUIM 3-KAMERAPPARTEMENT MET EIGEN PARKEERPLAATS EN BALKON OP ZUIDEN
Aan de Karnemelksloot in Gouda vind je dit verrassend ruime 3-kamerappartement van circa 93 m² in de "Panoramaflat". Het appartement ligt op de vierde verdieping van het complex en biedt een fijne combinatie van rust, uitzicht en een centrale ligging. Met een lichte woonkamer, twee slaapkamers, een zonnig balkon op het zuiden én een eigen parkeerplaats is dit een plek waar zowel starters als mensen die wat kleiner willen wonen zich snel thuis zullen voelen. Daarbij woon je hier op korte afstand van het historische centrum van Gouda en alle dagelijkse voorzieningen.
BELANGRIJKSTE KENMERKEN
- Eigen parkeerplaats;
- Ligging nabij het centrum van Gouda;
- Balkon op het zuiden met mooi uitzicht;
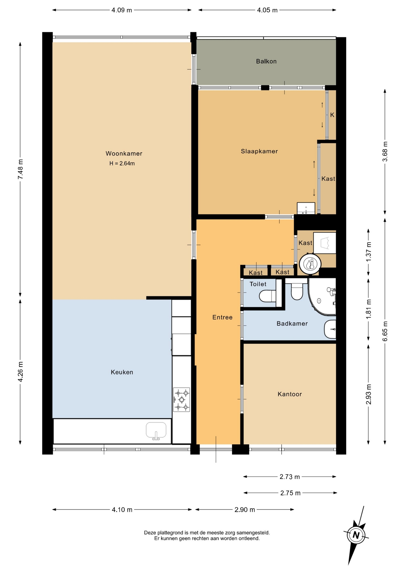
- Woonoppervlakte ca. 93 m²;
- Gelegen op de vierde verdieping;
- Twee slaapkamers;
- Houtwerk buiten in 2024 geschilderd;
- Elektrische boiler van Nibe 100 liter zorgt voor warm water;
- Blokverwarming (voorschot stookkosten ca. € 45,- per maand);
- Servicekosten circa € 280,- per maand (excl. voorschot stookkosten en incl. waterverbruik);
- Bijna volledig dubbel glas;
- Eigen berging in de onderbouw;
- Energielabel C;
- Oplevering in overleg.
LICHTE WOONKAMER MET VRIJ UITZICHT
Zodra je binnenkomt valt meteen de prettige lichtinval op. De woonkamer is ruim opgezet en dankzij de brede raampartij aan de voorzijde komt er veel daglicht naar binnen. Vanuit de zithoek kijk je vrij uit over de omgeving, wat zorgt voor een open en ruimtelijk gevoel.
De indeling biedt voldoende plek voor een comfortabele zithoek en een gezellige eethoek. Door de ligging op de vierde verdieping ervaar je hier rust en privacy, terwijl je toch midden in de stad woont. De grote ramen versterken het gevoel van ruimte en maken de woonkamer tot een fijne plek om te ontspannen of gasten te ontvangen. Vanuit de woonkamer heb je direct toegang tot het balkon. Dit vormt een mooie verlenging van de leefruimte en zorgt ervoor dat binnen en buiten prettig in elkaar overlopen.
RUIME KEUKEN EN TWEE GOEDE SLAAPKAMERS
De keuken is praktisch ingericht en biedt veel werk- en opbergruimte. De opstelling bestaat uit moderne donkere fronten met een licht werkblad en diverse inbouwapparatuur. Hier heb je voldoende ruimte om uitgebreid te koken en tegelijkertijd contact te houden met de rest van het appartement.
Het appartement beschikt over twee slaapkamers. De grootste slaapkamer biedt voldoende ruimte voor een tweepersoonsbed en een kastenwand. De tweede kamer is ideaal als logeerkamer, werkkamer of hobbyruimte. Daarmee is het appartement flexibel in gebruik en geschikt voor verschillende woonwensen. De badkamer is functioneel ingericht met een douchecabine, tweede toilet en wastafel met een meubel.
ZONNIG BALKON EN EIGEN PARKEERPLAATS
Een van de fijne pluspunten van dit appartement is het balkon op het zuiden. Hier kun je al vroeg op de dag genieten van de zon. Het balkon biedt voldoende ruimte voor een zitje, waardoor het een heerlijke plek is voor een kop koffie in de ochtend of een moment van rust na een drukke dag. Daarnaast beschikt het appartement over een eigen parkeerplaats. Dat is een groot voordeel op deze centrale locatie in Gouda, waar parkeren in de omgeving vaak druk kan zijn. Zo kom je altijd gemakkelijk thuis en hoef je niet te zoeken naar een plek.
GEZONDE EN ACTIEVE VVE
Het complex wordt beheerd door een actieve Vereniging van Eigenaren en is netjes onderhouden. Zo is het dak van het complex enkele jaren geleden vernieuwd zijn er zonnepanelen geplaatst en zijn de kozijnen recent nog geschilderd.
WONEN NABIJ HET HISTORISCHE CENTRUM VAN GOUDA
De Karnemelksloot ligt op een aantrekkelijke locatie aan de rand van het centrum van Gouda. Vanuit het appartement wandel je in korte tijd naar de gezellige binnenstad met haar historische grachten, winkels, restaurants en terrassen. Ook supermarkten, openbaar vervoer en andere dagelijkse voorzieningen zijn eenvoudig bereikbaar.
Gouda staat bekend om zijn karakteristieke binnenstad met monumentale panden, het beroemde stadhuis op de Markt en natuurlijk de kaasmarkt. Tegelijkertijd biedt de stad een prettige woonomgeving met veel groen, water en goede verbindingen naar omliggende steden zoals Rotterdam, Utrecht en Den Haag.
Voor ontspanning zijn er in de omgeving diverse parken en wandelroutes langs het water. Ook het station van Gouda is goed bereikbaar, waardoor je met het openbaar vervoer snel richting de grote steden reist. Hierdoor combineer je hier het comfort van rustig wonen met de levendigheid van de stad dichtbij.
INTERESSE? MAAK DAN SNEL EEN AFSPRAAK!
Ons advies is om bij het kopen van je nieuwe huis je eigen NVM-makelaar mee te nemen.
TOELICHTINGSCLAUSULE NEN2580
De Meetinstructie is gebaseerd op de NEN2580. De Meetinstructie is bedoeld om een meer eenduidige manier van meten toe te passen voor het geven van een indicatie van de gebruiksoppervlakte. De Meetinstructie sluit verschillen in meetuitkomsten niet volledig uit, door bijvoorbeeld interpretatieverschillen, afrondingen of beperkingen bij het uitvoeren van de meting.
“Deze informatie is door ons met de nodige zorgvuldigheid samengesteld. Onzerzijds wordt echter geen enkele aansprakelijkheid aanvaard voor enige onvolledigheid, onjuistheid of anderszins, dan wel de gevolgen daarvan. Alle opgegeven maten en oppervlakten zijn indicatief.”
KOOPOVEREENKOMST PAS RECHTSGELDIG NA ONDERTEKENING
Een mondelinge overeenstemming tussen de particuliere verkoper en de particuliere koper is niet rechtsgeldig. Met andere woorden: er is geen koop. Er is pas sprake van een rechtsgeldige koop als de particuliere verkoper en de particuliere koper de koopovereenkomst hebben ondertekend. Dit vloeit voort uit artikel 7:2 Burgerlijk Wetboek. Een bevestiging van de mondelinge overeenstemming per e-mail of een toegestuurd concept van de koopovereenkomst wordt overigens niet gezien als een 'ondertekende koopovereenkomst'.
Kenmerken
Basiskenmerken
- Status Beschikbaar
- Koopsom € 350.000 k.k.
- Woonoppervlakte ca. 93 m2
- Aantal slaapkamers 2
- Bouwjaar 1968
Overdracht
- Aanvaarding In overleg
Bouwvorm & onderhoud
- Bouwjaar 1968
- Soort bouw woonhuis
- Ligging In centrum, in woonwijk, vrij uitzicht
Oppervlakte & inhoud
- Gebruiksoppervlakte 93m2
- Perceeloppervlakte 17m2
- Inhoud 297m3
- Aantal kamers 3
- Aantal slaapkamers 2
- Aantal woonlagen 1 woonlagen
Energie & installatie
- Energielabel C
- Isolatie Grotendeels dubbelglas, hr glas
- Verwarming Blokverwarming
- Warm water Elektrische boiler eigendom
- Energie einddatum 18-07-2027
Bergruimte
- Voorzieningen Voorzien van elektra
Parkeergelegenheid
- Parkeerfaciliteiten Betaald parkeren, parkeervergunningen, op eigen terrein
- Garage Parkeerplaats
Overig
- Onderhoud binnen Goed
- Onderhoud buiten Goed
- Bijzonderheden Gedeeltelijk gestoffeerd, toegankelijk voor ouderen, toegankelijk voor minder validen
- Permanente bewoning Ja
- Huidig gebruik Woonruimte
- Huidige bestemming Woonruimte
Voorzieningen
- Voorzieningen Buitenzonwering, lift, glasvezel kabel, natuurlijke ventilatie
Kadastrale gegevens
- Perceelnummer 7675
- Perceeloppervlakte 17 m2
Maak een afspraak voor een gratis adviesgesprek met onze makelaars en ontdek jouw mogelijkheden.
Maak direct een afspraak