Capelle Aan Den Ijssel

Kerklaan  504

€ 425.000,- k.k.

Omschrijving

Op zoek naar een 3-kamer appartement in het centrum van Capelle aan den IJssel? Hier vindt u hem! Het appartement is keurig onderhouden maar wel eenvoudig, beschikt over een privé berging in de onderbouw, ruime woonkamer met open keuken, zonnig balkon en twee ruime slaapkamers. Het appartement is gelegen in het stadshart van Capelle a/d IJssel, een super fijne woonlocatie…

Op zoek naar een 3-kamer appartement in het centrum van Capelle aan den IJssel? Hier vindt u hem! Het appartement is keurig onderhouden maar wel eenvoudig, beschikt over een privé berging in de onderbouw, ruime woonkamer met open keuken, zonnig balkon en twee ruime slaapkamers. Het appartement is gelegen in het stadshart van Capelle a/d IJssel, een super fijne woonlocatie met winkelcentrum de Koperwiek gelegen aan de overkant van het appartement, gezellige restaurants, het theater, metrostation Capelle-Centrum en sportgelegenheden allemaal op loopafstand.

Begane grond:
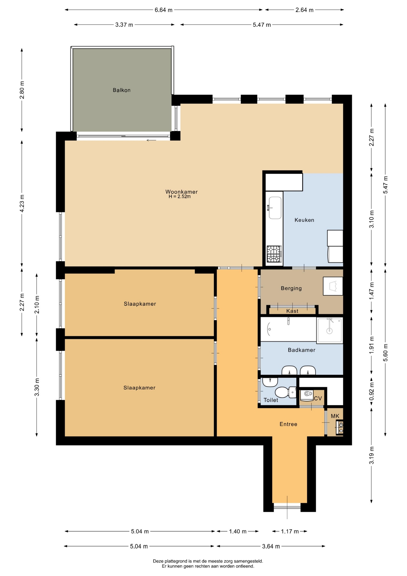
Afgesloten entree met bellentableau, brievenbussen, trappenhuis en liftinstallatie.

Woonverdieping:
Via de lift of het trappenhuis bereiken we het appartement op de eerste etage.

Entree/hal voorzien van een meterkast, aparte kast met de cv installatie en de toegang tot de tussenhal. De tussenhal geeft toegang tot alle vertrekken in het appartement en een ruime berging met opstelplaats voor de wasapparatuur.

De woonkamer is heerlijk licht en ruim en biedt toegang tot het zonnige balkon. Het balkon heeft een gezellig uitzicht en is dankzij de ligging op het zuidwesten heerlijk zonnig. Aan de voorzijde van het appartement vindt u een riante woonkeuken. De keuken is in een rechte opstelling geplaatst en beschikt over enige apparatuur.

Het appartement heeft twee slaapkamers. Beide slaapkamers zijn afgewerkt met grote raampartijen, waardoor het heerlijk licht is.

De badkamer is voorzien van een douchecabine, dubbele wastafel en een ligbad. Separaat is er een toilet aanwezig.

Bijzonderheden:
- Bouwjaar 1994;
- Woonoppervlakte circa 101m²;
- Gelegen in het centrum van Capelle a/d IJssel;
- Fijn balkon;
- 2 slaapkamers;
- Goed geïsoleerd met onder andere volledig dubbel glas;
- Privé berging aanwezig;
- Actieve Vereniging van Eigenaren met een maandelijkse bijdrage van circa € 181,36
- Energielabel: A;
- Oplevering in overleg.

KORTOM: EEN HEERLIJK APPARTEMENT OP EEN ZEER CENTRALE LOCATIE. ALLE DAGELIJKSE VOORZIENINGEN BEVINDEN ZICH IN DE DIRECTE OMGEVING ZOALS HET WINKELCENTRUM EN DE METRO. KOMT U SNEL LANGS VOOR EEN BEZICHTIGING ?

INTERESSE? MAAK DAN SNEL EEN AFSPRAAK!
Ons advies is om bij het kopen van uw nieuwe woning uw eigen NVM makelaar mee te nemen.

TOELICHTINGSCLAUSULE NEN2580
De Meetinstructie is gebaseerd op de NEN2580. De Meetinstructie is bedoeld om een meer eenduidige manier van meten toe te passen voor het geven van een indicatie van de gebruiksoppervlakte. De Meetinstructie sluit verschillen in meetuitkomsten niet volledig uit, door bijvoorbeeld interpretatieverschillen, afrondingen of beperkingen bij het uitvoeren van de meting.

KOOPOVEREENKOMST PAS RECHTSGELDIG NA ONDERTEKENING
Een mondelinge overeenstemming tussen de particuliere verkoper en de particuliere koper is niet rechtsgeldig. Met andere woorden: er is geen koop. Er is pas sprake van een rechtsgeldige koop als de particuliere verkoper en de particuliere koper de koopovereenkomst hebben ondertekend. Dit vloeit voort uit artikel 7:2 Burgerlijk Wetboek. Een bevestiging van de mondelinge overeenstemming per e-mail of een toegestuurd concept van de koopovereenkomst wordt overigens niet gezien als een 'ondertekende koopovereenkomst'

“Deze informatie is door ons met de nodige zorgvuldigheid samengesteld. Onzerzijds wordt echter geen enkele aansprakelijkheid aanvaard voor enige onvolledigheid, onjuistheid of anderszins, dan wel de gevolgen daarvan. Alle opgegeven maten en oppervlakten zijn indicatief.”

Kenmerken

Basiskenmerken

  • Status Beschikbaar
  • Koopsom € 425.000 k.k.
  • Woonoppervlakte ca. 102 m2
  • Aantal slaapkamers 2
  • Bouwjaar 1994

Overdracht

  • Aanvaarding In overleg

Bouwvorm & onderhoud

  • Bouwjaar 1994
  • Soort bouw woonhuis
  • Ligging In centrum, in woonwijk

Oppervlakte & inhoud

  • Gebruiksoppervlakte 102m2
  • Inhoud 317m3
  • Aantal kamers 3
  • Aantal slaapkamers 2
  • Aantal woonlagen 1 woonlagen

Energie & installatie

  • Energielabel A
  • Isolatie Dakisolatie, muurisolatie, vloerisolatie, dubbel glas
  • Verwarming Cv ketel
  • Warm water Cv ketel
  • C.v.-ketel type GAS
  • Energie einddatum 29-04-2034

Bergruimte

  • Schuur / berging Box
  • Voorzieningen Voorzien van elektra

Parkeergelegenheid

  • Parkeerfaciliteiten Openbaar parkeren
  • Garage Geen garage

Dak

  • Soort dak Plat dak

Overig

  • Onderhoud binnen Goed
  • Onderhoud buiten Goed tot uitstekend
  • Bijzonderheden Gedeeltelijk gestoffeerd
  • Permanente bewoning Ja
  • Huidig gebruik Woonruimte
  • Huidige bestemming Woonruimte

Voorzieningen

  • Voorzieningen Mechanische ventilatie, buitenzonwering, schuifpui

Kadastrale gegevens

  • Perceelnummer 4494
Meer kenmerken
Huis verkopen?

Maak een afspraak voor een gratis adviesgesprek met onze makelaars en ontdek jouw mogelijkheden.

Maak direct een afspraak

In de buurt

Geïnteresseerd?

Bel met Van Herk makelaars te Capelle aan den IJssel

shape

Stuur een bericht

* Maximaal 255 tekens
privacyverklaring