Rotterdam

Krekelstraat  3 C

€ 350.000,- k.k.

Omschrijving

Leuk en karakteristiek 2-kamerappartement met tuin in Kralingen-Crooswijk Op zoek naar een fijn eerste huis op een toplocatie in Rotterdam? Dan zit je hier goed. Dit nette 2-kamer appartement van ca. 61 m² ligt in de populaire wijk Kralingen-Crooswijk en beschikt over een verrassend ruime achtertuin van ca. 7 meter diep. Het huis is de afgelopen jaren deels opgeknapt en…

Leuk en karakteristiek 2-kamerappartement met tuin in Kralingen-Crooswijk

Op zoek naar een fijn eerste huis op een toplocatie in Rotterdam? Dan zit je hier goed. Dit nette 2-kamer appartement van ca. 61 m² ligt in de populaire wijk Kralingen-Crooswijk en beschikt over een verrassend ruime achtertuin van ca. 7 meter diep. Het huis is de afgelopen jaren deels opgeknapt en vormt daarmee een mooie basis waar je zo in kunt, met nog ruimte om het helemaal naar eigen smaak af te maken.

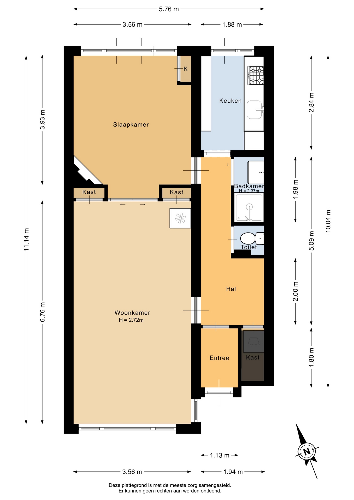
FIJNE WOONKAMER MET VEEL LICHT
Bij binnenkomst kom je in de hal die toegang geeft tot alle vertrekken. De woonkamer ligt aan de voorzijde van het huis en valt direct op door het prettige lichtinval via de grote raampartijen. De ruimte is praktisch in te delen met een comfortabele zithoek en een eethoek. De huidige indeling laat goed zien hoe je hier een gezellige leefruimte creëert waar je zowel kunt ontspannen als vrienden ontvangt. De nette afwerking en de hoogte van het plafond zorgen voor een ruimtelijk gevoel. Aan de achterzijde van het huis vind je de slaapkamer. Dit is een ruime kamer waar met gemak een tweepersoonsbed en kastruimte geplaatst kan worden. Vanuit hier heb je een directe verbinding met de rest van het appartement en ervaar je een rustige ligging aan de tuinzijde.

DICHTE KEUKEN MET TOEGANG TOT TUIN
De keuken bevindt zich eveneens aan de achterzijde en is uitgevoerd in een lichte opstelling met een modern werkblad. Hier heb je alles bij de hand voor dagelijks gebruik. De keuken is praktisch ingericht en biedt voldoende werk- en opbergruimte. Vanuit de keuken stap je zo de tuin in, wat het contact tussen binnen en buiten erg prettig maakt. De badkamer is compact maar functioneel ingericht en voorzien van een douche en wastafel. Daarnaast is er een separaat toilet aanwezig, wat zorgt voor extra comfort.

GENIETEN VAN EEN RUIME ACHTERTUIN
Een van de grote pluspunten van dit huis is de achtertuin. Met een diepte van circa 7 meter heb je hier opvallend veel buitenruimte voor een appartement. De tuin is een combinatie van terras en groen, waardoor je meerdere zitplekken kunt creëren. Of je nu rustig wilt genieten van een kop koffie in de ochtendzon of met vrienden wilt borrelen op een zomeravond, hier kan het allemaal. De houten schuttingen zorgen voor privacy en een beschutte sfeer.

WONEN IN POPULAIR KRALINGEN-CROOSWIJK
De ligging in Kralingen-Crooswijk is voor veel starters ideaal. Je woont hier rustig, maar met alles binnen handbereik. Op korte afstand vind je diverse supermarkten, winkels en horecagelegenheden. Ook het Kralingse Bos en de Kralingse Plas liggen dichtbij, perfect voor een wandeling of sportmoment. De bereikbaarheid is goed geregeld. Met de fiets ben je zo in het centrum van Rotterdam en ook openbaar vervoer is in de directe omgeving aanwezig. Daarnaast zijn uitvalswegen richting de A16 en A20 eenvoudig te bereiken. Dit maakt het een fijne plek voor wie centraal wil wonen met alle voorzieningen om de hoek.

KENMERKEN
-Eigen grond
-Bouwjaar 1937
-Woonoppervlakte ca. 61 m²
-Energielabel C
-Gedeeltelijk gerenoveerd
-Karakteristieke details
-Ruime tuin van ca. 40m²
-Verwarming en warm water via CV-ketel Intergas (2021)
-Actieve VvE met een bijdrage van €120,- per maand
-Ouderdomsclausule van toepassing
-Oplevering in overleg

INTERESSE? MAAK DAN SNEL EEN AFSPRAAK!
Ons advies is om bij het kopen van jouw nieuwe woning jouw eigen NVM makelaar mee te nemen.

TOELICHTINGSCLAUSULE NEN2580
De Meetinstructie is gebaseerd op de NEN2580. De Meetinstructie is bedoeld om een meer eenduidige manier van meten toe te passen voor het geven van een indicatie van de gebruiksoppervlakte. De Meetinstructie sluit verschillen in meetuitkomsten niet volledig uit, door bijvoorbeeld interpretatieverschillen, afrondingen of beperkingen bij het uitvoeren van de meting.

KOOPOVEREENKOMST PAS RECHTSGELDIG NA ONDERTEKENING
Een mondelinge overeenstemming tussen de particuliere verkoper en de particuliere koper is niet rechtsgeldig. Met andere woorden: er is geen koop. Er is pas sprake van een rechtsgeldige koop als de particuliere verkoper en de particuliere koper de koopovereenkomst hebben ondertekend. Dit vloeit voort uit artikel 7:2 Burgerlijk Wetboek. Een bevestiging van de mondelinge overeenstemming per e-mail of een toegestuurd concept van de koopovereenkomst wordt overigens niet gezien als een 'ondertekende koopovereenkomst'

“Deze informatie is door ons met de nodige zorgvuldigheid samengesteld. Onzerzijds wordt echter geen enkele aansprakelijkheid aanvaard voor enige onvolledigheid, onjuistheid of anderszins, dan wel de gevolgen daarvan. Alle opgegeven maten en oppervlakten zijn indicatief.”

Kenmerken

Basiskenmerken

  • Status Beschikbaar
  • Koopsom € 350.000 k.k.
  • Woonoppervlakte ca. 61 m2
  • Aantal slaapkamers 1
  • Bouwjaar 1937

Overdracht

  • Aanvaarding In overleg

Bouwvorm & onderhoud

  • Bouwjaar 1937
  • Soort bouw woonhuis
  • Ligging In woonwijk

Oppervlakte & inhoud

  • Gebruiksoppervlakte 61m2
  • Inhoud 230m3
  • Aantal kamers 2
  • Aantal slaapkamers 1
  • Aantal woonlagen 1 woonlagen

Energie & installatie

  • Energielabel C
  • Isolatie Dubbel glas
  • Verwarming Cv ketel
  • Warm water Cv ketel
  • C.v.-ketel type GAS
  • C.v.-ketel bouwjaar 2021
  • Energie einddatum 24-12-2031

Bergruimte

  • Schuur / berging Vrijstaand hout

Parkeergelegenheid

  • Parkeerfaciliteiten Betaald parkeren, parkeervergunningen
  • Garage Geen garage

Dak

  • Soort dak Plat dak

Overig

  • Onderhoud binnen Goed
  • Onderhoud buiten Redelijk tot goed
  • Bijzonderheden Gedeeltelijk gestoffeerd
  • Permanente bewoning Ja
  • Huidig gebruik Woonruimte
  • Huidige bestemming Woonruimte

Voorzieningen

  • Voorzieningen Tv kabel, natuurlijke ventilatie

Buitenruimte

  • Hoofdtuin ACHTERTUIN
  • Oppervlakte hoofdtuin 43m2
  • Ligging hoofdtuin NOORD
  • Kwaliteit tuin Normaal

Kadastrale gegevens

  • Perceelnummer 3291
Meer kenmerken
Huis verkopen?

Maak een afspraak voor een gratis adviesgesprek met onze makelaars en ontdek jouw mogelijkheden.

Maak direct een afspraak

In de buurt

Geïnteresseerd?

Bel met Van Herk Makelaars te Rotterdam

shape

Stuur een bericht

* Maximaal 255 tekens
privacyverklaring