Ammerstol

Lekdijk  156

€ 635.000,- k.k.

Omschrijving

Aan de karakteristieke Lekdijk in Ammerstol staat deze vrijstaande dijkwoning die ruimte, comfort én mogelijkheden biedt. Met een woonoppervlakte van maar liefst 173 m², 3 (mogelijkheid tot 4) slaapkamers en een aparte kantoor-/praktijkruimte aan huis is dit een plek die veel meer biedt dan je op het eerste gezicht zou verwachten. Of je nu op zoek bent naar een huis waar…

Aan de karakteristieke Lekdijk in Ammerstol staat deze vrijstaande dijkwoning die ruimte, comfort én mogelijkheden biedt. Met een woonoppervlakte van maar liefst 173 m², 3 (mogelijkheid tot 4) slaapkamers en een aparte kantoor-/praktijkruimte aan huis is dit een plek die veel meer biedt dan je op het eerste gezicht zou verwachten. Of je nu op zoek bent naar een huis waar je werken en wonen kunt combineren, een woning met veel leefruimte, of een stijlvolle en energiezuinige plek om te settelen - dit huis heeft het allemaal.

PLUSPUNTEN
- Woonoppervlakte van maar liefst 173m²;
- 19 zonnepanelen;
- Energielabel A;
- Dak volledig vernieuwd in 2023;
- Modern en instapklaar;
- Splitsen van woning is mogelijk;
- Zowel een dakterras als tuin op de begane grond;
- Praktijkruimte op begane grond kan dienen als 4e slaapkamer.

De woning is verdeeld over drie verdiepingen en is met zorg gerenoveerd en gemoderniseerd. Het resultaat is een comfortabele, sfeervolle woning met moderne voorzieningen, maar met behoud van het authentieke karakter. En met energielabel A, zonnepanelen en goede isolatie ben je hier ook nog eens klaar voor de toekomst.

SFEERVOL WONEN MET RUIMTE VOOR IEDEREEN
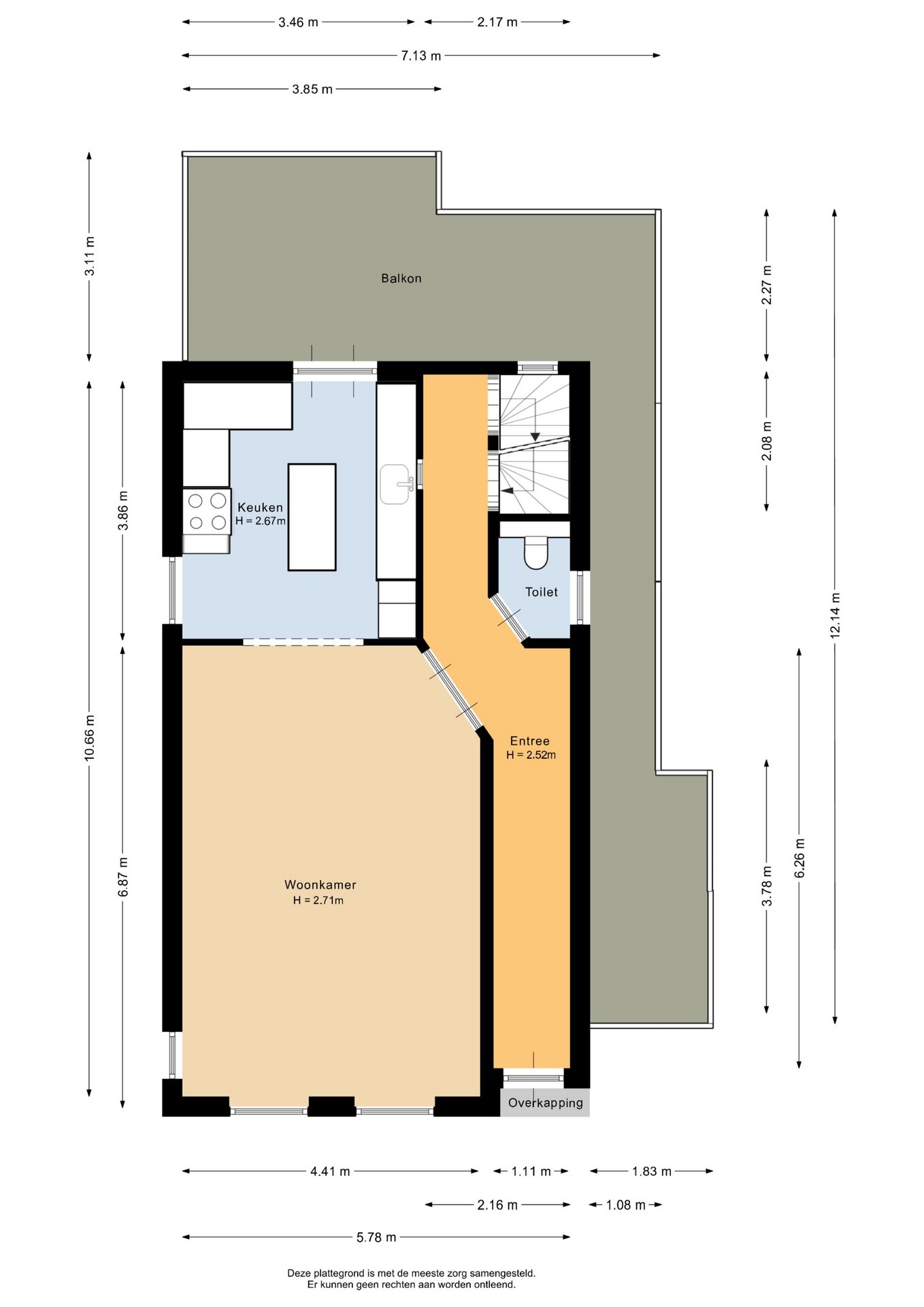
Zodra je de woonkamer binnen stapt, voel je het: hier wordt met liefde en smaak gewoond. De royale leefruimte op dijkniveau is licht, ruim en warm ingericht. De mooie visgraatvloer, hoge plafonds en open verbinding naar de keuken geven het geheel een prettige sfeer. De woonkamer biedt ruimte voor een grote zithoek én een eettafel — ideaal voor gezellige etentjes met familie of vrienden.

De aangrenzende keuken is praktisch ingedeeld, voorzien van alle moderne gemakken en beschikt over veel bergruimte. De combinatie van sfeervolle details met hedendaags comfort zorgt voor een fijne plek waar koken vanzelf ontspanning wordt. Het terras aan de achterzijde is een verlengde van de woonkeuken.

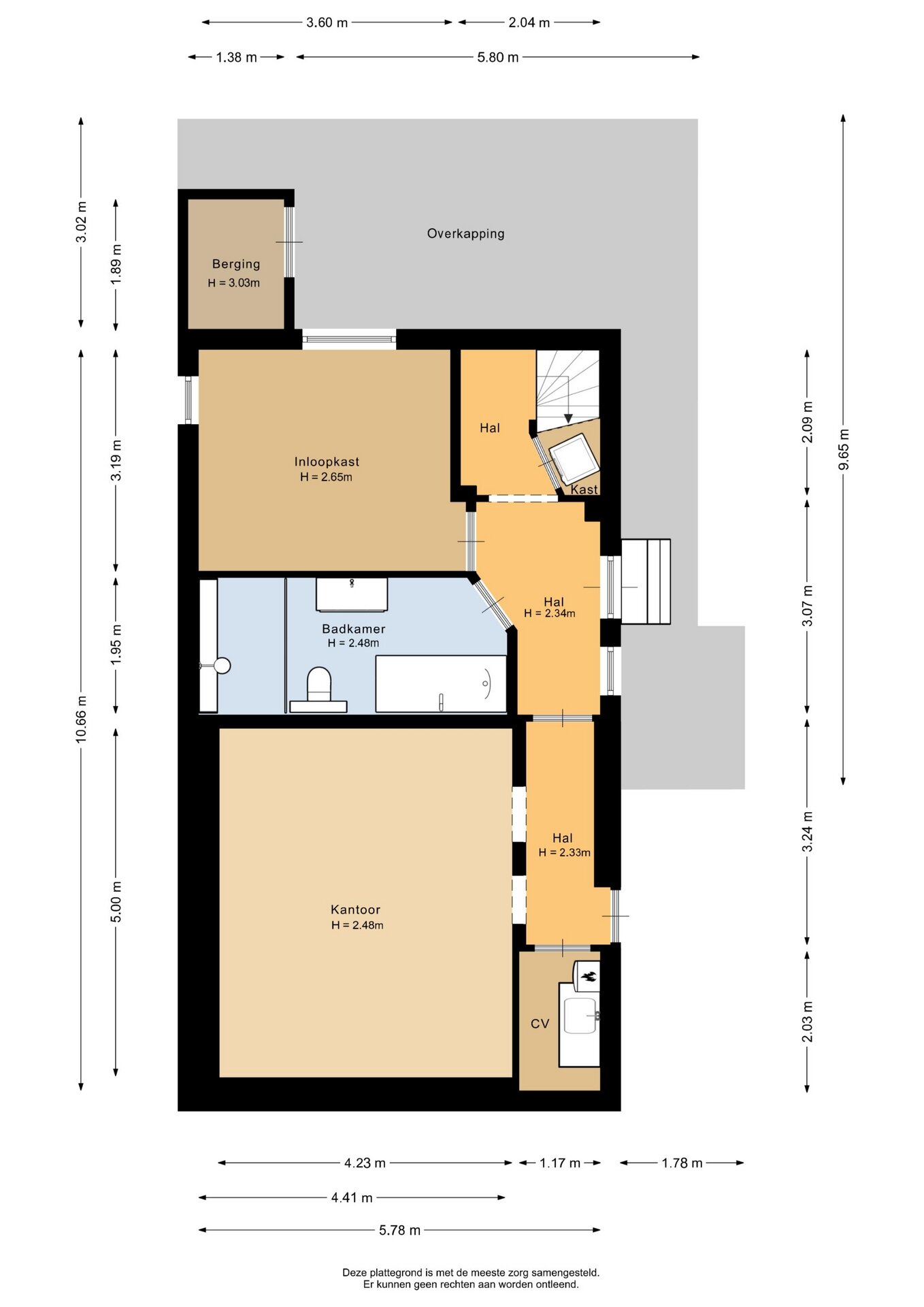
Op de benedenverdieping vind je een verrassend luxe uitgevoerde badkamer. Denk aan een ruime inloopdouche, dubbele waskommen, een stijlvol bad en smaakvolle tegelafwerking: alles klopt. Hier kom je tot rust na een lange dag. De rest van deze verdieping is ingericht als multifunctionele ruimte en biedt toegang tot de kantoor-/praktijkruimte aan huis. Of je nu een werkruimte zoekt, een atelier, praktijkruimte of een plek voor hobby’s - of een 4e slaapkamer...het is hier allemaal mogelijk. Dankzij een eigen entree is deze ruimte ook prima te gebruiken voor werk met cliënten of bezoekers.

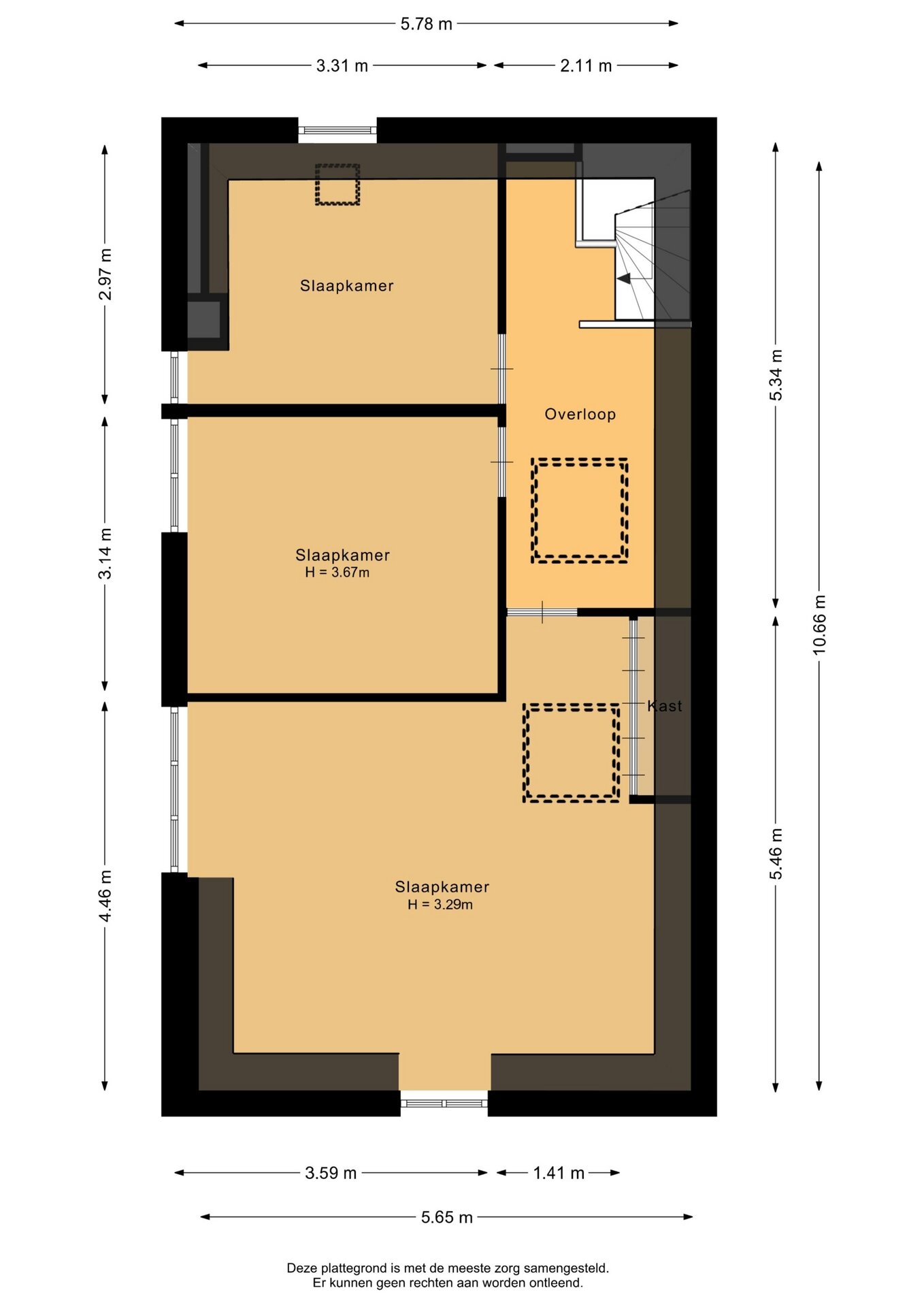
De verdieping telt 3 slaapkamers. De grootste kamer met zicht op De Lek voelt extra ruimtelijk aan dankzij de dakkapel. De andere kamers zijn eveneens netjes afgewerkt en van een goed formaat.

EIGENTIJDS EN DUURZAAM WONEN
Met energielabel A, zonnepanelen op het dak en moderne installaties woon je hier duurzaam én comfortabel. De airco’s zorgen op warme dagen voor verkoeling, en op koudere dagen juist voor extra verwarming. Bovendien is het hele huis voorzien van goede isolatie en dubbele beglazing.

De tuin is onderhoudsvriendelijk aangelegd en biedt genoeg ruimte voor een eettafel of loungebank.

EEN BIJZONDERE LOCATIE AAN DE LEKDIJK
Wonen aan de Lekdijk betekent wonen in rust, met de rivier letterlijk op een steenworp afstand. Ammerstol is een gezellig dorp midden in de Krimpenerwaard, met een dorps karakter en veel groen in de omgeving. Vanuit het huis wandel of fiets je zo het polderlandschap in. Toch zijn voorzieningen als winkels, scholen, sportverenigingen en horeca op korte afstand bereikbaar in de omliggende plaatsen zoals Bergambacht en Schoonhoven. Ook de uitvalswegen richting Rotterdam, Gouda en Utrecht zijn prima bereikbaar.

BELANGRIJKSTE KENMERKEN OP EEN RIJ:
- Vraagprijs: € 635.000
- Ligging: Aan de dijk, tuin op het noorden
- Woonoppervlakte: 173 m²
- Perceeloppervlakte: 165 m²
- Bouwjaar: 1920
- Aantal verdiepingen: 3
- Aantal kamers: 5
- Energielabel: A
- Oplevering: In overleg

OVER AMMERSTOL EN DE OMGEVING
Ammerstol is een charmant dorp gelegen aan de rivier de Lek, midden in de groene Krimpenerwaard. Hier woon je in een landelijke omgeving met volop mogelijkheden om te wandelen, fietsen en genieten van rust en ruimte. Tegelijkertijd zijn dorpen zoals Bergambacht en Schoonhoven dichtbij, waar je terechtkunt voor winkels, scholen, supermarkten en gezellige horeca. De centrale ligging tussen Rotterdam en Utrecht maakt het bovendien een uitstekende uitvalsbasis voor wie in de Randstad werkt, maar liever buiten de stad woont. Het dorpsgevoel, gecombineerd met de mooie omgeving en de ligging aan het water, maken Ammerstol tot een fijne plek om te wonen — zeker voor wie waarde hecht aan rust, vrijheid en een goede bereikbaarheid.

TOELICHTINGSCLAUSULE NEN2580
De Meetinstructie is gebaseerd op de NEN2580. De Meetinstructie is bedoeld om een meer eenduidige manier van meten toe te passen voor het geven van een indicatie van de gebruiksoppervlakte. De Meetinstructie sluit verschillen in meetuitkomsten niet volledig uit, door bijvoorbeeld interpretatieverschillen, afrondingen of beperkingen bij het uitvoeren van de meting.

KOOPOVEREENKOMST PAS RECHTSGELDIG NA ONDERTEKENING
Een mondelinge overeenstemming tussen de particuliere verkoper en de particuliere koper is niet rechtsgeldig. Met andere woorden: er is geen koop. Er is pas sprake van een rechtsgeldige koop als de particuliere verkoper en de particuliere koper de koopovereenkomst hebben ondertekend. Dit vloeit voort uit artikel 7:2 Burgerlijk Wetboek. Een bevestiging van de mondelinge overeenstemming per e-mail of een toegestuurd concept van de koopovereenkomst wordt overigens niet gezien als een 'ondertekende koopovereenkomst'

“Deze informatie is door ons met de nodige zorgvuldigheid samengesteld. Onzerzijds wordt echter geen enkele aansprakelijkheid aanvaard voor enige onvolledigheid, onjuistheid of anderszins, dan wel de gevolgen daarvan. Alle opgegeven maten en oppervlakten zijn indicatief.”

Kenmerken

Basiskenmerken

  • Status Beschikbaar
  • Koopsom € 635.000 k.k.
  • Woonoppervlakte ca. 173 m2
  • Aantal slaapkamers 4
  • Bouwjaar 1920

Overdracht

  • Aanvaarding In overleg

Bouwvorm & onderhoud

  • Soort object Vrijstaande woning
  • Soort woning Eengezinswoning
  • Bouwjaar 1920
  • Soort bouw woonhuis
  • Ligging Aan rustige weg, in centrum, in woonwijk

Oppervlakte & inhoud

  • Gebruiksoppervlakte 173m2
  • Perceeloppervlakte 165m2
  • Inhoud 624m3
  • Aantal kamers 6
  • Aantal slaapkamers 4
  • Aantal woonlagen 3 woonlagen
  • Overige inpandige ruimte 3m2

Energie & installatie

  • Energielabel A
  • Isolatie Dakisolatie, muurisolatie, grotendeels dubbelglas
  • Verwarming Cv ketel
  • Warm water Cv ketel
  • C.v.-ketel type GAS
  • Energie einddatum 20-08-2035

Bergruimte

  • Schuur / berging Aangebouwd steen

Parkeergelegenheid

  • Parkeerfaciliteiten Openbaar parkeren
  • Garage Geen garage

Dak

  • Soort dak Schilddak

Overig

  • Onderhoud binnen Goed
  • Onderhoud buiten Goed
  • Bijzonderheden Gedeeltelijk gestoffeerd
  • Permanente bewoning Ja
  • Huidig gebruik Woonruimte
  • Huidige bestemming Woonruimte

Voorzieningen

  • Voorzieningen Mechanische ventilatie, buitenzonwering, airconditioning, dakraam, zonnepanelen, natuurlijke ventilatie

Buitenruimte

  • Hoofdtuin ZONNETERRAS
  • Oppervlakte hoofdtuin 22m2
  • Ligging hoofdtuin NOORD
  • Kwaliteit tuin Verzorgd

Kadastrale gegevens

  • Perceelnummer 1263
  • Perceeloppervlakte 165 m2
Meer kenmerken
Huis verkopen?

Maak een afspraak voor een gratis adviesgesprek met onze makelaars en ontdek jouw mogelijkheden.

Maak direct een afspraak

In de buurt

Geïnteresseerd?

Bel met Van Herk makelaars te Schoonhoven

shape

Stuur een bericht

* Maximaal 255 tekens
privacyverklaring