Schiedam

Lorentzlaan  19 B

€ 250.000,- k.k.

Omschrijving

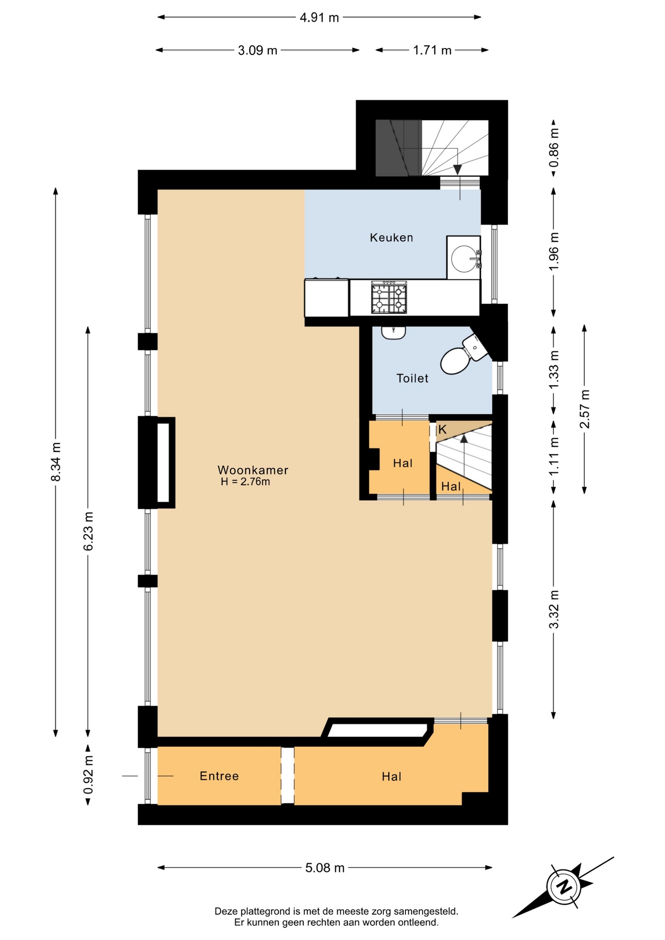
Ruim en licht appartement met mogelijkheden tot modernisering Aan de Lorentzlaan 19 vind je dit royale 5-kamer appartement van circa 99 m², gelegen in een karakteristiek pand uit 1933. Een huis met een fijne basis voor wie op zoek is naar ruimte, licht en de kans om alles naar eigen smaak aan te pakken. Hier kun je echt je eigen stempel drukken en het appartement…

Ruim en licht appartement met mogelijkheden tot modernisering

Aan de Lorentzlaan 19 vind je dit royale 5-kamer appartement van circa 99 m², gelegen in een karakteristiek pand uit 1933. Een huis met een fijne basis voor wie op zoek is naar ruimte, licht en de kans om alles naar eigen smaak aan te pakken. Hier kun je echt je eigen stempel drukken en het appartement helemaal laten aansluiten op jouw woonwensen.
De indeling is praktisch en biedt volop mogelijkheden. Met vijf kamers heb je alle vrijheid om wonen, werken en slapen te combineren. Of je nu extra slaapkamers nodig hebt, een thuiskantoor wilt inrichten of juist een royale leefruimte wilt creëren, hier kan het allemaal. Dankzij de prettige lichtinval voelt het appartement ruim en comfortabel aan, en dat merk je in iedere kamer.

PRAKTISCHE INDELING MET VEEL RUIMTE
Bij binnenkomst valt direct op hoeveel ruimte dit appartement te bieden heeft. De woonkamer is een fijne plek om te ontspannen, met voldoende mogelijkheden voor een gezellige zithoek en een eettafel. De verschillende kamers zijn goed van formaat en flexibel in gebruik. Ideaal voor een gezin, maar ook zeker geschikt voor bijvoorbeeld thuiswerkers of mensen die graag extra hobbyruimte hebben.
De keuken en sanitaire voorzieningen bieden een goede basis, maar vragen om modernisering. Dit geeft je direct de kans om het geheel naar eigen smaak en stijl in te richten. Denk aan een open keuken, een moderne badkamer of juist het behouden van authentieke elementen gecombineerd met hedendaags comfort.

GOEDE BASIS MET MODERNISERINGSPOTENTIE
Het appartement is voorzien van energielabel D en wordt verwarmd via een cv-ketel uit 2014, die ook zorgt voor het warme water. De basis is dus aanwezig, maar er ligt een mooie kans om het energieverbruik verder te verbeteren en het comfort te verhogen.
Dit huis is met name interessant voor starters en doorstromers die enthousiast worden van het creëren van hun eigen plek. De ruimte, indeling en ligging maken dit een waardevolle investering voor de toekomst.

CENTRAAL GELEGEN MET ALLES DICHTBIJ
De ligging aan de Lorentzlaan is bijzonder prettig. Je woont hier centraal met alle dagelijkse voorzieningen binnen handbereik. Winkels, supermarkten, scholen, openbaar vervoer en horecagelegenheden bevinden zich op loopafstand. Dit maakt het een fijne plek voor zowel starters als doorstromers die comfortabel willen wonen met de stad binnen handbereik.
Daarnaast zijn er goede verbindingen naar omliggende wijken en uitvalswegen, waardoor je ook snel onderweg bent richting werk of andere bestemmingen. De combinatie van ruimte in huis en de centrale ligging maakt dit appartement extra aantrekkelijk.

FIJNE WIJK MET VOORZIENINGEN OM DE HOEK
De omgeving kenmerkt zich door een mix van karakteristieke bebouwing en levendigheid. Je woont hier in een wijk waar alles samenkomt: rust in de straat en levendigheid om de hoek. Voor de dagelijkse boodschappen hoef je nooit ver, en ook voor een kop koffie of een hapje eten zijn er genoeg opties in de buurt.
Openbaar vervoer is goed geregeld, waardoor je eenvoudig richting het centrum of andere delen van de stad reist. Ook scholen en sportvoorzieningen zijn in de directe omgeving aanwezig, wat het een praktische plek maakt voor verschillende doelgroepen. Kortom, een locatie waar je comfortabel woont met alle gemakken dichtbij.

KENMERKEN:
-Gelegen op eigen grond
-Bouwjaar 1933
-Woonoppervlakte ca. 99 m²
-Centrale ligging met voorzieningen op loopafstand
-Gelegen in karakteristiek pand
-Mogelijkheid tot modernisering naar eigen smaak
-Goede bereikbaarheid
-Verwarming en warm water via cv-ketel (2014)
-Energielabel D
-Actieve VvE met een bijdrage van €174,- per maand
-Projectnotaris van toepassing
-Ouderdoms- en niet-zelfbewoningsclausule van toepassing
-Oplevering in overleg, kan snel

INTERESSE? MAAK DAN SNEL EEN AFSPRAAK!
Ons advies is om bij het kopen van jouw nieuwe huis altijd jouw eigen NVM makelaar mee te nemen.

TOELICHTINGSCLAUSULE NEN2580
De Meetinstructie is gebaseerd op de NEN2580. De Meetinstructie is bedoeld om een meer eenduidige manier van meten toe te passen voor het geven van een indicatie van de gebruiksoppervlakte. De Meetinstructie sluit verschillen in meetuitkomsten niet volledig uit, door bijvoorbeeld interpretatieverschillen, afrondingen of beperkingen bij het uitvoeren van de meting.

KOOPOVEREENKOMST PAS RECHTSGELDIG NA ONDERTEKENING
Een mondelinge overeenstemming tussen de particuliere verkoper en de particuliere koper is niet rechtsgeldig. Met andere woorden: er is geen koop. Er is pas sprake van een rechtsgeldige koop als de particuliere verkoper en de particuliere koper de koopovereenkomst hebben ondertekend. Dit vloeit voort uit artikel 7:2 Burgerlijk Wetboek. Een bevestiging van de mondelinge overeenstemming per e-mail of een toegestuurd concept van de koopovereenkomst wordt overigens niet gezien als een 'ondertekende koopovereenkomst'

“Deze informatie is door ons met de nodige zorgvuldigheid samengesteld. Onzerzijds wordt echter geen enkele aansprakelijkheid aanvaard voor enige onvolledigheid, onjuistheid of anderszins, dan wel de gevolgen daarvan. Alle opgegeven maten en oppervlakten zijn indicatief.”

Kenmerken

Basiskenmerken

  • Status Beschikbaar
  • Koopsom € 250.000 k.k.
  • Woonoppervlakte ca. 99 m2
  • Aantal slaapkamers 3
  • Bouwjaar 1933

Overdracht

  • Aanvaarding In overleg

Bouwvorm & onderhoud

  • Bouwjaar 1933
  • Soort bouw woonhuis
  • Ligging In woonwijk, vrij uitzicht

Oppervlakte & inhoud

  • Gebruiksoppervlakte 99m2
  • Inhoud 508m3
  • Aantal kamers 5
  • Aantal slaapkamers 3
  • Aantal woonlagen 2 woonlagen
  • Overige inpandige ruimte 53m2

Energie & installatie

  • Energielabel D
  • Isolatie Muurisolatie, dubbel glas
  • Verwarming Cv ketel
  • Warm water Cv ketel
  • C.v.-ketel type GAS
  • C.v.-ketel bouwjaar 2014
  • Energie einddatum 02-04-2036

Parkeergelegenheid

  • Parkeerfaciliteiten Betaald parkeren, parkeervergunningen
  • Garage Geen garage

Dak

  • Soort dak Plat dak

Overig

  • Onderhoud binnen Matig tot redelijk
  • Onderhoud buiten Redelijk
  • Bijzonderheden Gedeeltelijk gestoffeerd
  • Permanente bewoning Ja
  • Huidig gebruik Woonruimte
  • Huidige bestemming Woonruimte

Voorzieningen

  • Voorzieningen Tv kabel, natuurlijke ventilatie

Kadastrale gegevens

  • Perceelnummer 5012
Meer kenmerken
Huis verkopen?

Maak een afspraak voor een gratis adviesgesprek met onze makelaars en ontdek jouw mogelijkheden.

Maak direct een afspraak

In de buurt

Geïnteresseerd?

Bel met Van Herk Makelaars te Rotterdam

shape

Stuur een bericht

* Maximaal 255 tekens
privacyverklaring