Rotterdam

Luipaardstraat  7

€ 450.000,- k.k.

Omschrijving

RUIME 2-ONDER-1-KAPWONING MET TUIN IN RUSTIGE STRAAT Aan de rustige Luipaardstraat in Rotterdam ligt dit fijne en ruime 2-onder-1-kapwoning met zij- en achtertuin, verdeeld over drie verdiepingen. Deze woning is ideaal voor jonge gezinnen of doorstromers die net wat meer ruimte zoeken én willen wonen in een beschutte, prettige woonomgeving. Met drie ruime slaapkamers, een…

RUIME 2-ONDER-1-KAPWONING MET TUIN IN RUSTIGE STRAAT
Aan de rustige Luipaardstraat in Rotterdam ligt dit fijne en ruime 2-onder-1-kapwoning met zij- en achtertuin, verdeeld over drie verdiepingen. Deze woning is ideaal voor jonge gezinnen of doorstromers die net wat meer ruimte zoeken én willen wonen in een beschutte, prettige woonomgeving. Met drie ruime slaapkamers, een open leefruimte met moderne keuken, en een nette badkamer is het hier comfortabel wonen. Voeg daar een fijne tuin en kindvriendelijke ligging aan toe en je hebt een compleet en praktisch gezinshuis.

LICHTE WOONKAMER MET OPEN KEUKEN EN DRIE SLAAPKAMERS
De woonkamer is licht en praktisch ingericht, met een open verbinding naar de keuken en eethoek. Dankzij de hoekligging profiteer je van extra lichtinval, wat de ruimte nog ruimer doet aanvoelen. De keuken is strak en modern uitgevoerd, voorzien van inbouwapparatuur en voldoende werk- en kastruimte.

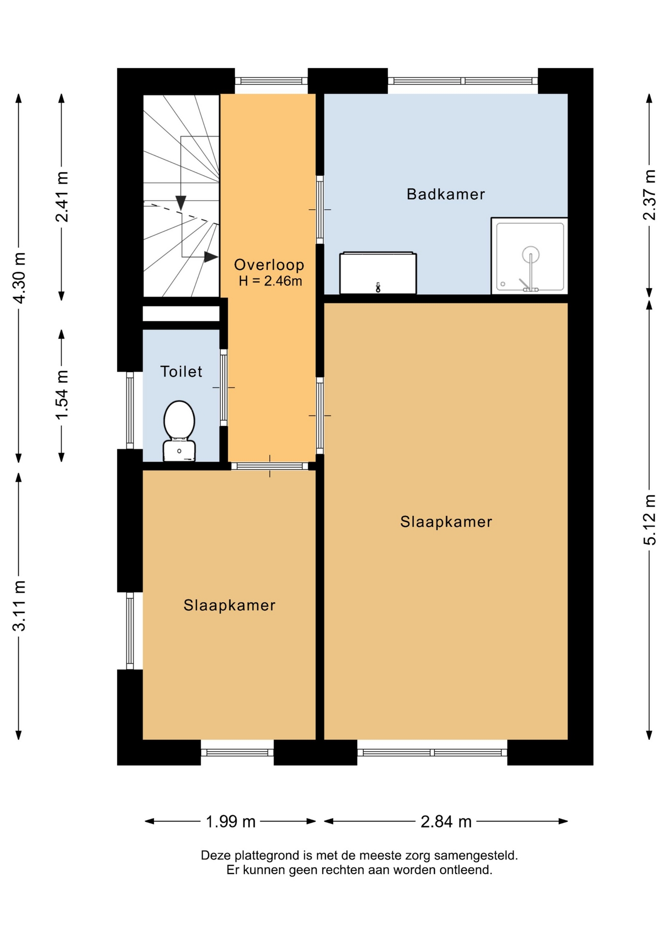
Met drie ruime slaapkamers verdeeld over de bovenverdiepingen, is er voldoende plek voor een gezin, thuiskantoor of logeerkamer. Op de eerste verdieping ligt de masterbedroom en een tweede slaapkamer, ideaal als kantoor, logeerkamer of voor (kleding)kasten. Van de zolderverdieping zijn makkelijk 2 ruime (lsaap)kamers te maken, zo is er genoeg ruimte voor jou en je gezin. De badkamer is ruimtelijk en neutraal afgewerkt, voorzien van een douche, wastafelmeubel, wasmachineaansluiting en grote ramen die zorgen voor natuurlijke ventilatie én licht.

FIJNE TUIN EN BESCHUTTE LIGGING
Wat dit huis extra aantrekkelijk maakt, is de combinatie van een zij- én achtertuin. De tuin is gelegen op het noorden, maar dankzij de vrije ligging is er toch voldoende lichtinval. Er is genoeg ruimte voor een loungeset, een speelplek voor kinderen of een eettafel om in de zomermaanden buiten te eten. De ligging van de woning in een rustige straat en woonwijk maakt het extra fijn thuiskomen. Geen doorgaand verkeer, wel volop rust en privacy.

DE BUURT: RUSTIG WONEN IN ROTTERDAM
De Luipaardstraat ligt in een rustige en kindvriendelijke woonwijk van Rotterdam Kralingse Veer. Deze buurt is populair bij gezinnen vanwege de groene opzet, de speelvoorzieningen in de buurt en het beperkte verkeer. Scholen, supermarkten en openbaar vervoer liggen allemaal op korte afstand, wat het dagelijkse leven makkelijk maakt. Bovendien ben je met de auto of fiets binnen no-time in het centrum van de stad of op een van de uitvalswegen richting andere delen van Rotterdam of daarbuiten. Een ideale plek voor wie op zoek is naar een praktische, rustige woonomgeving met alle voorzieningen binnen handbereik.

BIJZONDERHEDEN
- Bouwjaar 1999
- Woonoppervlakte 101m²
- Perceeloppervlakte 127m²
- Gelegen op eigen grond
- Tuin op het Noorden
- Volledig geïsoleerd en voorzien van dubbel glas
- Verwarming en warm water middels CV-ketel (2024)
- Energielabel B
- Rustige en centrale ligging in kindvriendelijke buurt
- Instapklaar; oplevering in overleg (kan snel)

INTERESSE? MAAK DAN SNEL EEN AFSPRAAK!
Ons advies is om bij het kopen van je nieuwe huis je eigen NVM-makelaar mee te nemen.

TOELICHTINGSCLAUSULE NEN2580
De Meetinstructie is gebaseerd op de NEN2580. De Meetinstructie is bedoeld om een meer eenduidige manier van meten toe te passen voor het geven van een indicatie van de gebruiksoppervlakte. De Meetinstructie sluit verschillen in meetuitkomsten niet volledig uit, door bijvoorbeeld interpretatieverschillen, afrondingen of beperkingen bij het uitvoeren van de meting.

KOOPOVEREENKOMST PAS RECHTSGELDIG NA ONDERTEKENING
Een mondelinge overeenstemming tussen de particuliere verkoper en de particuliere koper is niet rechtsgeldig. Met andere woorden: er is geen koop. Er is pas sprake van een rechtsgeldige koop als de particuliere verkoper en de particuliere koper de koopovereenkomst hebben ondertekend. Dit vloeit voort uit artikel 7:2 Burgerlijk Wetboek. Een bevestiging van de mondelinge overeenstemming per e-mail of een toegestuurd concept van de koopovereenkomst wordt overigens niet gezien als een 'ondertekende koopovereenkomst'

“Deze informatie is door ons met de nodige zorgvuldigheid samengesteld. Onzerzijds wordt echter geen enkele aansprakelijkheid aanvaard voor enige onvolledigheid, onjuistheid of anderszins, dan wel de gevolgen daarvan. Alle opgegeven maten en oppervlakten zijn indicatief.”

Kenmerken

Basiskenmerken

  • Status Verkocht onder voorbehoud
  • Koopsom € 450.000 k.k.
  • Woonoppervlakte ca. 101 m2
  • Aantal slaapkamers 3
  • Bouwjaar 1999

Overdracht

  • Aanvaarding In overleg

Bouwvorm & onderhoud

  • Soort object Twee onder een kapwoning
  • Soort woning Eengezinswoning
  • Bouwjaar 1999
  • Soort bouw woonhuis
  • Ligging Aan rustige weg, in woonwijk, beschutte ligging

Oppervlakte & inhoud

  • Gebruiksoppervlakte 101m2
  • Perceeloppervlakte 127m2
  • Inhoud 381m3
  • Aantal kamers 4
  • Aantal slaapkamers 3
  • Aantal woonlagen 3 woonlagen

Energie & installatie

  • Energielabel B
  • Isolatie Dubbel glas, volledig geisoleerd
  • Verwarming Cv ketel
  • Warm water Cv ketel
  • C.v.-ketel type GAS
  • C.v.-ketel bouwjaar 2024
  • Energie einddatum 12-01-2036

Bergruimte

  • Schuur / berging Vrijstaand steen
  • Voorzieningen Voorzien van elektra

Parkeergelegenheid

  • Parkeerfaciliteiten Openbaar parkeren
  • Garage Geen garage

Dak

  • Soort dak Zadeldak

Overig

  • Onderhoud binnen Redelijk tot goed
  • Onderhoud buiten Goed
  • Bijzonderheden Gedeeltelijk gestoffeerd
  • Permanente bewoning Ja
  • Huidig gebruik Woonruimte
  • Huidige bestemming Woonruimte

Voorzieningen

  • Voorzieningen Tv kabel, dakraam, natuurlijke ventilatie

Buitenruimte

  • Kwaliteit tuin Normaal

Kadastrale gegevens

  • Perceelnummer 1385
  • Perceeloppervlakte 127 m2
Meer kenmerken
Huis verkopen?

Maak een afspraak voor een gratis adviesgesprek met onze makelaars en ontdek jouw mogelijkheden.

Maak direct een afspraak

In de buurt