Rotterdam

Mijnsherenlaan  153 C

€ 223.800,- k.k.

Omschrijving

Mijnsherenlaan 153C, Rotterdam APPARTEMENT IN HET CENTRUM VAN ROTTERDAM! Appartement op de eerste etage, gelegen in het centrum van Rotterdam met balkon aan de achterzijde. De woning is voorzien van kunststof kozijnen met dubbel glas en beschikt over openbaar parkeren in de omgeving. Op loop- en fietsafstand bevinden zich diverse winkels, horecagelegenheden en openbaar…

Mijnsherenlaan 153C, Rotterdam

APPARTEMENT IN HET CENTRUM VAN ROTTERDAM!

Appartement op de eerste etage, gelegen in het centrum van Rotterdam met balkon aan de achterzijde. De woning is voorzien van kunststof kozijnen met dubbel glas en beschikt over openbaar parkeren in de omgeving. Op loop- en fietsafstand bevinden zich diverse winkels, horecagelegenheden en openbaar vervoerverbindingen.

Indeling

Begane grond
Gezamenlijke entree met trapopgang naar de eerste verdieping.

Eerste etage
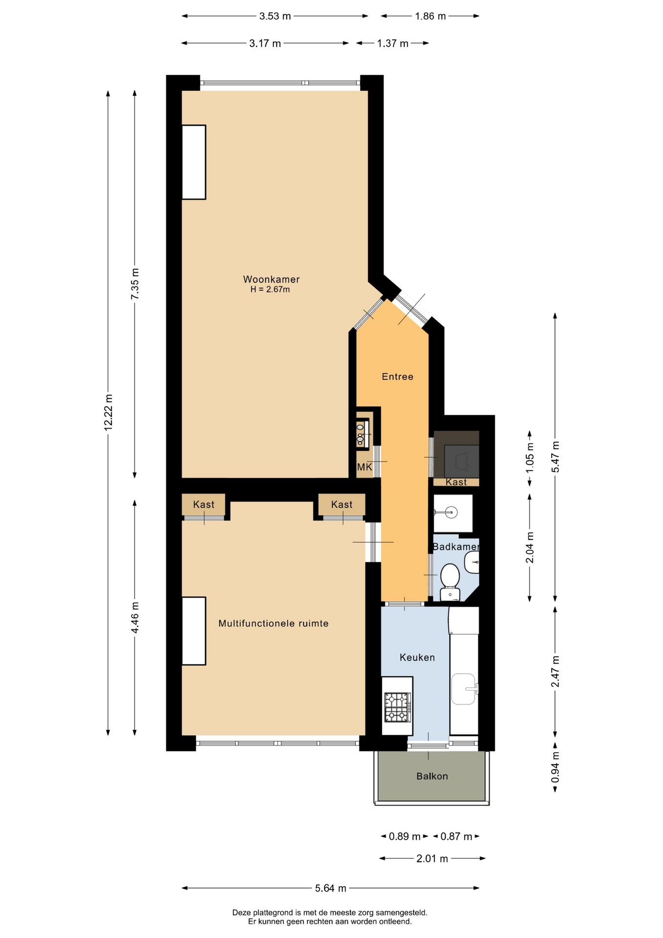
Entree van de woning met toegang tot de diverse vertrekken. De woonkamer is gesitueerd aan de straatzijde en voorzien van een laminaatvloer, een schouw en kunststof kozijnen met dubbel glas.

De keuken bevindt zich aan de achterzijde en is uitgerust met een gasfornuis, koelkast, afzuigkap en een CV-installatie uit 2025. Vanuit de keuken is er toegang tot het balkon, gelegen op het westen.

De slaapkamer ligt aan de achterzijde van de woning en beschikt over twee vaste opbergkasten en een schouw. De badkamer is geheel betegeld en voorzien van een toilet, douche en wastafel.

Bijzonderheden
- Bouwjaar: 1938
- Woonoppervlakte: 57 m²
- Perceeloppervlakte: 64 m²
- Energielabel: B
- Kunststof kozijnen met dubbel glas
- Verwarming via CV-installatie (2025)
- Balkon op het westen
- VVE kosten per maand €90,79,-
- Nieuwe gipsen plafonds en gestucte muren
- Nieuwe electra
- Gelegen in het centrum van Rotterdam
- Op loop- en fietsafstand van winkels, horeca en openbaar vervoer
- Openbaar parkeren

Juridische en meetclausules
Van der Giessen & Van Herk Makelaars behartigt de belangen van de verkopende partij. Neem uw eigen NVM aankoopmakelaar mee.

Alle verstrekte informatie moet beschouwd worden als een uitnodiging tot het doen van een bod of om in onderhandeling te treden.

Deze informatie is door ons met de nodige zorgvuldigheid samengesteld. Onzerzijds wordt echter geen enkele aansprakelijkheid aanvaard voor enige onvolledigheid, onjuistheid of anderszins, dan wel de gevolgen daarvan. Alle opgegeven maten en oppervlakten zijn indicatief. Van toepassing zijn de NVM voorwaarden.

Koopovereenkomst pas rechtsgeldig na ondertekening:
Een mondelinge overeenstemming tussen de particuliere verkoper en de particuliere koper is niet rechtsgeldig. Met andere woorden: er is geen koop. Er is pas sprake van een rechtsgeldige koop als de particuliere verkoper en de particuliere koper de koopovereenkomst hebben ondertekend. Dit vloeit voort uit artikel 7:2 Burgerlijk Wetboek. Een bevestiging van de mondelinge overeenstemming per e-mail of een toegestuurd concept van de koopovereenkomst wordt overigens niet gezien als een 'ondertekende koopovereenkomst'.

Toelichtingsclausule NEN2580:
De meetinstructie is gebaseerd op de NEN2580. De meetinstructie is bedoeld om een meer eenduidige manier van meten toe te passen voor het geven van een indicatie van de gebruiksoppervlakte. De meetinstructie sluit verschillen in meetuitkomsten niet volledig uit, door bijvoorbeeld interpretatieverschillen, afrondingen of beperkingen bij het uitvoeren van de meting.

Kenmerken

Basiskenmerken

  • Status Beschikbaar
  • Koopsom € 223.800 k.k.
  • Woonoppervlakte ca. 57 m2
  • Aantal slaapkamers 1
  • Bouwjaar

Overdracht

  • Aanvaarding In overleg

Bouwvorm & onderhoud

  • Soort bouw woonhuis
  • Ligging In centrum

Oppervlakte & inhoud

  • Gebruiksoppervlakte 57m2
  • Inhoud 187m3
  • Aantal kamers 2
  • Aantal slaapkamers 1
  • Aantal woonlagen 1 woonlagen

Energie & installatie

  • Energielabel B
  • Isolatie Dubbel glas
  • Verwarming Cv ketel
  • Warm water Cv ketel
  • C.v.-ketel type GAS
  • C.v.-ketel bouwjaar 2025
  • Energie einddatum 13-12-2027

Parkeergelegenheid

  • Parkeerfaciliteiten Openbaar parkeren, betaald parkeren, parkeervergunningen
  • Garage Geen garage

Dak

  • Soort dak Plat dak

Overig

  • Onderhoud binnen Redelijk
  • Onderhoud buiten Redelijk
  • Permanente bewoning Ja
  • Huidig gebruik Woonruimte
  • Huidige bestemming Woonruimte

Voorzieningen

  • Voorzieningen Tv kabel

Kadastrale gegevens

  • Perceelnummer 4239
Meer kenmerken
Huis verkopen?

Maak een afspraak voor een gratis adviesgesprek met onze makelaars en ontdek jouw mogelijkheden.

Maak direct een afspraak

Media

In de buurt

Geïnteresseerd?

Bel met Van der Giessen en van Herk makelaars te Ridderkerk

shape

Stuur een bericht

* Maximaal 255 tekens
privacyverklaring