Lage Zwaluwe

Nieuwlandsedijk  87

€ 425.000,- k.k.

Omschrijving

KARAKTERISTIEK HUIS MET VEEL RUIMTE EN MOGELIJKHEDEN Aan de Nieuwlandsedijk in Lage Zwaluwe staat dit karakteristieke huis uit 1920 met een verrassend ruime indeling en volop mogelijkheden. Gelegen vrijwel tegenover de jachthaven woon je hier op een plek waar het buitenleven en de sfeer van het water altijd dichtbij zijn. De voorgevel geeft direct een charmante eerste…

KARAKTERISTIEK HUIS MET VEEL RUIMTE EN MOGELIJKHEDEN
Aan de Nieuwlandsedijk in Lage Zwaluwe staat dit karakteristieke huis uit 1920 met een verrassend ruime indeling en volop mogelijkheden. Gelegen vrijwel tegenover de jachthaven woon je hier op een plek waar het buitenleven en de sfeer van het water altijd dichtbij zijn. De voorgevel geeft direct een charmante eerste indruk, met de authentieke uitstraling die je van dit type bebouwing mag verwachten. Binnen merk je dat het huis in de loop der jaren is aangepast aan de wensen van deze tijd, met onder andere een vernieuwde badkamer en praktische indeling.

Dit is zo’n huis dat starters en jonge doorstromers aanspreekt: je hebt hier de ruimte om direct te wonen, maar ook de kans om het verder naar je eigen smaak te maken.

LICHTE WOONKAMER EN FIJNE LEEFKEUKEN
De woonkamer is een prettige en lichte ruimte met een warme uitstraling. De houten vloer en de grote raampartij zorgen voor een fijne sfeer en veel daglicht. Hier kun je eenvoudig een gezellige zithoek creëren met uitzicht naar buiten. De airco in de woonkamer zorgt daarnaast voor extra comfort tijdens warme dagen.

Aan de achterzijde ligt de keuken, die ruim is opgezet en voldoende plek biedt voor een eethoek. Vanuit hier kijk je mooi de tuin in, wat het een fijne plek maakt om te koken en tegelijk contact te houden met buiten. De indeling is praktisch en biedt volop mogelijkheden om deze ruimte eventueel verder te moderniseren of anders in te delen.

Aangrenzend vind je nog een bijkeuken en een toilet, wat zorgt voor extra gemak in het dagelijks gebruik.

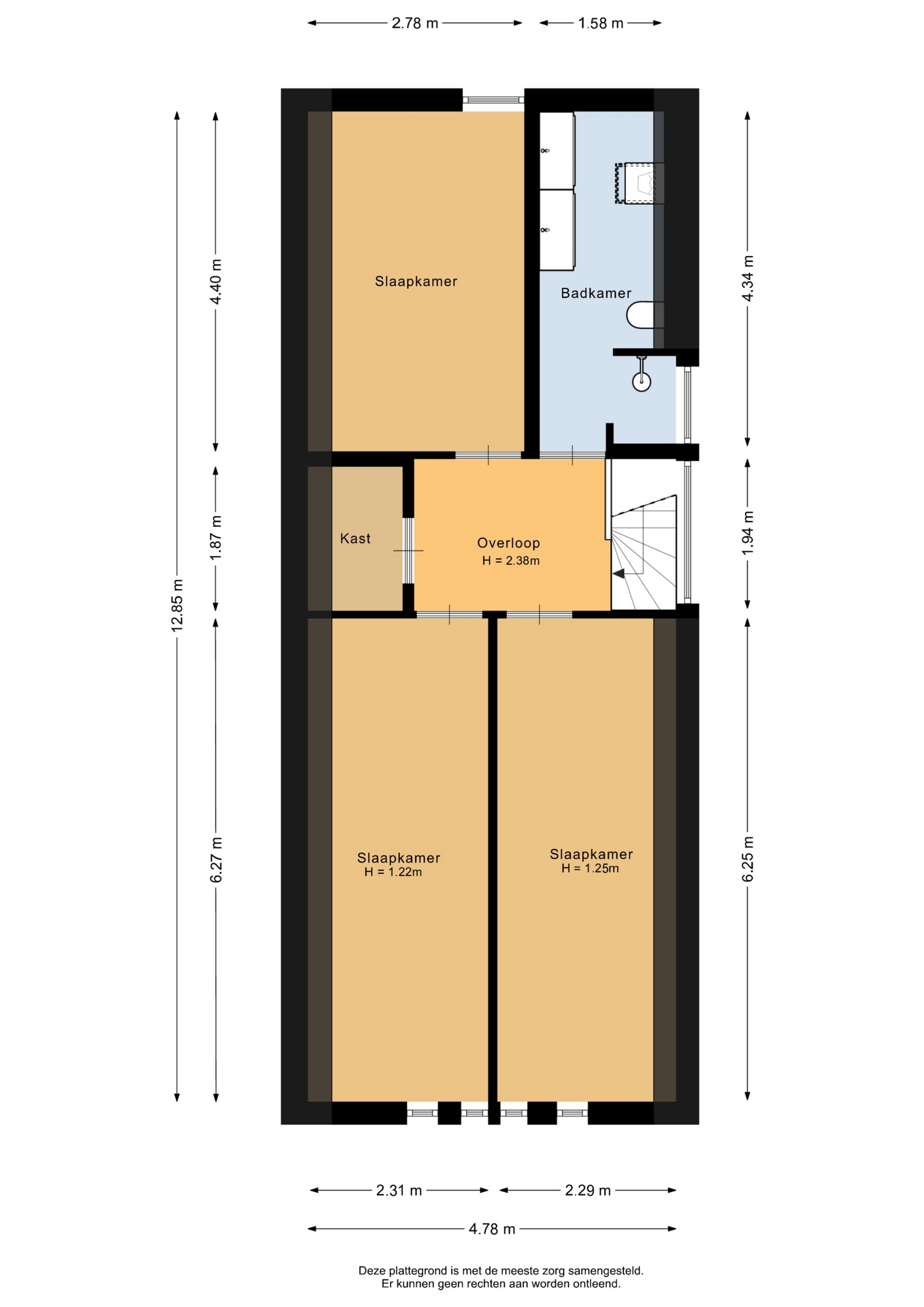
DRIE SLAAPKAMERS EN NIEUWE BADKAMER
Op de eerste verdieping zijn drie slaapkamers aanwezig. De grootste slaapkamer biedt voldoende ruimte voor een tweepersoonsbed en kastruimte. De overige kamers zijn goed te gebruiken als kinder, werk- of logeerkamer. In één van de slaapkamers is eveneens een airco geplaatst, wat zorgt voor extra comfort.

De badkamer is in 2023 vernieuwd en dat zie je direct terug. De ruimte is strak afgewerkt en voorzien van een inloopdouche en een modern wastafelmeubel. De combinatie van lichte kleuren en praktische indeling maakt dit een fijne ruimte om de dag te starten.

DIEPE TUIN EN GROTE GARAGE/SOUTERRAIN ONDER HET HUIS
De achtertuin ligt op het zuidwesten, wat betekent dat je hier volop van de middag en avondzon kunt genieten. De tuin is onderhoudsvriendelijk aangelegd en biedt voldoende ruimte voor een gezellige zithoek. Een fijne plek om buiten te zitten met vrienden of familie.

Een groot pluspunt van dit huis is de garage onder de woning van maar liefst circa 62 m². Deze ruimte is ideaal voor het stallen van een auto, maar biedt ook volop mogelijkheden voor hobby, opslag of werkruimte aan huis. Dit zie je niet vaak bij dit type huizen en maakt het geheel extra interessant.

Daarnaast beschikt de woning over 9 zonnepanelen, wat bijdraagt aan lagere energielasten en een duurzamer gebruik.

RUSTIG WONEN MET JACHTHAVEN OM DE HOEK
Lage Zwaluwe is een dorp waar rust en ruimte samenkomen met een centrale ligging. Je woont hier in een gemoedelijke omgeving met een dorps karakter, waar buren elkaar nog kennen en het leven net even wat rustiger verloopt. Tegelijkertijd zit je hier verrassend gunstig ten opzichte van grotere steden.

Wat deze locatie extra aantrekkelijk maakt, is de ligging vrijwel tegenover de jachthaven van Lage Zwaluwe. Hier ervaar je direct de sfeer van het water en het buitenleven. Of je nu een liefhebber bent van varen, wandelen langs het water of gewoon wilt genieten van het uitzicht en de levendigheid van de haven, het ligt hier letterlijk binnen handbereik. In de omgeving vind je bovendien gezellige horecagelegenheden waar je neerstrijkt voor een kop koffie of een drankje met uitzicht op de boten.

Voor de dagelijkse voorzieningen kun je terecht in het dorp zelf of in het nabijgelegen Made en Zevenbergen. Denk aan supermarkten, scholen en sportverenigingen. Voor een uitgebreider aanbod ben je binnen korte tijd in Breda of Dordrecht. Ook de bereikbaarheid is goed geregeld: via de A16 en A17 ben je snel onderweg richting Rotterdam, Breda of Antwerpen.

Daarnaast is de omgeving ideaal voor liefhebbers van buiten zijn. De Biesbosch ligt op korte afstand en biedt volop mogelijkheden om te wandelen, fietsen of varen. Ook langs de dijken en het water in de directe omgeving kun je heerlijk ontspannen.

Kortom: een fijne plek voor wie rustig wil wonen, maar toch alle voorzieningen en bereikbaarheid binnen handbereik wil hebben.

KENMERKEN:
- Woonoppervlakte: 112 m²
- Perceeloppervlakte: 149 m²
- Bouwjaar: 1920
- Aantal verdiepingen: 2
- Aantal kamers: 4
- Aantal slaapkamers: 3
- Energielabel: C
- Tuinligging: zuidwest
- 9 zonnepanelen aanwezig
- Airco in woonkamer en één slaapkamer
- Badkamer vernieuwd in 2023
- Garage onder de woning van ca. 62 m²
- Oplevering in overleg

Vloer helt circa 30 cm over de lengte van de woning. Woning aan achterzijde in het verleden verzakt, herstelwerkzaamheden zichtbaar en is reeds stabiel en bouwtechnisch gekeurd door eigenaar.

WoonSchuijt Makelaars behartigt de belangen van de verkopende partij. Neem uw eigen NVM aankoopmakelaar mee.

Alle verstrekte informatie moet beschouwd worden als een uitnodiging tot het doen van een bod of om in onderhandeling te treden.

Deze informatie is door ons met de nodige zorgvuldigheid samengesteld. Onzerzijds wordt echter geen enkele aansprakelijkheid aanvaard voor enige onvolledigheid, onjuistheid of anderszins, dan wel de gevolgen daarvan. Alle opgegeven maten en oppervlakten zijn indicatief. Van toepassing zijn de NVM voorwaarden.

Koopovereenkomst pas rechtsgeldig na ondertekening:
Een mondelinge overeenstemming tussen de particuliere verkoper en de particuliere koper is niet rechtsgeldig. Met andere woorden: er is geen koop. Er is pas sprake van een rechtsgeldige koop als de particuliere verkoper en de particuliere koper de koopovereenkomst hebben ondertekend. Dit vloeit voort uit artikel 7:2 Burgerlijk Wetboek. Een bevestiging van de mondelinge overeenstemming per e-mail of een toegestuurd concept van de koopovereenkomst wordt overigens niet gezien als een 'ondertekende koopovereenkomst'.

Kenmerken

Basiskenmerken

  • Status Beschikbaar
  • Koopsom € 425.000 k.k.
  • Woonoppervlakte ca. 112 m2
  • Aantal slaapkamers 3
  • Bouwjaar 1920

Overdracht

  • Aanvaarding In overleg

Bouwvorm & onderhoud

  • Soort object Vrijstaande woning
  • Soort woning Eengezinswoning
  • Bouwjaar 1920
  • Soort bouw woonhuis
  • Ligging Aan rustige weg

Oppervlakte & inhoud

  • Gebruiksoppervlakte 112m2
  • Perceeloppervlakte 149m2
  • Inhoud 611m3
  • Aantal kamers 4
  • Aantal slaapkamers 3
  • Aantal woonlagen 3 woonlagen
  • Overige inpandige ruimte 75m2

Energie & installatie

  • Energielabel C
  • Isolatie Dakisolatie, vloerisolatie, hr glas
  • Verwarming Cv ketel
  • Warm water Cv ketel
  • C.v.-ketel type GAS
  • C.v.-ketel bouwjaar 2022
  • Energie einddatum 07-11-2035

Parkeergelegenheid

  • Parkeerfaciliteiten Openbaar parkeren
  • Garage Souterrain

Dak

  • Soort dak Zadeldak

Overig

  • Onderhoud binnen Goed
  • Onderhoud buiten Goed
  • Permanente bewoning Ja
  • Huidig gebruik Woonruimte
  • Huidige bestemming Woonruimte

Voorzieningen

  • Voorzieningen Mechanische ventilatie, tv kabel, airconditioning, zonnepanelen, natuurlijke ventilatie

Buitenruimte

  • Hoofdtuin ACHTERTUIN
  • Oppervlakte hoofdtuin 71m2
  • Ligging hoofdtuin ZUIDWEST
  • Kwaliteit tuin Normaal

Kadastrale gegevens

  • Perceelnummer 3149
  • Perceeloppervlakte 149 m2
Meer kenmerken
Huis verkopen?

Maak een afspraak voor een gratis adviesgesprek met onze makelaars en ontdek jouw mogelijkheden.

Maak direct een afspraak

In de buurt

Geïnteresseerd?

Bel met Woonschuijt Makelaars te Zevenbergen

shape

Stuur een bericht

* Maximaal 255 tekens
privacyverklaring