Rotterdam
Nystadstraat 86
€ 550.000,- k.k.
Omschrijving
RUIM EN LICHT HUIS VOOR HET GEZIN Ben je op zoek naar een ruim huis waar je met het hele gezin comfortabel kunt wonen? Dan is deze eengezinswoning aan de Nystadstraat absoluut het bekijken waard. Met een woonoppervlakte van circa 139 m², vier slaapkamers en drie woonlagen biedt dit huis volop ruimte voor het hele gezin. De woonkamer ligt aan de achterzijde en is heerlijk…
RUIM EN LICHT HUIS VOOR HET GEZIN
Ben je op zoek naar een ruim huis waar je met het hele gezin comfortabel kunt wonen? Dan is deze eengezinswoning aan de Nystadstraat absoluut het bekijken waard. Met een woonoppervlakte van circa 139 m², vier slaapkamers en drie woonlagen biedt dit huis volop ruimte voor het hele gezin.
De woonkamer ligt aan de achterzijde en is heerlijk licht dankzij de grote raampartijen richting de tuin. Hierdoor voelt de ruimte open en uitnodigend aan. Er is genoeg plek voor een ruime zithoek waar je kunt ontspannen en een grote eettafel waar het gezin samenkomt voor het diner of waar vrienden aanschuiven tijdens een gezellige avond.
Aan de voorzijde van het huis bevindt zich de keuken. Deze is praktisch ingericht met veel kastruimte en diverse inbouwapparatuur. Tijdens het koken kijk je uit over de rustige straat, terwijl de woonkamer een fijne plek blijft om samen te zijn.
VIER SLAAPKAMERS EN PRAKTISCHE INDELING
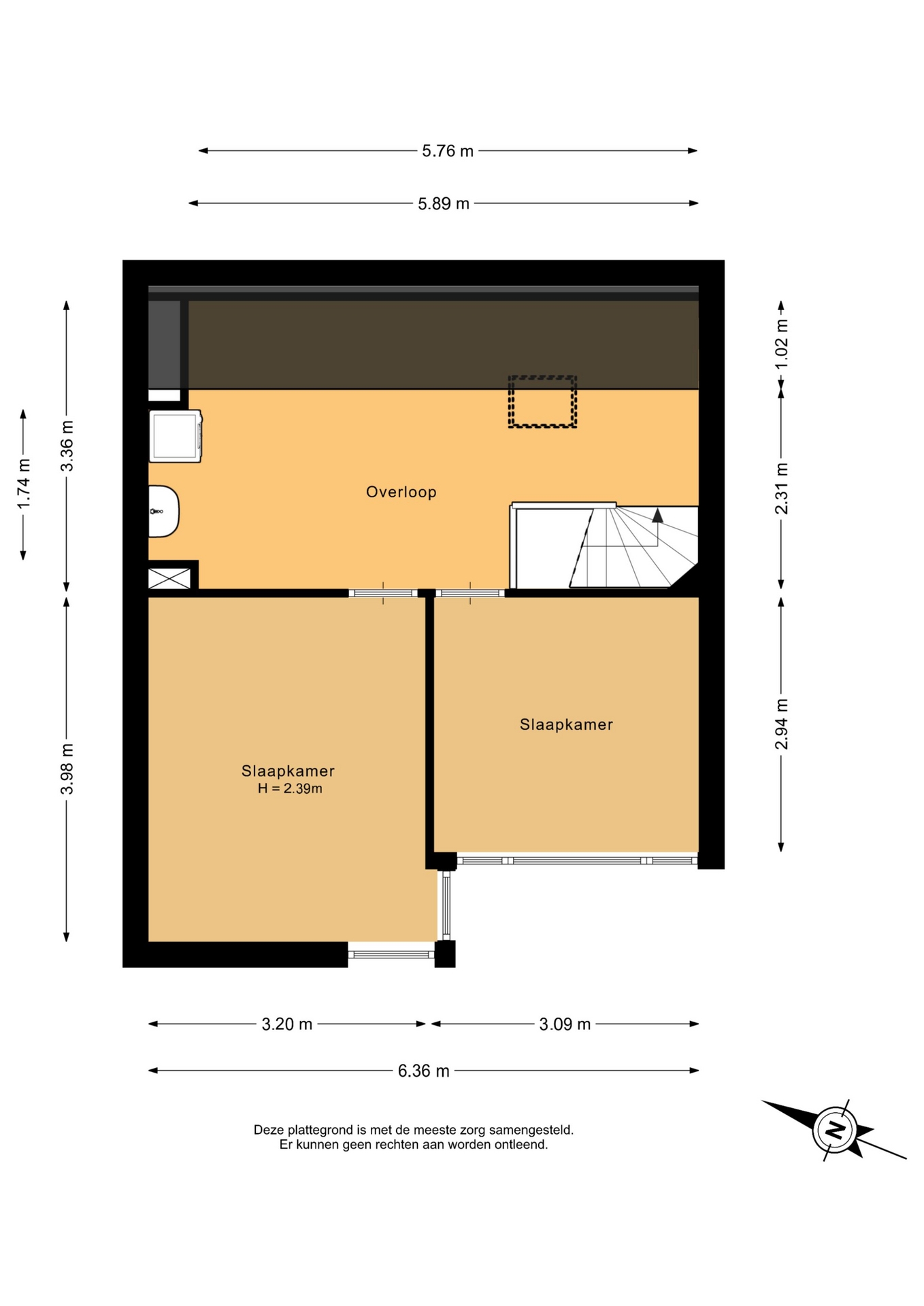
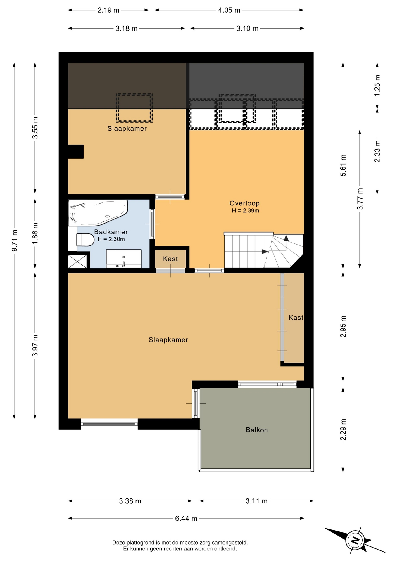
Dit huis beschikt over vier slaapkamers, verdeeld over de verdiepingen. Hierdoor is er meer dan genoeg ruimte voor een gezin. De grootste slaapkamer biedt volop plek voor een tweepersoonsbed en een grote kledingkast. De overige kamers zijn ideaal als kinderkamer, werkkamer of logeerkamer. Hierdoor is het huis flexibel in te delen en kan het gemakkelijk meegroeien met de wensen van het gezin. De badkamer is praktisch ingericht en voorzien van een douche, ligbad en wastafel. Dankzij de drie woonlagen zijn wonen, slapen en werken prettig van elkaar gescheiden. Verder is er een ruime zolder met wasmachine aansluiting en eigen wastafel.
EIGEN OPRIT, GARAGE EN FIJNE TUIN
Een groot pluspunt van dit huis is het parkeren op eigen terrein. Je beschikt hier over een eigen oprit, waardoor je altijd een parkeerplek bij huis hebt. Daarnaast is er een garage, ideaal voor het stallen van fietsen of extra opslag. Voor gezinnen is dit een bijzonder praktische toevoeging.
De achtertuin ligt op het oosten en is een fijne plek om de dag te beginnen met een kop koffie in de zon. Door de ligging aan de achterzijde van het huis is het hier prettig buiten zitten.
RUSTIGE EN CENTRALE LIGGING IN PRINS ALEXANDER
De Nystadstraat ligt in een rustige straat in de wijk Prins Alexander in Rotterdam. Dit is een prettige woonomgeving waar veel gezinnen zich thuis voelen. In de buurt vind je diverse scholen, speeltuinen en sportverenigingen. Ook winkels en supermarkten liggen op korte afstand, waardoor je alle dagelijkse voorzieningen binnen handbereik hebt. De bereikbaarheid is bovendien uitstekend. Met de metro en bus ben je snel in het centrum van Rotterdam en met de auto zit je binnen enkele minuten op de A16 en A20. In de omgeving zijn daarnaast verschillende groene plekken en parken waar je kunt wandelen of ontspannen.
BIJZONDERHEDEN:
- Bouwjaar 1981;
- Circa 139m² woonoppervlakte;
- Gelegen op 178m² EIGEN grond;
- 4 slaapkamers op de verdiepingen;
- Verwarming en warm water middels stadsverwarming en boiler;
- Achtertuin op het oosten, balkon op het westen;
- Parkeren op eigen terrein;
- 9 zonnepanelen aanwezig;
- Energielabel A;
- Let op, er wordt een ouderdomsclausule opgenomen in de koopakte;
- Oplevering: in overleg.
INTERESSE? MAAK DAN SNEL EEN AFSPRAAK!
Ons advies is om bij het kopen van je nieuwe huis je eigen NVM-makelaar mee te nemen.
TOELICHTINGSCLAUSULE NEN2580
De Meetinstructie is gebaseerd op de NEN2580. De Meetinstructie is bedoeld om een meer eenduidige manier van meten toe te passen voor het geven van een indicatie van de gebruiksoppervlakte. De Meetinstructie sluit verschillen in meetuitkomsten niet volledig uit, door bijvoorbeeld interpretatieverschillen, afrondingen of beperkingen bij het uitvoeren van de meting.
KOOPOVEREENKOMST PAS RECHTSGELDIG NA ONDERTEKENING
Een mondelinge overeenstemming tussen de particuliere verkoper en de particuliere koper is niet rechtsgeldig. Met andere woorden: er is geen koop. Er is pas sprake van een rechtsgeldige koop als de particuliere verkoper en de particuliere koper de koopovereenkomst hebben ondertekend. Dit vloeit voort uit artikel 7:2 Burgerlijk Wetboek. Een bevestiging van de mondelinge overeenstemming per e-mail of een toegestuurd concept van de koopovereenkomst wordt overigens niet gezien als een 'ondertekende koopovereenkomst'
“Deze informatie is door ons met de nodige zorgvuldigheid samengesteld. Onzerzijds wordt echter geen enkele aansprakelijkheid aanvaard voor enige onvolledigheid, onjuistheid of anderszins, dan wel de gevolgen daarvan. Alle opgegeven maten en oppervlakten zijn indicatief.”
Kenmerken
Basiskenmerken
- Status Beschikbaar
- Koopsom € 550.000 k.k.
- Woonoppervlakte ca. 139 m2
- Aantal slaapkamers 4
- Bouwjaar 1981
Overdracht
- Aanvaarding In overleg
Bouwvorm & onderhoud
- Soort object Tussenwoning
- Soort woning Eengezinswoning
- Bouwjaar 1981
- Soort bouw woonhuis
- Ligging Aan rustige weg, in woonwijk, beschutte ligging
Oppervlakte & inhoud
- Gebruiksoppervlakte 139m2
- Perceeloppervlakte 178m2
- Inhoud 512m3
- Aantal kamers 5
- Aantal slaapkamers 4
- Aantal woonlagen 3 woonlagen
- Overige inpandige ruimte 14m2
Energie & installatie
- Energielabel A
- Isolatie Dakisolatie, muurisolatie, dubbel glas
- Verwarming Stadsverwarming
- Warm water Elektrische boiler eigendom, stadsverwarming
- Energie einddatum 11-02-2036
Bergruimte
- Schuur / berging Vrijstaand kunststof
Parkeergelegenheid
- Parkeerfaciliteiten Openbaar parkeren, op eigen terrein
- Garage Inpandig
Dak
- Soort dak Zadeldak
Overig
- Onderhoud binnen Redelijk
- Onderhoud buiten Redelijk tot goed
- Bijzonderheden Gedeeltelijk gestoffeerd
- Permanente bewoning Ja
- Huidig gebruik Woonruimte
- Huidige bestemming Woonruimte
Voorzieningen
- Voorzieningen Mechanische ventilatie, tv kabel, schuifpui, dakraam, zonnepanelen, natuurlijke ventilatie
Buitenruimte
- Hoofdtuin ACHTERTUIN
- Oppervlakte hoofdtuin 70m2
- Ligging hoofdtuin OOST
- Kwaliteit tuin Normaal
Kadastrale gegevens
- Perceelnummer 4909
- Perceeloppervlakte 178 m2
Maak een afspraak voor een gratis adviesgesprek met onze makelaars en ontdek jouw mogelijkheden.
Maak direct een afspraakMedia
In de buurt
Geïnteresseerd?
Bel met Van Herk makelaars te Capelle aan den IJssel