Rotterdam

Oostmaaslaan  209 A 02

€ 400.000,- k.k.

Omschrijving

5-kamer appartement met veel natuurlijk licht en energielabel A! Aan de Oostmaaslaan vind je dit lichte en strak afgewerkte appartement, verdeeld over de tweede en derde verdieping. Met circa 85 m² woonoppervlakte, vier slaapkamers en een energielabel A is dit een ideale plek voor starters die op zoek zijn naar ruimte én comfort. De basis is modern en verzorgd, waardoor…

5-kamer appartement met veel natuurlijk licht en energielabel A!

Aan de Oostmaaslaan vind je dit lichte en strak afgewerkte appartement, verdeeld over de tweede en derde verdieping. Met circa 85 m² woonoppervlakte, vier slaapkamers en een energielabel A is dit een ideale plek voor starters die op zoek zijn naar ruimte én comfort. De basis is modern en verzorgd, waardoor je hier direct prettig kunt wonen. Grote raampartijen aan zowel de voor- als achterzijde zorgen voor veel daglicht en een open gevoel. De lichte vloer en strakke wandafwerking maken het geheel fris en makkelijk naar eigen smaak in te richten.

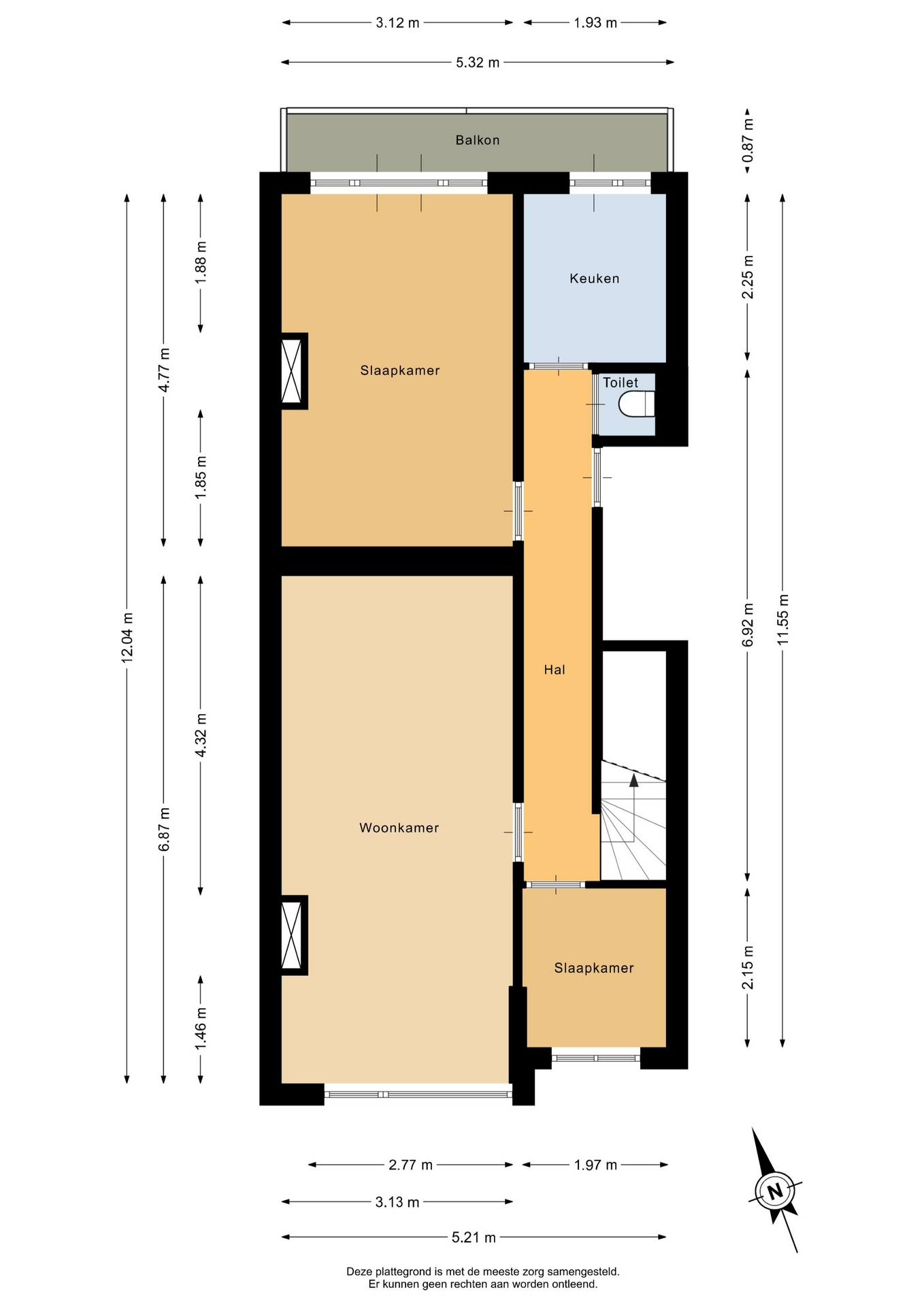
RUIME DOORZONWOONKAMER MET BALKON
De woonkamer loopt over de volle diepte van het huis en voelt daardoor ruim en prettig aan. Aan de voorzijde geniet je van vrij uitzicht, terwijl de achterzijde aansluit op het balkon. Hier creëer je eenvoudig een fijne zit- en eethoek. De keukenruimte bevindt zich aan de achterzijde en is voorbereid met alle benodigde aansluitingen. Je hebt hier de mogelijkheid om een keuken volledig naar eigen smaak te plaatsen, zonder dat er eerst gesloopt hoeft te worden.

DRIE SLAAPKAMERS EN TWEE TOILETTEN
Het appartement beschikt over drie slaapkamers verdeeld over twee woonlagen. De grootste slaapkamer ligt aan de achterzijde en heeft toegang tot het balkon. De overige kamers zijn ideaal als werk-, logeer- of kinderkamer. De badkamer is modern afgewerkt met een inloopdouche en strak tegelwerk. Het badkamermeubel is bewust nog niet geplaatst, zodat je dit zelf kunt invullen. De aansluitingen zijn al aanwezig. Daarnaast is er op beide verdiepingen een separaat toilet, wat zorgt voor extra comfort.

EXTRA BUITENRUIMTE EN CENTRALE LIGGING
Het balkon aan de achterzijde is een fijne plek om even buiten te zitten. Daarnaast is er een mogelijkheid om een dakterras te realiseren (vergunning nog aan te vragen), wat een mooie kans biedt om extra buitenruimte toe te voegen. De ligging aan de Oostmaaslaan is centraal en praktisch. Je woont hier op korte afstand van winkels, horeca, openbaar vervoer en het centrum van Rotterdam. Ook het Kralingse Bos en de Maas liggen in de buurt, waardoor je stad en ontspanning makkelijk combineert.

KENMERKEN:
-Gelegen op eigen grond
-Bouwjaar 1933
-Woonoppervlakte ca. 85 m²
-Energielabel A
-2 balkons (noordoosten en zuidwesten)
-Mogelijkheid tot het realiseren van een dakterras
-Uitzicht over de maas
-Goede bereikbaarheid
-Verwarming en warm water via Intergas Cv-ketel (2023)
-Actieve VvE met een bijdrage van ca. €189,- per maand
-Ouderdoms- en niet zelfbewoningsclausule van toepassing
-Oplevering in overleg, kan snel

INTERESSE? MAAK DAN SNEL EEN AFSPRAAK!
Ons advies is om bij het kopen van uw nieuw huis altijd uw eigen NVM makelaar mee te nemen.

TOELICHTINGSCLAUSULE NEN2580
De Meetinstructie is gebaseerd op de NEN2580. De Meetinstructie is bedoeld om een meer eenduidige manier van meten toe te passen voor het geven van een indicatie van de gebruiksoppervlakte. De Meetinstructie sluit verschillen in meetuitkomsten niet volledig uit, door bijvoorbeeld interpretatieverschillen, afrondingen of beperkingen bij het uitvoeren van de meting.

KOOPOVEREENKOMST PAS RECHTSGELDIG NA ONDERTEKENING
Een mondelinge overeenstemming tussen de particuliere verkoper en de particuliere koper is niet rechtsgeldig. Met andere woorden: er is geen koop. Er is pas sprake van een rechtsgeldige koop als de particuliere verkoper en de particuliere koper de koopovereenkomst hebben ondertekend. Dit vloeit voort uit artikel 7:2 Burgerlijk Wetboek. Een bevestiging van de mondelinge overeenstemming per e-mail of een toegestuurd concept van de koopovereenkomst wordt overigens niet gezien als een 'ondertekende koopovereenkomst'

“Deze informatie is door ons met de nodige zorgvuldigheid samengesteld. Onzerzijds wordt echter geen enkele aansprakelijkheid aanvaard voor enige onvolledigheid, onjuistheid of anderszins, dan wel de gevolgen daarvan. Alle opgegeven maten en oppervlakten zijn indicatief.”

Kenmerken

Basiskenmerken

  • Status Beschikbaar
  • Koopsom € 400.000 k.k.
  • Woonoppervlakte ca. 85 m2
  • Aantal slaapkamers 4
  • Bouwjaar 1933

Overdracht

  • Aanvaarding In overleg

Bouwvorm & onderhoud

  • Bouwjaar 1933
  • Soort bouw woonhuis
  • Ligging Aan rustige weg, in woonwijk, vrij uitzicht

Oppervlakte & inhoud

  • Gebruiksoppervlakte 85m2
  • Inhoud 291m3
  • Aantal kamers 5
  • Aantal slaapkamers 4
  • Aantal woonlagen 2 woonlagen

Energie & installatie

  • Energielabel A
  • Isolatie Dakisolatie, muurisolatie, dubbel glas, volledig geisoleerd, driedubbel glas, hr glas
  • Verwarming Cv ketel
  • Warm water Cv ketel
  • C.v.-ketel type GAS
  • C.v.-ketel bouwjaar 2023
  • Energie einddatum 30-08-2035

Parkeergelegenheid

  • Parkeerfaciliteiten Betaald parkeren, parkeervergunningen
  • Garage Geen garage

Dak

  • Soort dak Plat dak

Overig

  • Onderhoud binnen Goed
  • Onderhoud buiten Goed
  • Bijzonderheden Gedeeltelijk gestoffeerd
  • Permanente bewoning Ja
  • Huidig gebruik Woonruimte
  • Huidige bestemming Woonruimte

Voorzieningen

  • Voorzieningen Tv kabel, natuurlijke ventilatie

Kadastrale gegevens

  • Perceelnummer 461
Meer kenmerken
Huis verkopen?

Maak een afspraak voor een gratis adviesgesprek met onze makelaars en ontdek jouw mogelijkheden.

Maak direct een afspraak

In de buurt

Geïnteresseerd?

Bel met Van Herk Makelaars te Rotterdam

shape

Stuur een bericht

* Maximaal 255 tekens
privacyverklaring