Hoogvliet Rotterdam

Papaver  21

€ 409.000,- k.k.

Omschrijving

Papaver 21 in Hoogvliet Rotterdam Instap klaar wonen met strakke afwerking Dit huis is er één waar je zonder zorgen naartoe verhuist. De afwerking is strak, modern en duidelijk met zorg uitgevoerd. Zodra je binnenkomt valt direct de fijne lichtinval op in de woonkamer. De ruimte is prettig ingedeeld en biedt volop plek voor zowel een royale zithoek als een gezellige…

Papaver 21 in Hoogvliet Rotterdam

Instap klaar wonen met strakke afwerking

Dit huis is er één waar je zonder zorgen naartoe verhuist. De afwerking is strak, modern en duidelijk met zorg uitgevoerd. Zodra je binnenkomt valt direct de fijne lichtinval op in de woonkamer. De ruimte is prettig ingedeeld en biedt volop plek voor zowel een royale zithoek als een gezellige eethoek.

Aan de voorzijde bevindt zich de gemoderniseerde keuken. Deze is praktisch ingericht en voorzien van alle benodigde apparatuur, waardoor je hier comfortabel kookt en leeft. De combinatie van de open indeling en de verzorgde afwerking maakt dit een plek waar je je direct thuis voelt.

Daarnaast is het hele huis voorzien van kunststof kozijnen van een erkend A merk (Schuco/Veka), in de slaapkamer compleet met inbouw rolluiken. Dit zorgt niet alleen voor extra comfort, maar ook voor een onderhoudsvriendelijk geheel.

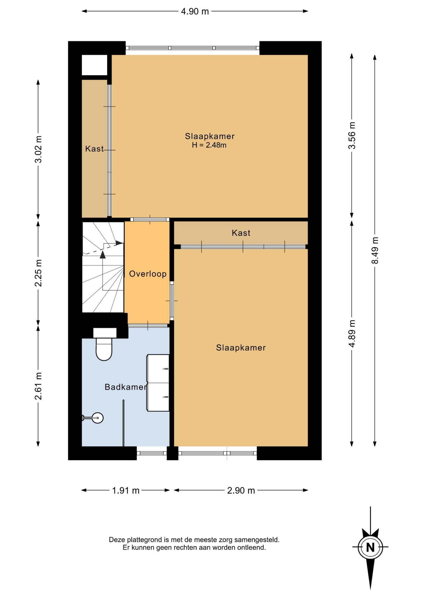
Drie ruime slaapkamers en vernieuwde badkamer

Op de eerste verdieping beschik je over twee ruime slaapkamers, beide netjes afgewerkt en voorzien van vaste inbouw kasten. De kamers bieden voldoende ruimte voor slapen, werken of hobby’s en zijn flexibel in te delen naar jouw wensen.

De badkamer is recent vernieuwd en heeft een moderne uitstraling. Hier vind je een ruime inloopdouche, toilet en een strak wastafelmeubel. Ook het toilet beneden is vernieuwd, wat bijdraagt aan het verzorgde totaalplaatje van het huis. Alles is klaar voor gebruik, zonder dat je nog hoeft te klussen.

Praktische tweede verdieping met bergruimte

De tweede verdieping is een waardevolle toevoeging aan het huis. Hier vind je een ruime overloop met opstelplaats voor de wasmachine en droger, evenals extra bergruimte. Ideaal voor het netjes opbergen van spullen die je niet dagelijks nodig hebt.

Deze verdieping biedt daarnaast mogelijkheden voor een extra slaapkamer, afhankelijk van jouw woonwensen.
De praktische indeling zorgt ervoor dat elke vierkante meter goed benut wordt.

Zonnige tuin en dubbele berging

De achtertuin is gelegen op het zuiden en is voorzien van een overkapping met berging en de tuin is volledig verzorgd en onderhoudsvriendelijk aangelegd. Hier geniet je de hele dag van de zon en heb je voldoende ruimte voor een lounge set, eettafel of groenvoorziening. Dankzij de verzorgde inrichting is dit een plek waar je direct kunt ontspannen.

Wat dit huis extra aantrekkelijk maakt, is de aanwezigheid van twee bergingen in de voortuin. Eén berging is direct aan het huis gebouwd, voorzien van verwarming en elektra. Daarnaast is er een tweede, ruime berging aanwezig aan de voorzijde. Deze is voorzien van elektra en verlichting, ideaal voor fietsen, opslag of als hobby ruimte.

Dit alles maakt het en fijne woonomgeving met alles dichtbij.

Het huis ligt in een rustige en prettige woonwijk met een groen karakter. In de directe omgeving vind je diverse voorzieningen zoals supermarkten, scholen en sportverenigingen. Ook zijn er voldoende speelplekken en groenstroken aanwezig.

De bereikbaarheid is goed, met uitvalswegen en openbaar vervoer in de buurt. Hierdoor ben je snel onderweg richting omliggende steden of het centrum. Een fijne plek voor zowel starters als doorstromers.

Belangrijkste kenmerken
-Tuin: gelegen op het zuiden met recent overkapping
-Woonoppervlakte: 101 m²
-Perceeloppervlakte: 142 m²
-Bouwjaar: 1983
-Aantal slaapkamers: 3 ruime slaapkamers
-Energielabel B en 9 zonnepanelen (2018)
-Volledig voorzien van kunststof kozijnen (erkend merk)
-Badkamer en toilet recent vernieuwd
-Keuken recent gemoderniseerd
-Twee bergingen in de voortuin, waarvan één met elektra en verlichting
-Overkapping met Berging in achtertuin
-Oplevering: in overleg

Toelichtingsclausule NEN2580:
De Meetinstructie is gebaseerd op de NEN2580. De Meetinstructie is bedoeld om een meer eenduidige manier van meten toe te passen voor het geven van een indicatie van de gebruiksoppervlakte. De Meetinstructie sluit verschillen in meetuitkomsten niet volledig uit, door bijvoorbeeld interpretatieverschillen, afrondingen of beperkingen bij het uitvoeren van de meting.

“Deze informatie is door ons met de nodige zorgvuldigheid samengesteld. Onzerzijds wordt echter geen enkele aansprakelijkheid aanvaard voor enige onvolledigheid, onjuistheid of anderszins, dan wel de gevolgen daarvan. Alle opgegeven maten en oppervlakten zijn indicatief.”

Koopovereenkomst pas rechtsgeldig na ondertekening:
Een mondelinge overeenstemming tussen de particuliere verkoper en de particuliere koper is niet rechtsgeldig. Met andere woorden: er is geen koop. Er is pas sprake van een rechtsgeldige koop als de particuliere verkoper en de particuliere koper de koopovereenkomst hebben ondertekend. Dit vloeit voort uit artikel 7:2 Burgerlijk Wetboek. Een bevestiging van de mondelinge overeenstemming per e-mail of een toegestuurd concept van de koopovereenkomst wordt overigens niet gezien als een 'ondertekende koopovereenkomst'.

Kenmerken

Basiskenmerken

  • Status Beschikbaar
  • Koopsom € 409.000 k.k.
  • Woonoppervlakte ca. 101 m2
  • Aantal slaapkamers 3
  • Bouwjaar 1983

Overdracht

  • Aanvaarding In overleg

Bouwvorm & onderhoud

  • Soort object Tussenwoning
  • Soort woning Eengezinswoning
  • Bouwjaar 1983
  • Soort bouw woonhuis
  • Ligging In woonwijk

Oppervlakte & inhoud

  • Gebruiksoppervlakte 101m2
  • Perceeloppervlakte 142m2
  • Inhoud 366m3
  • Aantal kamers 4
  • Aantal slaapkamers 3
  • Aantal woonlagen 3 woonlagen
  • Overige inpandige ruimte 6m2

Energie & installatie

  • Energielabel B
  • Isolatie Volledig geisoleerd, hr glas
  • Verwarming Cv ketel
  • Warm water Cv ketel
  • C.v.-ketel type GAS
  • C.v.-ketel bouwjaar 2012
  • Energie einddatum 17-09-2030

Bergruimte

  • Schuur / berging Aangebouwd steen
  • Voorzieningen Voorzien van verwarming, voorzien van elektra

Parkeergelegenheid

  • Parkeerfaciliteiten Openbaar parkeren
  • Garage Geen garage

Dak

  • Soort dak Zadeldak

Overig

  • Onderhoud binnen Uitstekend
  • Onderhoud buiten Uitstekend
  • Permanente bewoning Ja
  • Huidig gebruik Woonruimte
  • Huidige bestemming Woonruimte

Voorzieningen

  • Voorzieningen Mechanische ventilatie, rolluiken, buitenzonwering, schuifpui, dakraam, glasvezel kabel, zonnepanelen, natuurlijke ventilatie

Buitenruimte

  • Hoofdtuin ACHTERTUIN
  • Oppervlakte hoofdtuin 44m2
  • Ligging hoofdtuin ZUID
  • Kwaliteit tuin Verzorgd

Kadastrale gegevens

  • Perceelnummer 816
  • Perceeloppervlakte 142 m2
Meer kenmerken
Huis verkopen?

Maak een afspraak voor een gratis adviesgesprek met onze makelaars en ontdek jouw mogelijkheden.

Maak direct een afspraak

In de buurt

Geïnteresseerd?

Bel met Den Rooijen en van Herk Makelaars te Spijkenisse

shape

Stuur een bericht

* Maximaal 255 tekens
privacyverklaring