Spijkenisse

Paradijsvogelhoek  22

€ 419.500,- k.k.

Omschrijving

INSTAPKLAAR WONEN MET MODERNE UITSTRALING Aan de Paradijsvogelhoek vind je deze verrassend ruime en instapklare tussenwoning. Een huis dat perfect aansluit bij starters en jonge doorstromers die op zoek zijn naar comfort, sfeer en gemak. De woning is de afgelopen jaren op meerdere punten aangepakt en netjes afgewerkt. Met kunststof kozijnen, HR++ glas, zonnepanelen…

INSTAPKLAAR WONEN MET MODERNE UITSTRALING
Aan de Paradijsvogelhoek vind je deze verrassend ruime en instapklare tussenwoning. Een huis dat perfect aansluit bij starters en jonge doorstromers die op zoek zijn naar comfort, sfeer en gemak.

De woning is de afgelopen jaren op meerdere punten aangepakt en netjes afgewerkt. Met kunststof kozijnen, HR++ glas, zonnepanelen (2019) en een moderne keuken (2025) is hier al veel werk uit handen genomen. In combinatie met de tuin op het zuiden en de rustige ligging heb je hier een compleet en verzorgd geheel.

LICHTE WOONKAMER MET STRAKKE AFWERKING
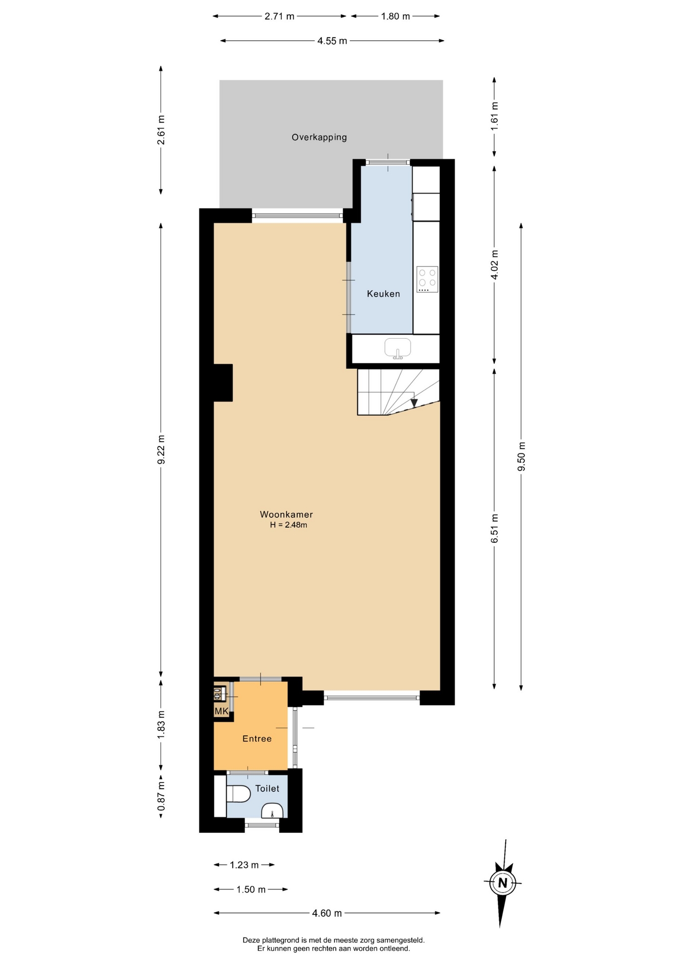
De woonkamer is een fijne en lichte leefruimte van circa 37 m² waar direct de strakke afwerking opvalt. De gestuukte wanden en plafonds in combinatie met de moderne vloer zorgen voor een rustige basis.

De echte eyecatcher is de cinewall met ingebouwde verlichting. Dit geeft de ruimte niet alleen sfeer, maar ook een luxe uitstraling. De zithoek aan de voorzijde is ruim opgezet en biedt voldoende plek voor een grote bank.

Aan de achterzijde is ruimte voor een eethoek met zicht op de tuin. Door de grote raampartijen valt er veel daglicht naar binnen, wat de ruimte extra prettig maakt. De indeling is praktisch en zorgt ervoor dat je optimaal gebruikmaakt van de beschikbare ruimte.

NIEUWE KEUKEN EN DIRECT TUINCONTACT
De keuken is in 2025 vernieuwd en uitgevoerd in een moderne, lichte kleurstelling. De opstelling is strak en functioneel met voldoende werk- en bergruimte en diverse inbouwapparatuur.

De keuken staat in verbinding met de woonkamer en eethoek, waardoor het een fijne plek is om te koken én in contact te blijven met de rest van het huis. Vanuit hier loop je zo de tuin in, wat het dagelijks gebruik extra comfortabel maakt.

De praktische indeling van de begane grond zorgt voor een fijne flow tussen koken, eten en ontspannen.

VIER SLAAPKAMERS EN COMPLETE INDELING
Op de eerste verdieping vind je drie goed bemeten slaapkamers. De grootste slaapkamer aan de achterzijde beschikt over toegang tot een balkon, wat een leuke extra is. De andere kamers zijn ideaal als kinder-, werk- of logeerkamer.

De badkamer is modern uitgevoerd en voorzien van een inloopdouche, wastafelmeubel en toilet. Alles is netjes afgewerkt en direct te gebruiken.

De tweede verdieping biedt nog een volwaardige vierde slaapkamer met extra bergruimte onder de schuine kap. Dit maakt het huis geschikt voor verschillende gezinssituaties of voor wie thuis wil werken.

ZONNIGE TUIN MET OVERKAPPING
De achtertuin ligt op het zuiden en is daarmee een heerlijke plek om van de zon te genieten. De tuin is onderhoudsvriendelijk aangelegd en biedt voldoende ruimte voor zowel een terras als groen.

De aangebouwde overkapping aan de achterzijde zorgt ervoor dat je hier ook bij minder weer comfortabel buiten zit. Dit maakt het echt een verlengstuk van je woonkamer.

Achterin de tuin staat een vrijstaande berging en er is een achterom aanwezig, wat het praktisch gebruik compleet maakt.

RUSTIGE LIGGING AAN GROEN EN PARK
De woning ligt op een rustige en prettige locatie in Spijkenisse, direct aan een park en met vrij uitzicht. Dit zorgt voor een open gevoel en een groene woonomgeving.

De buurt is kindvriendelijk ingericht met voldoende speelvoorzieningen en groenstroken. Daarnaast zijn scholen, winkels en sportvoorzieningen op korte afstand te vinden.

Ook de bereikbaarheid is goed: met zowel de auto als het openbaar vervoer ben je snel onderweg richting Rotterdam en omliggende plaatsen. Dit maakt het een fijne plek voor wie rustig wil wonen, maar toch centraal wil zitten.

ALLE KENMERKEN OP EEN RIJ
- Woonoppervlakte: 114 m²
- Perceeloppervlakte: 120 m²
- Bouwjaar: 1981
- Moderne nieuwe keuken (2025)
- Modern toilet (2021) en moderne badkamer
- Stukwerk wanden en plafond met verlichting
- Sfeervolle cinewall
- Kunststof kozijnen met HR++ glas (m.u.v. dakramen)
- 8 zonnepanelen (2019)
- Gezellige aangebouwde overkapping (2019)
- Energielabel: C
- Aanvaarding: in overleg (kan snel)

Toelichtingsclausule NEN2580:
De Meetinstructie is gebaseerd op de NEN2580. De Meetinstructie is bedoeld om een meer eenduidige manier van meten toe te passen voor het geven van een indicatie van de gebruiksoppervlakte. De Meetinstructie sluit verschillen in meetuitkomsten niet volledig uit, door bijvoorbeeld interpretatieverschillen, afrondingen of beperkingen bij het uitvoeren van de meting.

“Deze informatie is door ons met de nodige zorgvuldigheid samengesteld. Onzerzijds wordt echter geen enkele aansprakelijkheid aanvaard voor enige onvolledigheid, onjuistheid of anderszins, dan wel de gevolgen daarvan. Alle opgegeven maten en oppervlakten zijn indicatief.”

Koopovereenkomst pas rechtsgeldig na ondertekening:
Een mondelinge overeenstemming tussen de particuliere verkoper en de particuliere koper is niet rechtsgeldig. Met andere woorden: er is geen koop. Er is pas sprake van een rechtsgeldige koop als de particuliere verkoper en de particuliere koper de koopovereenkomst hebben ondertekend. Dit vloeit voort uit artikel 7:2 Burgerlijk Wetboek. Een bevestiging van de mondelinge overeenstemming per e-mail of een toegestuurd concept van de koopovereenkomst wordt overigens niet gezien als een 'ondertekende koopovereenkomst'.

Kenmerken

Basiskenmerken

  • Status Verkocht onder voorbehoud
  • Koopsom € 419.500 k.k.
  • Woonoppervlakte ca. 114 m2
  • Aantal slaapkamers 4
  • Bouwjaar 1981

Overdracht

  • Aanvaarding In overleg

Bouwvorm & onderhoud

  • Soort object Tussenwoning
  • Soort woning Eengezinswoning
  • Bouwjaar 1981
  • Soort bouw woonhuis
  • Ligging Aan park, aan rustige weg, in woonwijk, vrij uitzicht, open ligging

Oppervlakte & inhoud

  • Gebruiksoppervlakte 114m2
  • Perceeloppervlakte 120m2
  • Inhoud 387m3
  • Aantal kamers 5
  • Aantal slaapkamers 4
  • Aantal woonlagen 3 woonlagen

Energie & installatie

  • Energielabel C
  • Isolatie Dakisolatie, muurisolatie, vloerisolatie, dubbel glas, volledig geisoleerd
  • Verwarming Cv ketel
  • Warm water Cv ketel
  • C.v.-ketel type GAS
  • C.v.-ketel bouwjaar 2009
  • Energie einddatum 18-08-2030

Bergruimte

  • Schuur / berging Vrijstaand hout

Parkeergelegenheid

  • Parkeerfaciliteiten Openbaar parkeren
  • Garage Geen garage

Dak

  • Soort dak Zadeldak

Overig

  • Onderhoud binnen Goed
  • Onderhoud buiten Goed
  • Bijzonderheden Gedeeltelijk gestoffeerd
  • Permanente bewoning Ja
  • Huidig gebruik Woonruimte
  • Huidige bestemming Woonruimte

Voorzieningen

  • Voorzieningen Mechanische ventilatie, tv kabel, frans balkon, dakraam, glasvezel kabel, zonnepanelen, natuurlijke ventilatie

Buitenruimte

  • Hoofdtuin ACHTERTUIN
  • Oppervlakte hoofdtuin 54m2
  • Ligging hoofdtuin ZUID
  • Kwaliteit tuin Normaal

Kadastrale gegevens

  • Perceelnummer 5200
  • Perceeloppervlakte 120 m2
Meer kenmerken
Huis verkopen?

Maak een afspraak voor een gratis adviesgesprek met onze makelaars en ontdek jouw mogelijkheden.

Maak direct een afspraak

In de buurt