Haastrecht

Provincialeweg Oost  64

€ 1.249.000,- k.k.

Omschrijving

VRIJSTAAND WOONHUIS MET GROTE WERKPLAATS, GARAGE, CARPORT EN GROTE TUIN Een gerenoveerd huis, een werkplaats van ruim 115m2 en een perceel van maar liefst 1914 m2: dit is een plek waar ruimte en rust samenkomen. Perfect voor een eigen bedrijf of liefhebbers van hobby's die net wat meer plek nodig hebben, maar ook gebruik als praktijkruimte of mantelzorgwoning behoort tot…

VRIJSTAAND WOONHUIS MET GROTE WERKPLAATS, GARAGE, CARPORT EN GROTE TUIN
Een gerenoveerd huis, een werkplaats van ruim 115m2 en een perceel van maar liefst 1914 m2: dit is een plek waar ruimte en rust samenkomen. Perfect voor een eigen bedrijf of liefhebbers van hobby's die net wat meer plek nodig hebben, maar ook gebruik als praktijkruimte of mantelzorgwoning behoort tot de mogelijkheden. De landelijke ligging biedt volop vrijheid, terwijl alle voorzieningen en uitvalswegen lekker dichtbij zijn.

VERKOPER AAN HET WOORD:
"Wij hebben hier de afgelopen 14 jaar met heel veel plezier gewoond, eerst met onze 2 dochters en de laatste jaren samen. Het is een heerlijk huis om te wonen met veel ruimte voor bezoek en nog meer ruimte om het huis.
In de ruime tuin en onder de veranda hebben we al heel wat feestjes en BBQ' s gegeven met familie en vrienden.
Buiten is het heerlijk vertoeven want er groeit en bloeit heel veel, elk seizoen gebeurt er wel wat in de tuin, veel verschillende vogels weten onze tuin dan ook te vinden. Groenten uit je eigen moestuin en zelf je eigen boeket plukken van al het moois dat bloeit in de tuin maakt het tuingeluk en buitenleven compleet.

GERENOVEERD VRIJSTAAND HUIS MET KARAKTER
Dit vrijstaande huis, oorspronkelijk gebouwd in 1929, is in 2011 grondig gerenoveerd met respect voor de sfeer en uitstraling. Zo zijn onder andere het dakbeschot vernieuwd en is er een prachtige rieten kap geplaatst, gecombineerd met moderne isolatie. Met een woonoppervlakte van ca. 180 m2 is er ruimte genoeg voor het hele gezin. Dankzij de dak-, vloer- en spouwmuurisolatie en HR++ glas is het huis bovendien lekker energiezuinig (energielabel B) en profiteer je van lage energielasten. Binnen tref je een sfeervolle woonkamer met sfeervolle pelletkachel en veel licht, een ruime woonkeuken, bijkeuken, kelder en een kantoorruimte aan, ideaal voor werken aan huis. De verdieping biedt vier slaapkamers, een luxe badkamer en een grote bergvliering.

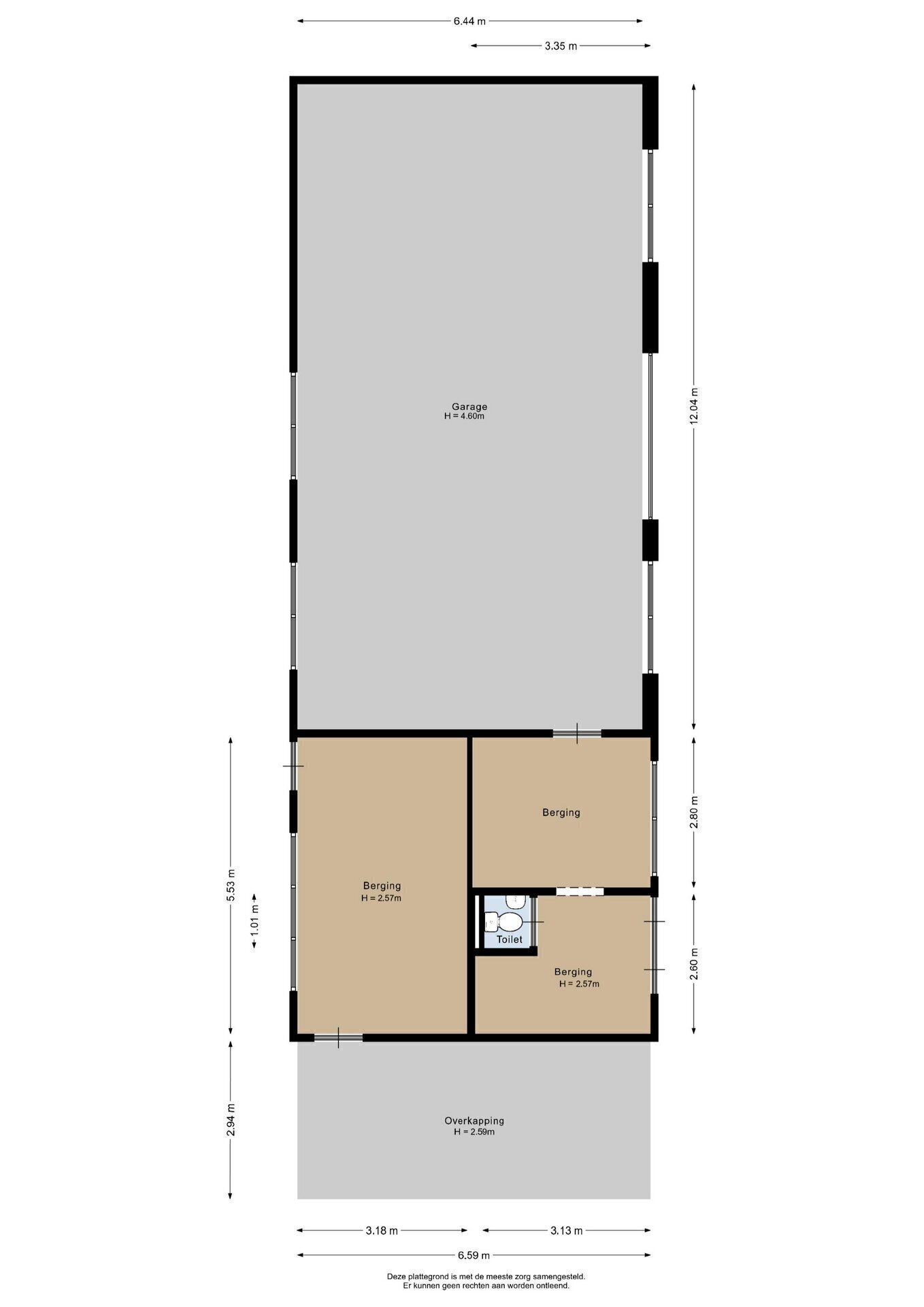
GROTE WERKPLAATS VOOR BEDRIJF, HOBBY OF MANTELZORG
Achter het huis vind je een enorme werkplaats van meer dan 115 m2, die in 2012 volledig gerenoveerd is met onder andere een nieuw pannendak. Ideaal voor ondernemers die werken aan huis, praktijkruimte, mantelzorgwoning, fanatieke klussers, hobbyisten of voor wie extra opslag nodig heeft. De werkplaats is makkelijk bereikbaar via een brede oprit. Hier kun je jouw werk en wonen op een unieke manier combineren zonder concessies te hoeven doen, want er is in 2024 ook nog een garage gebouwd en een carport.

LANDELIJK WONEN MET ALLES IN DE BUURT
De landelijke ligging betekent genieten van rust, groen en vrijheid, terwijl de dagelijkse voorzieningen binnen handbereik liggen. Supermarkten, scholen en sportverenigingen zijn allemaal op korte afstand te vinden. Bovendien ben je via de nabijgelegen uitvalswegen zo in de omliggende dorpen of steden. Perfect als je de voordelen van landelijk wonen zoekt, maar geen zin hebt om te ver te rijden voor je dagelijkse boodschappen of werkafspraken.

De directe omgeving biedt volop ruimte om te ontspannen en actief te zijn. Je woont hier middenin een groene, landelijke omgeving met volop mogelijkheden voor wandelen, fietsen en genieten van de natuur. Tegelijkertijd liggen dorpen en steden zoals Haastrecht, Oudewater en Gouda binnen handbereik, zodat je niet ver hoeft te reizen voor winkels, horeca en andere voorzieningen. De combinatie van vrijheid, ruimte en bereikbaarheid maakt deze plek uniek. Of je nu zoekt naar een inspirerende omgeving voor je bedrijf, een ideale thuisbasis voor je gezin, of gewoon een rustige plek om te wonen: hier kan het allemaal.

BELANGRIJKSTE KENMERKEN:
-Bouwjaar: 1929, gerenoveerd in 2011
-Perceeloppervlakte: 1914 m2 eigen grond
-Woonoppervlakte: ca. 180 m2
-Voorzien van dakisolatie, spouwmuurisolatie, vloerisolatie en geheel HR++ glas (behalve voor- en achterdeur)
-Nieuw dakbeschot en rieten kap (2010)
-Lage energielasten (energielabel B)
-Garage/werkplaats van meer dan 115 m2 met nieuw pannendak (2012)
-Carport en garage vernieuwd in 2024

OPLEVERING: in overleg

Ben je nieuwsgierig geworden naar dit unieke huis? Neem dan snel contact met ons op voor een bezichtiging!

Kenmerken

Basiskenmerken

  • Status Beschikbaar
  • Koopsom € 1.249.000 k.k.
  • Woonoppervlakte ca. 180 m2
  • Aantal slaapkamers 4
  • Bouwjaar 1929

Overdracht

  • Aanvaarding In overleg

Bouwvorm & onderhoud

  • Soort object Vrijstaande woning
  • Soort woning Eengezinswoning
  • Bouwjaar 1929
  • Soort bouw woonhuis
  • Ligging Aan water, vrij uitzicht, landelijk gelegen

Oppervlakte & inhoud

  • Gebruiksoppervlakte 180m2
  • Perceeloppervlakte 1914m2
  • Inhoud 682m3
  • Aantal kamers 6
  • Aantal slaapkamers 4
  • Aantal woonlagen 3 woonlagen
  • Overige inpandige ruimte 4m2

Energie & installatie

  • Energielabel B
  • Isolatie Dakisolatie, muurisolatie, vloerisolatie, dubbel glas, volledig geisoleerd, hr glas
  • Verwarming Cv ketel, vloerverwarming gedeeltelijk
  • Warm water Cv ketel
  • C.v.-ketel type GAS
  • C.v.-ketel bouwjaar 2011
  • Energie einddatum 24-08-2034

Bergruimte

  • Schuur / berging Vrijstaand steen
  • Voorzieningen Voorzien van elektra, voorzien van water, met vliering

Parkeergelegenheid

  • Parkeerfaciliteiten Op eigen terrein
  • Garage Vrijstaand hout

Dak

  • Soort dak Mansarde dak

Overig

  • Onderhoud binnen Goed
  • Onderhoud buiten Goed
  • Bijzonderheden Gedeeltelijk gestoffeerd, dubbele bewoning mogelijk, toegankelijk voor ouderen, toegankelijk voor minder validen
  • Permanente bewoning Ja
  • Huidig gebruik Woonruimte
  • Huidige bestemming Woonruimte

Voorzieningen

  • Voorzieningen Mechanische ventilatie, alarminstallatie, glasvezel kabel

Buitenruimte

  • Hoofdtuin TUIN_RONDOM

Kadastrale gegevens

  • Perceelnummer 457
  • Perceeloppervlakte 1914 m2
Meer kenmerken
Huis verkopen?

Maak een afspraak voor een gratis adviesgesprek met onze makelaars en ontdek jouw mogelijkheden.

Maak direct een afspraak

In de buurt

Geïnteresseerd?

Bel met Van Herk Makelaars te Gouda

shape

Stuur een bericht

* Maximaal 255 tekens
privacyverklaring