Boskoop

Reijerskoop  121

€ 795.000,- k.k.

Omschrijving

KARAKTERISTIEKE VRIJSTAANDE WONING OP RUIM PERCEEL AAN HET WATER Deze charmante vrijstaande woning combineert karakter, comfort en praktische ruimte. De sfeervolle erker en de authentieke glas-in-loodramen geven de woning een warme en uitnodigende uitstraling. De houtkachel in de woonkamer zorgt voor extra gezelligheid tijdens de koudere maanden. De keuken is voorzien van…

KARAKTERISTIEKE VRIJSTAANDE WONING OP RUIM PERCEEL AAN HET WATER
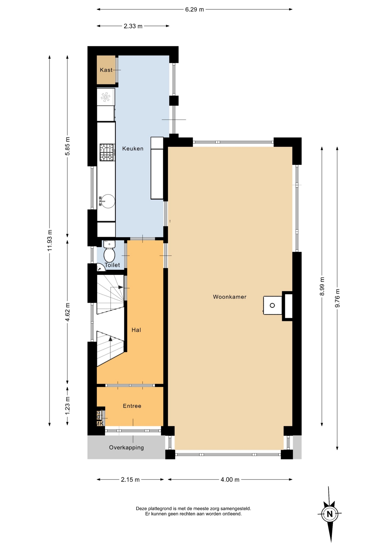
Deze charmante vrijstaande woning combineert karakter, comfort en praktische ruimte. De sfeervolle erker en de authentieke glas-in-loodramen geven de woning een warme en uitnodigende uitstraling. De houtkachel in de woonkamer zorgt voor extra gezelligheid tijdens de koudere maanden. De keuken is voorzien van alle benodigde inbouwapparatuur en biedt bovendien de mogelijkheid om deze eenvoudig meer open te maken naar de woonkamer, waardoor een moderne, open leefruimte kan worden gecreëerd. De woning is door de jaren heen goed onderhouden, wat direct merkbaar is in de verzorgde staat. Op de eerste verdieping bevinden zich drie slaapkamers van goed formaat en een ruime badkamer, compleet met ligbad, douche, groot wastafelmeubel en een deur naar het zonnige dakterras. Daarnaast beschikt de woning over een praktische vliering met veel bergruimte en een kelder, ideaal voor extra opslag. Het absolute pluspunt van deze woning is het ruime perceel aan vaarwater. Deze unieke ligging met een prachtig vrij uitzicht kom je maar zelden tegen. Lees snel verder wat de woning nog meer te bieden heeft!

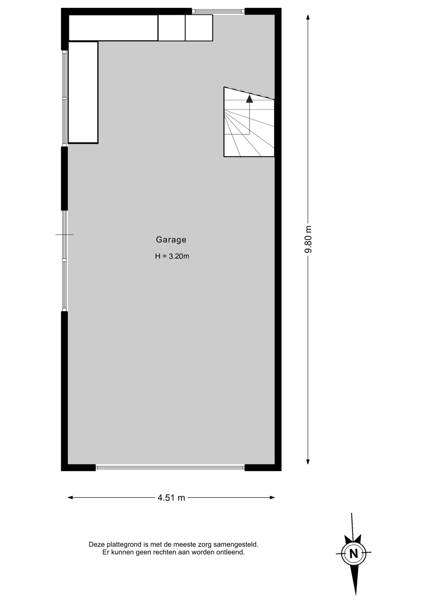
UNIEK BIJGEBOUW (77M²) MET RUIME GARAGE EN VEEL MOGELIJKHEDEN
Dit ruime bijgebouw van maar liefst 77 m² biedt een verrassende combinatie van functionaliteit, ruimte en mogelijkheden. De royale garage vormt de basis van het geheel en is ruim genoeg voor meerdere voertuigen, opslag of het uitoefenen van een hobby. Dankzij de praktische indeling en de goede toegankelijkheid is de garage niet alleen geschikt voor dagelijks gebruik, maar ook voor werk aan huis of kleinschalige bedrijfsactiviteiten. Boven de garage bevindt zich een veelzijdige verdieping die naar eigen wens kan worden ingericht. Denk aan een comfortabele werkruimte, een gastenverblijf, een atelier of zelfs een compacte woonunit. De open indeling en de aanwezige lichtinval zorgen voor een aangename sfeer en maken het eenvoudig om de ruimte aan te passen aan veranderende behoeften. Dit bijgebouw onderscheidt zich door zijn flexibiliteit en potentie. Of je nu op zoek bent naar extra bergruimte, een creatieve werkplek of een plek om gasten te ontvangen, de mogelijkheden zijn vrijwel eindeloos. Een ideale aanvulling voor wie waarde hecht aan ruimte, zelfstandigheid en multifunctioneel gebruik.

VERKOPERS AAN HET WOORD
Ik ben zelf geboren in dit huis en samen hebben wij hier 50 jaar gewoond. Ook onze kinderen hebben hier veel vrijheid genoten omdat je aan de achterkant zo de polder in kan met een bootje, kano of sub. Voor ons is het tijd om dit huis te verlaten en in te ruilen voor een kleinere woning. Voor u de gelegenheid dit huis te gaan bewonen en te genieten van de tuin, de zonnige plekjes en de fijne buurt.

PRACHTIGE ACHTERTUIN EN IDEALE ZIJTUIN
Deze prachtige, circa 35 meter diepe achtertuin is een droom voor liefhebbers van rust, ruimte en buitenleven. Gelegen op het zuiden geniet je hier de hele dag door van optimale zonligging, van de eerste ochtendstralen tot een sfeervolle zonsondergang in de avond. De tuin grenst direct aan vaarwater, wat niet alleen zorgt voor een idyllisch uitzicht, maar ook de mogelijkheid biedt om met een bootje direct het water op te gaan. Het vrije uitzicht versterkt het gevoel van privacy en openheid, waardoor je hier in alle rust kunt ontspannen. Dankzij de royale diepte is er veel ruimte voor verschillende terrassen, een groene oase met beplanting of een speelplek voor kinderen. Deze buitenruimte biedt heel veel mogelijkheden om jouw ideale tuin te realiseren. Aan de zijkant van de woning bevindt zich een praktische achterom met een ruime oprit, geschikt voor het parkeren van meerdere auto’s op eigen terrein. Wat wens je nog meer?!

LANDELIJK EN CENTRAAL WONEN
De rustige en landelijke ligging dichtbij het centrum is perfect. Het centrum van Boskoop, met diverse winkels, supermarkten en horecagelegenheden, is op korte afstand bereikbaar. Ook scholen, sportfaciliteiten en openbaar vervoer bevinden zich in de nabijheid, wat de locatie zeer geschikt maakt voor zowel gezinnen als rustzoekers. Boskoop is een dorp met een groen karakter en een sterke gemeenschap. Het staat bekend om de boomkwekerijen en rustige sfeer, maar ook de centrale ligging! Dankzij deze centrale ligging in het Groene Hart zijn de grote steden in de Randstad in slechts 30 minuten met de auto bereikbaar. Ben je op zoek naar een rustig gelegen woning in het groene hart, tegenover het nieuwe wandelpark "De Tuinen van Boskoop", met alle voorzieningen binnen handbereik en een prachtige tuin? Dan is dit die woning die je zoekt! Oprecht een ideale combinatie van rustig wonen met alles binnen handbereik.

BIJZONDERHEDEN
- Er zijn 10 zonnepanelen;
- Ruim en goed geïsoleerd bijgebouw (1996) met heel veel mogelijkheden;
- Veel opbergruimte door een bergvliering én kelder;
- Onderheid terras achter het bijgebouw;
- Perceeloppervlakte van maar liefst 673m²;
- Diepe tuin op het zuiden met vaarverbinding naar o.a. Reeuwijk;
- Volledig voorzien van HR en HR++ dubbelglas (m.u.v. kelderraam en toiletraam);
- Oplevering in overleg.

INTERESSE? MAAK DAN SNEL EEN AFSPRAAK!
Ons advies is om bij het kopen van je nieuwe huis je eigen NVM-makelaar mee te nemen.

TOELICHTINGSCLAUSULE NEN2580
De Meetinstructie is gebaseerd op de NEN2580. De Meetinstructie is bedoeld om een meer eenduidige manier van meten toe te passen voor het geven van een indicatie van de gebruiksoppervlakte. De Meetinstructie sluit verschillen in meetuitkomsten niet volledig uit, door bijvoorbeeld interpretatieverschillen, afrondingen of beperkingen bij het uitvoeren van de meting.
"Deze informatie is door ons met de nodige zorgvuldigheid samengesteld. Onzerzijds wordt echter geen enkele aansprakelijkheid aanvaard voor enige onvolledigheid, onjuistheid of anderszins, dan wel de gevolgen daarvan. Alle opgegeven maten en oppervlakten zijn indicatief.”

KOOPOVEREENKOMST PAS RECHTSGELDIG NA ONDERTEKENING
Een mondelinge overeenstemming tussen de particuliere verkoper en de particuliere koper is niet rechtsgeldig. Met andere woorden: er is geen koop. Er is pas sprake van een rechtsgeldige koop als de particuliere verkoper en de particuliere koper de koopovereenkomst hebben ondertekend. Dit vloeit voort uit artikel 7:2 Burgerlijk Wetboek. Een bevestiging van de mondelinge overeenstemming per e-mail of een toegestuurd concept van de koopovereenkomst wordt overigens niet gezien als een 'ondertekende koopovereenkomst'.

Kenmerken

Basiskenmerken

  • Status Beschikbaar
  • Koopsom € 795.000 k.k.
  • Woonoppervlakte ca. 120 m2
  • Aantal slaapkamers 3
  • Bouwjaar 1925

Overdracht

  • Aanvaarding In overleg

Bouwvorm & onderhoud

  • Soort object Vrijstaande woning
  • Soort woning Eengezinswoning
  • Bouwjaar 1925
  • Soort bouw woonhuis
  • Ligging Aan water, aan rustige weg

Oppervlakte & inhoud

  • Gebruiksoppervlakte 120m2
  • Perceeloppervlakte 673m2
  • Inhoud 503m3
  • Aantal kamers 5
  • Aantal slaapkamers 3
  • Aantal woonlagen 4 woonlagen
  • Overige inpandige ruimte 17m2

Energie & installatie

  • Energielabel E
  • Isolatie Vloerisolatie, dubbel glas, hr glas
  • Verwarming Cv ketel
  • Warm water Cv ketel
  • C.v.-ketel type GAS
  • C.v.-ketel bouwjaar 2009
  • Energie einddatum 22-10-2030

Parkeergelegenheid

  • Parkeerfaciliteiten Openbaar parkeren, op eigen terrein
  • Garage Vrijstaand steen

Dak

  • Soort dak Mansarde dak

Overig

  • Onderhoud binnen Goed
  • Onderhoud buiten Goed
  • Bijzonderheden Gedeeltelijk gestoffeerd
  • Permanente bewoning Ja
  • Huidig gebruik Woonruimte
  • Huidige bestemming Woonruimte

Voorzieningen

  • Voorzieningen Buitenzonwering, rookkanaal, dakraam, zonnepanelen, natuurlijke ventilatie

Buitenruimte

  • Hoofdtuin ACHTERTUIN
  • Oppervlakte hoofdtuin 414m2
  • Ligging hoofdtuin ZUID
  • Kwaliteit tuin Verzorgd

Kadastrale gegevens

  • Perceelnummer 4594
  • Perceeloppervlakte 673 m2
Meer kenmerken
Huis verkopen?

Maak een afspraak voor een gratis adviesgesprek met onze makelaars en ontdek jouw mogelijkheden.

Maak direct een afspraak

In de buurt

Geïnteresseerd?

Bel met Van Herk Makelaars te Gouda

shape

Stuur een bericht

* Maximaal 255 tekens
privacyverklaring