Capelle Aan Den Ijssel

Ringvaartpark  16

€ 899.000,- k.k.

Omschrijving

- NIEUW IN DE VERKOOP - OP HET KLEINSCHALIGE VILLAPARK ''RINGVAARTPARK'' IS DEZE ROYALE VILLA GELEGEN. DE VILLA BESCHIKT OVER 151 M² WOONOPPERVLAKTE MET 3 SLAAPKAMERS, EEN GARAGE EN EEN ROYALE TUIN RONDOM. EEN UNIEKE KANS VOOR RUST EN RUIMTE MAAR WEL MET DE STADSE VOORZIENINGEN OM DE HOEK! NEEM SNEL CONTACT MET ONS OP VOOR HET PLANNEN VAN EEN BEZICHTIGING. VRIJSTAANDE…

- NIEUW IN DE VERKOOP -
OP HET KLEINSCHALIGE VILLAPARK ''RINGVAARTPARK'' IS DEZE ROYALE VILLA GELEGEN. DE VILLA BESCHIKT OVER 151 M² WOONOPPERVLAKTE MET 3 SLAAPKAMERS, EEN GARAGE EN EEN ROYALE TUIN RONDOM. EEN UNIEKE KANS VOOR RUST EN RUIMTE MAAR WEL MET DE STADSE VOORZIENINGEN OM DE HOEK! NEEM SNEL CONTACT MET ONS OP VOOR HET PLANNEN VAN EEN BEZICHTIGING.

VRIJSTAANDE PARKWONING:
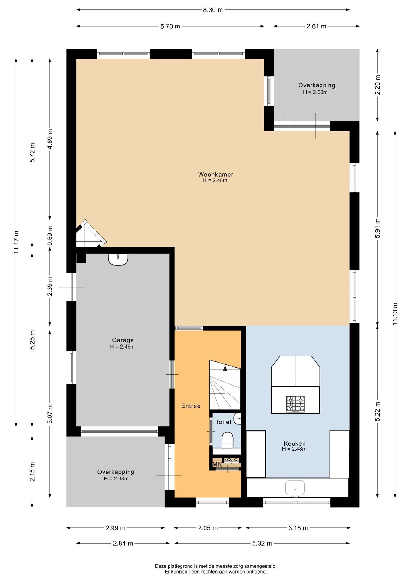
De woning beschikt over 151 m² woonoppervlakte, die verdeeld is over 2 woonlagen. Middels een overdekte entree is de woning toegankelijk. Vanuit de hal is er toegang tot de woonkamer, het toilet, de meterkast en de inpandige garage. De garage heeft een oppervlakte van 18 m² en beschikt over een elektrische garagedeur, een wasmachineaansluiting, een pomp voor de vloerverwarming, een deur die naar de zijtuin leidt en een luik naar de kelder. De woonkamer is aan de achterzijde gesitueerd en biedt door middel van de grote raampartijen een fraai uitzicht over de tuin. Tevens is er nog een sfeervolle open haard aanwezig. De open keuken bevindt zich aan de voorzijde en beschikt over een kookeiland en een gezellige bar. De keuken is voorzien van diverse inbouwapparatuur.

Middels een trap vanuit de hal is de verdieping toegankelijk. Hier tref je 3 slaapkamers met een oppervlakte van 12, 15 en 35 m². De hoofdslaapkamer is gelegen aan de achterzijde en biedt toegang tot een overdekt balkon. Dit balkon is gesitueerd aan de achterzijde en ligt op het zuidoosten. De badkamer is volledig betegeld en beschikt over een hoekbad, een douchecabine en een wastafel. Het toilet is separaat en is vanuit de overloop toegankelijk. Tevens is er nog een inpandige berging waar zich de cv-installatie (2023) bevindt. Er is geen gebrek aan bergruimte. Vanaf de overloop is er via een vlizotrap toegang tot de bergvliering. Deze ligt over de hele lengte van de woning waardoor je nooit bergruimte tekort zult komen.

RUIME BUITENRUIMTE RONDOM DE WONING:
De woning is gelegen op een ruim perceel van 430 m² oppervlakte. De woning is centraal gepositioneerd, waardoor er een ruime tuin rondom de woning aanwezig is. Aan de voorzijde is een onderheide oprit te vinden voor het parkeren van de auto's. Hierdoor wordt het zoeken naar een parkeerplaats verleden tijd. Via de zijtuin is het mogelijk om de achtertuin te betreden. Deze is gesitueerd op het zuidoosten en biedt daardoor de hele ochtend en middag de zon. Het terras dat grenst aan de woning is eveneens onderheid. Achter de woning is nog een tuinhuisje te vinden, ideaal voor het opbergen van de tuinkussens. Hier kun je optimaal genieten van rust en ruimte!

IDEALE RUSTIGE LOCATIE:
Dit geliefde villapark is gelegen aan de rand van het Schollebos en op een steenworp afstand van recreatiegebied Hitland met onder andere een 18-holes golfbaan. Ook de Capelse golfbaan met 18 holes of de Capelse manege, liggen allemaal op loopafstand. Zelfs het Kralingse bos of het strand van de Zevenhuizenplas zijn op de fiets bereikbaar. Het rustig gelegen Ringvaartpark wordt ontsloten vanaf de Bermweg, waardoor er in het villapark alleen sprake is van bestemmingsverkeer. Voor de dagelijkse boodschappen zijn op slechts vijf minuten afstand verschillende winkels en winkelcentra te vinden. Tevens ligt Rotterdam-centrum met al zijn voorzieningen op korte afstand. Kortom, een unieke, landelijke locatie in Capelle aan den IJssel.

BIJZONDERHEDEN:
- Vrijstaande parkwoning gelegen in het Ringvaartpark;
- Bouwjaar 1997;
- 151 m² woonoppervlakte;
- 430 m² perceeloppervlakte;
- Ruime, lichte woonkamer;
- 3 slaapkamers op de verdieping;
- Ruime garage met elektrische garagedeur;
- Royale tuin rondom de woning, waarbij de achtertuin op het zuidoosten ligt;
- Het terras en de oprit zijn onderheid;
- Er zijn kunststof kozijnen aanwezig;
- Warmwater en verwarming via cv-ketel (2023);
- Er is geen gebrek aan bergruimte; de vliering loopt over de hele lengte van de woning;
- Let op, er wordt in de koopovereenkomst een niet-zelfbewoningsclausule opgenomen;
- Energielabel B, geldig tot 07-04-2035
- Oplevering in overleg.

INTERESSE? MAAK DAN SNEL EEN AFSPRAAK!
Ons advies is om bij het kopen van je nieuwe huis je eigen NVM-makelaar mee te nemen.

TOELICHTINGSCLAUSULE NEN2580
De Meetinstructie is gebaseerd op de NEN2580. De Meetinstructie is bedoeld om een meer eenduidige manier van meten toe te passen voor het geven van een indicatie van de gebruiksoppervlakte. De Meetinstructie sluit verschillen in meetuitkomsten niet volledig uit, door bijvoorbeeld interpretatieverschillen, afrondingen of beperkingen bij het uitvoeren van de meting.

KOOPOVEREENKOMST PAS RECHTSGELDIG NA ONDERTEKENING
Een mondelinge overeenstemming tussen de particuliere verkoper en de particuliere koper is niet rechtsgeldig. Met andere woorden: er is geen koop. Er is pas sprake van een rechtsgeldige koop als de particuliere verkoper en de particuliere koper de koopovereenkomst hebben ondertekend. Dit vloeit voort uit artikel 7:2 Burgerlijk Wetboek. Een bevestiging van de mondelinge overeenstemming per e-mail of een toegestuurd concept van de koopovereenkomst wordt overigens niet gezien als een 'ondertekende koopovereenkomst'

“Deze informatie is door ons met de nodige zorgvuldigheid samengesteld. Onzerzijds wordt echter geen enkele aansprakelijkheid aanvaard voor enige onvolledigheid, onjuistheid of anderszins, dan wel de gevolgen daarvan. Alle opgegeven maten en oppervlakten zijn indicatief.”

Kenmerken

Basiskenmerken

  • Status Onder bod
  • Koopsom € 899.000 k.k.
  • Woonoppervlakte ca. 151 m2
  • Aantal slaapkamers 3
  • Bouwjaar 1997

Overdracht

  • Aanvaarding In overleg

Bouwvorm & onderhoud

  • Soort object Vrijstaande woning
  • Soort woning Villa
  • Bouwjaar 1997
  • Soort bouw woonhuis
  • Ligging In woonwijk

Oppervlakte & inhoud

  • Gebruiksoppervlakte 151m2
  • Perceeloppervlakte 430m2
  • Inhoud 617m3
  • Aantal kamers 4
  • Aantal slaapkamers 3
  • Aantal woonlagen 3 woonlagen
  • Overige inpandige ruimte 18m2

Energie & installatie

  • Energielabel B
  • Isolatie Dakisolatie, muurisolatie, vloerisolatie, dubbel glas, volledig geisoleerd
  • Verwarming Cv ketel
  • Warm water Cv ketel
  • C.v.-ketel type GAS
  • C.v.-ketel bouwjaar 2023
  • Energie einddatum 07-04-2035

Bergruimte

  • Schuur / berging Vrijstaand hout

Parkeergelegenheid

  • Parkeerfaciliteiten Openbaar parkeren, op eigen terrein
  • Garage Inpandig, parkeerplaats

Dak

  • Soort dak Zadeldak

Overig

  • Onderhoud binnen Goed
  • Onderhoud buiten Goed
  • Bijzonderheden Gedeeltelijk gestoffeerd
  • Permanente bewoning Ja
  • Huidig gebruik Woonruimte
  • Huidige bestemming Woonruimte

Voorzieningen

  • Voorzieningen Mechanische ventilatie, tv kabel, rookkanaal, dakraam, natuurlijke ventilatie

Buitenruimte

  • Hoofdtuin TUIN_RONDOM
  • Kwaliteit tuin Normaal

Kadastrale gegevens

  • Perceelnummer 4409
  • Perceeloppervlakte 430 m2
Meer kenmerken
Huis verkopen?

Maak een afspraak voor een gratis adviesgesprek met onze makelaars en ontdek jouw mogelijkheden.

Maak direct een afspraak

In de buurt

Geïnteresseerd?

Bel met Van Herk makelaars te Capelle aan den IJssel

shape

Stuur een bericht

* Maximaal 255 tekens
privacyverklaring