Capelle Aan Den Ijssel

's-Gravenweg  135

€ 950.000,- k.k.

Omschrijving

RUSTIG, RUIM EN GROEN WONEN AAN DE KARAKTERISTIEKE 'S-GRAVENWEG LICHTE LIVING MET RUIMTE EN UITZICHT Zodra je binnenkomt, valt direct op hoe ruim en licht dit huis is. De woonkamer en eetkamer lopen op een natuurlijke manier in elkaar over en bieden alle ruimte voor zowel een royale zithoek als een grote eettafel. De vele raampartijen zorgen voor een prettige lichtinval…

RUSTIG, RUIM EN GROEN WONEN AAN DE KARAKTERISTIEKE 'S-GRAVENWEG

LICHTE LIVING MET RUIMTE EN UITZICHT
Zodra je binnenkomt, valt direct op hoe ruim en licht dit huis is. De woonkamer en eetkamer lopen op een natuurlijke manier in elkaar over en bieden alle ruimte voor zowel een royale zithoek als een grote eettafel. De vele raampartijen zorgen voor een prettige lichtinval en geven een mooi zicht op het groen rondom het huis. De afwerking is verzorgd en in balans, met een warme houten visgraad vloer die direct sfeer brengt.

De zithoek is gesitueerd rondom de haard, wat zorgt voor een fijne plek om te ontspannen. Aan de andere zijde vind je de eetkamer, die in open verbinding staat met de keuken. Hier is volop ruimte om uitgebreid te tafelen met familie of vrienden. De keuken zelf is strak en modern uitgevoerd en voorzien van diverse inbouwapparatuur (alles van Miele), waaronder een wijnklimaatkast een detail dat perfect past bij het karakter en luxe van dit huis.

DRIE SLAAPKAMERS EN 2 BADKAMERS
Op de verdieping bevinden zich drie slaapkamers, waarbij de grootste kamer direct opvalt door de ruimte en het prettige licht. Deze kamer biedt voldoende plek voor een groot bed en kastruimte, zonder in te leveren op comfort. De overige kamers zijn goed van formaat en flexibel in te richten, bijvoorbeeld als logeerkamer, werkkamer of hobbyruimte.

De badkamer bereikbaar vanuit de slaapkamer is fris en verzorgd, met een ruime inloopdouche, wastafelmeubel en toilet. De afwerking is neutraal en tijdloos, waardoor je hier zo in kunt. Verder is er nog een tweede badkamer

BUITENLEVEN MET TUIN EN BIJGEBOUW
Het buitenleven is hier echt een verlengstuk van het huis. Zowel de voor- als achtertuin zijn ruim opgezet en bieden volop privacy. De ligging zorgt ervoor dat je op verschillende momenten van de dag een fijne plek in de zon of schaduw kunt vinden. Aan de voorzijde geniet je van de ochtendzon, terwijl de achtertuin zich perfect leent voor lange middagen en avonden buiten.

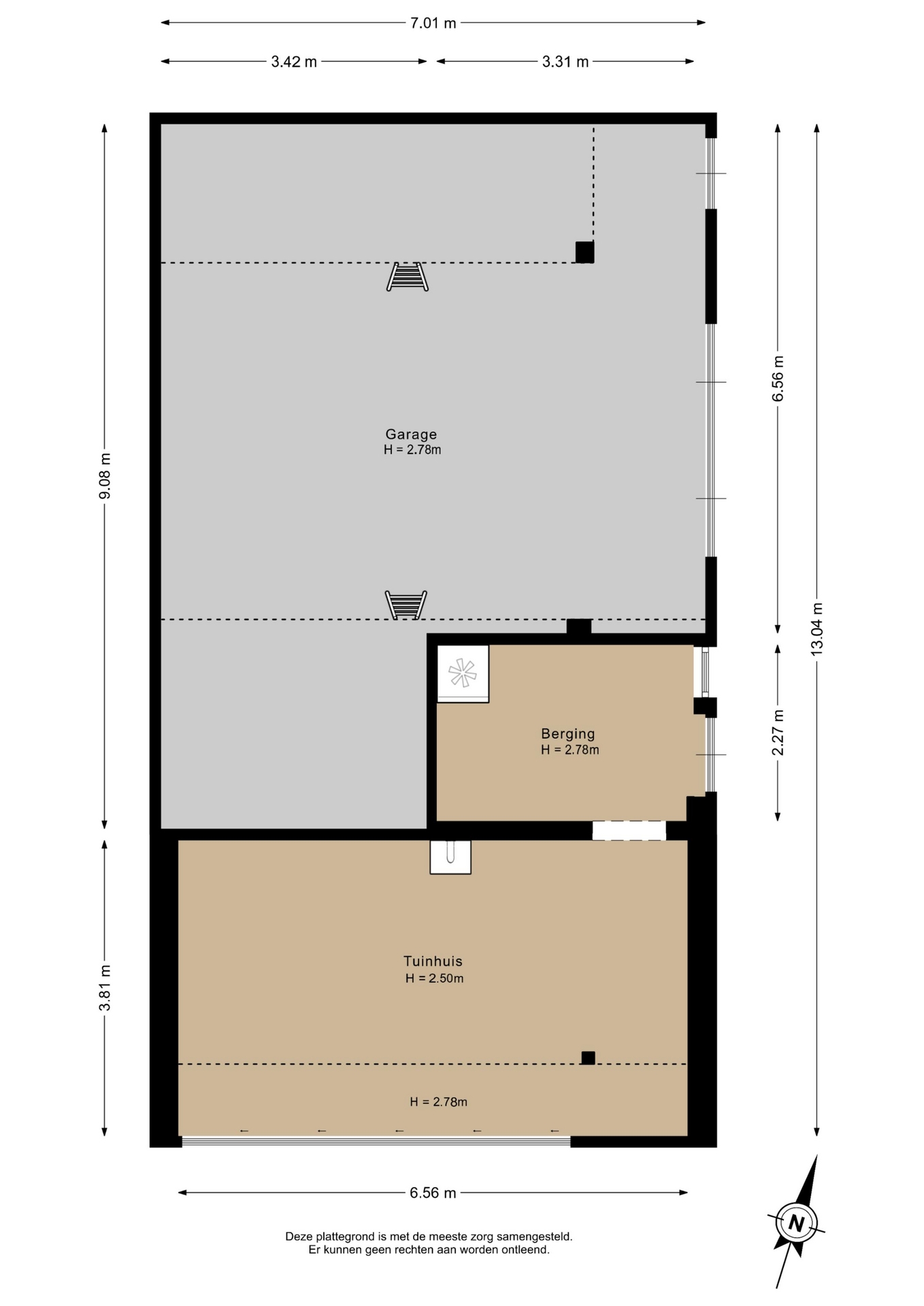
Een absoluut pluspunt is de ruime schuur met openslaande deuren. Daarnaast heb je een sfeervol tuinhuis met bar. Dit is dé plek voor gezellige avonden met vrienden of familie, waarbij bnnen en buiten moeiteloos in elkaar overlopen. Of je nu een borrel organiseert of gewoon rustig wilt zitten, deze ruimte voegt echt iets extra’s toe aan het geheel.

WONEN AAN DE KARAKTERISTIEKE ’S-GRAVENWEG
De ’s-Gravenweg is een van de meest geliefde locaties in Capelle aan den IJssel. Hier woon je langs een karakteristiek lint met veel groen, water en vrijstaande en halfvrijstaande bebouwing. De sfeer is rustig en ruimtelijk, met voornamelijk bestemmingsverkeer en een prettige woonomgeving.

Tegelijkertijd ligt alles wat je nodig hebt binnen handbereik. Winkels, supermarkten, scholen en sportvoorzieningen zijn op korte afstand bereikbaar. Ook de verbinding richting Rotterdam is uitstekend, zowel met de auto als het openbaar vervoer. Binnen enkele minuten zit je op de uitvalswegen of bij een metrostation richting de stad.

Wat deze locatie extra aantrekkelijk maakt, is de combinatie van rust en bereikbaarheid. Je woont hier in een groene, bijna landelijke setting, terwijl de dynamiek van de stad nooit ver weg is. Wandelen of fietsen langs de IJssel, een snelle boodschap doen of een avond uit in Rotterdam – het kan hier allemaal zonder concessies te doen aan wooncomfort.

BIJZONDERHEDEN:
- Uniek, ruimtelijk en rustig wonen aan de karakteristieke ’s-Gravenweg;
- Fraaie ligging aan het water met vrij uitzicht en veel groen rondom;
- Royale kavel met zowel een ruime voor- als achtertuin en veel privacy;
- Sfeervol tuinhuis/buitenverblijf met bar, glazen schuifdeuren, elektra en water – ideaal voor lange avonden en het hele jaar door te gebruiken;
- Overdekte buitenruimte direct aan de woning, perfect als lounge, buitenkeuken of verlengstuk van de living;
- Grote schuur/garage met openslaande deuren, geschikt voor opslag, hobbyruimte of stalling van fietsen/motoren;
- Ruime oprit met parkeergelegenheid op eigen terrein en via een gezamenlijke oprit bereikbaar;
- Moderne open keuken voorzien van o.a. wijnklimaatkast, inbouw koffiezetapparaat en combi-oven;
- Lichte living met grote raampartijen en prettig uitzicht op de tuin;
- Drie goed bemeten slaapkamers en een nette, direct vanuit de slaapkamer bereikbare badkamer;
- 2 Badkamers;
- Combinatie van karakteristieke bouw met hedendaags wooncomfort;
- Rustige ligging met voornamelijk bestemmingsverkeer;
- Goede bereikbaarheid richting Rotterdam en voorzieningen in de directe omgeving;
- Recht van overpad met de buren;
- Energielabel D;
- Oplevering in overleg.

INTERESSE? MAAK DAN SNEL EEN AFSPRAAK!
Ons advies is om bij het kopen van je nieuwe huis je eigen NVM-makelaar mee te nemen.

TOELICHTINGSCLAUSULE NEN2580
De Meetinstructie is gebaseerd op de NEN2580. De Meetinstructie is bedoeld om een meer eenduidige manier van meten toe te passen voor het geven van een indicatie van de gebruiksoppervlakte. De Meetinstructie sluit verschillen in meetuitkomsten niet volledig uit, door bijvoorbeeld interpretatieverschillen, afrondingen of beperkingen bij het uitvoeren van de meting.

“Deze informatie is door ons met de nodige zorgvuldigheid samengesteld. Onzerzijds wordt echter geen enkele aansprakelijkheid aanvaard voor enige onvolledigheid, onjuistheid of anderszins, dan wel de gevolgen daarvan. Alle opgegeven maten en oppervlakten zijn indicatief.”

Koopovereenkomst pas rechtsgeldig na ondertekening:
Een mondelinge overeenstemming tussen de particuliere verkoper en de particuliere koper is niet rechtsgeldig. Met andere woorden: er is geen koop. Er is pas sprake van een rechtsgeldige koop als de particuliere verkoper en de particuliere koper de koopovereenkomst hebben ondertekend. Dit vloeit voort uit artikel 7:2 Burgerlijk Wetboek. Een bevestiging van de mondelinge overeenstemming per e-mail of een toegestuurd concept van de koopovereenkomst wordt overigens niet gezien als een 'ondertekende koopovereenkomst'.

Kenmerken

Basiskenmerken

  • Status Beschikbaar
  • Koopsom € 950.000 k.k.
  • Woonoppervlakte ca. 149 m2
  • Aantal slaapkamers 3
  • Bouwjaar 1916

Overdracht

  • Aanvaarding In overleg

Bouwvorm & onderhoud

  • Soort object Twee onder een kapwoning
  • Soort woning Herenhuis
  • Bouwjaar 1916
  • Soort bouw woonhuis
  • Ligging Aan rustige weg, vrij uitzicht, open ligging, landelijk gelegen

Oppervlakte & inhoud

  • Gebruiksoppervlakte 149m2
  • Perceeloppervlakte 614m2
  • Inhoud 518m3
  • Aantal kamers 4
  • Aantal slaapkamers 3
  • Aantal woonlagen 2 woonlagen

Energie & installatie

  • Energielabel D
  • Isolatie Dakisolatie, dubbel glas
  • Verwarming Cv ketel
  • Warm water Cv ketel
  • C.v.-ketel type GAS
  • C.v.-ketel bouwjaar 2011
  • Energie einddatum 07-04-2036

Bergruimte

  • Schuur / berging Vrijstaand steen
  • Voorzieningen Voorzien van elektra

Parkeergelegenheid

  • Parkeerfaciliteiten Parkeergarage, op eigen terrein
  • Garage Vrijstaand steen

Dak

  • Soort dak Samengesteld dak

Overig

  • Onderhoud binnen Goed
  • Onderhoud buiten Goed
  • Bijzonderheden Gedeeltelijk gestoffeerd
  • Permanente bewoning Ja
  • Huidig gebruik Woonruimte
  • Huidige bestemming Woonruimte

Voorzieningen

  • Voorzieningen Mechanische ventilatie, tv kabel, rookkanaal, dakraam

Buitenruimte

  • Hoofdtuin VOORTUIN
  • Oppervlakte hoofdtuin 244m2
  • Ligging hoofdtuin ZUID
  • Kwaliteit tuin Fraai aangelegd

Kadastrale gegevens

  • Perceelnummer 5006
  • Perceeloppervlakte 614 m2
Meer kenmerken
Huis verkopen?

Maak een afspraak voor een gratis adviesgesprek met onze makelaars en ontdek jouw mogelijkheden.

Maak direct een afspraak

In de buurt

Geïnteresseerd?

Bel met Van Herk makelaars te Capelle aan den IJssel

shape

Stuur een bericht

* Maximaal 255 tekens
privacyverklaring