Capelle Aan Den Ijssel

's-Gravenweg  70

€ 750.000,- k.k.

Omschrijving

***NU IN VERKOOP*** EEN KARAKTERISTIEKE TWEE ONDER EEN KAP WONING AAN DE LANDELIJKE 'S-GRAVENWEG. DEZE WONING TELT EEN PERCEEL EIGEN GROND VAN MAAR LIEFST 1130M². UNIEK EN LANDELIJK GELEGEN NABIJ HET BRUISENDE ROTTERDAM. RUIMTE: Dit charmante huis meet een woonoppervlakte van 89m² en telt daarnaast nog 88m² externe bergruimte. Deze externe bergruimte is onderverdeeld in…

***NU IN VERKOOP***
EEN KARAKTERISTIEKE TWEE ONDER EEN KAP WONING AAN DE LANDELIJKE 'S-GRAVENWEG. DEZE WONING TELT EEN PERCEEL EIGEN GROND VAN MAAR LIEFST 1130M². UNIEK EN LANDELIJK GELEGEN NABIJ HET BRUISENDE ROTTERDAM.

RUIMTE:
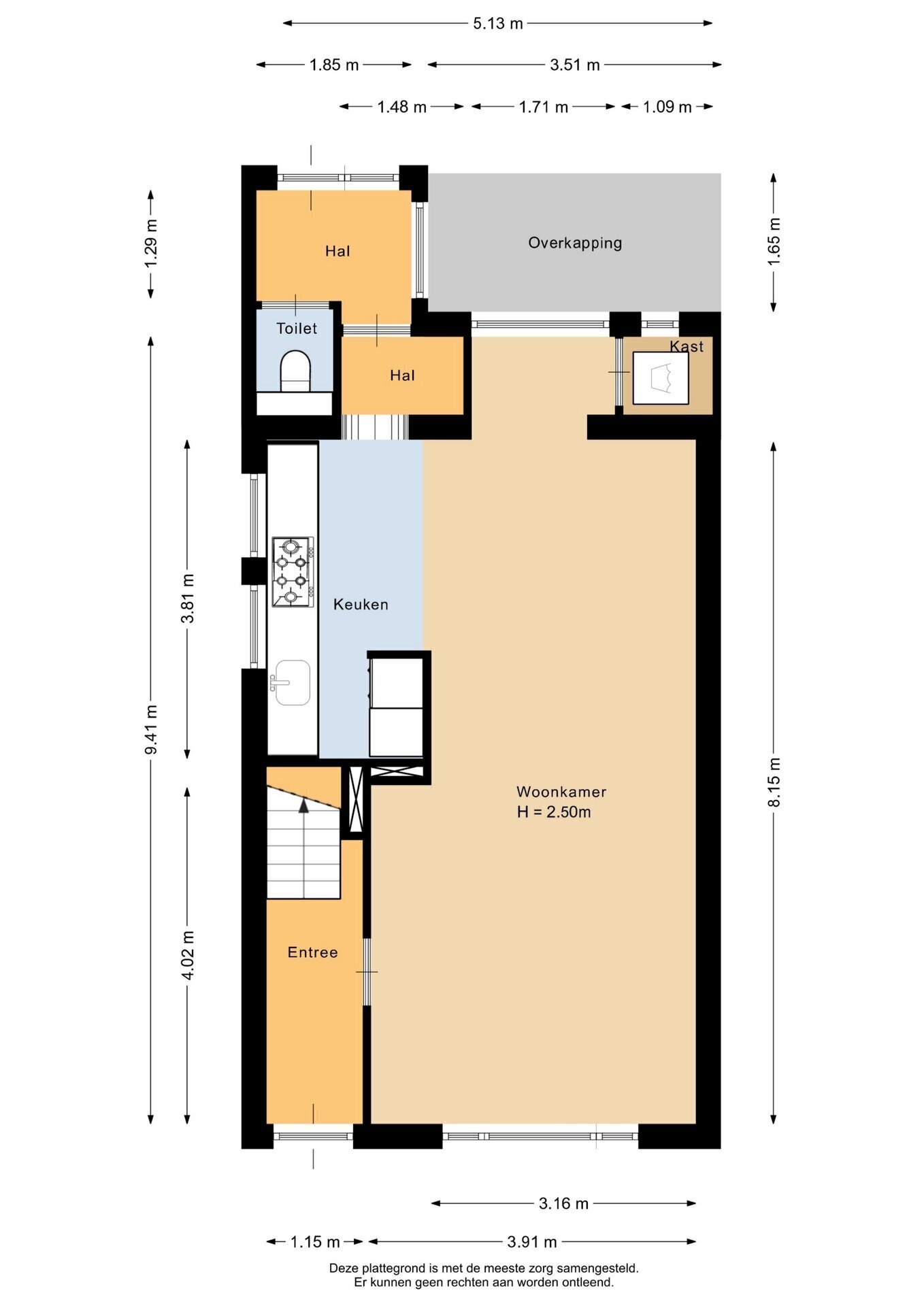
Dit charmante huis meet een woonoppervlakte van 89m² en telt daarnaast nog 88m² externe bergruimte.
Deze externe bergruimte is onderverdeeld in een achtergelegen garage / opbergschuur en nog een oergezellig tuinhuis met veranda in de achtertuin.
In de achtertuin zijn nog enkele lossen schuurtjes voor extra bergruimte te vinden.
De riante achtertuin is gelegen aan het water en bestaat grotendeels uit gazon.
Ook is er ruimte gemaakt voor een moestuin.
De voortuin / voordeur is via recht van overpad middels de gezamenlijke brug en oprit bereikbaar.
Deze oprit loopt door naar de achtergelegen garages / schuren van nr. 68 & 70.

LOCATIE:
De woning bevindt zich aan het einde van het Capelse deel van de 's-Gravenweg. Na 100 meter loopt deze alom bekende weg door in Rotterdam Deze van oudsher boeren landweg is in de loop der jaren veranderd in een luxe weg met veel ruimte voor huizen uit het hogere segment.
Gelukkig zijn er nog wel wat huizen uit die tijd overeind gebleven en daar is nummer 70 er 1 van !
Je woont hier in een landelijke sfeer, met op steenworp afstand alles wat je in een stedelijk gebied mag verwachten.
Een unieke combinatie !

VERKOPER AAN HET WOORD:
Het is genieten aan de 's-Gravenweg. Wij hebben dat 52 jaar gedaan. Het buitenleven in het groen en het water eromheen waar we heerlijk met het bootje konden varen en vissen.

SPECIFICATIES:
Bouwjaar: 1930
Eigen grond: 1130m²
Woon oppervlakte: 89m²
Gebouw gebonden buitenruimte / overdekt terras aan achterzijde 6m²
Externe bergruimte: 88m²
Inhoud: 326m³
Isolatie: dubbel glas / HR++ met aan de voorzijde op begane grond extra geluidwerend dubbel glas
Vloer isolatie / glaswol d.d. 1983
Verwarming & warm water: C.V. ketel d.d. 2015 Intergas
Energielabel:
Keuken d.d. 2011, voorzien van fornuis met afzuigkap, koel vries combinatie en combi oven
Badkamer voorzien van wastafelmeubel, toilet, bad met douche gelegenheid en handdoek radiator.
twee ruime slaapkamers op de eerste verdieping
Verfwerkzaamheden buiten aan deuren en kozijnen laatst uitgevoerd in 2024
Oplevering in overleg

INTERESSE? MAAK DAN SNEL EEN AFSPRAAK!
Ons advies is om bij het kopen van je nieuwe huis je eigen NVM-makelaar mee te nemen.

TOELICHTINGSCLAUSULE NEN2580
De Meetinstructie is gebaseerd op de NEN2580. De Meetinstructie is bedoeld om een meer eenduidige manier van meten toe te passen voor het geven van een indicatie van de gebruiksoppervlakte. De Meetinstructie sluit verschillen in meetuitkomsten niet volledig uit, door bijvoorbeeld interpretatieverschillen, afrondingen of beperkingen bij het uitvoeren van de meting.

KOOPOVEREENKOMST PAS RECHTSGELDIG NA ONDERTEKENING
Een mondelinge overeenstemming tussen de particuliere verkoper en de particuliere koper is niet rechtsgeldig. Met andere woorden: er is geen koop. Er is pas sprake van een rechtsgeldige koop als de particuliere verkoper en de particuliere koper de koopovereenkomst hebben ondertekend. Dit vloeit voort uit artikel 7:2 Burgerlijk Wetboek. Een bevestiging van de mondelinge overeenstemming per e-mail of een toegestuurd concept van de koopovereenkomst wordt overigens niet gezien als een 'ondertekende koopovereenkomst'

“Deze informatie is door ons met de nodige zorgvuldigheid samengesteld. Onzerzijds wordt echter geen enkele aansprakelijkheid aanvaard voor enige onvolledigheid, onjuistheid of anderszins, dan wel de gevolgen daarvan. Alle opgegeven maten en oppervlakten zijn indicatief.”

Kenmerken

Basiskenmerken

  • Status Beschikbaar
  • Koopsom € 750.000 k.k.
  • Woonoppervlakte ca. 89 m2
  • Aantal slaapkamers 2
  • Bouwjaar 1930

Overdracht

  • Aanvaarding In overleg

Bouwvorm & onderhoud

  • Soort object Twee onder een kapwoning
  • Soort woning Eengezinswoning
  • Bouwjaar 1930
  • Soort bouw woonhuis
  • Ligging Aan rustige weg, vrij uitzicht

Oppervlakte & inhoud

  • Gebruiksoppervlakte 89m2
  • Perceeloppervlakte 1130m2
  • Inhoud 326m3
  • Aantal kamers 3
  • Aantal slaapkamers 2
  • Aantal woonlagen 2 woonlagen
  • Overige inpandige ruimte 1m2

Energie & installatie

  • Energielabel D
  • Isolatie Muurisolatie, vloerisolatie, dubbel glas
  • Verwarming Cv ketel
  • Warm water Cv ketel
  • C.v.-ketel type GAS
  • C.v.-ketel bouwjaar 2016
  • Energie einddatum 25-06-2035

Bergruimte

  • Schuur / berging Vrijstaand hout

Parkeergelegenheid

  • Parkeerfaciliteiten Op eigen terrein
  • Garage Vrijstaand steen

Dak

  • Soort dak Zadeldak

Overig

  • Onderhoud binnen Redelijk tot goed
  • Onderhoud buiten Goed
  • Bijzonderheden Gedeeltelijk gestoffeerd
  • Permanente bewoning Ja
  • Huidig gebruik Woonruimte
  • Huidige bestemming Woonruimte

Buitenruimte

  • Hoofdtuin ACHTERTUIN
  • Oppervlakte hoofdtuin 770m2
  • Ligging hoofdtuin ZUID
  • Kwaliteit tuin Verzorgd

Kadastrale gegevens

  • Perceelnummer 7013
  • Perceeloppervlakte 1130 m2
Meer kenmerken
Huis verkopen?

Maak een afspraak voor een gratis adviesgesprek met onze makelaars en ontdek jouw mogelijkheden.

Maak direct een afspraak

In de buurt

Geïnteresseerd?

Bel met Van Herk makelaars te Capelle aan den IJssel

shape

Stuur een bericht

* Maximaal 255 tekens
privacyverklaring