Spijkenisse

Salamanderveen  372

€ 375.000,- k.k.

Omschrijving

KEURIG VERZORGD HUIS MET VRIJE LIGGING AAN WATER Aan de Salamanderveen vind je dit keurig verzorgde huis met eigen parkeerplaats en een ruime stenen berging. De ligging is heerlijk vrij, direct aan het water en de singel, bereikbaar via een charmant loopbruggetje. Daarbij is het huis de afgelopen jaren op meerdere punten verduurzaamd, met onder andere HR++ glas, gevel- en…

KEURIG VERZORGD HUIS MET VRIJE LIGGING AAN WATER
Aan de Salamanderveen vind je dit keurig verzorgde huis met eigen parkeerplaats en een ruime stenen berging. De ligging is heerlijk vrij, direct aan het water en de singel, bereikbaar via een charmant loopbruggetje. Daarbij is het huis de afgelopen jaren op meerdere punten verduurzaamd, met onder andere HR++ glas, gevel- en bodemisolatie en vloerverwarming op de begane grond. Een fijne combinatie van comfort, ruimte en een rustige woonomgeving, ideaal voor starters en jonge doorstromers die nét wat meer zoeken.

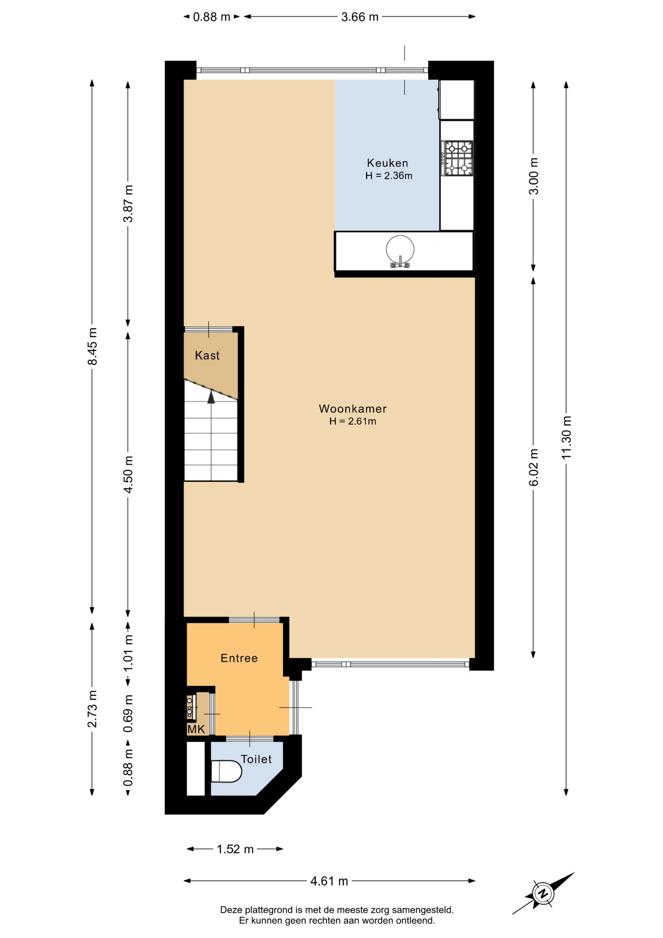
LICHTE WOONKAMER MET FIJNE INDELING
Bij binnenkomst valt direct op hoe verzorgd het huis is. De hal is netjes afgewerkt en geeft toegang tot het moderne toilet. Vanuit hier loop je door naar de woonkamer, waar de grote raampartijen aan zowel de voor- als achterzijde zorgen voor veel lichtinval. De plavuizen vloer met vloerverwarming geeft niet alleen comfort, maar ook een strakke en onderhoudsvriendelijke uitstraling.

De indeling is praktisch: aan de voorzijde een fijne zithoek en aan de achterzijde ruimte voor een eettafel met zicht op de tuin. De halfopen keuken sluit hier mooi op aan en is uitgevoerd in een neutrale kleurstelling met voldoende werk- en bergruimte. Vanuit de keuken heb je direct toegang tot de achtertuin met je eigen parkeerplaats en stenen berging.

VIER SLAAPKAMERS EN COMPLETE VERDIEPINGEN
Op de eerste verdieping bevinden zich drie slaapkamers van goed formaat. De grootste slaapkamer ligt aan de achterzijde en biedt voldoende ruimte voor een tweepersoonsbed en kastruimte. De overige kamers zijn ideaal als kinder-, werk- of hobbykamer.

De badkamer is compleet uitgevoerd met een ligbad, wastafelmeubel en toilet. De ruimte is functioneel ingedeeld en biedt alles wat je nodig hebt.

De tweede verdieping verrast met nog een ruime vierde slaapkamer en extra kamer thans in gebruik als berging en stookruimte. Dankzij het dakraam komt hier prettig daglicht binnen. Daarnaast is hier ruimte voor de wasopstelling en de cv-ketel (2021). Dit maakt deze verdieping multifunctioneel en zeer geschikt voor bijvoorbeeld een thuiswerkplek of logeerkamer.

FIJNE TUIN MET VRIJ UITZICHT AAN WATER
De voortuin is een echte plus van dit huis. Je zit hier heerlijk vrij, direct aan het water en de singel. Via een charmant loopbruggetje bereik je het achterpad, wat zorgt voor een speels en open karakter. De tuin is verzorgd aangelegd en biedt voldoende ruimte om te genieten van het buitenleven.

De ligging op het Zuidoosten zorgt ervoor dat je hier op verschillende momenten van de dag van de zon kunt genieten.

Aan de achterzijde beschik je over een eigen parkeerplaats, wat in deze wijk een groot voordeel is.

WONEN IN RUSTIGE EN GROENE WOONWIJK
De Salamanderveen ligt in een rustige en kindvriendelijke wijk in Spijkenisse. Hier woon je in een groene omgeving met waterpartijen en wandelpaden direct achter het huis. Ideaal voor een ommetje of om even tot rust te komen na een drukke dag.

In de directe omgeving vind je diverse voorzieningen zoals supermarkten, scholen en sportverenigingen. Ook het centrum van Spijkenisse is goed bereikbaar, net als openbaar vervoer en uitvalswegen richting Rotterdam. Dit maakt de locatie aantrekkelijk voor wie rustig wil wonen, maar wel met alle gemakken binnen handbereik.

De wijk kenmerkt zich door een prettige woonomgeving met veel ruimte en een fijne sfeer. Voor starters en jonge gezinnen is dit een plek waar je je snel thuis voelt.

KENMERKEN
- Woonoppervlakte: 111 m²
- Perceeloppervlakte: 128 m²
- Bouwjaar: 1974
- Aantal kamers: 6
- Heerlijk zonnige tuin met eigen loopbruggetje aan water en groen
- Parkeren op eigen erf
- Ruime stenen berging van 8m2
- Verduurzaamd (deels HR++ glas, extra gevel- en bodemisolatie + vloerverwarming)
- Energielabel: C (oud label van voor de verduurzaming)
- Kunststof kozijnen en HR++ glas eerste en tweede verdieping (2021)
- Oplevering: in overleg (richtlijn eind juli 2026)

Toelichtingsclausule NEN2580:
De Meetinstructie is gebaseerd op de NEN2580. De Meetinstructie is bedoeld om een meer eenduidige manier van meten toe te passen voor het geven van een indicatie van de gebruiksoppervlakte. De Meetinstructie sluit verschillen in meetuitkomsten niet volledig uit, door bijvoorbeeld interpretatieverschillen, afrondingen of beperkingen bij het uitvoeren van de meting.

“Deze informatie is door ons met de nodige zorgvuldigheid samengesteld. Onzerzijds wordt echter geen enkele aansprakelijkheid aanvaard voor enige onvolledigheid, onjuistheid of anderszins, dan wel de gevolgen daarvan. Alle opgegeven maten en oppervlakten zijn indicatief.”

Koopovereenkomst pas rechtsgeldig na ondertekening:
Een mondelinge overeenstemming tussen de particuliere verkoper en de particuliere koper is niet rechtsgeldig. Met andere woorden: er is geen koop. Er is pas sprake van een rechtsgeldige koop als de particuliere verkoper en de particuliere koper de koopovereenkomst hebben ondertekend. Dit vloeit voort uit artikel 7:2 Burgerlijk Wetboek. Een bevestiging van de mondelinge overeenstemming per e-mail of een toegestuurd concept van de koopovereenkomst wordt overigens niet gezien als een 'ondertekende koopovereenkomst'.

Kenmerken

Basiskenmerken

  • Status Beschikbaar
  • Koopsom € 375.000 k.k.
  • Woonoppervlakte ca. 111 m2
  • Aantal slaapkamers 4
  • Bouwjaar 1974

Overdracht

  • Aanvaarding In overleg

Bouwvorm & onderhoud

  • Soort object Tussenwoning
  • Soort woning Eengezinswoning
  • Bouwjaar 1974
  • Soort bouw woonhuis
  • Ligging Aan water, aan rustige weg, in woonwijk, open ligging

Oppervlakte & inhoud

  • Gebruiksoppervlakte 111m2
  • Perceeloppervlakte 128m2
  • Inhoud 396m3
  • Aantal kamers 6
  • Aantal slaapkamers 4
  • Aantal woonlagen 3 woonlagen

Energie & installatie

  • Energielabel C
  • Isolatie Muurisolatie, dubbel glas
  • Verwarming Cv ketel
  • Warm water Cv ketel
  • C.v.-ketel type GAS
  • C.v.-ketel bouwjaar 2021
  • Energie einddatum 10-04-2036

Bergruimte

  • Schuur / berging Vrijstaand steen
  • Voorzieningen Voorzien van elektra

Parkeergelegenheid

  • Parkeerfaciliteiten Op eigen terrein
  • Garage Parkeerplaats

Dak

  • Soort dak Dwarskap

Overig

  • Onderhoud binnen Goed
  • Onderhoud buiten Goed
  • Bijzonderheden Gedeeltelijk gestoffeerd
  • Permanente bewoning Ja
  • Huidig gebruik Woonruimte
  • Huidige bestemming Woonruimte

Voorzieningen

  • Voorzieningen Mechanische ventilatie, tv kabel, dakraam, glasvezel kabel, natuurlijke ventilatie

Buitenruimte

  • Hoofdtuin VOORTUIN
  • Oppervlakte hoofdtuin 44m2
  • Ligging hoofdtuin ZUIDOOST
  • Kwaliteit tuin Verzorgd

Kadastrale gegevens

  • Perceelnummer 8721
  • Perceeloppervlakte 128 m2
Meer kenmerken
Huis verkopen?

Maak een afspraak voor een gratis adviesgesprek met onze makelaars en ontdek jouw mogelijkheden.

Maak direct een afspraak

In de buurt

Geïnteresseerd?

Bel met Den Rooijen en van Herk Makelaars te Spijkenisse

shape

Stuur een bericht

* Maximaal 255 tekens
privacyverklaring