Capelle Aan Den Ijssel
Solisplein 61
€ 1.075.000,- k.k.
Omschrijving
EXCLUSIEF DUBBEL PENTHOUSE MET SKYLINEVIEW Wonen op het hoogste niveau. Dit unieke dubbel penthouse (251 m²) beslaat de 8e en 9e verdieping en biedt ultieme rust, luxe en privacy – zonder directe buren. De 7 meter hoge raampartij trakteert je op een adembenemend uitzicht over de skyline van Rotterdam, de Brienenoordbrug en De Kuip. Buiten wordt binnen: maar liefst 98 m²…
EXCLUSIEF DUBBEL PENTHOUSE MET SKYLINEVIEW
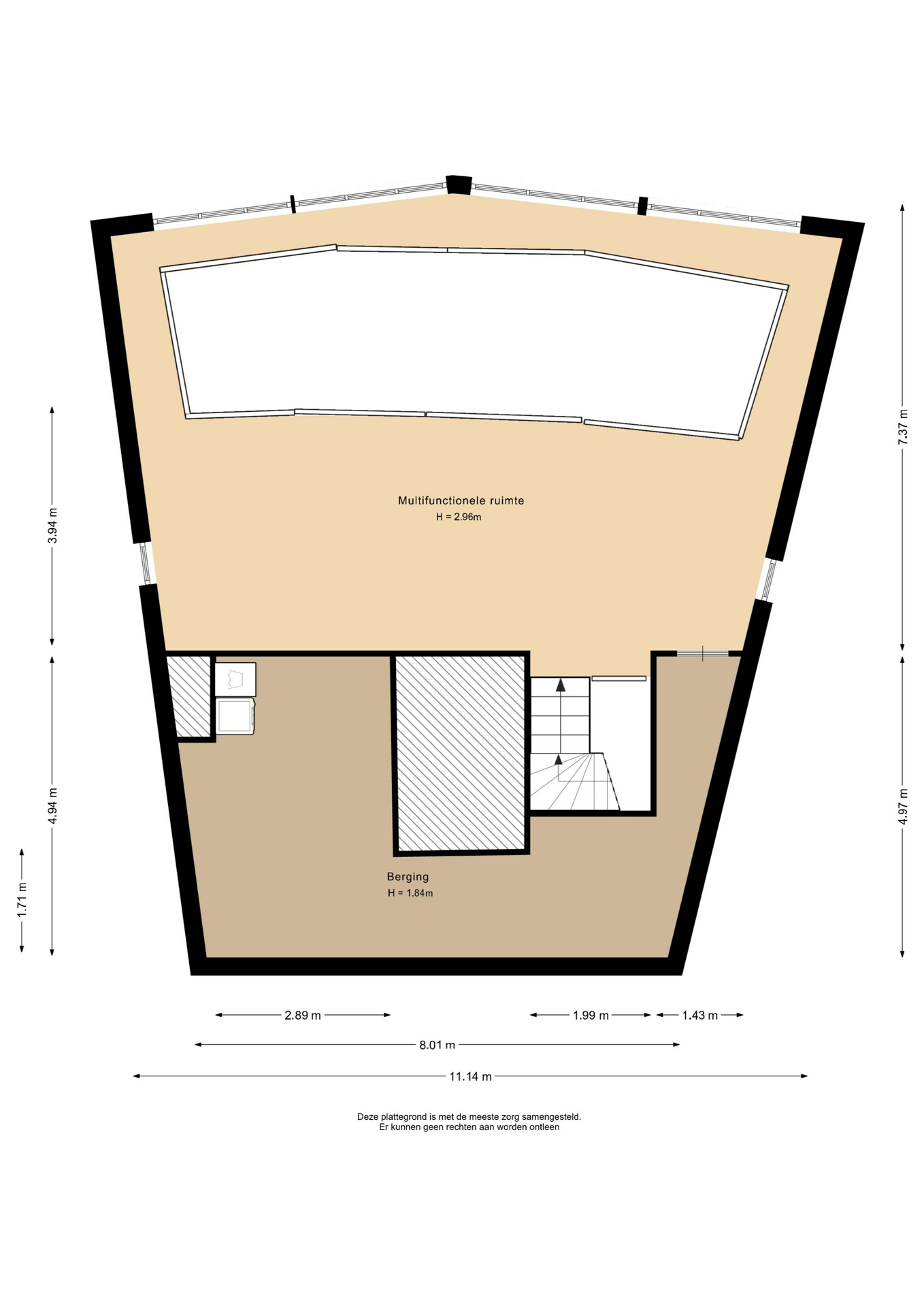
Wonen op het hoogste niveau. Dit unieke dubbel penthouse (251 m²) beslaat de 8e en 9e verdieping en biedt ultieme rust, luxe en privacy – zonder directe buren. De 7 meter hoge raampartij trakteert je op een adembenemend uitzicht over de skyline van Rotterdam, de Brienenoordbrug en De Kuip.
Buiten wordt binnen: maar liefst 98 m² aan zonnige dakterrassen op het zuidoosten én zuidwesten garanderen zon van ’s ochtends vroeg tot zonsondergang.
Loftgevoel met allure
Een indrukwekkende living van 100 m² met vide, Italiaans hardstenen vloer (met vloerverwarming) en een stijlvolle halfopen keuken met hoogwaardige Miele-apparatuur. Twee ruime slaapkamers met elk een eigen badkamer en een riante werkkamer (extra kamers mogelijk) maken dit penthouse flexibel en toekomstbestendig.
Comfort & veiligheid
Twee privéparkeerplaatsen, een eigen berging, videobewaking en het Politiekeurmerk Veilig Wonen. Volledig gasloos en energielabel A.
Toplocatie in Fascinatio
Modern, groen en perfect bereikbaar. Metro op loopafstand, A16/A20 om de hoek en binnen enkele minuten in hartje Rotterdam.
Een zeldzaam ruim en luxueus stadsappartement met internationale allure – privacy, panorama en perfectie in één.
KENMERKEN:
-Gelegen op de 8e en 9e verdieping (dubbel penthouse)
-Terrassen op zuidoosten en zuidwesten, totaal 98 m²
-Woonoppervlakte: 251 m²
-Woonkamer + keuken 100 m²
-Bouwjaar: 2010
-Volledig gasloos en energielabel A
-2 slaapkamers en een riante werkkamer (extra slaapkamers mogelijk)
-2 badkamers
-2 eigen parkeerplaatsen + berging
-2e slaapkamer heeft eigen entree
-Politiekeurmerk Veilig Wonen & videobewaking
Oplevering: in overleg
Kenmerken
Basiskenmerken
- Status Beschikbaar
- Koopsom € 1.075.000 k.k.
- Woonoppervlakte ca. 251 m2
- Aantal slaapkamers 2
- Bouwjaar 2010
Overdracht
- Aanvaarding In overleg
Bouwvorm & onderhoud
- Bouwjaar 2010
- Soort bouw woonhuis
- Ligging In woonwijk, vrij uitzicht
Oppervlakte & inhoud
- Gebruiksoppervlakte 251m2
- Inhoud 1014m3
- Aantal kamers 4
- Aantal slaapkamers 2
- Aantal woonlagen 2 woonlagen
Energie & installatie
- Energielabel A
- Isolatie Dakisolatie, muurisolatie, vloerisolatie, volledig geisoleerd, hr glas
- Verwarming Vloerverwarming geheel
- Warm water Stadsverwarming
- Energie einddatum 26-09-2035
Parkeergelegenheid
- Parkeerfaciliteiten Parkeergarage
- Garage Parkeerkelder
Dak
- Soort dak Plat dak
Overig
- Onderhoud binnen Goed
- Onderhoud buiten Goed
- Bijzonderheden Gedeeltelijk gestoffeerd
- Permanente bewoning Ja
- Huidig gebruik Woonruimte
- Huidige bestemming Woonruimte
Voorzieningen
- Voorzieningen Mechanische ventilatie, lift
Kadastrale gegevens
- Perceelnummer 3423
Maak een afspraak voor een gratis adviesgesprek met onze makelaars en ontdek jouw mogelijkheden.
Maak direct een afspraak