Den Haag

Spijkermakersstraat  70

€ 385.000,- k.k.

Omschrijving

In de charmante Spijkermakersstraat, direct achter de Prinsegracht, vind je dit moderne 3-kamerappartement met loggia, gezamenlijke tuin en eigen berging. Een unieke plek waar comfortabel wonen en duurzaamheid hand in hand gaan. Het appartement maakt deel uit van het bijzondere project “De Waterspin”: een vooruitstrevend en groen woonconcept op het terrein van het…

In de charmante Spijkermakersstraat, direct achter de Prinsegracht, vind je dit moderne 3-kamerappartement met loggia, gezamenlijke tuin en eigen berging. Een unieke plek waar comfortabel wonen en duurzaamheid hand in hand gaan.

Het appartement maakt deel uit van het bijzondere project “De Waterspin”: een vooruitstrevend en groen woonconcept op het terrein van het voormalige Duinwaterleidingbedrijf. Hier is bij de bouw volop aandacht besteed aan isolatie, dubbel glas en slimme duurzame oplossingen. Zo wordt het toilet doorgespoeld met regenwater en is er een gemeenschappelijke wasruimte met waterzuivering en een droger.

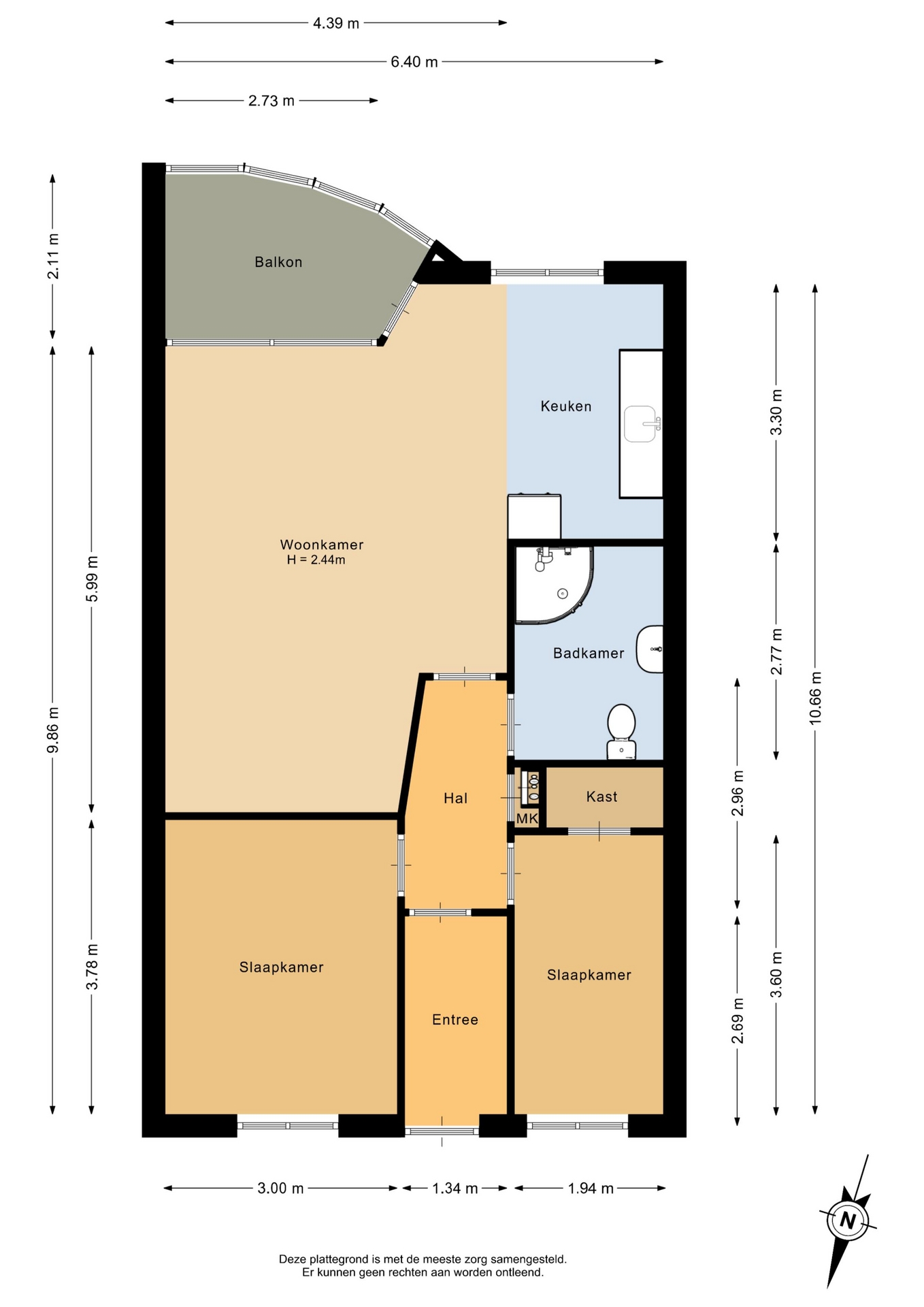
Indeling:
Via de afgesloten centrale hal bereik je de derde verdieping per trap of lift. Achter je eigen voordeur kom je binnen in een lichte hal die toegang biedt tot alle vertrekken. De royale woonkamer met open keuken voorzien van apparatuur vormt het hart van de woning. Vanuit hier stap je zo in de zonnige loggia. Ramen open en je kunt beschut genieten van de zon en de rust midden in de stad.

Verder zijn er twee slaapkamers met vaste kasten, een ruime badkamer met douche, wastafel, toilet en wasmachine-aansluiting. Het gehele appartement is afgewerkt met stijlvol lamellenparket.

Tot slot beschik je ook over een eigen bergruimte.

Kortom: een licht, duurzaam en comfortabel appartement op een gewilde plek in de binnenstad!

Zie jij jezelf hier wel wonen, bel of mail en plan een afspraak.

Kenmerken:
Bouwjaar 1998
Woonoppervlakte 66 m2 met een loggia van 6 m2 wat een totaal maakt van 72 m2
Gelegen op eeuwigdurend afgekochte erfpachtgrond
Goed geïsoleerde woning met een energielabel A
Geheel voorzien van houten kozijnen met dubbel glas
Prachtige gemeenschappelijke tuin met bank en vijver
Gezamenlijke fietsenstalling
Bergruimte in gemeenschappelijke kelderruimte, ca 3,3 m2
Zeer actieve Vve met goede reserve, collectieve opstalverzekering, MJOP en professionele VvE beheerder.
Bijdrage VvE € 220 per maand excl. € 100 voorschot verwarming en koud/warm water.
Eco-vriendelijk gebouw met o.a. grijswater voorziening voor toilet
Parkeren kan op straat met een bewonersvergunning. Ook zijn er parkeerplaatsen te huur in nabij gelegen garage.
Rijksbeschermd stadsgezicht
Ouderdoms-/aterialenclausule van toepassing
Oplevering kan op korte termijn.

INTERESSE? MAAK DAN SNEL EEN AFSPRAAK!
Ons advies is om bij het kopen van uw nieuwe woning uw eigen NVM makelaar mee te nemen.

TOELICHTINGSCLAUSULE NEN2580
De Meetinstructie is gebaseerd op de NEN2580. De Meetinstructie is bedoeld om een meer eenduidige manier van meten toe te passen voor het geven van een indicatie van de gebruiksoppervlakte. De Meetinstructie sluit verschillen in meetuitkomsten niet volledig uit, door bijvoorbeeld interpretatieverschillen, afrondingen of beperkingen bij het uitvoeren van de meting.

KOOPOVEREENKOMST PAS RECHTSGELDIG NA ONDERTEKENING
Een mondelinge overeenstemming tussen de particuliere verkoper en de particuliere koper is niet rechtsgeldig. Met andere woorden: er is geen koop. Er is pas sprake van een rechtsgeldige koop als de particuliere verkoper en de particuliere koper de koopovereenkomst hebben ondertekend. Dit vloeit voort uit artikel 7:2 Burgerlijk Wetboek. Een bevestiging van de mondelinge overeenstemming per e-mail of een toegestuurd concept van de koopovereenkomst wordt overigens niet gezien als een 'ondertekende koopovereenkomst'

“Deze informatie is door ons met de nodige zorgvuldigheid samengesteld. Onzerzijds wordt echter geen enkele aansprakelijkheid aanvaard voor enige onvolledigheid, onjuistheid of anderszins, dan wel de gevolgen daarvan. Alle opgegeven maten en oppervlakten zijn indicatief.”

Kenmerken

Basiskenmerken

  • Status Verkocht onder voorbehoud
  • Koopsom € 385.000 k.k.
  • Woonoppervlakte ca. 66 m2
  • Aantal slaapkamers 2
  • Bouwjaar 1998

Overdracht

  • Aanvaarding In overleg

Bouwvorm & onderhoud

  • Bouwjaar 1998
  • Soort bouw woonhuis
  • Ligging Aan rustige weg, in centrum, in woonwijk, open ligging

Oppervlakte & inhoud

  • Gebruiksoppervlakte 66m2
  • Inhoud 198m3
  • Aantal kamers 3
  • Aantal slaapkamers 2
  • Aantal woonlagen 3 woonlagen

Energie & installatie

  • Energielabel A
  • Verwarming Blokverwarming
  • Energie einddatum 11-03-2036

Bergruimte

  • Schuur / berging Box
  • Voorzieningen Voorzien van elektra

Parkeergelegenheid

  • Parkeerfaciliteiten Openbaar parkeren, betaald parkeren
  • Garage Geen garage

Dak

  • Soort dak Plat dak

Overig

  • Onderhoud binnen Redelijk tot goed
  • Onderhoud buiten Goed
  • Bijzonderheden Beschermd stads of dorpsgezicht
  • Permanente bewoning Ja
  • Huidig gebruik Woonruimte
  • Huidige bestemming Woonruimte

Kadastrale gegevens

  • Perceelnummer 3127
Meer kenmerken
Huis verkopen?

Maak een afspraak voor een gratis adviesgesprek met onze makelaars en ontdek jouw mogelijkheden.

Maak direct een afspraak

In de buurt