Moerdijk

Steenweg  71

€ 373.800,- k.k.

Omschrijving

Wonen met karakter, luxe én duurzaamheid — ontdek deze unieke tussenwoning in het hart van Moerdijk! Deze bijzondere woning aan de Steenweg 71 combineert de charme van 1861 met eigentijds wooncomfort. De fraaie gevel, deels begroeid met klimplanten, nodigt uit om binnen te kijken. Eenmaal over de drempel word je verrast door een stijlvol en creatief interieur, waarin…

Wonen met karakter, luxe én duurzaamheid — ontdek deze unieke tussenwoning in het hart van Moerdijk!

Deze bijzondere woning aan de Steenweg 71 combineert de charme van 1861 met eigentijds wooncomfort. De fraaie gevel, deels begroeid met klimplanten, nodigt uit om binnen te kijken. Eenmaal over de drempel word je verrast door een stijlvol en creatief interieur, waarin speelse kleuren en robuuste materialen de hoofdrol spelen.

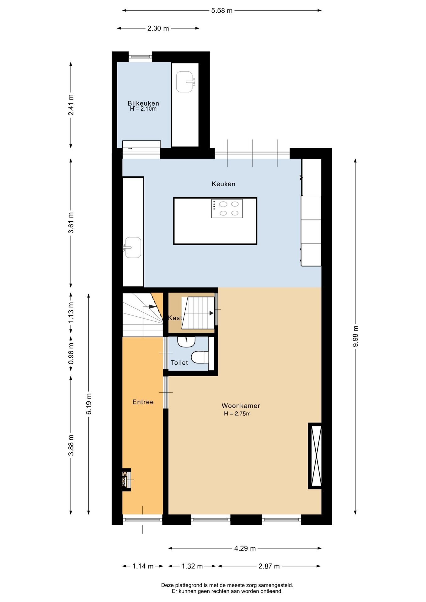
De royale woonkamer met grote raampartijen en kleurrijke accenten loopt vloeiend over in de open keuken. Hier vormt het kookeiland het kloppende hart van het huis, met veel werkruimte, moderne inbouwapparatuur en een sfeervolle afwerking. Direct naast de keuken vind je een praktische bijkeuken met extra werkblad, was droogmachine opstelling en spoelbak. Openslaande tuindeuren geven toegang tot de ruime achtertuin met meerdere terrassen, een overkapping en een vrijstaande garage welk op het moment in gebruik als werkplaats.

De woning beschikt over een kelder van ca. 20 m², ideaal voor opslag of hobby’s.

Eerste verdieping
De eerste slaapkamer is aan de voorkant van de woning gelegen en heeft een eigen inloopkast, De tweede slaapkamer is aan de achterzijde gelegen. Een royale badkamer met vrijstaand ligbad, douche ruimte, wastafelmeubel en tweede toilet. De badkamer is geheel betegeld en voorzien van een dakkapel waardoor er veel licht inval in de badkamer komt.

Tweede verdieping
Is geheel ingedeeld als ruime 3e slaapkamer met veel bergruimte, maar kan ook dienstdoen als werk- of hobbyruimte.

De tuin is op het Zuid - Westen gesitueerd en is door de huidige eigenaren sfeervol en functioneel ingericht met meerdere terrassen, een overdekt zitgedeelte en aangrenzend de garage / werkplaats

WONEN IN MOERDIJK
Moerdijk is een gemoedelijk dorp met veel groen en rust. De basisschool, gelegen in het hart van het dorp, organiseert regelmatig leuke activiteiten voor kinderen. Het verenigingsleven is bruisend, met onder andere een (jeugd)toneelvereniging, tennisbanen, een voetbalclub en een biljartvereniging.
Voor natuurliefhebbers biedt Moerdijk prachtige wandelmogelijkheden, zoals het strandje ‘de Appelzak’ en wandelgebied ‘Appelzak-Zuid’. Daarnaast ligt het dorp op korte afstand van de Port of Moerdijk, wat voor veel werkgelegenheid zorgt. Via de A16 en A17 zijn steden als Breda en Rotterdam eenvoudig te bereiken.

Het energielabel is een A++ label de gehele woning is verduurzaamd de afgelopen jaren t.w. kunststof kozijnwerk, trippel glas, kap geïsoleerd, hybride pomp

Pluspunten op een rij
- Bouwjaar 1861
- Woonoppervlakte 124 m²
- Eigen grond 167 m²
- Kozijnwerk geheel kunststof met 3 dubbele beglazing voor een maximaal comfort
- Lichte woonkamer met sfeervolle details en vloeiende verbinding naar keuken
- Luxe open keuken met kookeiland, moderne apparatuur en bijkeuken
- Ruime kelder ca. 20 m² "LET OP DE KELDER MOET WEL OPGEKNAPT WORDEN"
- Twee slaapkamers en inloopkast op de eerste verdieping
- Royale badkamer met vrijstaand ligbad, inloopdouche en tweede toilet
- Tweede verdieping met slaapkamer en veel kastruimte
- Zonnige achtertuin met meerdere terrassen, overkapping en vrijstaande garage
- 13 zonnepanelen voor een lage energierekening
- Zonneboiler 2024
- Oplevering in overleg

NIEUWSGIERIG GEWORDEN OP BASIS VAN DE FOTO`S EN DE TEKST MAAK DAN SNEL EEN AFSPRAAK OM DEZE EIGENTIJDSE EN SFEERVOLLE WONING TE BEZICHTIGEN

Van der Giessen & Van Herk Makelaars behartigt de belangen van de verkopende partij. Neem uw eigen NVM aankoopmakelaar mee.

Alle verstrekte informatie moet beschouwd worden als een uitnodiging tot het doen van een bod of om in onderhandeling te treden.

Deze informatie is door ons met de nodige zorgvuldigheid samengesteld. Onzerzijds wordt echter geen enkele aansprakelijkheid aanvaard voor enige onvolledigheid, onjuistheid of anderszins, dan wel de gevolgen daarvan. Alle opgegeven maten en oppervlakten zijn indicatief. Van toepassing zijn de NVM voorwaarden.

Koopovereenkomst pas rechtsgeldig na ondertekening:
Een mondelinge overeenstemming tussen de particuliere verkoper en de particuliere koper is niet rechtsgeldig. Met andere woorden: er is geen koop. Er is pas sprake van een rechtsgeldige koop als de particuliere verkoper en de particuliere koper de koopovereenkomst hebben ondertekend. Dit vloeit voort uit artikel 7:2 Burgerlijk Wetboek. Een bevestiging van de mondelinge overeenstemming per e-mail of een toegestuurd concept van de koopovereenkomst wordt overigens niet gezien als een 'ondertekende koopovereenkomst'.

Toelichtingsclausule NEN2580:
De meetinstructie is gebaseerd op de NEN2580. De meetinstructie is bedoeld om een meer eenduidige manier van meten toe te passen voor het geven van een indicatie van de gebruiksoppervlakte. De meetinstructie sluit verschillen in meetuitkomsten niet volledig uit, door bijvoorbeeld interpretatieverschillen, afrondingen of beperkingen bij het uitvoeren van de meting.

MOERDIJKREGELING:
Op deze woning is de Moerdijkregeling van toepassing. De Moerdijkregeling is één van de maatregelen om de leefbaarheid in het dorp Moerdijk te verbeteren. Het dorp Moerdijk blijft. Er wordt een keur aan investeringen in en rond het dorp gedaan om het dorp Moerdijk weer nieuwe glans te geven. Werkzaamheden in het dorp zijn in volle gang en de hernieuwde glans tekent zich af in enthousiasme en initiatieven. Kijk voor meer informatie over wonen in het dorp Moerdijk en de Moerdijkregeling op
De Moerdijkregeling is een garantieregeling voor huizenbezitters in het dorp Moerdijk. Zij krijgen een verkoopgarantie van 95% van de waarde van hun huis. De Moerdijkregeling is bedoeld voor huidige én toekomstige huizenbezitters in het dorp Moerdijk. Zij kunnen te allen tijde hun huis verkopen aan de gemeente. Dat geeft financiële zekerheid en dat maakt de Moerdijkregeling vooral een 'blijf-regeling'. Daarnaast is het door deze regeling extra aantrekkelijk om in het dorp een woning te kopen omdat ook nieuwe huiseigenaren gebruiken kunnen maken van de Moerdijkregeling.

Kenmerken

Basiskenmerken

  • Status Beschikbaar
  • Koopsom € 373.800 k.k.
  • Woonoppervlakte ca. 124 m2
  • Aantal slaapkamers 3
  • Bouwjaar 1861

Overdracht

  • Aanvaarding In overleg

Bouwvorm & onderhoud

  • Soort object Tussenwoning
  • Soort woning Eengezinswoning
  • Bouwjaar 1861
  • Soort bouw woonhuis
  • Ligging In woonwijk

Oppervlakte & inhoud

  • Gebruiksoppervlakte 124m2
  • Perceeloppervlakte 167m2
  • Inhoud 550m3
  • Aantal kamers 4
  • Aantal slaapkamers 3
  • Aantal woonlagen 3 woonlagen
  • Overige inpandige ruimte 21m2

Energie & installatie

  • Energielabel A++
  • Verwarming Cv ketel
  • Warm water Cv ketel
  • C.v.-ketel type GAS
  • C.v.-ketel bouwjaar 2024
  • Energie einddatum 25-08-2035

Bergruimte

  • Schuur / berging Vrijstaand hout
  • Voorzieningen Voorzien van elektra

Parkeergelegenheid

  • Parkeerfaciliteiten Openbaar parkeren
  • Garage Geen garage

Dak

  • Soort dak Zadeldak

Overig

  • Onderhoud binnen Redelijk tot goed
  • Onderhoud buiten Redelijk tot goed
  • Permanente bewoning Ja
  • Huidig gebruik Woonruimte
  • Huidige bestemming Woonruimte

Voorzieningen

  • Voorzieningen Tv kabel

Buitenruimte

  • Hoofdtuin ACHTERTUIN
  • Oppervlakte hoofdtuin 87m2
  • Ligging hoofdtuin ZUIDWEST
  • Kwaliteit tuin Fraai aangelegd

Kadastrale gegevens

  • Perceelnummer 1799
  • Perceeloppervlakte 167 m2
Meer kenmerken
Huis verkopen?

Maak een afspraak voor een gratis adviesgesprek met onze makelaars en ontdek jouw mogelijkheden.

Maak direct een afspraak

In de buurt

Geïnteresseerd?

Bel met Van der Giessen en van Herk makelaars te Ridderkerk

shape

Stuur een bericht

* Maximaal 255 tekens
privacyverklaring