Gouda

van Bergen IJzendoornpark  19

€ 1.495.000,- k.k.

Omschrijving

VRIJSTAANDE VILLA OP 1882M2 EIGEN GROND AAN HET WATER MET UITZICHT OP HET PARK Aan het prachtige Van Bergen IJzendoornpark staat deze onder architectuur gebouwde vrijstaande villa uit 1957, gesitueerd op een perceel van maar liefst 1.882 m² eigen grond en water. Hier woon je volledig vrij, met uitzicht over het park en de vijver, terwijl de historische binnenstad van…

VRIJSTAANDE VILLA OP 1882M2 EIGEN GROND AAN HET WATER MET UITZICHT OP HET PARK

Aan het prachtige Van Bergen IJzendoornpark staat deze onder architectuur gebouwde vrijstaande villa uit 1957, gesitueerd op een perceel van maar liefst 1.882 m² eigen grond en water. Hier woon je volledig vrij, met uitzicht over het park en de vijver, terwijl de historische binnenstad van Gouda en het centraal station zich op loopafstand bevinden.

De villa werd ontworpen door architect L. Roggeveen in opdracht van de familie Verheul. Het huis is op een sokkel gebouwd, waarbij het slaapgedeelte circa één meter hoger ligt dan het woongedeelte. Hierdoor zijn de garage en technische ruimte subtiel onder het slaapniveau geplaatst. Doordat de twee bouwdelen niet volledig haaks op elkaar staan, ontstaat een speelse en karaktervolle vormgeving – een ontwerp dat ook vandaag nog onderscheidend is.

Het perceel is afgesloten met een elektrisch bedienbaar hek en biedt optimale privacy. De combinatie van water, volwassen groen en architectuur geeft deze villa een unieke woonbeleving.

VERKOPER AAN HET WOORD

“Vader was zeer gelukkig toen hij 36 jaar geleden deze villa kon kopen. Onze ouders woonden al twintig jaar in het buurhuis op nummer 21. Toen nummer 19 eerder te koop kwam, was het nog niet het juiste moment. Maar enkele jaren later, toen de buurman aangaf te gaan verhuizen, was de koop snel rond. Vooral onze moeder genoot hier intens en wilde nooit meer weg. De rustige, groene omgeving van het park én toch alles op loopafstand van de voorzieningen – dat maakte deze plek voor haar ideaal. Ze hield van het licht in huis en genoot dagelijks van het uitzicht vanuit het grote raam in de woonkamer.”

SPEELSE INDELING EN BIJZONDERE DETAILS

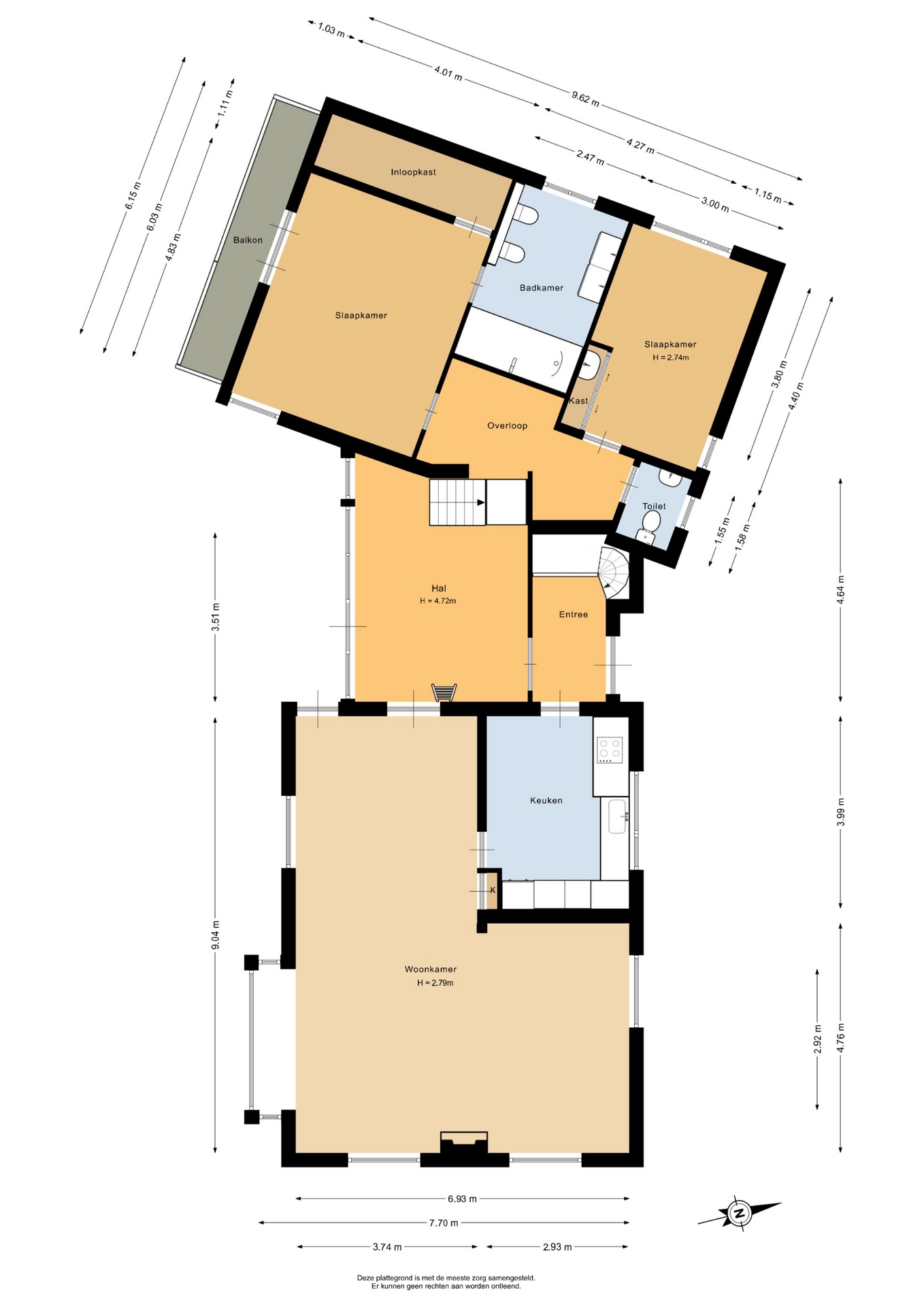
De entree is indrukwekkend. De hoge hal met grote glazen pui op het zuiden vormt het verbindende element tussen wonen en slapen en geeft toegang tot het aangrenzende terras, waarbij de marmeren mozaïekvloer vanuit de hal naadloos doorloopt naar buiten. Binnen en buiten lopen hier letterlijk in elkaar over.

De woonkamer is royaal en statig, voorzien van een haard en een erker met groot raam. Door de verhoogde ligging van de woning kijk je aan twee kanten uit over het park. Het licht valt rijkelijk naar binnen dankzij de grote raampartijen aan de zonzijde. Aansluitend bevindt zich de eetkamer met deur naar terras en naar de keuken. De dichte keuken is uitgevoerd in hoekopstelling en beschikt over inbouwapparatuur en vaste kastruimte.

Via een klein niveauverschil bereik je het slaapgedeelte. De hoofdslaapkamer beschikt over airconditioning, een inloopkast en openslaande deuren naar het balkon. De aangrenzende badkamer is compleet uitgevoerd met ligbad, dubbel wastafelmeubel, toilet en bidet. De tweede slaapkamer op deze verdieping beschikt over een vaste kastenwand en een eigen wastafel.

Een niveau lager bevindt zich de derde slaapkamer met tweede badkamer (douche, toilet en wastafel). Daarnaast vind je hier de bijkeuken, technische ruimte met HR-combiketel uit 2016 en de inpandige garage met kastenwand en aparte loopdeur.

De bergzolder op stahoogte biedt mogelijkheden voor het realiseren van een extra slaapkamer, werkruimte of studio.

Veel oorspronkelijke details zijn bewaard gebleven. Dit huis biedt een sterke architectonische basis en tegelijkertijd alle ruimte om het naar eigen inzicht te moderniseren en aan te passen aan hedendaagse woonwensen.

EXCLUSIEF WONEN IN HET VAN BERGEN IJZENDOORNPARK

Het Van Bergen IJzendoornpark behoort tot de meest gewilde woonlocaties van Gouda. Brede lanen, volwassen bomen, waterpartijen en vrijstaande villa’s bepalen hier het straatbeeld. De sfeer is rustig en ruim, met een duidelijk onderscheidend karakter.

Binnen enkele minuten wandel je naar de historische binnenstad met haar monumentale panden, restaurants en speciaalzaken. Ook het centraal station ligt op korte afstand, waardoor steden als Rotterdam, Den Haag en Utrecht uitstekend bereikbaar zijn. Voor ondernemers en forenzen is dit een ideale combinatie van representatief wonen en praktische bereikbaarheid.

Hier woon je vrij, groen en met blijvend uitzicht – op een locatie die zelden beschikbaar komt.

BELANGRIJKSTE KENMERKEN
Bouwjaar: 1957
Perceeloppervlakte: 1.882 m² eigen grond (inclusief water)
Tuinoriëntatie: zuid
Woonoppervlakte: 186 m²
Inhoud: 865 m³
Overige inpandige ruimte: 36 m²
Terrassen: 24 m²
Aantal verdiepingen: 3 niveaus + bergzolder
Aantal kamers: 4
Aantal slaapkamers: 3
Aantal badkamers: 2
Verwarming: HR-combiketel (2016)

OPLEVERING IN OVERLEG

Kenmerken

Basiskenmerken

  • Status Beschikbaar
  • Koopsom € 1.495.000 k.k.
  • Woonoppervlakte ca. 186 m2
  • Aantal slaapkamers 3
  • Bouwjaar 1957

Overdracht

  • Aanvaarding In overleg

Bouwvorm & onderhoud

  • Soort object Vrijstaande woning
  • Soort woning Villa
  • Bouwjaar 1957
  • Soort bouw woonhuis
  • Ligging Aan park, vrij uitzicht

Oppervlakte & inhoud

  • Gebruiksoppervlakte 186m2
  • Perceeloppervlakte 1882m2
  • Inhoud 865m3
  • Aantal kamers 4
  • Aantal slaapkamers 3
  • Aantal woonlagen 4 woonlagen
  • Overige inpandige ruimte 36m2

Energie & installatie

  • Energielabel F
  • Isolatie Gedeeltelijk dubbel glas
  • Verwarming Cv ketel
  • Warm water Cv ketel, doorstroomboiler
  • C.v.-ketel type GAS
  • C.v.-ketel bouwjaar 2016
  • Energie einddatum 09-02-2036

Bergruimte

  • Schuur / berging Vrijstaand hout

Parkeergelegenheid

  • Parkeerfaciliteiten Op eigen terrein
  • Garage Inpandig

Dak

  • Soort dak Zadeldak

Overig

  • Onderhoud binnen Redelijk
  • Onderhoud buiten Matig tot redelijk
  • Bijzonderheden Kluswoning
  • Permanente bewoning Ja
  • Huidig gebruik Woonruimte
  • Huidige bestemming Woonruimte

Voorzieningen

  • Voorzieningen Rolluiken, buitenzonwering

Buitenruimte

  • Hoofdtuin TUIN_RONDOM
  • Kwaliteit tuin Normaal

Kadastrale gegevens

  • Perceelnummer 2131
  • Perceeloppervlakte 1882 m2
Meer kenmerken
Huis verkopen?

Maak een afspraak voor een gratis adviesgesprek met onze makelaars en ontdek jouw mogelijkheden.

Maak direct een afspraak

In de buurt

Geïnteresseerd?

Bel met Van Herk makelaars te Excellent

shape

Stuur een bericht

* Maximaal 255 tekens
privacyverklaring