Zoetermeer

Zalkerbos  91

€ 285.000,- k.k.

Omschrijving

Comfortabel wonen in het groenste deel van Zoetermeer! Aan de rand van de wijk Meerzicht, op een rustige en groene locatie, vind je dit ruime 4-kamer appartement aan het Zalkerbos 91. De woning maakt deel uit van een goed onderhouden complex dat recent volledig is verduurzaamd én gemoderniseerd. Het resultaat? Een fris, eigentijds gebouw met comfortabele, energiezuinige…

Comfortabel wonen in het groenste deel van Zoetermeer!

Aan de rand van de wijk Meerzicht, op een rustige en groene locatie, vind je dit ruime 4-kamer appartement aan het Zalkerbos 91. De woning maakt deel uit van een goed onderhouden complex dat recent volledig is verduurzaamd én gemoderniseerd. Het resultaat? Een fris, eigentijds gebouw met comfortabele, energiezuinige woningen die helemaal klaar zijn voor de toekomst.

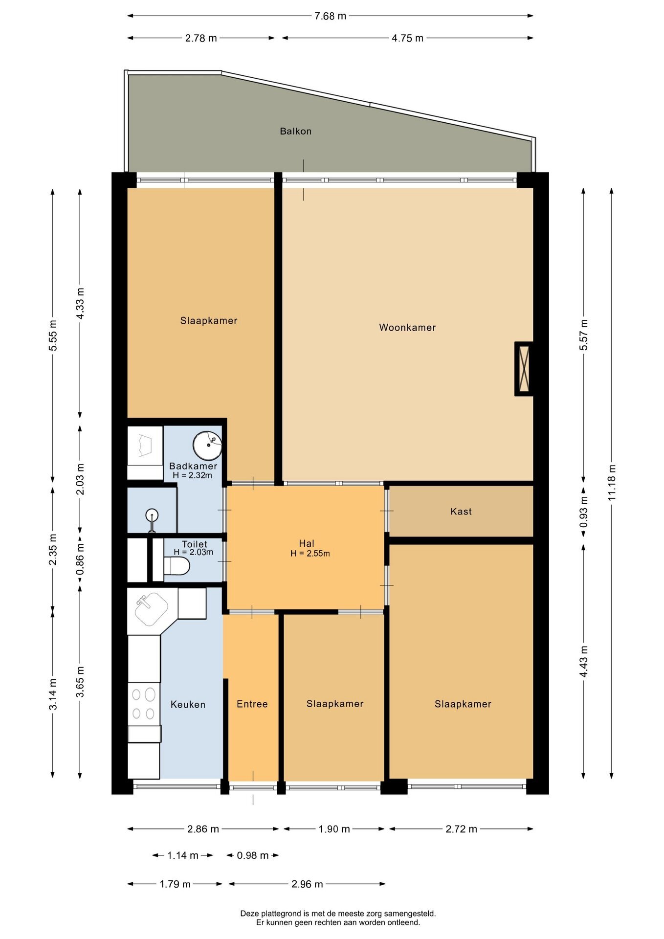
Het appartement zelf is netjes afgewerkt en beschikt over een dichte keuken in hoekopstelling, voorzien van diverse inbouwapparatuur. De badkamer is praktisch ingericht met een douche, wastafel en een wasmachineaansluiting. Dankzij de slimme indeling profiteer je van veel lichtinval en prettige leefruimtes, waaronder een ruime woonkamer en drie goed bemeten slaapkamers.

De recente duurzaamheidsmaatregelen maken dit appartement extra aantrekkelijk. Denk aan HR++ beglazing, dakisolatie, een nieuw ventilatiesysteem, isolatie in de kozijnpanelen en de vervanging van zowel de voor- als achterdeur. Deze verbeteringen zorgen niet alleen voor meer wooncomfort, maar ook voor een lagere energierekening. Bovendien heeft het complex een compleet nieuwe look gekregen, met vernieuwde galerijhekken, privacyschermen en fris schilderwerk.

Extra praktisch is de aanwezigheid van twee bergingen: een inpandige berging in de woning én een eigen berging in de onderbouw – ideaal voor het stallen van fietsen of het opslaan van spullen.

De wijk Meerzicht staat bekend om haar groene karakter, uitstekende bereikbaarheid en voorzieningen op korte afstand. Of je nu op zoek bent naar rust, ruimte of gemak – dit appartement biedt het allemaal.

BIJZONDERHEDEN:
-Bouwjaar: 1973
-Woon oppervlak: 86m²
-Balkon op het zuiden: 11m²
-Berging in onderbouw: 5m²
-Ruim voldoende openbare parkeergelegenheid
-3 slaapkamers
-Isolatie: dubbel glas (HR++), gevelisolatie
-Energielabel A
-Verwarming / warm water: blokverwarming
-Actieve VVE: maandelijkse bijdrage ca. € 328,93 per maand (excl. voorschot stookkosten van € 100,-)
-Oplevering: in overleg.

Dit appartement biedt niet alleen ruimte en comfort, maar ook een prettige woonomgeving in een dynamische wijk. Of je nu als koppel, voor het gezin of als starter kijkt, deze woning biedt alles wat je zoekt!

INTERESSE? MAAK DAN SNEL EEN AFSPRAAK!
Ons advies is om bij het kopen van je nieuwe huis je eigen NVM-makelaar mee te nemen.

TOELICHTINGSCLAUSULE NEN2580
De Meetinstructie is gebaseerd op de NEN2580. De Meetinstructie is bedoeld om een meer eenduidige manier van meten toe te passen voor het geven van een indicatie van de gebruiksoppervlakte. De Meetinstructie sluit verschillen in meetuitkomsten niet volledig uit, door bijvoorbeeld interpretatieverschillen, afrondingen of beperkingen bij het uitvoeren van de meting.

KOOPOVEREENKOMST PAS RECHTSGELDIG NA ONDERTEKENING
Een mondelinge overeenstemming tussen de particuliere verkoper en de particuliere koper is niet rechtsgeldig. Met andere woorden: er is geen koop. Er is pas sprake van een rechtsgeldige koop als de particuliere verkoper en de particuliere koper de koopovereenkomst hebben ondertekend. Dit vloeit voort uit artikel 7:2 Burgerlijk Wetboek. Een bevestiging van de mondelinge overeenstemming per e-mail of een toegestuurd concept van de koopovereenkomst wordt overigens niet gezien als een 'ondertekende koopovereenkomst'

“Deze informatie is door ons met de nodige zorgvuldigheid samengesteld. Onzerzijds wordt echter geen enkele aansprakelijkheid aanvaard voor enige onvolledigheid, onjuistheid of anderszins, dan wel de gevolgen daarvan. Alle opgegeven maten en oppervlakten zijn indicatief.”

Kenmerken

Basiskenmerken

  • Status Onder voorbehoud verkocht
  • Koopsom € 285.000 k.k.
  • Woonoppervlakte ca. 86 m2
  • Aantal slaapkamers 3
  • Bouwjaar 1973

Overdracht

  • Aanvaarding In overleg

Bouwvorm & onderhoud

  • Bouwjaar 1973
  • Soort bouw woonhuis
  • Ligging In woonwijk, vrij uitzicht

Oppervlakte & inhoud

  • Gebruiksoppervlakte 86m2
  • Inhoud 267m3
  • Aantal kamers 4
  • Aantal slaapkamers 3
  • Aantal woonlagen 1 woonlagen

Energie & installatie

  • Energielabel A
  • Isolatie Muurisolatie, dubbel glas, hr glas
  • Verwarming Blokverwarming
  • Warm water Centrale voorziening
  • Energie einddatum 23-07-2035

Bergruimte

  • Schuur / berging Box

Parkeergelegenheid

  • Parkeerfaciliteiten Openbaar parkeren
  • Garage Geen garage

Dak

  • Soort dak Plat dak

Overig

  • Onderhoud binnen Goed
  • Onderhoud buiten Goed
  • Bijzonderheden Gestoffeerd, toegankelijk voor ouderen, toegankelijk voor minder validen
  • Permanente bewoning Ja
  • Huidig gebruik Woonruimte
  • Huidige bestemming Woonruimte

Voorzieningen

  • Voorzieningen Mechanische ventilatie, tv kabel, lift

Kadastrale gegevens

  • Perceelnummer 1461
Meer kenmerken
Huis verkopen?

Maak een afspraak voor een gratis adviesgesprek met onze makelaars en ontdek jouw mogelijkheden.

Maak direct een afspraak

In de buurt