Gouderak

Kattendijk  43 a 3

€ 239.000,- v.o.n.

Omschrijving

Object: multifunctionele nieuwbouw bedrijfsunit, onderdeel uitmakende van het project "Uw Gouderak" bestaande uit 55 bijzonder hoogwaardige en representatieve bedrijfsunits. Vloeroppervlakte: totale circa 104 m² BVO, verdeeld over; circa 52 m² op de begane grond BVO. circa 52 m² op de verdieping BVO. Kadastrale gegevens: thans deel uitmakende van de percelen kadastraal…

Object: multifunctionele nieuwbouw bedrijfsunit, onderdeel uitmakende van het project "Uw Gouderak" bestaande uit 55 bijzonder hoogwaardige en representatieve bedrijfsunits.

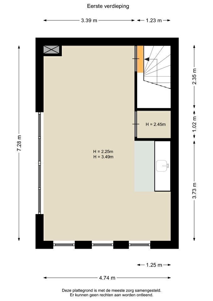
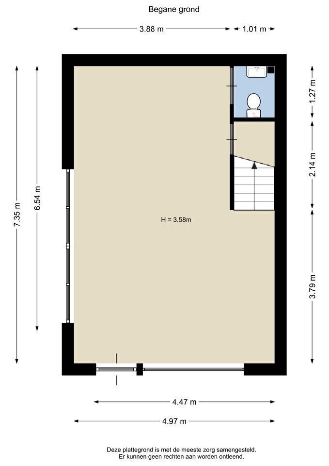
Vloeroppervlakte: totale circa 104 m² BVO, verdeeld over;
circa 52 m² op de begane grond BVO.
circa 52 m² op de verdieping BVO.

Kadastrale gegevens: thans deel uitmakende van de percelen kadastraal bekend gemeente Gouderak, sectie A
nummers 1944 en 1836.

Parkeergelegenheid: de bedrijfsunit beschikt over 1 parkeerplaats.

Locatie/bereikbaarheid: gelegen nabij de Zuidwestelijke Randweg (Gouda) en op 15 minuten rijden bevinden zich onder andere de snelwegen A12 (Den Haag-Utrecht) en A20 (Gouda – Rotterdam) alsmede nabij de Provincialeweg N210 (circa 15 minuten, Rotterdam-Centrum - Nieuwegein).

Opleveringsniveau onder andere voorzien van:
- monoliet afgewerkte betonvloer met een vloerbelasting van circa 1.250 kg/ m²;
- verdiepingsvloer met een vloerbelasting van 300 kg/m²;
- vrije hoogte begane grond ca. 3.25 meter;
- een elektrische overheaddeur 3 meter hoog en 2.40 meter breed voorzien van loopdeur;
- separate toegangsdeur;
- meterkast;
- deels gemetselde gevel;
- aluminium kozijnen met dubbele beglazing (HR++);
- diverse wand contact dozen;
- tl-verlichting;
- toilet (begane grond);
- pantry (verdieping).

Aanvaarding: in overleg.

Vraagprijs: € 239.000,- v.o.n., excl. BTW (Er is geen overdrachtsbelasting van toepassing. Wel zijn de notariskosten voor rekening van koper!)

Bijdrage VvE: € 85,- per maand.

Voorbehoud: elke transactie behoeft de nadrukkelijke goedkeuring van eigenaar.

Algemeen: al het bovenstaande betreft informatie omtrent de verkoop van KATTENDIJK 43 A3 te GOUDERAK Deze informatie is met zorg samengesteld, maar voor de juistheid ervan kan door Van Herk Bedrijfsmakelaars geen aansprakelijkheid worden aanvaard, noch aan de vermelde gegevens enig recht worden ontleend. Nadrukkelijk is vermeld dat deze informatieverstrekking niet als een aanbieding of offerte mag worden beschouwd.

Kenmerken

Basiskenmerken

  • Status Beschikbaar
  • Koopprijs € 239.000,- v.o.n.
  • Servicekosten -

Bouwvorm & onderhoud

  • Hoofdfunctie Bedrijfsruimte
  • Soort bouw Bestaande bouw
  • Bouwjaar 2024

Oppervlakte & inhoud

  • Oppervlakte bedrijfshal 104 m2

Parkeergelegenheid

  • Parkeerfaciliteiten Parkeergelegenheid: de bedrijfsunit beschikt over 1 parkeerplaats.

Overig

  • Onderhoud binnen Uitstekend
  • Onderhoud buiten Uitstekend
Meer kenmerken
Taxatie van jouw bedrijfspand, kantoor of winkel?

Wij leveren snel een helder taxatierapport

Bedrijfspand taxeren

In de buurt

Geïnteresseerd?

Bel met Van Herk Bedrijfsmakelaars te Gouda (Bedrijven)

shape

Stuur een bericht

* Maximaal 255 tekens
privacyverklaring