Rotterdam

Schuttevaerweg  13

€ 3.885,- p/m

Omschrijving

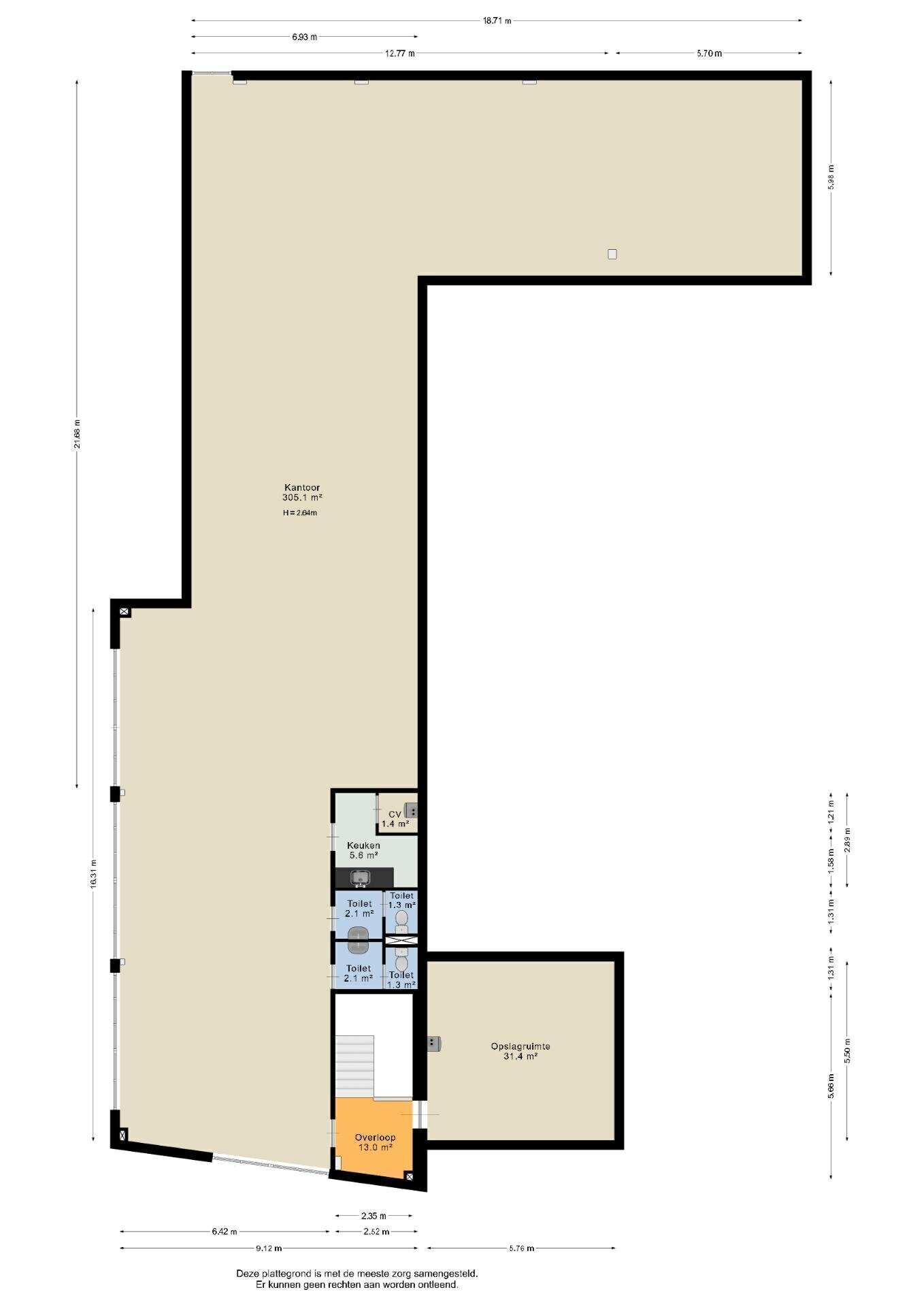
KANTOOR / SHOWROOM op een centrale zichtlocatie in de Spaanse Polder Te huur, ca. 373 m² VVO kantoorruimte/showroomruimte op de 1e verdieping. De ruimte beschikt over een eigen entree en is via een trap bereikbaar. Het pand beschikt over een eigen parkeerterrein, waarop 8 parkeerplaatsen gehuurd kunnen worden. LIGGING Het object bevind zich op steenworp afstand van…

KANTOOR / SHOWROOM op een centrale zichtlocatie in de Spaanse Polder
Te huur, ca. 373 m² VVO kantoorruimte/showroomruimte op de 1e verdieping. De ruimte beschikt over een eigen entree en is via een trap bereikbaar. Het pand beschikt over een eigen parkeerterrein, waarop 8 parkeerplaatsen gehuurd kunnen worden.

LIGGING
Het object bevind zich op steenworp afstand van afslag A20 Rotterdam-Spaanse Polder. De Spaanse Polder is de laatste jaren in ontwikkeling. Het gebied is goed bereikbaar vanaf de A20 en A13 waardoor Den Haag, Delft en de havens goed bereikbaar zijn, evenals het centrum van Rotterdam en Rotterdam The Hague Airport.

OPLEVERING
Op dit moment maakt de bovenverdieping onderdeel uit van de showroom van Hakpro. Deze verdieping wordt afgescheiden en de nu aanwezige trap zal worden verwijderd.

- eigen entree
- toiletten en pantry
- verwarming middels radiatoren
- vloerbedekking
- systeemplafond met verlichting
- glasvezel beschikbaar

CONDITIES HUUR
Huurprijs kantoor: € 125,- per m² per jaar, excl. BTW (€ 3.885,- per maand excl. BTW)
Huurprijs parkeren: € 500,- per parkeerplaats per jaar, excl. BTW
Servicekosten: nader te bepalen
Waarborgsom/bankgarantie: ten grootte van 3 maanden huur, servicekosten en BTW
Huurtermijn: 5 jaar
Indexering: volgt de CPI
De huurovereenkomst zal op basis van het standaard model van de Raad van Onroerende Zaken (ROZ) met bijbehorende Algemene Bepalingen, gedeponeerd en ingeschreven bij de griffie van de rechtbank te 's-Gravenhage, worden opgemaakt.

Algemeen:
Al het bovenstaande betreft informatie omtrent de verhuur van de Schuttevaerweg 13 te Rotterdam. Deze informatie is met zorg samengesteld, maar voor de juistheid ervan kan door Van Herk Bedrijfsmakelaars geen aansprakelijkheid worden aanvaard, noch aan de vermelde gegevens enig recht worden ontleend. Nadrukkelijk is vermeld dat deze informatieverstrekking niet als een aanbieding of offerte mag worden beschouwd.

Kenmerken

Basiskenmerken

  • Status Beschikbaar
  • Huurprijs € 3.885,- p/m
  • Servicekosten -
  • Aanvaarding In overleg

Bouwvorm & onderhoud

  • Hoofdfunctie Kantoorruimte
  • Soort bouw Bestaande bouw
  • Bouwjaar 1992

Oppervlakte & inhoud

  • Oppervlakte kantoor ca. 373 m2
  • Oppervlakte kantoor ca. 373 m2

Parkeergelegenheid

  • Parkeerfaciliteiten Op eigen terrein zijn er 8 parkeerplaatsen beschikbaar, op straat is het gratis parkeren

Overig

  • Onderhoud binnen Uitstekend
  • Onderhoud buiten Uitstekend
Meer kenmerken
Taxatie van jouw bedrijfspand, kantoor of winkel?

Wij leveren snel een helder taxatierapport

Bedrijfspand taxeren

Media

In de buurt

Geïnteresseerd?

Bel met Van Herk Bedrijfsmakelaars te Rotterdam (Bedrijven)

shape

Stuur een bericht

* Maximaal 255 tekens
privacyverklaring