Lekkerkerk

Storkstraat  1

€ 650.000,- k.k.

Omschrijving

Te koop Representatief kantoorpand met eigen parkeerterrein op eigen grond, gelegen aan de Storkstraat 1 te Lekkerkerk. Het object heeft een totale vloeroppervlakte van circa 517 m² VVO, verdeeld over de begane grond en de 1e verdieping. Op het parkeerterrein is plaats voor ongeveer 20 auto's. Ligging Het kantoorpand is gelegen op een bedrijvige en goed bereikbare…

Te koop
Representatief kantoorpand met eigen parkeerterrein op eigen grond, gelegen aan de Storkstraat 1 te Lekkerkerk. Het object heeft een totale vloeroppervlakte van circa 517 m² VVO, verdeeld over de begane grond en de 1e verdieping. Op het parkeerterrein is plaats voor ongeveer 20 auto's.

Ligging
Het kantoorpand is gelegen op een bedrijvige en goed bereikbare locatie in Lekkerkerk. In de directe omgeving bevinden zich diverse bedrijfs- en kantoorfuncties. Dankzij de gunstige ligging zijn plaatsen als Krimpen aan den IJssel, Rotterdam en Gouda eenvoudig bereikbaar. Ook openbaar vervoer (bus) is in de nabije omgeving aanwezig.

Parkeren
Bij het pand behoort een eigen parkeerterrein op het perceel. Daarnaast is er voldoende parkeergelegenheid in de openbare ruimte rondom het gebouw.

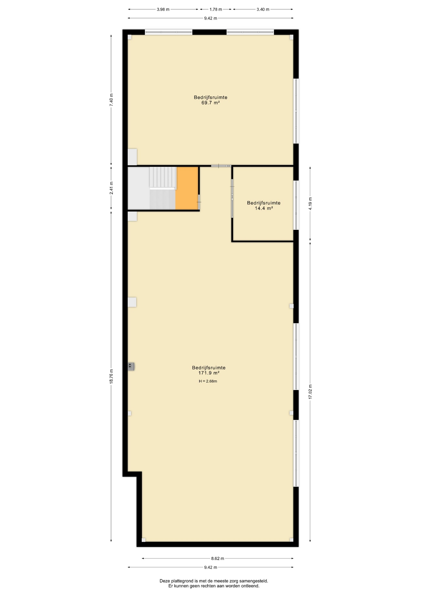
Oppervlakte
De totale vloeroppervlakte bedraagt circa 517 m² VVO, verdeeld over:

begane grond: circa 260 m² VVO kantoorruimte
1e verdieping: circa 257 m² VVO kantoorruimte

Koopsom
€ 650.000,- kosten koper.

Kadastrale gegevens
Gemeente: Lekkerkerk
Sectie: C
Nummers: 9001 en 9727
Recht: eigendom
Perceeloppervlakte: 349 m² (kantoor) en 395 m² (terrein), totaal 744 m²

Voorzieningen
Het kantoorpand is onder andere voorzien van:
- systeemplafonds met verlichtingsarmaturen;
- vloerafwerking;
- scheidingswanden;
- cv-installatie (aparte CV ketel per verdieping);
- pantry;
- toiletgroepen;
- data- en elektravoorzieningen.

Energielabel: A
Geldig tot: 25-11-2032

Huurstatus
Het object wordt aangeboden vrij van huur en gebruik.
Indien van toepassing zijn nadere huurgegevens op verzoek beschikbaar.

Oplevering
Het pand wordt geleverd in de staat waarin het zich bevindt op het moment van levering (“as is, where is”).

Bestemming
Volgens het geldende bestemmingsplan van de gemeente Krimpenerwaard is het pand bestemd voor kantoor-/bedrijfsdoeleinden volgens artikel 3 van het bestemmingsplan: 'bedrijf tot en met categorie 2': bedrijven uit ten hoogste categorie 2 van de Staat van Bedrijfsactiviteiten 'bedrijventerrein'.
Geïnteresseerden wordt geadviseerd zelf bij de gemeente te verifiëren of het beoogde gebruik past binnen het bestemmingsplan. Informatie is beschikbaar via:
https://omgevingswet.overheid.nl/regels-op-de-kaart/

Aanvaarding
In overleg, kan snel.

Kosten koper
De kosten van overdracht, waaronder notariskosten, kadastraal recht en overdrachtsbelasting, komen voor rekening van koper. Eventuele kosten voor het doorhalen van hypotheken en beslagen zijn voor rekening van verkoper.

Zekerheidsstelling
Koper dient bij ondertekening van de koopovereenkomst een waarborgsom of bankgarantie te stellen ter grootte van 10% van de koopsom.

Voorbehoud
Verkoop is onder voorbehoud van goedkeuring door de eigenaar.

Algemeen
Deze informatie is met zorg samengesteld en bedoeld om een indruk te geven van het aangeboden kantoorpand aan de Storkstraat 1 te Lekkerkerk. Aan de inhoud kunnen geen rechten worden ontleend. Deze presentatie is nadrukkelijk geen aanbod of offerte

Kenmerken

Basiskenmerken

  • Status Beschikbaar
  • Koopprijs € 650.000,- k.k.
  • Servicekosten -
  • Aanvaarding In overleg

Bouwvorm & onderhoud

  • Hoofdfunctie Kantoorruimte
  • Soort bouw Bestaande bouw
  • Bouwjaar 1990

Oppervlakte & inhoud

  • Oppervlakte kantoor ca. 517 m2
  • Oppervlakte kantoor ca. 517 m2

Overig

  • Onderhoud binnen Goed
  • Onderhoud buiten Goed
Meer kenmerken
Taxatie van jouw bedrijfspand, kantoor of winkel?

Wij leveren snel een helder taxatierapport

Bedrijfspand taxeren

Media

In de buurt

Geïnteresseerd?

Bel met Van Herk Bedrijfsmakelaars te Rotterdam (Bedrijven)

shape

Stuur een bericht

* Maximaal 255 tekens
privacyverklaring