Moordrecht

Tulpstraat  51 b

€ 895,- p/m

Omschrijving

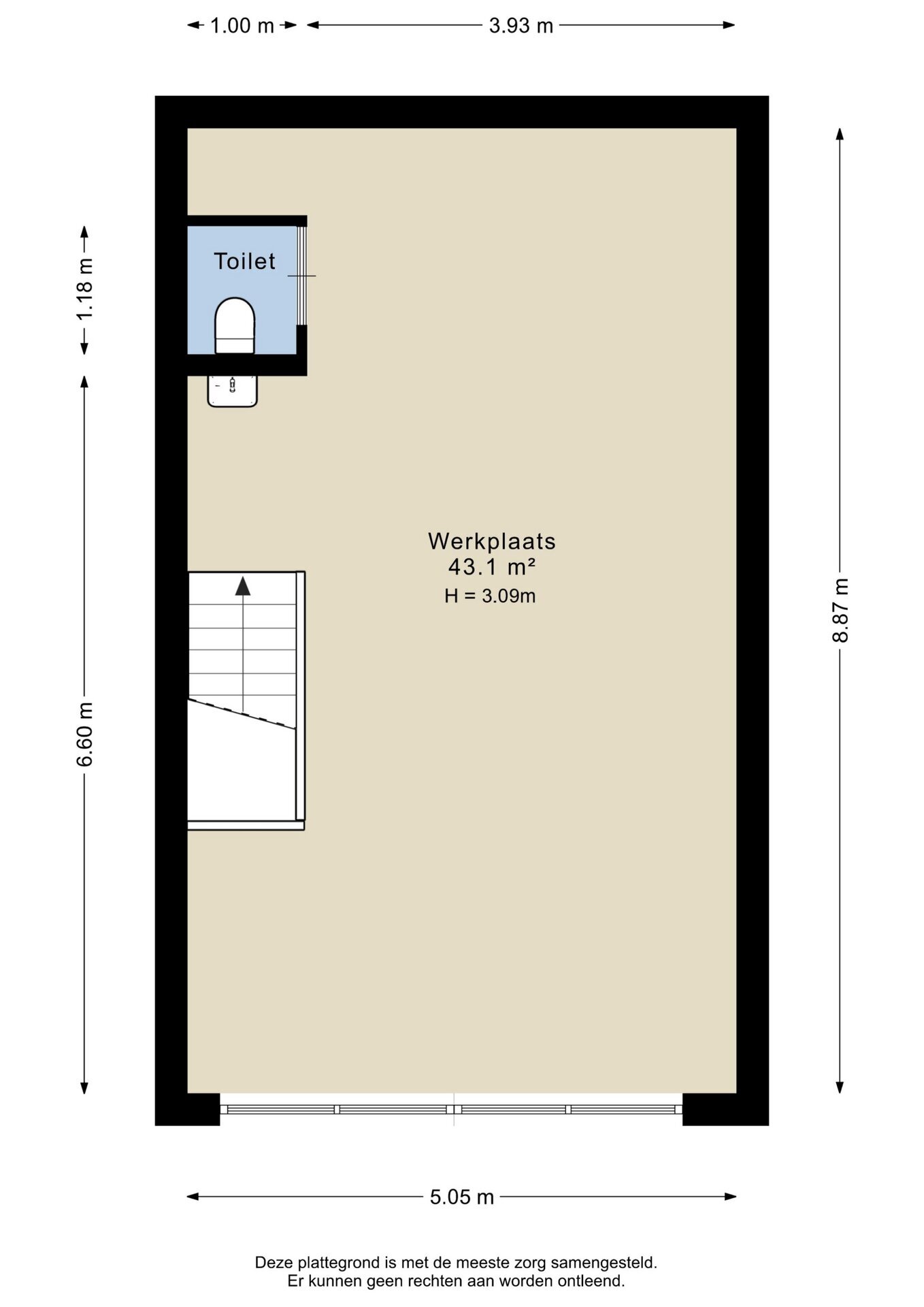
Object: multifunctionele bedrijfsunit. Vloeroppervlakte: totaal circa 90 m² BVO verdeeld over: begane grond circa 45 m² BVO verdieping circa 45 m² BVO Parkeervoorziening: parkeren is mogelijk voor de bedrijfsunits. Er zijn geen aangewezen parkeerplaatsen. Locatie/bereikbaarheid: gelegen in een woonwijk "Bloemenbuurt" aan de rand aan de rand van het dorp.…

Object: multifunctionele bedrijfsunit.

Vloeroppervlakte: totaal circa 90 m² BVO verdeeld over:
begane grond circa 45 m² BVO
verdieping circa 45 m² BVO

Parkeervoorziening: parkeren is mogelijk voor de bedrijfsunits. Er zijn geen aangewezen parkeerplaatsen.

Locatie/bereikbaarheid: gelegen in een woonwijk "Bloemenbuurt" aan de rand aan de rand van het dorp. Uitvalswegen richting Rotterdam/Utrecht zijn slechts op 4 minuten rijden.

Voorzieningen:
- elektronische bedienbare overheaddeur met afstandsbediening (afm. ca. 3,26/3,20 m1 (bxh);
- vrije hoogte circa 3.40 m¹;
- separate toegangsdeur;
- vloerbelasting circa 1.500 kg/m² voor de begane grond en 150 kg/m² voor de verdieping;
- geen verwarming;
- diverse wandcontactdozen;
- houten verdiepingsvloer;
- 2 x spoelbak;
- led buitenlamp;
- tl-verlichting;
- brandblusser (sproeischuimblusser);
- toilet.

Aanvaarding: in overleg.

Huurprijs: € 895,- per maand, exclusief BTW.

Servicekosten: een voorschot bedrag van € 100,- per maand, exclusief B.T.W. ten behoeve van
- water verbruik;
- elektra verbruik;
- onderhoudscontract overheaddeuren;
- glasbewassing;
- onderhoudscontract brandblusser.

Huurder beschikt over tussenmeters waarbij het verbruik op basis van nacalculatie zal worden verrekenend.

Huurprijsaanpassing: jaarlijks zal de huurprijs worden herzien op basis van de wijziging van het maandprijsindexcijfer volgens de consumentenprijsindex (CPI) Alle Huishoudens (2015=100), gepubliceerd door het Centraal Bureau voor de Statistiek (CBS), mits dit geen verlaging tot gevolg heeft.

Huurbetaling: de betaling van de huurprijs, eventuele servicekosten en de eventuele B.T.W. geschiedt in termijnen 1 maand bij vooruitbetaling.

Huurtermijn: de huurovereenkomst wordt aangegaan voor nader vast te stellen termijnen.

Zekerheid: huurder dient binnen 2 weken na ondertekening van de huurovereenkomst, maar uiterlijk een dag voor de datum van ingebruikname, aan verhuurder een bankgarantie c.q. waarborgsom te voldoen voor een betalingstermijn van 3 maanden, inclusief omzetbelasting.

BTW-status: verhuurder wenst te opteren voor BTW-belaste huur en verhuur. Ingeval huurder de BTW niet kan verrekenen, zal de huurprijs in overleg met huurder worden verhoogd ter compensatie van de gevolgen van het vervallen van de mogelijkheid om te opteren voor BTW-belaste huur.

Huurovereenkomst: huurovereenkomst conform het standaard model van de Raad voor Onroerende Zaken (ROZ), zoals gehanteerd door de Nederlandse Vereniging voor Makelaars (NVM).

Voorbehoud: elke transactie behoeft de nadrukkelijke goedkeuring van eigenaar.

Algemeen: al het bovenstaande betreft informatie omtrent de verhuur van TULPSTRAAT 51B te MOORDRECHT. De informatie is met zorg samengesteld, maar voor de juistheid ervan kan door Van Herk Bedrijfsmakelaars geen aansprakelijkheid worden aanvaard noch aan de vermelde gegevens enig recht worden ontleend. Nadrukkelijk is vermeld dat deze informatieverstrekking niet als een aanbieding of offerte mag worden beschouwd.

Kenmerken

Basiskenmerken

  • Status Beschikbaar
  • Huurprijs € 895,- p/m
  • Servicekosten -

Bouwvorm & onderhoud

  • Hoofdfunctie Bedrijfsruimte
  • Soort bouw Bestaande bouw
  • Bouwjaar 2018

Oppervlakte & inhoud

  • Oppervlakte bedrijfshal 90 m2

Parkeergelegenheid

  • Parkeerfaciliteiten Parkeervoorziening: parkeren is mogelijk voor de bedrijfsunits. Er zijn geen aangewezen parkeerplaatsen.

Overig

  • Onderhoud binnen Uitstekend
  • Onderhoud buiten Uitstekend
Meer kenmerken
Taxatie van jouw bedrijfspand, kantoor of winkel?

Wij leveren snel een helder taxatierapport

Bedrijfspand taxeren

Media

In de buurt

Geïnteresseerd?

Bel met Van Herk Bedrijfsmakelaars te Gouda (Bedrijven)

shape

Stuur een bericht

* Maximaal 255 tekens
privacyverklaring