Krimpen Aan Den Ijssel

Van Utrechtweg  20 q

€ 1.650,- p/m

Omschrijving

Op het bedrijventerrein Stormpolder in Krimpen aan den IJssel wordt een moderne en hoogwaardige bedrijfsunit te huur aangeboden met een eigentijdse en representatieve uitstraling. Het object is in aanbouw, naar verwachting gereed omstreeks februari 2026. De unit is uitermate geschikt voor ondernemers die op zoek zijn naar een functionele ruimte voor eigen gebruik, met…

Op het bedrijventerrein Stormpolder in Krimpen aan den IJssel wordt een moderne en hoogwaardige bedrijfsunit te huur aangeboden met een eigentijdse en representatieve uitstraling. Het object is in aanbouw, naar verwachting gereed omstreeks februari 2026. De unit is uitermate geschikt voor ondernemers die op zoek zijn naar een functionele ruimte voor eigen gebruik, met mogelijkheden voor zowel werkplaats als opslag.

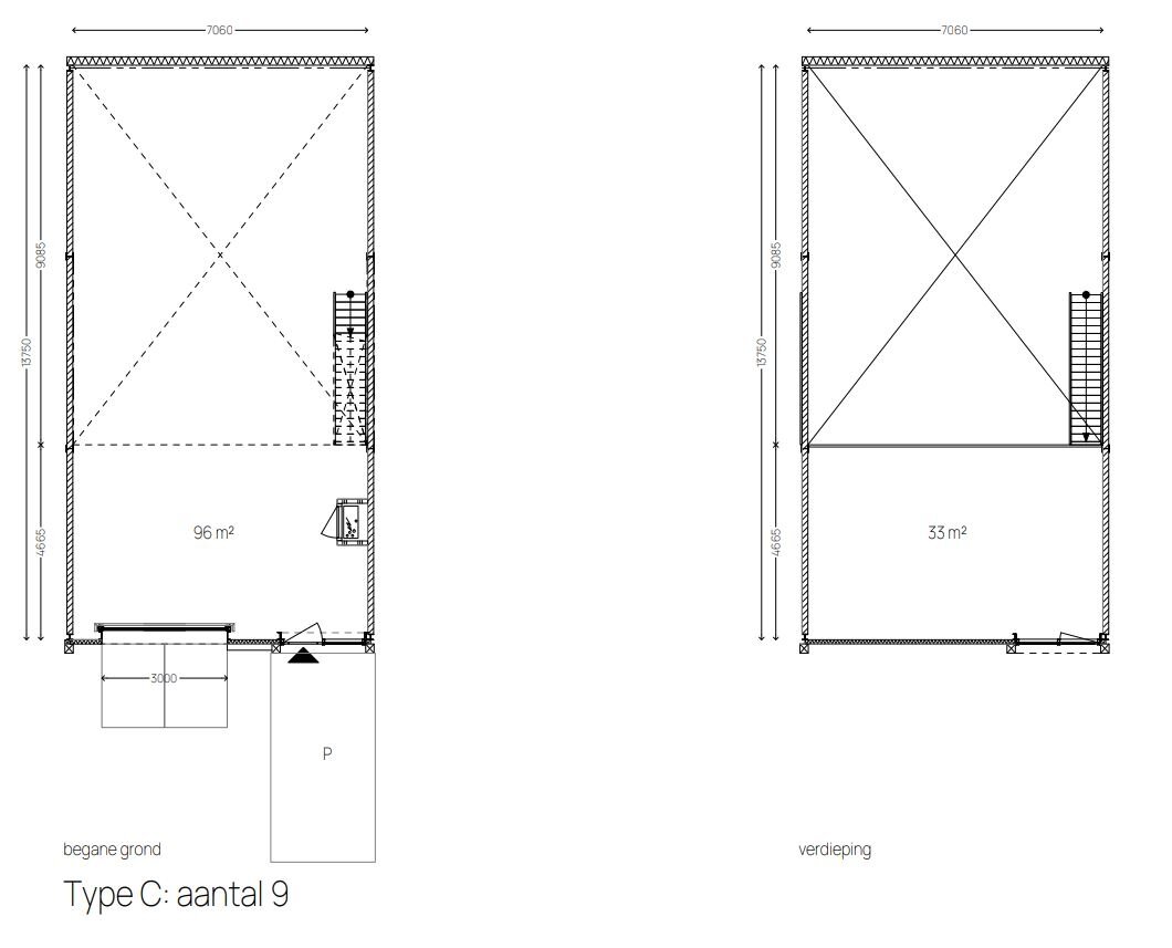
De bedrijfsunit heeft een totale oppervlakte van circa 129 m², verdeeld over twee bouwlagen, waarvan circa 96 m² op de begane grond en circa 33 m² op de verdiepingsvloer aan de voorzijde van het pand zijn gesitueerd. Daarnaast beschikt de unit over circa 40 m² buitenterrein, inclusief parkeerplaats. De ruimte is voorzien van een elektrische overheaddeur, een afgewerkte verdiepingsvloer, krachtstroom, basis elektra-aansluitingen, verlichting en een toilet. De indeling is flexibel en biedt ruimte voor uiteenlopende bedrijfsactiviteiten.

De units hebben een hoogte van circa 8 meter (exclusief verdiepingsvloer) en zijn voorzien van een elektrische overheaddeur. De toegang tot het pand wordt mogelijk gemaakt door een aparte loopdeur in de aluminium entreepui. De maximale vloerbelasting van de begane grondvloer bedraagt circa 1.500 kg per m².

Deze bedrijfsunit combineert functionaliteit met representativiteit en is ideaal voor ondernemers die waarde hechten aan kwaliteit en bereikbaarheid.

Bereikbaarheid:
Net over de Algerabrug en langs de N210 bevind zich het industriegebied "Stormpolder". Op deze locatie vind u ondernemingen van het grote Hollandia en IHC tot aan de middenstand uit de bouw en industrie. Het industriegebied is goed te bereiken via een busverbinding naar metrostation Capelsebrug en Gouda, de waterbus richting de Drechtsteden en Rotterdam. Met de auto via de N210.

Huurprijs:
€ 1.650,- per maand, exclusief BTW en eventuele servicekosten.

Vrije hoogte:
De unit beschikt over een vrije hoogte van ca. 8 m1 meter op de begane grond, op het deel waar geen verdiepingsvloer boven ligt.

Maximale vloerbelasting:
Ca. 1.500 kg per m² op de begane grond en
ca. 350 kg per m² op de verdiepingsvloeren.

Bestemmingsinformatie:
Bestemmingsplan 'Stormpolder' van de Gemeente Krimpen aan den IJssel onherroepelijk d.d. 13-06-2013
Bestemming: Bedrijventerrein
Functieaanduiding: bedrijf tot en met categorie 3.2

Voor detailinformatie: omgevingswet.overheid.nl

Parkeervoorziening:
Bij de bedrijfsunit behoort één autoparkeerplaats.

Aanvaarding:
In overleg, vanaf de oplevering door de aannemer, omstreeks februari 2026.

Huurtermijn:
Minimaal 3 jaar.

Servicekosten:
Niet van toepassing.
Huurder beschikt over eigen meters t.b.v. nutsvoorzieningen en zal derhalve zelf overeenkomsten sluiten met de desbetreffende leveranciers.

Bankgarantie:
Huurder dient aan verhuurder een onherroepelijke ROZ-bankgarantie te stellen of waarborgsom te storten ter grootte van drie maanden huur en de hierover verschuldigde omzetbelasting.

Huurindexering:
Jaarlijks, op basis van de wijziging van het prijsindexcijfer volgens de consumentenprijsindex (CPI) reeks Alle huishoudens (2015=100), gepubliceerd door het Centraal Bureau voor de Statistiek (CBS).

Omzetbelasting:
Verhuurder wenst te opteren voor BTW-belaste huur en verhuur. Ingeval huurder niet aan de gestelde criteria voor belaste verhuur voldoet, wordt de huurprijs verhoogd ter compensatie van de gevolgen van het vervallen van de mogelijkheid om te opteren voor BTW-belaste huur.

Huurovereenkomst:
Huurovereenkomst op basis van het standaard model van de Raad voor Onroerende Zaken (ROZ), versie 2025, met de daarbij behorende algemene bepalingen.

Voorbehoud:
Elke transactie behoeft de nadrukkelijke goedkeuring van eigenaar.
Al het bovenstaande betreft informatie omtrent de verhuur van Van Utrechtweg 20 q te Krimpen aan den IJssel. De informatie is met zorg samengesteld, maar voor de juistheid ervan kan door Van Herk Bedrijfsmakelaars geen aansprakelijkheid worden aanvaard noch aan de vermelde gegevens enig recht worden ontleend. Nadrukkelijk is vermeld dat deze informatieverstrekking niet als een aanbieding of offerte mag worden beschouwd.

De in kleur afgebeelde gevelaanzicht is een impressie, zodat hieraan geen rechten ontleend kunnen worden. Indien de opgegeven grootte (ondermaat/overmaat) van de onroerende zaak niet juist is, ontleent geen van partijen daaraan rechten.

Kenmerken

Basiskenmerken

  • Status Beschikbaar
  • Huurprijs € 1.650,- p/m
  • Servicekosten -
  • Aanvaarding In overleg

Bouwvorm & onderhoud

  • Hoofdfunctie Bedrijfsruimte
  • Soort bouw Bestaande bouw
  • Bouwjaar 2026

Oppervlakte & inhoud

  • Oppervlakte bedrijfshal 129 m2

Overig

  • Onderhoud binnen Uitstekend
  • Onderhoud buiten Uitstekend
Meer kenmerken
Taxatie van jouw bedrijfspand, kantoor of winkel?

Wij leveren snel een helder taxatierapport

Bedrijfspand taxeren

Media

In de buurt

Geïnteresseerd?

Bel met Van Herk Bedrijfsmakelaars te Rotterdam (Bedrijven)

shape

Stuur een bericht

* Maximaal 255 tekens
privacyverklaring