Rotterdam

Mathenesserlaan  540

€ 7.900,- p/m

Omschrijving

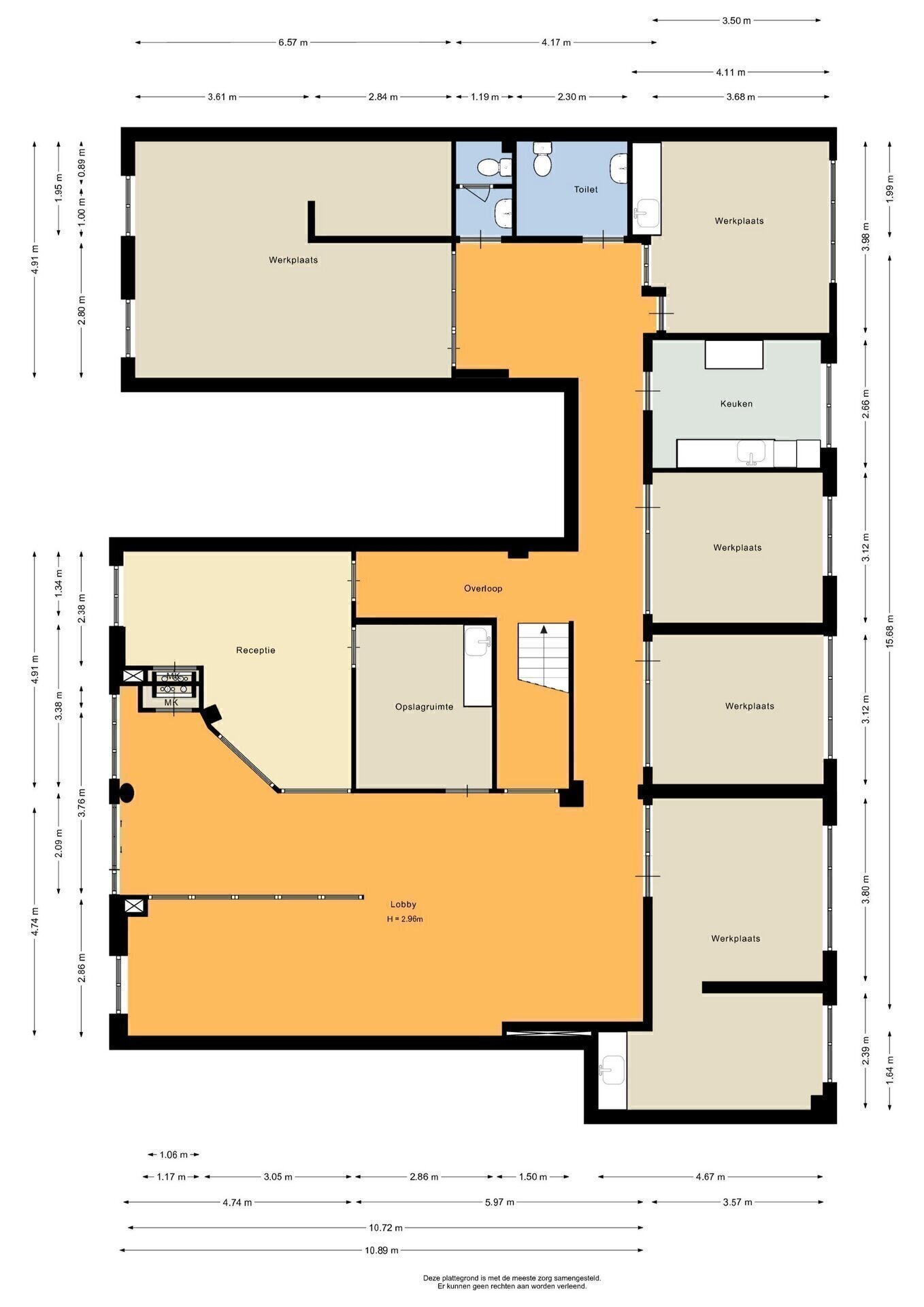
Te huur / te koop: MULTIFUNCTIONEEL GEBOUW VAN CA. 576 M² IN HET ROTTERDAMSE NIEUWE-WESTEN Dit voormalige gezondheidscentrum beslaat twee verdiepingen, ca. 261 m² op de begane grond en 315 m² in het souterrain. Vanuit het souterrain is een gemeenschappelijke tuin bereikbaar. (KIJK VOOR DE INDELING OP DE PLATTEGROND) UW NIEUWE KANTOOR, KLINIEK, PRAKTIJKRUIMTE OF WINKEL…

Te huur / te koop: MULTIFUNCTIONEEL GEBOUW VAN CA. 576 M² IN HET ROTTERDAMSE NIEUWE-WESTEN
Dit voormalige gezondheidscentrum beslaat twee verdiepingen, ca. 261 m² op de begane grond en 315 m² in het souterrain. Vanuit het souterrain is een gemeenschappelijke tuin bereikbaar.
(KIJK VOOR DE INDELING OP DE PLATTEGROND)

UW NIEUWE KANTOOR, KLINIEK, PRAKTIJKRUIMTE OF WINKEL
Het gebouw leent zich prima als kantoor. De indeling bestaat uit een ruime entree met aansluitend diverse spreekkamers vele voorzien van pantry. Er zijn meerdere toiletten en ook nog op elke verdieping een keukenblok etc. Ook het gebruik als kliniek past goed bij dit gebouw. Een kinderdagverblijf is hier NIET toegestaan.

VEEL VOORZIEININGEN EN GOED BEREIKBAAR
Een goed bereikbaar kantoor is een must voor uw personeel en klanten/cliënten. Metrohalte Delfshaven bevind op loopafstand en de snelweg A20-A13 is eenvoudig bereikbaar. Aan het Mathenesserplein zijn er diverse winkels en eetgelegenheden gevestigd.

VOORZIENINGEN
- Eigen entree;
- Diverse toiletruimtes;
- Diverse pantry's
- Systeemplafond met verlichtingsarmaturen;

BESTEMMING
De voor 'Gemengd - 7' aangewezen gronden zijn bestemd voor:
- detailhandel
- dienstverlening

HUURPRIJS
De huurprijs bedraagt € 7.900,- per maand excl BTW.

KOOPSOM
€ 1.475.000,- kosten koper

OPLEVERING
Deze bedrijfsruimte wordt in de huidige staat opgeleverd. Er wordt casco verhuurd. De in het gehuurde aanwezige voorzieningen worden door verhuurder om niet ter beschikking gesteld. Huurder heeft hiervoor een onderhoudsplicht.

HUURTERMIJN
Bij voorkeur 5 jaar.

HUURPRIJSAANPASSING
De huurprijs wordt jaarlijks herzien op basis van de consumentenprijsindex (CPI) Alle Huishoudens (2015=100), gepubliceerd door het Centraal Bureau voor de Statistiek (CBS), mits dit geen verlaging tot gevolg heeft.

HUURBETALING
De betaling van de huurprijs, servicekosten en BTW geschiedt steeds per maand bij vooruitbetaling. Huurder zal de huurprijs, en indien daarvan sprake is, het bedrag aan bijkomende kosten en omzetbelasting en de jaarlijkse servicekostenafrekening voldoen middels een aan de verhuurder of zijn beheerder af te geven machtiging tot automatische incasso.

ZEKERHEID
Huurder dient voor huuringangsdatum, maar uiterlijk een dag voor de datum van ingebruikname, aan verhuurder een waarborgsom te voldoen ter grootte van een betalingstermijn van 3 maanden huur inclusief servicevoorschot en omzetbelasting.

BTW STATUS
Verhuurder wenst te opteren voor BTW- belaste huur en verhuur. Ingeval huurder de BTW niet kan verrekenen, zal de huurprijs in overleg met huurder worden verhoogd ter compensatie van de gevolgen van het vervallen van de mogelijkheid om te opteren voor BTW belaste verhuur.

HUUROVEREENKOMST
Huurovereenkomst wordt opgesteld conform het standaard model van de Raad voor Onroerende Zaken (ROZ), model 2015, zoals gehanteerd door de Nederlandse Vereniging voor Makelaars (NVM), aangevuld met locatie specifieke- en verhuurdersbepalingen.

VOORBEHOUD
Elke transactie behoeft de nadrukkelijke goedkeuring van de verhuurder.

ALGEMEEN
Al het bovenstaande betreft informatie omtrent de verhuur van het Mathenesserlaan 540 te Rotterdam. Deze informatie is met zorg samengesteld, maar voor de juistheid ervan kan door Van Herk Bedrijfsmakelaars geen aansprakelijkheid worden aanvaard, noch aan de vermelde gegevens enig echt worden ontleend. Nadrukkelijk is vermeld dat deze informatieverstrekking niet als een aanbieding of offerte mag worden beschouwd.

Kenmerken

Basiskenmerken

  • Status Beschikbaar
  • Huurprijs € 7.900,- p/m
  • Koopprijs € 1.475.000,- k.k.
  • Servicekosten -
  • Aanvaarding Direct

Bouwvorm & onderhoud

  • Hoofdfunctie Winkelruimte
  • Soort bouw Bestaande bouw

Oppervlakte & inhoud

  • Oppervlakte kantoor ca. 576 m2
  • Oppervlakte kantoor ca. 576 m2
  • Oppervlakte winkel ca. 576 m2

Parkeergelegenheid

  • Parkeerfaciliteiten Het is betaald parkeren in de omgeving.

Overig

  • Onderhoud binnen Goed
  • Onderhoud buiten Goed
Meer kenmerken
Taxatie van jouw bedrijfspand, kantoor of winkel?

Wij leveren snel een helder taxatierapport

Bedrijfspand taxeren

In de buurt

Geïnteresseerd?

Bel met Van Herk Bedrijfsmakelaars te Rotterdam (Bedrijven)

shape

Stuur een bericht

* Maximaal 255 tekens
privacyverklaring